查看完整案例

收藏

下载

翻译
Architects:Taller Carlos Marín
Area:700m²
Year:2025
Photographs:Onnis Luque
Lead Architect:Carlos Marín
Category:Houses
Design Team:Carlos Marín, Kevin Coviella, Joel Velázquez, Joanna González, Antonio Moreno
Landscape Design:Luis Guisar
Design And Construction:Taller Carlos Marín
Structures:INGENIEROS NOVA
Lighting:Avant
City:Ciudad de México
Country:Mexico
Text description provided by the architects. When we first visited the site, what struck us the most was that after emerging from a narrow alley, an extraordinary view opened up toward one of the slopes of the Tepozteco mountain range. These rock formations are emblematic of the region, and the land ends precisely at the base of this dramatic topography. From the very beginning, one of our main concerns was to ensure that every room—whether for gathering or resting—could enjoy this privileged view.
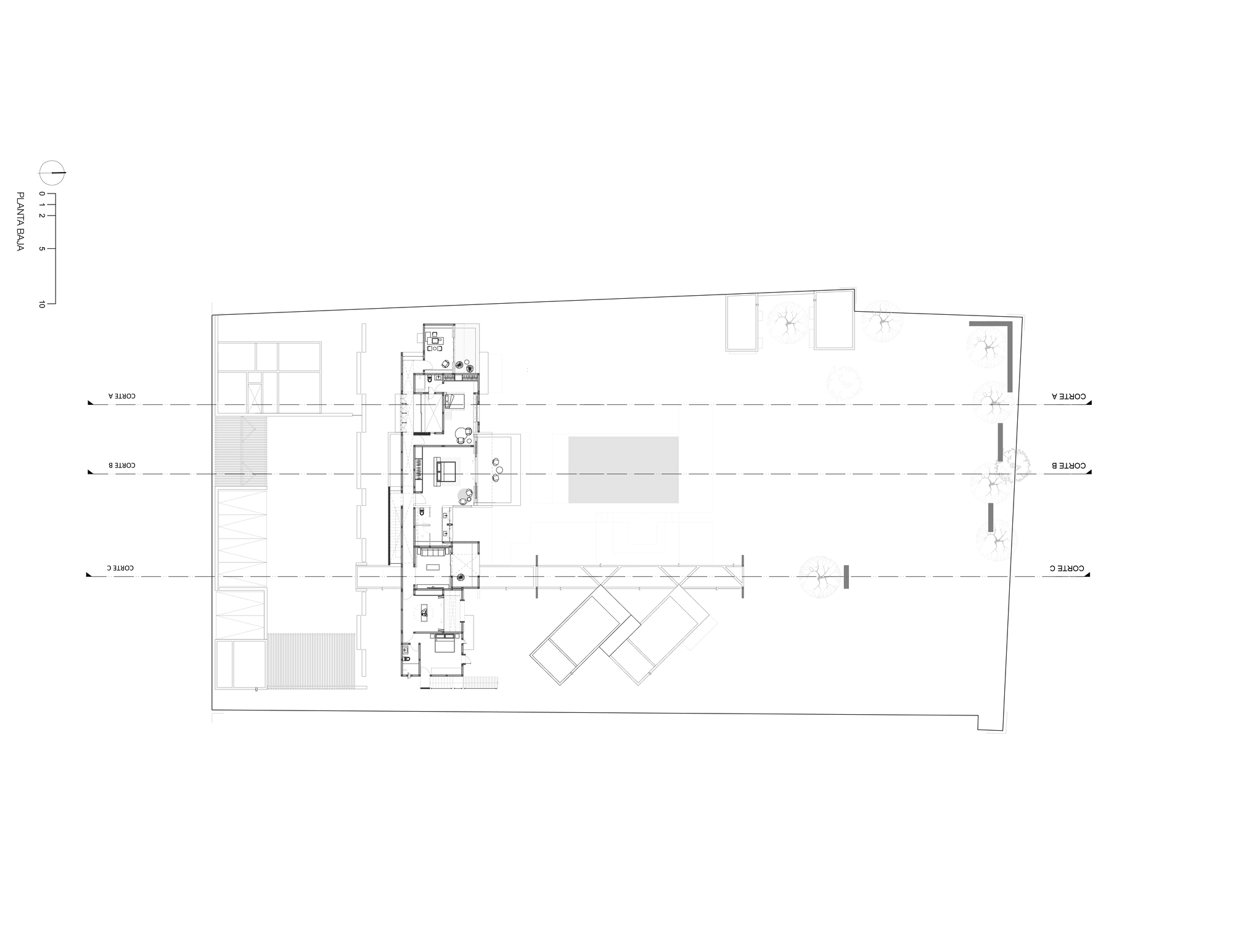
As a result, the house turns away from the access alleys and, through a series of spatial filters, gradually reveals itself until the mountain suddenly appears, framed like a living painting.
The layout, organized in an "L" shape, allowed us to distribute the spaces in a way that enhances both function and contemplation. A corridor houses the guest rooms, while the main volume of the house opens fully toward the mountain. This primary block includes all common areas—living rooms, dining areas, kitchen, studies, yoga room, and bedrooms—all oriented toward the view at every moment.
Building in a context so strongly defined by natural geography led us to choose materials that would ground the architecture in its surroundings. We created a mix of concrete and earth pigments sourced from the site’s own soil, which helped blend the house into both the material and visual context. The perimeter wall, built in stone, reinforces this sense of immersion—making the house seem as though it emerges from the ground, enveloped by the rocky formations of both the mountain and the enclosing walls.
From the outset, the client requested a home that felt closed off from the outside world—monastic in nature. This led us to explore the nearby convent in Tepoztlán, drawing inspiration from its quiet corridors and introspective spatiality. We translated that silence into a system of passageways that feed the upper-level spaces with rhythm and light.
As for the construction system, we used stone walls and masonry covered with a pigmented earth-based mix, along with exposed concrete matching the color of the site's soil. From the moment we stepped onto the land, we noticed its ocre tones—a result of its past as agricultural soil. During the dry season, the ground takes on a vivid earth color, which became the chromatic and material foundation for the volumes that now shape the house.
Project gallery
客服
消息
收藏
下载
最近

























