查看完整案例

收藏

下载
概要
Overview
阪南大学位于大阪中心以南郁郁葱葱的大和川沿岸地区,于2025年迎来建校60周年,是一所拥有悠久历史和传统文化的文科私立大学。为了迎接这个具有里程碑意义的年份,大学在重组学部的同时,还推进了校园建设工作,旨在将位于其他地块的南校区整合到本次用地的主校区。以学部重组和南校区整合为契机规划的新4号楼,不仅是对老旧校舍的重建,更是主校区规模最大的新教学楼,用以应对学生数量的增加。旧4号楼因面向中庭的开口较少,导致与中庭的联动性不足,未能充分利用其空间价值。因此,新4号楼采用了面向中庭开放且具有连续性的建筑形态。通过与中庭的一体化规划,让学生们在课余时间也能积极利用大楼、聚集于此,从而实现了能够自然产生交流与活动的学习交流空间。
Steeped in history and tradition, Hannan University is a private liberal arts university celebrating its 60th anniversary in 2025, located in a lush green area along the Yamato River, to the south of central Osaka. Ahead of this milestone year, alongside a faculty reorganization, the university has advanced plans to integrate the previously separate south campus into the main campus grounds.
Building 4 was designed not only as a replacement for aging structures, but also as the largest new classroom building on the main campus to accommodate increasing student numbers, capitalizing on faculty reorganization and South Campus integration.
The prior Building 4 had few openings facing the courtyard, resulting in a layout that did not fully utilize the courtyard’s spatial value or foster a sense of connection with it. The replacement facility was therefore designed with an open, continuous building form that faces the courtyard. By planning it as an integral part of the courtyard, the design creates a space for learning and interaction where communication and activities can occur naturally. This encourages students to actively use the building and gather there, even outside of class hours.
▼西立面半鸟瞰图,West façade semi-bird’s-eye view ©Koji Yamazaki
▼西立面,West facade ©Koji Yamazaki
▼西侧外观,West exterior ©Koji Yamazaki
从校园广场吸引学生、呈阶梯状连接的学生空间
A terraced student gathering space that draws students from the Campus Plaza
面向规划地块的中庭“校园广场”是校园的中心,学生们会在课间和午餐时段聚集于此。为了从中庭连续地引入学生活动,在中庭一侧设置了阶梯状的退台式露台空间。呈阶梯状连接的建筑体量,是为了满足针对北侧部分路幅狭窄路段的法规限制而形成的合理形态,利用其阶梯状的设计,通过丰富的植栽和长椅、桌子等设施,打造出吸引学生停留的舒适空间。露台的半室外空间既能感受绿意与清风,又可从顶层远眺大阪平原,注重健康福祉的设计,使这里成为舒畅愉悦的学生空间。该项目设计于新冠疫情期间,考虑到学生除室内外还需要能够进行学习和交流的空间,于是在充满新鲜空气的户外环境中打造了这样一个可以进行交流的健康场所。
The Campus Plaza courtyard facing the site, functions as the central hub where students gather between classes and during lunchtime. To seamlessly draw student activity from the courtyard, set back, stepped terraced spaces were created from the courtyard side. The terraced building volume emerged as a rational response to planning restrictions arising from the northern road, which is narrow in parts. Leveraging this stepped design, rich plantings, benches, and tables were incorporated, creating comfortable spaces for students.
The semi-outdoor terrace space allows students to enjoy the greenery and breeze. From the top floor, they can see far across the Osaka Plain. Designed with wellness in mind, it provides a pleasant place for students to spend time. In consideration of the need for spaces beyond the classroom where students can learn and interact during the COVID-19 pandemic, we created a healthy environment for communication in fresh outdoor air.
▼室外露台鸟瞰图,Bird’s-eye view of outdoor terrace ©Koji Yamazaki
▼室外露台,Outdoor terrace ©Koji Yamazaki
▼一层屋顶楼梯,1st Floor roof staircase ©Koji Yamazaki
连接学生活动的挑空空间
An atrium space that connects student activities
建筑内部的中心是中央的阶梯状挑空空间,这同时也是主要的学生动线。在阶梯周围为学生设置了停留空间,规划为学生在课间休息时穿梭来往、偶然相遇和交流互动的动线。各楼层均面向西侧露台布置了开放式公共空间,作为与露台相连的舒适区域,意在让学生活动从公共空间扩展到露台,从而使整栋建筑充满学生们的活力气息。中央的挑空通过抬高顶部结构,利用重力通风将校舍内的空气从高侧窗排出,从而促进了建筑内部的自然通风。挑空处天花板采用曲面设计,将高侧窗透入的自然光柔和地引入室内,为建筑节能做出了贡献。
The central staircase atrium serves as the building’s core, and the main circulation route for students. Spaces surrounding the stairs function as gathering spots, and are designed to encourage student movement between classes, fostering chance encounters and interaction. Open common areas are positioned on each floor, facing the west-side terraces. These spaces are designed to be comfortable and seamlessly connect to the terraces, allowing student activities to naturally extend from the common areas to the terraces, creating a lively atmosphere throughout the entire building.
The central atrium also promotes natural ventilation thanks to its elevated uppermost section, enabling air to be expelled via high-side lights using stack ventilation. The curved ceiling softly diffuses light from the high-side lights into the interior, contributing to the building’s energy efficiency.
▼从中庭向下俯瞰,Downward view from the atrium©Koji Yamazaki
▼三层中庭回望图,3rd floor atrium back-looking view ©Koji Yamazaki
▼三层中庭视图,3rd floor atrium view ©Koji Yamazaki
▼四层中庭透视图,4th floor atrium view ©Koji Yamazaki
与既有校园和谐共存、激发学生感性、内外一体的空间营造
Creating a unified interior-exterior space that harmonizes with the campus and stimulates student sensibilities
通过采用与校园内既有建筑共同的外装设计,如具有阪南大学特色的大地色瓷砖和清水混凝土屋檐等设计元素,努力实现了与既有校园景观的和谐统一。建筑外观统一为大地色系,体现了阪南大学特有的高雅质感与温馨氛围,同时还通过外装设计呈现出绿意盎然的生机与学生们朝气蓬勃的神采。室内设计秉持简约刚健的风格,通过清水混凝土地面和露出的钢梁、设备架及卷帘盒等,营造出与露台相连、如外部空间般的氛围。教室内的色彩方案为各楼层设定了概念,与公共区域形成对比的鲜艳色彩旨在激发学生的感性,为日常学习带来张弛有度的变化。
The exterior design incorporates elements shared with existing campus buildings-such as earth-toned tiles and exposed concrete eaves-to achieve harmony with the existing campus landscape. Through unified earthy tones, the building conveys Hanan University’s quality and warmth, while its design highlights the freshness of the greenery and the vibrant expressions of its students.
The interior design is simple and robust. Exposed concrete floors, steel beams, equipment racks, and shutter boxes form an interior that feels like a seamless extension of the terrace and external space. Classroom color schemes are conceptually tailored to each floor. Vivid colors, contrasting with the more subdued tones of the common areas, stimulate students’ senses, and introduce rhythm and distinction into their daily learning environment.
▼一层大厅,1st floor hall ©Koji Yamazaki
▼四层公共空间,4th floor common space ©Koji Yamazaki
焕活精神和促进交流的卫生间
Restrooms that foster refreshment and communication
作为为学生打造舒适建筑的巧思之一,卫生间设计突破了单纯的洗手间功能局限,各层均设定了不同的设计理念:1・2层为时尚(Stylish),3层为活力(Energisch),4层为自然(Natural),5层为优雅(Elegant),学生们可根据当下心情选择一个“想使用的卫生间”。这已不仅仅是单纯的盥洗空间,而是令学生倍感舒适的卫生间环境,学生们在这里能够驻足休息、恢复活力和交流互动。
In designing a building where students can comfortably spend time, restrooms are more than just places for handwashing. Instead, each floor features a distinct design concept: “Stylish” on the 1st and 2nd floors, “Energetic” on the 3rd, “Natural” on the 4th, and “Elegant” on the 5th. This variety allows students to choose a restroom that suit their mood. As such, these restrooms go beyond mere functional facility, becoming comfortable places where students can linger, refresh themselves, and even communicate.
▼一层女洗手间,1st floor Womens WC ©Koji Yamazaki
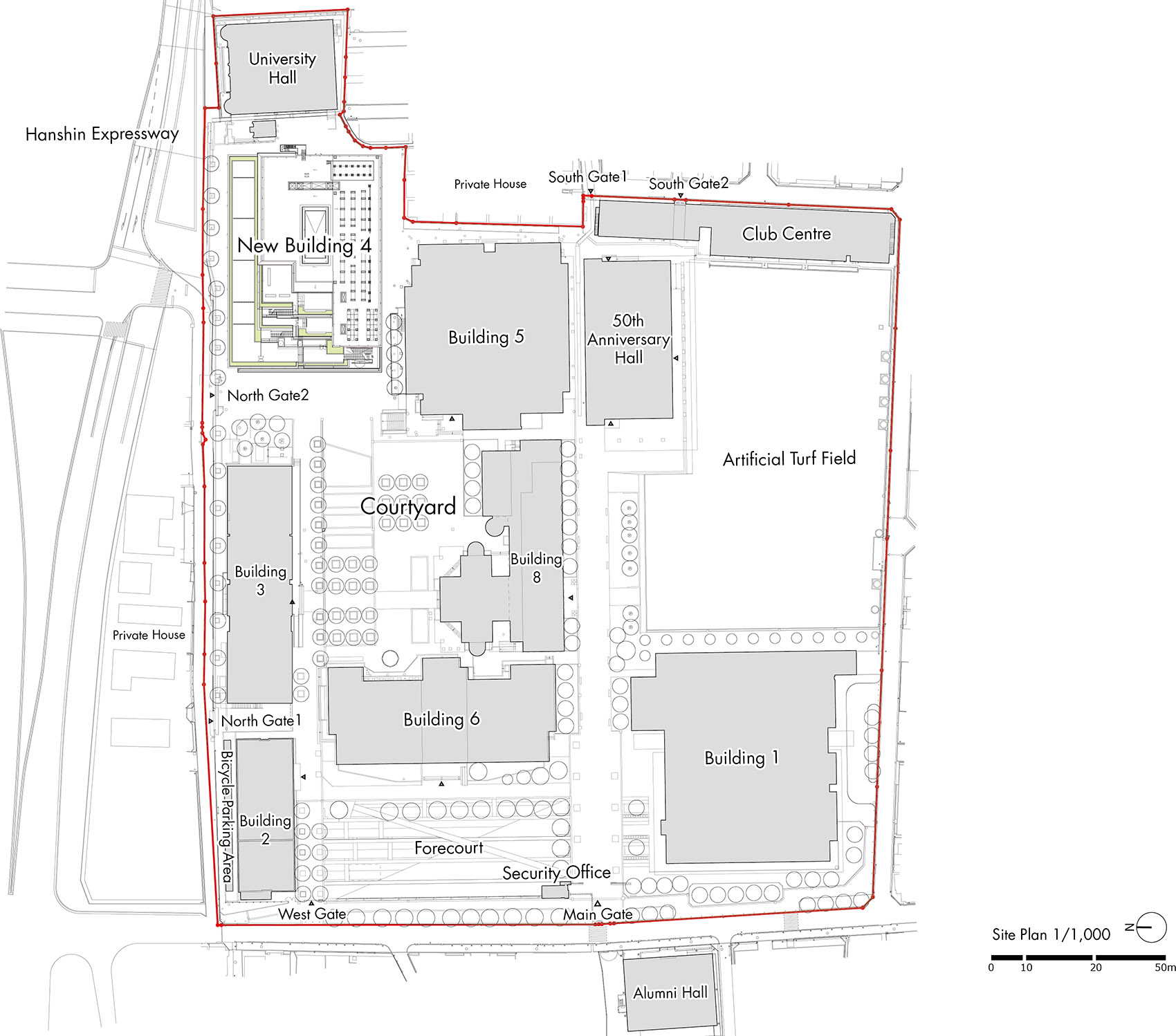
▼项目区位图,Site plan ©Nikken Sekkei Ltd
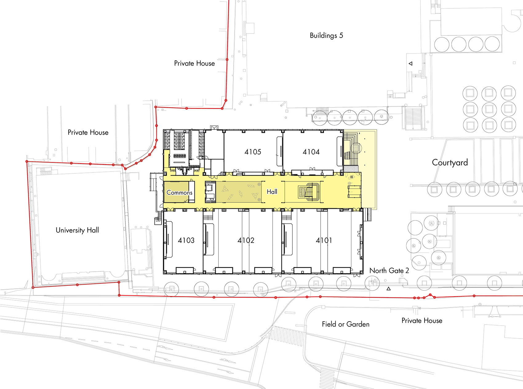
▼一层平面图,First Level floor plan ©Nikken Sekkei Ltd
▼二层平面图,SecondLevel floor plan ©Nikken Sekkei Ltd
▼三层平面图,Third Level floor plan ©Nikken Sekkei Ltd
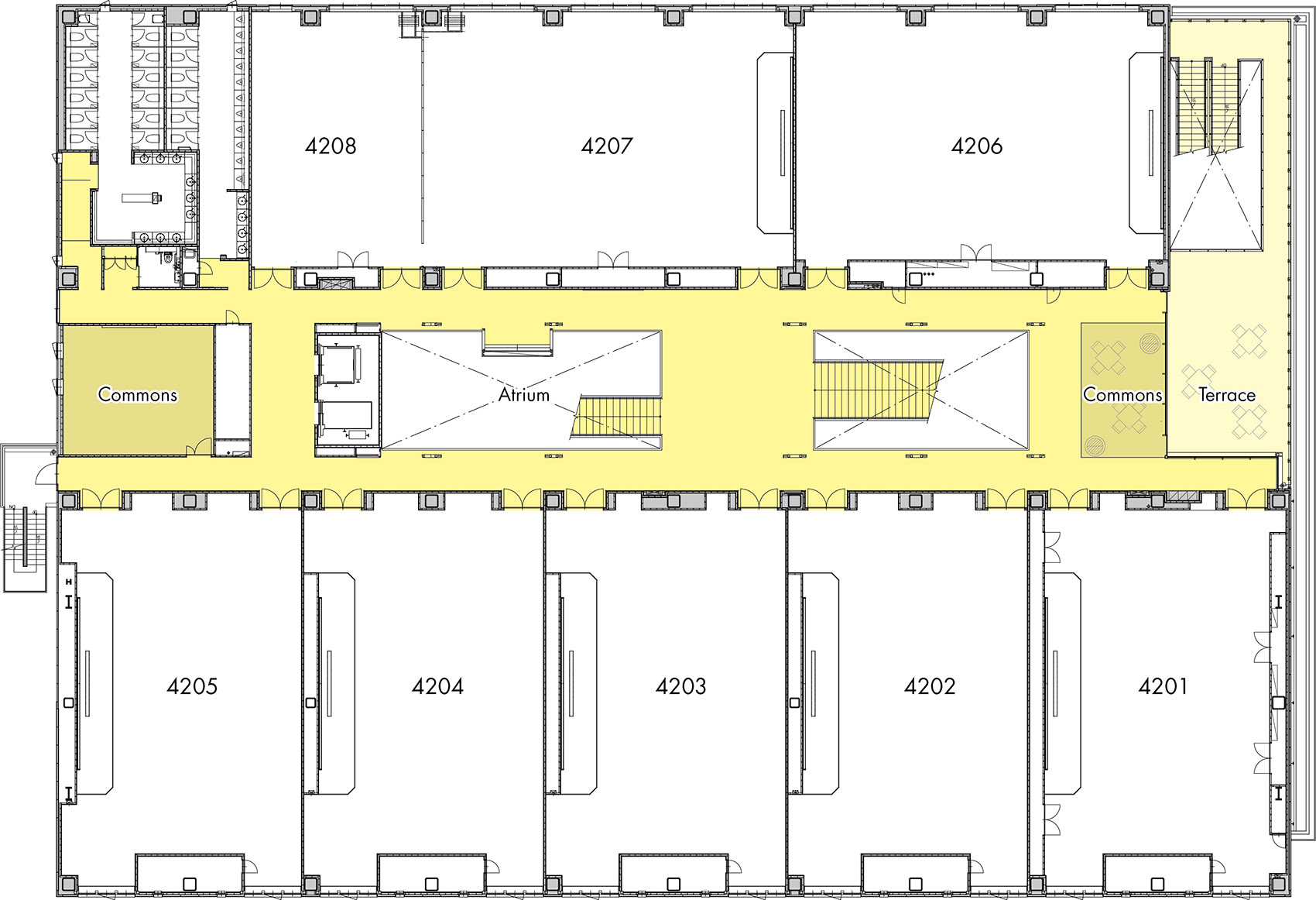
▼四层平面图,Fourth Level floor plan©Nikken Sekkei Ltd
▼五层平面图,Fifth Level floor plan ©Nikken Sekkei Ltd
▼南北剖面图,North South section ©Nikken Sekkei Ltd
▼东西剖面图,East West section ©Nikken Sekkei Ltd
Project Details
Project name(Japanese: 阪南大学 新4号館
Project name (English): Hannan University Building 4
Purpose:University
Location(prefecture, city):Matsubara-shi, Osaka, Japan
Site area(m2):40,190.87
Total floor area(m2):9,889.85
Number of floors: Five above-ground floors
Eave height/max height (m): 22.64/23.50
Main structure: Steel-framed construction
Completion month/year: February 2024
Short Description: Hannan University is a prestigious private liberal arts university with a rich history and tradition, celebrating its 60th anniversary in 2025. Located in a lush green area along the Yamato River, south of central Osaka, this project involved the reconstruction of a classroom building as part of a faculty reorganization initiative. To incorporate the vibrancy of the existing Campus Plaza (courtyard) — the heart of student activity — into the new building, a terraced space with stepped setbacks was created. With its abundant plantings, benches and tables tailored for student use, it creates a pleasant, healthy space where students can linger, feel the greenery and breeze, and enjoy distant views of the Osaka Plain from the top floor. A central staircase-like atrium space serves as the main circulation route for students. Common spaces arranged around it face the terraces, seamlessly integrating the interior and exterior areas, and fostering diverse activities within the unified space.
Credits
Client name(Japanese): 学校法人阪南大学
Client name(English): Hannan University
Lead architect: Nikken Sekkei Ltd
Main scope: Concept plan, Concept design, Developed Design Supervision
Construction Contractor: Matsui Construction Co., Ltd.
Photo credit 1 (Japanese/English) プライズ 山崎浩治/Koji Yamazaki [Prise]
Project Team Information
Full Name-Role, Job Title, Department etc.
Youjiro Kotani Architect / Director, Architectural Design Group, Architectural Design Department
Kenji Murai Architect/ Associate, Architectural Design Group, Architectural Design Department
Junpei Nojima Architect/ Architectural Design Group, Architectural Design Department
Materials and specifications
Material Specifications/Product Name Brand/Manufacturer
Exterior wall tiles Oribe Brick Fusion Ceramic Olive Inc.
Aluminum sash Secondary electrolytic coloring Fujisash Co., Ltd
Tile carpet TOLI Corporation, Kawashima Selkon Textiles Co., Ltd.
客服
消息
收藏
下载
最近























