查看完整案例

收藏

下载
一、智造转型下的品牌空间重构
Reconstruction of brand space under the transformation of intelligent manufacturing
中国制造 4.0 时代,传统制造业正加速从 OEM 代工向 OBM 自主品牌转型。传统行业的升级已不再局限于技术迭代与产能优化,更指向 “品牌价值可视化” 的深层命题。
In the Made in China 4.0 era, traditional manufacturing is accelerating its transformation from OEM to OBM independent brands. The upgrading of traditional industries is no longer limited to technology iteration and production capacity optimization, but also points to the deep proposition of “visualizing brand value”.
▼建筑景观主入口,Architectural landscape main entrance ©肖湘
对于深耕五星级酒店照明领域、服务全球超 300 家高端客户的艾罗照明而言,他们早已先人一步成为业内的领军人物,并享有相当的国际知名度。而艾罗带着要把品牌再上一个维度的雄心,他们希望打造一个能承载 “融合科技体验、在地文化与品牌叙事的沉浸式场域” ,直观传递核心竞争力,实现从 “中国制造” 到 “中国品牌” 的价值跨越。
For Aero, which is deeply involved in the lighting field of five-star hotels and serves more than 300 high-end customers around the world, they have already become a leader in the industry and enjoy considerable international reputation. Aero has the ambition to take the brand to another dimension. They hope to create an “immersive field that integrates technological experience, local culture and brand narrative”, intuitively convey core competitiveness, and realize the value leap from “Made in China” to “Chinese Brand”.
▼改造后的建筑外立面与庭院景观,Renovated building facade and courtyard landscape ©肖湘
在这样的背景下,加减智库需要去解决三个核心问题:一是打破 “生产与体验” 的割裂,让客户在参观中直观感受从研发到生产的全链条落地服务能力;二是模糊 “工厂与酒店” 的边界,契合品牌服务五星级酒店的核心业务属性,让空间体验与产品应用场景形成呼应;三是实现 “地域文化与国际审美” 的平衡,既扎根中国本土,又能让海外客户产生共鸣。
Against this background, PMT Partners needs to solve three core issues: first, to break the separation between “production and experience”, allowing customers to intuitively experience the full-chain service capabilities from R&D to production during the visit; second, to blur the boundary between “factory and hotel”, in line with the core business attributes of brand service five-star hotels, so that the space experience echoes product application scenarios; third, to achieve a balance between “regional culture and international aesthetics”, which is both rooted in China and resonates with overseas customers.
▼景观廊道,landscape corridor ©覃昭量
▼入口水院夜景,Night view of entrance water courtyard ©覃昭量
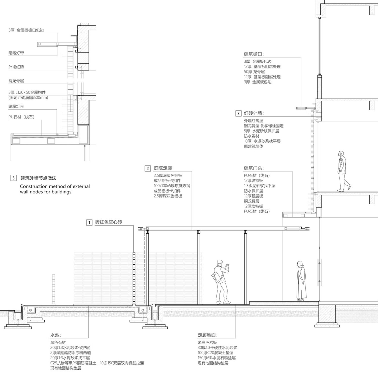
二、游园戏光 —— 从照明工厂变身“红砖艺术酒店”
A Day’s Encounter with Light —— Lighting Factory Transformed into “Red Brick Art Hotel”
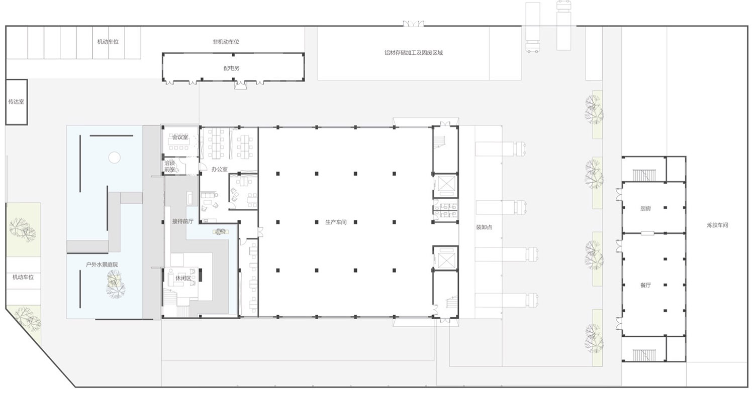
艾罗创新工厂位于广州南沙新区,距离市区约30分钟车程,总建筑面积约13000㎡。加减智库将 “微缩五星级酒店场景” 与 “产、研、办、展、游” 深度耦合,以“游园戏光”为主题串联室内外所有功能区域,打造 “与光的一日邂逅” 的沉浸式路径,让每一步行进都成为与光对话的过程,使整个场地从照明工厂摇身一变为“红砖艺术酒店”。
▼项目分析图,Project analysis chart ©PMT Partners Ltd.
Aero Light Innovation Factory is located in Nansha New District, Guangzhou, about 30 minutes’ drive from the city, with a total construction area of about 13,000 square meters. PMT Partners deeply couples the “miniature five-star hotel scene” with “production, research, office, exhibition, and tourism”. It connects all indoor and outdoor functional areas with the theme of “playing with light in the garden” to create an immersive path of “a one-day encounter with light”, making every step a process of dialogue with light. The entire site has been transformed from a lighting factory into a “red brick art hotel”.
▼基地原建筑照片,Photos of the original building of the base © PMT Partners Ltd.
▼外立面夜景细部,Night view of façade details©覃昭量
2.1 动线设计:从 “高效直达” 到 “慢体验” 的转型
Circulation design: Transformation from “efficient direct access” to “slow experience”
传统工厂的动线设计追求生产效率,往往是直线式的 “两点一线”,而我们反其道而行之,采用迂回曲折的动线布局,刻意拉长行进路径。这种 “慢设计” 策略,核心是为了让来访者从城市喧嚣中抽离,完成从 “工业场景” 到 “体验空间” 的心理过渡,让 “光的体验” 在进入建筑前便已悄然开启。
Circulation design of traditional factories pursues production efficiency and is often a linear “two points and one line”. However, we do the opposite and adopt a circuitous line layout to deliberately lengthen the travel path. The core of this “slow design” strategy is to allow visitors to withdraw from the hustle and bustle of the city, complete the psychological transition from “industrial scene” to “experience space”, and allow the “experience of light” to start quietly before entering the building.
▼红砖景墙夜景,Night view of red brick landscape wall ©覃昭量
▼入口水院连廊夜景,Night view of entrance water courtyard corridor ©覃昭量
我们从《清十二月令图》中获得灵感,画中散点透视描绘出不同时节的景色与人们的活动。这种多层次多维度的庭院景致,人们三两成群,穿插其间,院内庭外湖边山前, 各有其不同的体验,随着画轴的延伸,各种场景慢慢呈现,而这正是我们想追求的游园体验。
▼《清十二月令图》 中空间、活动、人的互动关系,The interactive relationship between space, activities and people in 《The Twelve Months of the Qing Dynasty》©PMT Partners Ltd.
We were inspired by the 《Twelve Months of the Qing Dynasty》 painting, in which scattered perspectives depict the scenery and people’s activities in different seasons. This multi-layered and multi-dimensional courtyard scene has people in groups, interspersed among them, inside the courtyard, outside the lakeside and in front of the mountains, each with its own different experience. As the scroll extends, various scenes slowly appear, and this is exactly the garden experience we want to pursue.
▼游园戏光的“红砖酒店”——空间爆炸图,“Red Brick Hotel” for fun in the park – space explosion ©PMT Partners Ltd.
▼入口水院红砖景墙夜景,Night view of the red brick landscape wall in the entrance water courtyard ©覃昭量
The entire circulation follows the complete link of “seeing from afar → walking into the garden → visiting the foyer → brand introduction → immersive experience → salon activities → key exhibitions → signing → tea break”, corresponding to the six experience stages of “browsing the light, finding the light, playing with the light, tasting the light, smelling the light and bathing in the light”. From the main entrance garden to the second-floor water courtyard, from the exhibition hall to the laboratory, we divide the entire browsing process into different time slices. Each slice will have independent display scenes and light and shadow interaction nodes, allowing visitors to continuously encounter different forms of light in the circuit. In addition, we had an in-depth discussion with the Aero team about the duration of each time slice and the script of the explanation. During the entire tour, the brand’s core business was naturally integrated into the experience process. Instead of deliberately discussing specific products, we focused more on the atmosphere, implementation and service system, thereby building awareness and trust of both parties.
▼入口水院红砖景墙夜景,Night view of the red brick landscape wall in the entrance water courtyard ©覃昭量
2.2 无界设计:建筑、景观与室内的一体化共生
Unbounded design: integrated symbiosis of architecture, landscape and interior
加减智库认为,真正的沉浸式体验,在于打破建筑、景观与室内的边界。在艾罗创新工厂的设计中,通过材质、元素与情绪的连贯,构建出全程犹如游走在红砖艺术酒店之中的空间感知。
PMT Partners believes that the true immersive experience lies in breaking the boundaries between architecture, landscape and interior. In the design of Aero Innovation Factory, through the coherence of materials, elements and emotions, a spatial perception is created that feels like walking in a garden hotel.
▼体现疍家水乡文化的艺术装置漂浮于水上,An art installation embodying Danjia water town culture floats on the water ©覃昭量
▼艾罗照明的LOGO在红砖的映衬下,Aero Light LOGO is set against the red bricks ©覃昭量
砖和水元素皆是连接内外的 “无界纽带”,设计在一层庭院设置景观浅水池,延伸到室内大堂;二层打造了围合式的水院,形成上下呼应的空间格局。水的温润特质不仅中和了工业空间的冰冷感,呼应了东涌疍家水乡 “亦耕亦渔” 的地域基因,更与灯光结合形成丰富的视觉效果 ——水下灯带与建筑倒影交织,成为展示艾罗全场景光环境解决方案的天然载体。通过红砖与水的全域渗透,“迂回动线、场景停顿、感官刺激” 的组合,我们让整个空间形成统一的情绪基调,让来访者完全脱离了 “工厂的效率感”,转而沉浸于 “艺术酒店的松弛感”。
Bricks and water elements are both “boundless links” connecting the inside and outside. The design sets up a landscaped shallow pool in the courtyard on the first floor, extending to the indoor lobby; an enclosed water courtyard is created on the second floor, forming a spatial pattern that echoes from top to bottom. The warm and moist nature of water not only neutralizes the coldness of the industrial space, echoing the regional genes of “farming and fishing” in Dongyong Danjia Water Town, but also combines with lighting to form a rich visual effect – the underwater light strips interweave with the reflection of the building, becoming a natural carrier to display Airo’s full-scenario lighting environment solution. Through the full penetration of red bricks and water, and the combination of “circular movement lines, scene pauses, and sensory stimulation”, we have created a unified emotional tone for the entire space, allowing visitors to completely break away from the “sense of efficiency of a factory” and instead immerse themselves in the “sense of relaxation of an art hotel.”
▼水院红砖景墙灯光照明设计,Lighting design of red brick landscape wall in water courtyard ©PMT Partners Ltd.
▼水院红砖景墙灯光照明设计,Lighting design of red brick landscape wall in water courtyard © Peggy Tan, Glint Lighting Design
三、空间策略:功能融合与品牌体验的落地
Space strategy: functional integration and brand experience implementation
3.1 入境:光影序幕的庭院引导
Enter the realm: courtyard guidance with light and shadow prelude
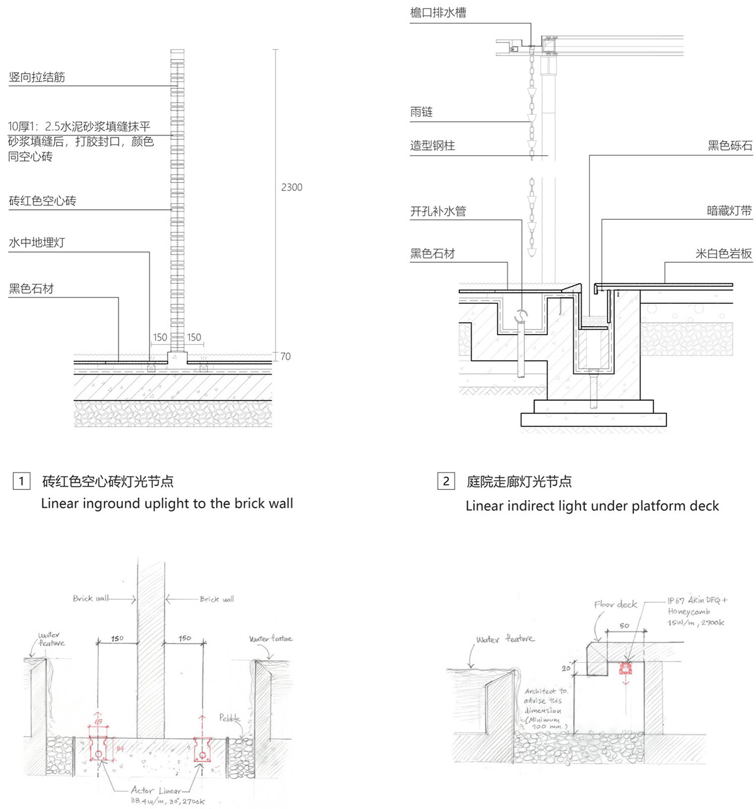
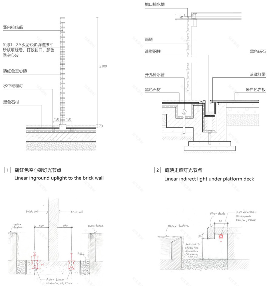
来访者从主入口步入,首先遇到的是由空心砖砌筑的“光影屏风”——作为入口与建筑主体的过渡,它起到了空间缓冲的作用;作为“光”设计的第一个“舞台”,白天,阳光穿透空心砖的孔隙,在地面投射出疏密有致的光斑。夜晚,LED灯带透过砖缝勾勒出屏风的轮廓,形成“光的剪纸”效果,为“邂逅”埋下伏笔。
When visitors walk in from the main entrance, the first thing they encounter is the “light and shadow screen” made of hollow red bricks – as a transition between the entrance and the main body of the building, it plays a role as a spatial buffer; this is the first “stage” designed for “light”. During the day, sunlight penetrates the pores of the hollow bricks, projecting dense and dense light spots on the ground. At night, LED light strips outline the outline of the screen through the brick seams, forming a “light paper-cut” effect, paving the way for “encounter”.
▼改造后的入口景观与外立面日景,Renovated entrance landscape and facade day view ©覃昭量
▼红砖立面,red brick façade ©覃昭量
曲折的连廊刻意拉长了行进路径,连廊的挑檐与格栅组合,延续了岭南建筑 “遮荫避雨” 的智慧,让光线柔和渗入,来访者在缓慢移动中,掠过红砖,穿过树影,临过池边,放松心态,逐渐进入室内 “与光对话” 的沉浸状态。
The winding corridor deliberately lengthens the traveling path. The combination of the overhanging eaves and grilles of the corridor not only continues the wisdom of “shading and sheltering from rain” in Lingnan architecture, but also allows light to penetrate softly. Visitors move slowly, passing the red bricks, passing through the shadows of trees, and approaching the pool. They relax and gradually enter the immersive state of “dialogue with light”.
▼入口廊道,Entrance corridor ©肖湘
▼入口连廊挑檐,Entrance corridor overhang ©肖湘
▼曲折迂回的游园路径,The winding tour route ©PMT Partners Ltd.
▼红砖绿影相映成趣,Red bricks and green shadows contrast beautifully ©覃昭量
3.2. 探幽:游园路线的情绪牵引
Exploring the Mysterious:the emotional pull of the garden tour route
通过红墙的限定,趟过水上的栈道进入室内接待大厅,庭院的水景连接到室内,成为一个无界的整体,微微倾斜的木饰面墙体随着曲折蜿蜒的步道倒影在水中。灯光从水下向上漫射,照亮木饰面的纹理,让墙体仿佛 “悬浮于水面”,进一步强化了空间的轻盈感。低矮的凭栏照亮了漂浮水上的栈道,引导着人们追随着灯光继续探索游园。
▼接待大堂休息区,Reception lobby seating area ©覃昭量
Defined by the red wall, you can walk across the plank road over the water to enter the indoor reception hall. The waterscape of the courtyard is connected to the interior, forming an unbounded whole. The slightly sloping wooden veneer wall is reflected in the water along with the winding walk. The light diffuses upward from the water, illuminating the texture of the wood veneer, making the wall seem to be “suspended on the water”, further enhancing the lightness of the space. The low railings illuminate the plank road floating on the water, guiding people to follow the lights and continue exploring the park.
▼左:接待大堂前台;右:延续室外的水体景观到室内,Left:Reception lobby front desk; Right:Continuing the outdoor water landscape indoors © 肖湘
▼连续的游园路径,Continuous garden path ©PMT Partners Ltd.
▼木饰面墙体灯光照明节点,Wooden veneer wall lighting nodes ©PMT Partners Ltd.
▼木饰面墙体灯光照明节点,Wooden veneer wall lighting nodes ©Peggy Tan, Glint Lighting Design
▼接待大堂水景,Reception lobby water view ©肖湘
当动线行至庭院深处,一条极具雕塑感的红色楼梯成为空间叙事的 “转折点”—— 螺旋上升的形态不仅强化了垂直交通的引导性,色彩上也对艾罗主题品牌色调产生了强烈的呼应。
When the circulation reaches the depths of the courtyard, a highly sculptural red staircase becomes the “turning point” of the spatial narrative. The spiraling shape not only strengthens the guidance of vertical traffic, but also strongly echoes the color of the Aero theme brand.
▼楼梯的红色空心砖与室外景墙相呼应,The red hollow bricks of the stairs echo the outdoor landscape wall ©覃昭量
▼从楼梯回望一层大堂,Looking back at the lobby on the first floor from the stairs ©覃昭量
▼贯穿内外的水景元素,Water features throughout the interior and exterior ©覃昭量
▼从楼梯回望一层大堂,Looking back at the lobby on the first floor from the stairs ©肖湘
▼红色楼梯与大堂休闲区,Red staircase and lobby leisure area ©肖湘
楼梯外侧版嵌入暖调灯光,与红砖外立面形成材质与色彩的双重共鸣:灯光从楼梯外侧透出,当人们拾级而上,灯光层层亮起。人们从一层的 “景观庭院” 进入二层的 “室内水院”,完成 “与光邂逅” 的第一重升维。
▼楼梯侧板与踏步的灯光照明节点,Lighting nodes for stair side panels and steps © Peggy Tan, Glint Lighting Design
Warm-toned lights are embedded in the outer panel, forming a dual resonance of material and color with the red brick facade: the light shines from the outside of the stairs, and when people go up the stairs, the lights light up layer by layer. People enter the “indoor water courtyard” on the second floor from the “landscape courtyard” on the first floor, completing the first level of “encounter with light”.
▼引导视觉与情绪向上的红色发光体量,A red luminous volume that guides vision and emotions upwards ©覃昭量
▼从梯井回看一楼休息区,Looking back at the rest area on the first floor from the stairwell ©覃昭量
3.3 观心:水院光影的沉浸高潮
Observing the mind: the immersive climax of light and shadow in the water courtyard
二层水院是 “游园戏光” 的核心场景,也是品牌体系实力展示的关键空间。设计通过镜面水池、雾化装置与隐藏式照明的组合,构建出东方的禅境空间 。阳光在水面折射出粼粼波光,灯带与建筑倒影交织,形成 “悬浮的光盒”。
The water courtyard on the second floor is the core scene of ” A Day’s Encounter with Light” and is also a key space for displaying the strength of the brand system. The design creates an oriental Zen space through a combination of mirrored pools, atomization devices and hidden lighting. The sunlight refracts sparkling waves on the water, and the light strips interweave with the reflection of the building to form a “suspended light box.”
▼二层水院,Second floor water courtyard ©覃昭量
▼倒映中的茶亭,The reflected tea pavilion ©PMT Partners Ltd.
水院的灯光系统与艾罗的智能照明产品联动,来访者可通过APP 一键切换 不同的灯光情景模式,充分体现人因与节律照明的多维变化,直观感受艾罗 “全场景光环境” 的产品实力。
The lighting system of the water hospital is linked with Aero intelligent lighting products. Visitors can switch between different lighting scene modes with one click through the APP, fully experience the multi-dimensional changes in human factors and rhythmic lighting, and intuitively feel the product strength of Aero “full scene lighting environment”.
▼水院倒影,Water courtyard reflection ©PMT Partners Ltd.
为了强化沉浸感,我们在水院周边植入香氛系统,雪松与檀香的气味随水雾弥漫,配合潺潺水声,形成 “视觉 – 听觉 – 嗅觉” 的通感体验 —— 这种五感的沉浸,正是艾罗为酒店客户打造 “五星即吾心” 的理念缩影。
In order to enhance the sense of immersion, we implanted a fragrance system around the water courtyard. The smell of cedar and sandalwood is diffused with the water mist, and combined with the sound of gurgling water, it forms a synaesthesia experience of “vision – hearing – smell” – this immersion of the five senses is the epitome of Airo’s concept of “Five Stars Are My Heart” for hotel customers.
▼不同的功能的悬浮木盒围绕在水院边上,Suspended wooden boxes with different functions surround the edge of the water yard ©覃昭量
围绕水院,我们布局了以五星级酒店核心功能区为原型的 “微缩光影剧场”,包括商务会议、行政酒廊、度假客房、商务宴会等功能空间。这些空间并非孤立的展示区,而是与办公功能深度融合 —— 行政酒廊同时承担客户洽谈功能,会议室搭载与酒店宴会厅同源的智能照明系统,办公区散落在水院周边,让员工与客户都能在 “酒店式场景” 中工作、沟通。我们希望通过这种布局,传递一种松弛感,让商务活动在写意自在的氛围中自然发生。
▼不同的功能的悬浮木盒围绕在水院边上,Suspended wooden boxes with different functions surround the edge of the water yard ©覃昭量
Around the water courtyard, we have laid out a “miniature light and shadow theater” based on the core functional area of a five-star hotel, including functional spaces such as business meetings, executive lounges, vacation rooms, and business banquets. These spaces are not isolated display areas, but are deeply integrated with office functions – the executive lounge also serves as a customer negotiation function, the conference room is equipped with the same intelligent lighting system as the hotel banquet hall, and the office areas are scattered around the water courtyard, allowing employees and customers to work and communicate in a “hotel-style scene”. We hope that through this layout, we can convey a sense of relaxation and allow business activities to occur naturally in a comfortable and comfortable atmosphere.
▼行政酒廊吧台, Executive lounge bar ©覃昭量
▼行政酒廊吧台,Executive lounge bar ©肖湘
“木盒” 之间,围合出静谧的水院 —— 外立面的侧墙透过红砖的缝隙,光影从室外渗入室内,地面与墙面投射出 “星点光斑”,这些光斑随太阳高度角变化而移动,形成 “光的步道”。
A quiet water courtyard is enclosed between the “wooden boxes” – the side walls of the exterior facade pass through the gaps in the red bricks, and light and shadow seep into the interior from the outdoors. The ground and walls project “star spots of light”. These spots move with the change of the altitude angle of the sun, forming a “walk of light.”
▼阳光透过红砖照进水院,Sunlight shines through the red bricks into the water courtyard ©覃昭量
▼木盒里的行政会议室,Executive conference room in a wooden box ©肖湘(右)
▼充满光影变幻的办公小角落,A small office corner full of changing light and shadow ©覃昭量
▼小型的办公会客户室,Small office meeting room ©覃昭量
让 “光的体验” 融入日常工作的设计,水院周边散落着多个 “微型办公区”:有的在商务套房木盒的外侧,设置 1-2 人的临窗工位;有的在行政酒廊的吧台旁,配备高脚凳与笔记本电脑支架,还有的在连廊的转角处,设置小型会议桌,适合小组讨论。这些办公区自然地融入水院与 “木盒” 之间的缝隙中,员工可根据当天的工作需求自由选择办公的地点,也是一种松弛感的体验 。
In order to integrate the “experience of light” into the design of daily work, there are multiple “micro office areas” scattered around the water courtyard: some are set up on the outside of the wooden box of the business suite, with workstations for 1-2 people facing the window; some are equipped with high stools and laptop stands next to the bar in the executive lounge, and some are set up with small conference tables at the corners of the corridors, suitable for group discussions. These office areas are naturally integrated into the gap between the water courtyard and the “wooden box”. Employees can freely choose their office location according to the day’s work needs, which is also a relaxing experience.
▼酒店行政套房,Hotel executive suite ©肖湘
▼木盒里的行政套房, Executive suite in wooden box ©覃昭量
3.4 品艺——光影的实验与共创
Art Appreciation– Experimentation and co-creation of light and shadow
在展览的最后阶段,在对微缩五星级酒店场景体验之后,我们会进入到一条科技与工艺的长廊,参与到艾罗的光影实验室以及产品共创空间。
In the final stage of the exhibition, after experiencing the miniature five-star hotel scene, we will enter a corridor of technology and craftsmanship and participate in Aero light and shadow laboratory and product co-creation space.
▼光学实验室, Optical laboratory ©覃昭量
产品共创空间:设置 “光影共创实验室”,提供 “灯具定制工具包”——系统实时生成 3D 效果与光影模拟图,还可通过 VR 设备 “植入” 客户正在设计的酒店项目场景。而强大的产品库也和天花壁龛的灯光展示实时联动,根据用户的要求实现:即见即所得。
Product Co-creation Space: A “Light and Shadow Co-creation Laboratory” is set up, and a “Lamp Customization Toolkit” is provided — the system generates 3D effects and light and shadow simulation diagrams in real time, and can also “implant” the hotel project scene that the customer is designing through VR equipment. The powerful product library is also real-time linked with the lighting display in the ceiling niche, realizing “what you see is what you get” according to the user’s requirements.
▼工艺展厅, Craft exhibition hall ©覃昭量
四、砖的诉说
The Whisper of Bricks
“连一块平凡无奇的红砖都想超越自己本身”——大师的话语似乎用在中国智造转型的当下也再适合不过了。各行各业都在疯狂内卷,然而就算再平凡的自身也需要有着一颗be something的决心。
“Even a brick wants to be something”——The master’s words seem to be most suitable for the current transformation of China’s intelligent manufacturing. All walks of life are undergoing crazy involution, but no matter how ordinary you are, you still need to have the determination to be something.
▼多种红砖的不同砌法, Various ways of laying red bricks ©覃昭量
而本次在艾罗项目选择使用红砖主要出于以下几点的考虑:
1从功能上,红砖透气性好、耐久性强,适配珠三角的气候特点;
2从品牌上,其暖色调与艾罗的品牌主色形成呼应,粗糙肌理传递出品牌 “温暖、有温度” 的核心调性,耐久性则隐喻着品牌对品质的坚守;
The choice of using red bricks in the Aero project this time is mainly due to the following considerations:
1. Functionally, red bricks have good air permeability and durability, and are adapted to the climate characteristics of the Pearl River Delta;
2. From the perspective of the brand, its warm tones echo the main color of Ai Luo’s brand. The rough texture conveys the brand’s core tone of “warmth and temperature”, and the durability is a metaphor for the brand’s persistence in quality;
▼空心砖景观墙局部,Hollow brick landscape wall part ©覃昭量
▼红砖墙形成丰富的光影变化 © 覃昭量 The red brick wall creates rich changes in light and shadow ©覃昭量
3从文化上,红砖是传统建筑的常用材质,承载着本土记忆,而通过现代砌筑工艺的赋能,更是可以成为连接传统与现代的媒介。我们通过砖的模数变化、不同砌筑工艺,让红砖在白天形成丰富的光斑,夜晚成为光影的载体,用设计的力量让这种再普通不过的传统材料,在智能制造的空间中焕发新生,也是一种be something different的宣示。
From a cultural perspective, red brick is a commonly used material in traditional buildings, carrying local memories, and through the empowerment of modern masonry technology, it can become a medium that connects tradition and modernity. Through changes in brick modulus and different masonry techniques, we allow red bricks to form rich light spots during the day and become a carrier of light and shadow at night. Using the power of design to give this ordinary traditional material a new lease of life in an intelligently manufactured space is also a declaration of being something different.
▼粗糙的肌理与温暖的质感,Rough texture and warm texture ©覃昭量
五:设计赋能智造,空间是品牌价值的具象表达
Design empowers intelligent manufacturing, and space is the concrete expression of brand value
艾罗照明南沙创新工厂的设计,本质上是加减智库对 “中国制造 4.0 时代空间价值” 的一次回答 —— 它证明,工厂可以不再是 “冰冷的生产容器”,而是 “有文化、可体验、能叙事” 的品牌载体。实体企业的品牌升级需要空间作为支撑,而空间设计也必须紧扣产业的脉搏。
The design of the Aero Lighting Nansha Innovation Factory is essentially the answer of the PMT Partners to the “space value of the Made in China 4.0 era” – it proves that the factory can no longer be a “cold production container”, but a brand carrier that is “cultural, experiential and capable of narrative”. The brand upgrade of physical enterprises requires space as support, and space design must also closely follow the pulse of the industry.
▼红砖在立面上根据室内功能形成的不同砌法,The red bricks are laid in different ways on the facade according to the indoor functions ©覃昭量
▼红砖墙细部, Red brick wall detail ©覃昭量
当外国友人穿行于红砖与水院之间,惊叹于 “这不像一家工厂,更像一家红砖艺术酒店” 时,这种 “认知落差” 恰恰是加减智库想表达的:通过 “游园戏光” 的叙事体验,让 “中国智造” 不再是抽象的口号,而是触手可及的光影、材质、情绪与服务。最后,我们想说的是—— “Even a brick wants to be something”(砖,亦有其志)——louis kahn
When foreign friends walk between the red bricks and the water courtyard, they marvel that “this is not like a factory, but more like a red brick art hotel.” This “cognitive gap” is exactly what the PMT partners wants to express: through the narrative experience of “playing with light in the garden,” “Intelligent Made in China” is no longer an abstract slogan, but light, shadow, materials, emotions, and services within reach. The last thing I want to say is——“Even a brick wants to be something”(砖,亦有其志)——louis kahn
▼首层平面图,First Floor Plan © PMT Partners Ltd.
▼二层平面图,Second floor plan © PMT Partners Ltd.
项目名称:艾罗照明南沙创新工厂(红砖艺术酒店)
设计公司:加减智库建筑设计事务所
设计内容:建筑改造,景观设计,室内设计
完成年份:2024年7月
主持建筑师:赵炜昊、胡彦、曾喆
设计团队:关灏正、郭晓红、陈威、莫永龙、郭梓浠
项目地址:广东南沙
项目面积:13000㎡
照明设计:Peggy Tan, Glint Lighting Design
摄影:覃昭量、肖湘、加减智库设计事务所
Project Name:AeroLight Nansha Innovation Factory(Red Brick Art Hotel)
Design Company: PMT Partners Ltd.
Design Scope: Architectural Renovation, Landscape Design, Interior Design
Year of completion:2024.07
Principal Architects: Weihao Zhao, Yan Hu, Zhe zeng
Design Team: Haozheng Guan, Xiaohong Guo, Wei Chen, Yonglong Mo, Zixi Guo
Project Address:Nansha, Guangdong
Project Area:13000㎡
Lighting Design:Peggy Tan, Glint Lighting Design
Photographs:Zhaoliang Qin, Xiang Xiao, PMT Partners Ltd.
客服
消息
收藏
下载
最近






































































