查看完整案例

收藏

下载
悦见山海,趣享生活
引言:海与岸的对话
舟山,千岛之城,坐拥“海天佛国”普陀山的灵气与沈家门渔港的烟火。在这里,海洋不仅是景观,更是城市的呼吸。舟山普陀VOCO酒店的设计,便是在这片交织着虔诚信仰与粗犷渔风的土地上,展开的一场关于“在地性”与“国际化”的深刻对话。作为洲际酒店集团旗下的高端潮流品牌,VOCO以其“妙趣横生”的DNA著称。本案设计旨在突破传统商务酒店的刻板印象,将普陀的禅意山水与VOCO的明快色彩解构重组,构建出一处既能安顿身心,又能激发灵感的“海岛会客厅”。
丨项目图纸
△ 公区平面
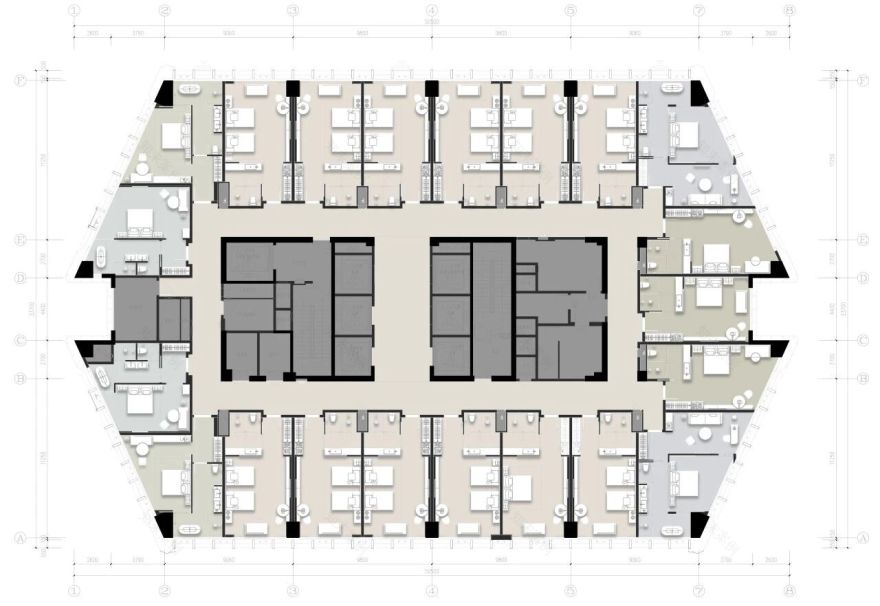
△ 客房层平面
大堂:潮汐的韵律与“燕雀”的欢迎
步入酒店大堂,即是VOCO品牌标志性的“Come on in”时刻。设计摒弃了传统星级酒店大堂的压迫感,转而营造一种如归家般的松弛。
△ 门厅
空间整体色调提取自舟山群岛的自然光谱——深邃的海蓝作为基底,隐喻东海的广博;跳跃的VOCO主题黄作为点缀,如同海面上跃动的金辉,亦象征着品牌吉祥物“燕雀”的灵动。
△ 接待区
艺术装置《洄游》悬于中庭,由数百片琉璃鱼群组成,在光影折射下通过动态的势能,引导客人的视线向内部空间延伸,完成了从喧嚣都市到静谧海岛的心理过渡。
△ 艺术装置
大堂的空间体量被设计为一座现代化的“港湾”。立面造型灵感源自层叠的海浪与渔网的经纬,通过参数化设计手法,将金属网格与流线型吊灯结合,仿佛在这方寸之间凝固了潮汐的韵律。
△ 大堂吧
△ 大堂水吧台
△ 大堂水吧台艺术吊灯
△ 金属屏风及壁灯
△ 大堂吧休息区
△ 大堂吧休息区
接待台选用未经过度雕琢的原石与黄铜拼接,粗粝与精致的对撞,隐喻着海岛岩礁与现代文明的共生。
△ 接待区
△ 电梯厅
公共空间:渔火的温情与“火烈鸟”的碰撞
餐厅区域名为“火烈鸟云端餐厅”,设计灵感源自沈家门夜泊的盛景。同时引入品牌吉祥物火烈鸟的年轻俏皮,使得空间既有空间的质感同时体现品牌的妙趣。灯光设计极为考究,定制的壁灯模拟了渔船上的玻璃油灯,散发出暖黄色的光晕,为用餐时刻注入了温暖的怀旧质感。
△ 全日餐厅
△ 全日餐厅餐台
△ 全日餐厅酒水吧台
全日餐厅的设计,深入诠释了“VOCO Life”的社交属性。设计师打破了功能分区的刚性界限,采用半通透玻璃隔断进行软性分隔,使空间呈现出一种流动的通透感。
家具选型上,不仅使用了符合人体工学的现代款式,还特意融入了藤编元素,呼应当地传统的竹编技艺。这里不仅是味蕾的飨宴之地,更是人与人交流互动的活力磁场,完美契合VOCO品牌中“火烈鸟”所代表的社交时刻。
客房:禅意的留白与“猫头鹰”的独处
客房区域的设计回归到“Me time”的私享本质,意在打造一处静谧的避世之所。空间叙事从普陀山的禅宗文化中汲取灵感,但在表现手法上极力避免符号化的堆砌,而是追求神韵的相通。
△ 客房层电梯厅
△ 客房层公区
室内摒弃了繁杂的装饰,采用大面积的米灰与原木色调,营造出“素雅简远”的禅意氛围。床头背景提取了当地盐田的抽象线条,通过极简的浮雕工艺呈现,在洗墙灯的晕染下,呈现出丰富的光影层次。
△ 客房标准间
△ 客房标准间
△ 客房标准间(大床房)
为了平衡禅意的清冷,设计师巧妙地植入了VOCO的品牌色彩。湛蓝的休闲沙发与柠檬黄的抱枕、艺术挂画形成视觉焦点,仿佛是海天之间的一抹亮色,为静谧的空间注入了勃勃生机。也体现了VOCO妙趣恒生的主题。
△ 迷你吧 浴室空间则采用了通透的玻璃隔断,将自然光引入,高品质的石材与精致的古铜色金属件相得益彰,细节之处尽显奢华。每一间客房都是一个独立的观景台,窗外的海景与室内的设计语言互为借景,让住客在“猫头鹰”般的独处时光中,彻底释放压力,重获内心的宁静。
结语:岛屿的现代回响
舟山普陀VOCO酒店的设计,是一次对海岛文化的现代转译。没有沉溺于传统的复古,也没有迷失于盲目的潮流。设计师敏锐地捕捉到了普陀“静”与VOCO“动”之间的平衡点,通过材质、光影与色彩的精准拿捏,创造出一个既具有地域归属感,又符合国际审美标准的旅居空间。
这里,既有大海的磅礴,又有雀鸟的欢歌。它不仅是一座酒店,更是舟山这张城市名片上,一枚闪耀着年轻活力与文化底蕴的独特印记。
项目信息
项目名称: 舟山普陀 VOCO 酒店
项目地点: 浙江省,舟山市
项目面积: 16000 平方米
设计时间: 2024 年 10 月
完工时间: 2025 年 8 月
设计公司: DWP - 象限室内设计(上海)有限公司
主创设计: 秦刚、马名耀
设计团队: 仇存臻、杨晨、刘昕
项目主材: 白玉兰大理石、橄榄绿大理石、仿铜不锈钢、陶瓷、柔性岩板、艺术玻璃等
项目摄影: 拙镜空间摄影
秦 刚
象限室内设计 创始人/设计总监
DWP 设计总监
象限设计是致力于建筑改造与空间规划研究的设计事务所。我们在上海汇聚了一批具有多样化背景的设计人才,并与国际一流室内设计机构及国内甲级设计院结为长期合作伙伴,充分共享创意资源和丰富的项目经验。
事务所以不断追求卓越的设计品质和不断研究空间以及人的行为方式为理念。我们始终认为研究是设计的有力工具,会根据项目自身的预算、空间以及风格需求的不同而为之量身打造,因为每个项目都具备其特有的背景。对规划运作、地点、功能和历史等进行细致深入的研究是创造严谨作品不可或缺的要素。每个项目的成功正是通过项目本身外观形象所体现出来的意义而得到淋漓尽致的体现。
DWP提供多元化的设计解决⽅案,为客户制订独树⼀帜的设计概念。DWP在10个国家有超过300名经验丰富的设计师。
20年来,DWP令人印象深刻且屡获殊荣的酒店项目包括从现代城市酒店到豪华生活方式度假村、前卫餐厅、全球知名的屋顶酒吧和独立品牌酒店概念、度假村和水疗中心。DWP的国际设计经验证明了对品牌多样性的深刻理解;以及每个目标群体的期望。
客服
消息
收藏
下载
最近




































