查看完整案例

收藏

下载
EDIT / © LUFFY SUN
DESIGNER / © SUKONG DESIGN
PHOTOGRAPHER / ©INGALLERY
在 HOUSTY 的展厅体系中设计并非装饰,而是一套回应场所、引导动线、塑造情绪的语言。它根据城市肌理、工作节奏和空间体量三种语境,分别提出清晰而有力的命题,并以不同的策略落实为可感的空间。蓝色不仅是一种视觉识别,更像是一种呼吸节奏。它在高饱和度的色温里维持着松弛、优雅、安静而坚定的气场,让每一次体验、每一场讨论都沉入到一种被“托住”的氛围之中。
01.
临街展厅:面向城市流动的开放剧场
街边展厅的设计,首先回应的是城市本身。外立面舍弃了二层原有的采光方式,以一整块铝镁锰板构成倾斜的屋面,使建筑姿态更为简洁、坚定,干净的门头底色托举出品牌 LOGO 的存在,成为街道上清晰、稳定的一笔。
▲分析图
▲平面布置图
原本内退的建筑界面被保留,但开窗与入户门的比例经过重新调整,使出入口更得体、动线更顺畅。横向的大落地窗以开放的姿态向街道展开,如同一扇向行人展示核心产品的橱窗,让品牌与城市建立最直接的视觉联系。
墙面铺开的的蓝色更像一束稳定而柔和的光,让展厅从街道的杂乱关系中抽离出来,使人一眼就读出品牌的秩序感。入口的体块被刻意抬高,仪式感随步伐被轻轻拉起,进入的瞬间便被空间托住。▲门厅细节
空间内部围绕一台电梯,它成为整个展厅的主角。旋转楼梯围绕核心缓缓上升,像一条在垂直方向展开的路径,让“上升”以极为直观的方式被体验。
▲更多细节
在这里,设计不再是展示的背景,而是成为传递品牌精神的结构本身——以一种温柔的力量把人引向高度。
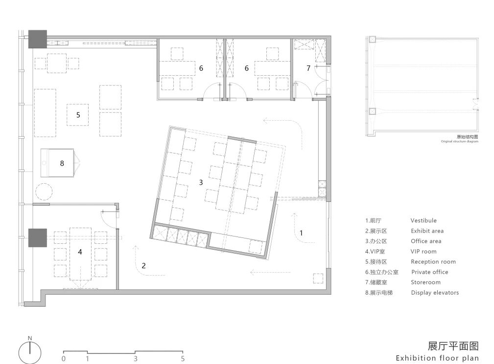
02. 写字楼展厅:隐藏于工作场景中的静谧会客室
写字楼展厅的设计命题,是在办公节奏之中创造一个情绪与空间的转折点。公共办公区整体旋转 15 度,由此形成的前场入口从宽到窄自然收束,让人的心情随着动线的推进逐渐高昂,像是从日常里被轻轻拔起的瞬间。
▲平面布置图
四周办公室门的玻璃被覆以蓝色波点渐变膜,既保持了隐私的含蓄,又为空间注入流动的氛围,使穿梭其间的光线带有浸润式的情绪色彩。
▲更多细节 独立的空间中,设计始终在隐私性与采光之间寻找平衡。界面被适度淡化,让光能够在不暴露内部活动的前提下缓慢涌入;封闭与透明之间维持着微妙的呼吸节奏,使空间更像是被从办公室日常中抽离出来的一处静室。
电梯展示控诉着一种被精心压低的力量,只在靠近时展开细节,让人与空间的关系从外部观察转为内部对话。
▲分析图
03. 工厂展厅:技术现场中的沉浸式品牌剧场
工厂展厅的设计建立在七米挑高的基础结构之上。原有的粗糙肌理、裸露的梁柱与工业气味并未被掩盖,而是被纳入展示逻辑,使工业场地转化为充满张力的体验环境。
极简的体块在空旷的高度中搭建出不同的空间区域,从入口的封闭到内部的开放,从静态到动态,节奏不断转换,让访客的情绪在空间的推演中被自然调动。
▲平面布置图
光与时间在这里承担着叙事角色。西侧横向条窗在阳光掠过时将光带切割成流动的片段,洒落在粗粝的墙面与体块之间,像是空间与时间在此处交握的瞬间。
▲更多细节
这样的设计不仅将工业场景的真实力量转化为视觉体验,也隐喻了品牌的“艺术之旅”——在结构、光线和肌理之间寻找美的可能。
在这个空间中,电梯不仅是产品,更是一段技术的剖面、一种逻辑的呈现、一种未来生活方式的想象。设计通过空间的层层推进,将产品的内核与展示的艺术性融合在一起,使整个展厅成为品牌精神最具力度的现场。
尾声:统一逻辑下的三种设计回应
三处场域的设计各有命题:临街展厅把设计作为城市可视化的手段,创造开放而有仪式感的观看场;写字楼展厅把设计作为节奏的调节器,制造从外向内的情绪升幅与私密的思考场;工厂展厅把设计作为翻译者,将工业空间的粗粝转译为可触可感的技术与体验。
相同的品牌语汇通过不同的设计策略被重新编码——比例、动线、采光、材料与体量的处理构成了每一处空间的设计语法。蓝色在各处作为氛围的辅助,但真正连接三展厅的,是一套关于如何让空间适配场所、如何在展示与洽谈之间找到平衡、以及如何把产品的技术性转化为可感体验的统一设计思路。每一次进入,都是设计对场所的再提问,而每一次停驻,都是设计给出的答案。
项目信息
项目名称:HOUSTY亨世达电梯展厅
项目地点:苏州/上海/常州
项目面积:140-220㎡
设计公司:南京素空室内设计有限公司
项目周期:2022.08-2023.04
设计团队:孙晨阳、王源、李吴伟、张丽、周树贵
文案撰写:王源
文案校对:孙晨阳
项目摄影:ingallery谢昊
主要材料:金属板、艺术漆、炭烧板、广告膜、木饰面、不锈钢
客服
消息
收藏
下载
最近


































