查看完整案例

收藏

下载
漂浮的村落(场地关系)
Floating Villages (Site Relationship)
柒峰院选址在与莫干山镇旅游集散中心相邻的一片村落里,北边贴临梧桐树冠盖如云的黄郛东路,另外几边面对的是参差有致、鸡犬相闻的村镇聚落。基地原址是一个乡村工厂和一个苗圃园,中间贯穿了一条村道。新建的用地红线保留了村道的同时在二层和三层的使用上又将两个地块连接为整体。
© ConCom Studio
7hills Yard is situated within a village adjacent to the Moganshan Town Tourist Distribution Center. It borders Huangfu East Road, lined with lush plane trees, to the north, while its other sides face a picturesque and lively rural settlement. The site originally contained a rural factory and a nursery garden, intersected by a village path. The new design preserves this path within the site boundary while integrating the two plots into a cohesive whole through connected second and third levels.
▼村落一侧,建筑形态依村落分布蜿蜒曲折,On the village side, the architectural form winds and curves in response to the distribution and layout of the village © 林边
▼建设前的场地,村道两侧为苗圃园与乡村工厂,The site before construction, with nursery gardens and rural factories on both sides of the village road © ConCom Studio
▼退让的场地关系,呼应的村庄肌理,Receding site relationship, echoing village fabric © 林边
建筑的首层和顶层的体量后退街面一定的距离,留出檐下空间和空中露台的同时,让近百米长的二层立面隐藏于梧桐树荫之后、脱离了地面、漂浮在空中。这样的处理使路过的行人观看建筑时,既感受到街面的连续性,又避免了一个大房子的压迫感。村落一侧,建筑的二层体量依场地边线蜿蜒曲折,嵌入了周围民居肌理中。二层屋面的栏杆高度控制在了10米左右,和传统村镇民居规划中的檐口控制高度保持了一致。虽然建筑体量因内部公共需求超越了普通民居很多倍,但由于建筑高度的控制,村民在村庄一侧行走时并不会时常感知到一个巨大的建筑,只有偶尔从村庄道路的缝隙中才能瞥见一个漂浮在空中、横向延展的平台。深色的屋顶露台上散落了七个金属坡顶的小房子,房子大小和间距类似于周边村庄肌理,从街对面的建筑里望过来, 被抬升的村落意向像是乡村地景的一种新存续。
The building’s ground floor and top-floor volumes are set back from the street, creating spaces under the eaves and open-air terraces, while the nearly hundred-meter-long second-floor façade is concealed behind the canopy of phoenix trees. This elevation detaches from the ground, appearing to float in mid-air. Such an approach allows passersby to perceive both the continuity of the street and a softened presence, avoiding the oppressive feeling of a large building. On the village side, the second-floor volume winds along the site’s boundary, seamlessly integrating into the surrounding residential fabric. The parapet height of the second-floor roof is controlled to around 10 meters, consistent with traditional eaves-height regulations in rural settlements. Although the building’s volume, driven by public program requirements, is many times larger than typical village houses, its controlled height ensures that villagers walking on the village side seldom perceive it as an overwhelmingly massive structure. Only occasionally, through gaps in the village lanes, do they glimpse a horizontally extended platform suspended in the air. On the dark rooftop terrace, seven small metal-roofed houses are scattered, their scale and spacing reminiscent of neighboring village clusters. When viewed from buildings across the street, this elevated village-like image appears as a new continuation of the rural landscape.
▼村落侧鸟瞰,Aerial View from the Village Side © 林边
▼黄郛东路侧鸟瞰,Aerial View from the Huangfu East Road Side © 林边
▼屋顶平台的七个小房子自然嵌入周围村庄肌理中,The seven small houses on the rooftop terrace are naturally integrated into the surrounding village fabric © 林边
▼黄郛东路、村道与建筑的关系,The Relationship between Huangfu East Road, the Village Path, and the Architecture © 林边
被解构的城乡二元对立(新乡村的空间策划)
Deconstructing the Urban-Rural Binary (Spatial Programming for a New Rurality)
莫干山镇的庾村是被全球化视野洗涤过的乡村,村中的生产、生活关系早已融入了全球网络。传统的农业经济一方面被更多元的经济活动所取代,另一方面也融入了大量的非人化的农业生产方式。村民与土地的关系,村民与游客的关系,村民与新的入住者的关系都在发生巨大的变化。这样的庾村是复杂多样,新旧交织,既有地域传统又和时代精神相结合的乡村。
Yucun Village in Moganshan Township is a rural area reshaped by a globalized perspective, where local production and daily life are deeply embedded within global networks. Traditional agricultural practices are being replaced by more diverse economic activities while simultaneously incorporating highly industrialized and impersonal modes of agricultural production. The relationships between villagers and the land, between villagers and tourists, and between villagers and new residents are undergoing significant transformations. Consequently, Yucun presents itself as a complex and diverse village—a juxtaposition of old and new, intertwining regional traditions with the spirit of the times.
▼黄郛东路上,居民房屋与柒峰院,Residential houses and 7Hills Yard on Huangfu East Road © 林边
▼村道/景观//公共阶梯/二层公共阳台/三层独立工作室,多种关系集合在景观庭院中,Village path / landscape / public staircase / second-floor public balcony / third-floor independent studios, multiple relationships gathered in the landscape courtyard © 林边
▼商店/檐下空间/办公走道/屋顶露台集合在硬地庭院中,Shops / covered eaves space / office corridor / rooftop terrace gathered in the hardscape courtyard © 林边
柒峰院在空间策划上定义的是一个新型的公共服务类空间,融合了办公孵化、产品展销、技能培训、社交生活的复合性功能,是为不同体量的产业类使用者提供的空间产品,也是一个探索乡村新生产、生活方式和新经济模式的实验地。
In terms of spatial programming, Qifeng Courtyard is conceived as a new type of public service space. It integrates composite functions such as office incubation, product exhibition and sales, skills training, and social interaction. This spatial product is designed for industrial users of varying scales and serves as a testing ground for exploring new modes of rural production, lifestyles, and economic models.
▼路演报告空间及延伸至三层的台阶空间,Pitch and presentation space and the stepped seating extending to the third floor © 林边
▼贯穿三层的电梯厅,Elevator lobby spanning three floors © 林边
▼三层小房子透过天窗洒向二层台阶空间的自然光,Natural light from the skylights of the third-floor small houses spilling into the second-floor stepped space © 林边
▼三层天窗与图书室台阶空间,Third-floor skylight and the library stepped seating space © 林边
开放共享的微缩城市(使用模式和平面、剖面的关系)
An Open and Shared Microcosmic City (The Relationship between Usage Patterns, Plan, and Section)
建筑首层,虚实体块相间布置,让建筑融入了周边村庄肌理。街道旁、村镇里的公共活动都能自然流入建筑内部。沿街为商业和展览功能,靠近村落则为内部使用的餐饮、茶歇和快递收发的空间。
▼村庄公共肌理与私人院落肌理关系,
Relationship between village public fabric and private courtyard fabric © ConCom Studio
▼建筑体量推敲过程,Building massing study process © 徐若彤
On the ground floor of the building, solid and void masses are arranged alternately, allowing the architecture to blend into the surrounding village fabric. Public activities from the streets and the village naturally flow into the interior. Functions facing the street include commercial and exhibition spaces, while areas closer to the village accommodate internally used amenities such as dining, tea breaks, and parcel handling.
▼整合了村道的景观庭院,Landscape courtyard integrating the village path © 林边
▼可自由拆分的弧形长桌,Freely divisible curved long table © 林边
二层平面更像是微缩版的城市,多样的肌理容纳了多种办公形态,围绕庭院的动线把不同形态的空间开放兼容地串联起来。设计初始只有空间策划和设计师的参与,在真正的使用者无法被锁定的情况下,在空间设计上我们借鉴了产品设计的逻辑。我们根据不同的使用需求把硬软装的设计融进桌椅、储藏、茶水、打印、剪报和隔断等不同的系统性设计中。通过全覆盖式系统、站点式系统和可变更系统分类布置的方式产生不同的工作使用场景。其中,固定工作室为长期团队提供办公空间,创意仓库为小组单元定期变化的团队提供多变的可能性,灵感营地为可分可和的工作模式提供最大的灵活性、个人工作站则是最小单元的封闭式固定空间。
The second-floor plan resembles a miniature city, where diverse textures accommodate various office layouts. Circulation around the courtyard openly and compatibly links spaces of different forms. During the initial design phase, only spatial programming and the designers were involved. As actual users could not be predetermined, we adopted a product design logic in the spatial design. Based on different usage needs, we integrated the design of hard and soft furnishings into various systematic elements such as tables, chairs, storage, tea stations, printing areas, bulletin boards, and partitions. Different work scenarios were created through the categorized arrangement of fully integrated systems, station-based systems, and adaptable systems. Among these, fixed studios provide office spaces for long-term teams; creative warehouses offer flexible possibilities for teams with periodically changing small units; inspiration camps provide maximum flexibility for separable and combinable work modes; and individual workstations represent the smallest enclosed and fixed units.
▼二层西侧设置的单人办公空间,阳台外为一株现状的大香樟树,Single-person workspace set on the west side of the second floor, with a large existing camphor tree outside the balcony © 林边
▼南侧角部空间形成的休憩场所/南侧长桌区域绿色地贴与室外绿色窗景,Rest area formed at the southern corner space / Green floor graphics in the southern long table area and the green window view outdoors © 林边
▼阳台分隔墙与香樟树,Balcony partition wall and the camphor tree © 徐若彤
顶层设置的是独栋的工作室区域,每个工作室可从一层的独立楼梯直接进入,也可通过公共中庭到达共享露台再步入。站在3000平方米的共享露台上环绕四周,远眺山上百年历史建筑群落,近看山脚下人间烟火。柒峰院为庾村提供了一个全新的观察周边风景的公共视角。
The top floor is designed as a standalone studio area. Each studio can be accessed directly via an individual staircase from the ground floor or reached through the public atrium, leading to the shared terrace before entering. Standing on the 3,000-square-meter shared terrace, one can take in the surrounding views—gazing into the distance at the century-old architectural clusters on the mountain and looking down at the vibrant daily life at its foothills. Qifeng Courtyard offers Yucun Village a fresh public perspective to observe the surrounding landscape.
▼三层露台零散分布的独栋工作室,Independent studios scattered across the third-floor terrace © 林边
▼二层的出挑阳台,三层的独栋办公以及层层叠叠的远山构成不同层次的屋顶视野,
The cantilevered balconies on the second floor, the independent studios on the third floor,
and the layered distant mountains create a multi-layered roofscape view © 林边
▼西侧露台看向东侧工作室,View from the west terrace towards the studios on the east side © 林边
▼东侧露台看向西边远山,View from the east terrace towards the distant western mountains © 林边
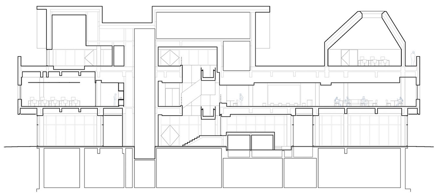
建筑平面布局两个庭院用于处理该建筑巨大的进深,一个庭院以硬质铺装,用于吸纳日后的室外活动;一个庭院被植被覆盖的同时容纳了原有的村道。建筑剖面布局两个中庭贯通不同楼层的光线及视线交流,一个中庭布置了主要电梯厅和仪式性楼梯,顶层和首层侧面的散射光为中庭提供了良好的光源;一个中庭连接了二层路演和三层图书馆空间,仪式性的顶部采光为二层的大平层提供了向上行走的指引。两个中庭都在紧凑的尺度中创造了更多样的公共性互动。▼横剖面,cross section © ConCom Studio
In the building’s plan layout, two courtyards are used to address its significant depth: one courtyard is paved with hardscape to accommodate future outdoor activities, while the other remains vegetated, also incorporating the existing village path. In the building’s section design, two atriums facilitate visual and light connections across different floors: one atrium houses the main elevator lobby and a ceremonial staircase, illuminated by diffused light from the top floor and side openings on the ground floor; the other atrium links the second-floor roadshow space with the third-floor library, with its ceremonially designed top lighting providing upward visual guidance for the expansive second-floor layout. Both atriums create richer and more diverse opportunities for public interaction within a compact scale.
▼景观庭院消解村路对建筑的影响,并置入通向二层的外部竖向交通,The landscape courtyard mitigates the impact of the village path on the building and incorporates external vertical circulation leading to the second floor © 林边
▼透明商铺,自由入口,压低的檐下空间,二层秩序感的走道空间在庭院中汇集,Transparent shops, free entrances, lowered eaves spaces, and the ordered corridor space of the second floor converge in the courtyard © 林边
▼二层室外阳台看景观庭院,View of the landscape courtyard from a second-floor outdoor balcony © 林边
▼三层露台看景观庭院,View of the landscape courtyard from the third-floor terrace © 林边
▼三层露台看被村路贯穿的庭院与远山,View from the third-floor terrace of the courtyard traversed by the village path and the distant mountains © 林边
▼三层顶部倾泻的自然光与蜿蜒向上的内部钢楼梯,Natural light pouring from the top of the third floor and the path upward internal steel staircase © 林边
▼二层路演空间与电梯厅,Second-floor presentation space and elevator lobby © 林边
▼路演报告空间及延伸至三层的台阶空间,Pitch and presentation space and the stepped seating extending to the third floor © 林边
▼天光倾泻入室内空间的光影变化,Changing light and shadow as daylight pours into the interior space © 徐若彤
机动(灵活变化的家具模块)
Mobility (Flexible and Transformable Furniture Modules)
机动是一个有趣且浪漫的概念,看似没有目标,吊儿郎当,可一旦出现特殊情况,却能发挥巨大作用。把这个概念转化到空间层面,即物件可以移动,是从a地到b地的旅行,也是随时随地的停留;在物件层面,则是可以改变自身形态,拓展功能的最小单元,满足不同的应用场景,有点像瑞士军刀,一个个小零件,解决了各种日常的小任务。灵活变化的家具模块构成了Archizoom Associati在 No-Stop City模型中设想的无限连续,通用中性,用户自组织的空间策略。
▼创意仓库区域门扇变化/内部划分变化动态图示,Diagram showing door panel changes / internal partition changes in the creative warehouse area © ConCom Studio
▼办公盒子灵活组合方式动态图示,Dynamic illustration of flexible configurations for office pods © ConCom Studio
Mobility is an intriguing and romantic concept. It may appear aimless, idle, or even frivolous on the surface, yet in unexpected situations, it can play a remarkably significant role. Translating this concept into the realm of space means that objects can move—traveling from point A to point B, yet also pausing wherever and whenever needed. At the level of objects, it refers to the smallest functional units capable of transforming their forms and expanding their uses to adapt to different scenarios, much like a Swiss Army knife, where each small tool addresses various everyday tasks. These flexible and transformable furniture modules embody the spatial strategy envisioned by Archizoom Associati in theirNo-Stop Citymodel—an infinitely continuous, universally neutral, and user-self-organized environment.
▼南侧磁吸白板门打开过程动态图示,Diagram showing the opening process of the southern magnetic whiteboard doors © 林边
▼单元办公与茶水及打印系统,Unit Office, Pantry, and Printing System © 林边
▼灵感营地区域组合方式动态图示,Dynamic diagram showing combination methods in the inspiration camp area © 林边
▼办公盒子不同的的朝向/就座位置,Different Orientations / Seating Arrangements of Office Pods © 徐若彤
▼内部单元式灵活布置办公区域,Internally, unit-based flexibly arranged office area © 林边
▼移动书柜及家具安装后的内部办公氛围,Internal office ambiance with mobile bookshelves and furniture installed © 徐若彤
▼书柜及家具移动过程图示,Illustration of the Movement Process for Bookshelves and Furniture © 林边
▼南侧转门完全打开与正对景观庭院的落地窗竖挺形成序列感,
When the south pivoting door is fully opened, it creates a rhythmic sequence
with the mullions of the floor-to-ceel windows facing the landscape courtyard © 林边
▼南侧走道看向北侧走道,View from the south corridor towards the north corridor © 林边
▼北侧通道配备书柜/长条书桌/沙发,营造舒适的走道空间,The north passage is equipped with bookshelves, a long desk, and sofas, creating a comfortable corridor space © 林边
集镇入口的异化者(体量、立面材料)
The Alien Element at the Town Entrance (Massing and Facade Materials)
柒峰院落位在山脚下集镇密集区的入口处,二层大体量的立面材料采用了灰色水洗石和局部银灰色金属板。整体氛围在强调手工材料温润质感的同时点缀了确保构造性能的工业材料。沿街和靠村的立面设计结合内部功能需求,以大幅玻璃固定扇,金属实板开启扇、出挑阳台、内凹阳台及前面一体化露台栏杆等元素协调立面节奏及观感,塑造出简洁优雅的轮廓。内部庭院的立面则以压低的金属穿孔吊顶、竖向落地玻璃分割,金属栏杆和局部出挑露台等元素,塑造出动静各异的两个庭院。
Qifeng Courtyard is situated at the entrance to the dense town area at the foot of the mountain. The facade of its large second-floor volume is clad in grey washed stone, punctuated by sections of silver-grey metal panels. The overall atmosphere emphasizes the warmth and texture of handcrafted materials while incorporating industrial elements that ensure structural performance. The facade designs facing the street and the village respond to internal functional needs, utilizing elements such as large fixed glazing, operable metal panels, cantilevered balconies, recessed balconies, and integrated terrace railings to harmonize the rhythm and appearance of the facade, creating a clean and elegant silhouette. The facades of the internal courtyards, on the other hand, are defined by low-hanging perforated metal ceilings, floor-to-ceiling glass divisions, metal railings, and partially protruding terraces, shaping two courtyards with distinctly different atmospheres—one dynamic and the other tranquil.
▼集散中心远眺柒峰院与山峦,View of 7Hills Yard and the mountain ranges from the distribution center © 徐若彤
▼首层内退的通透玻璃商铺,二层水洗石立面开金属窗及凸出阳台,三层金属小房子与梧桐和谐相处,Receding site relationship, echoing village fabric © 林边
▼形态回应周边村庄肌理,Form responding to the surrounding village fabric © 林边
▼周边村庄缝隙中漂浮的水洗石二层立面及三层坡顶小房子,The floating washed stone second-floor facade and third-floor pitched-roof small houses seen through gaps in the surrounding village © 林边
▼直立锁边铝镁锰板立面、内庭院金属栏杆,外立面水洗石栏杆,Standing seam aluminum-magnesium-manganese panel facade; inner courtyard metal railings; external facade washed stone parapet © 林边, 徐若彤
▼水洗石、银灰色金属、铝镁锰板、超白玻璃,集中材质和谐统一,Washed stone, silver-grey metal, aluminum-magnesium-manganese panels, ultra-clear glass—the collected materials harmonize and unify © 徐若彤
▼实体模型,东北角鸟瞰,Physical model, aerial view from the northeast corner © 徐若彤
▼实体模型,沿街立面,Physical model, street facade © 徐若彤
▼总平面,site plan © ConCom Studio
▼首层平面,ground floor plan © ConCom Studio
▼二层平面,first floor plan © ConCom Studio
▼三层平面,third floor plan © ConCom Studio
▼立面图 北,elevation north © ConCom Studio
▼立面图 南,elevation south © ConCom Studio ▼立面图 东,elevation east © ConCom Studio
▼立面图 西,elevation west © ConCom Studio
▼纵剖面,longitudinal section © ConCom Studio
项目名称: 莫干·庾街 — 柒峰院·莫干山洋家乐品牌中心
项目类型:城市设计/建筑/景观/室内
项目地点:浙江省德清县莫干山镇
设计单位:ConCom 集良建筑事务所
主创建筑师: 王惟捷、徐亮
项目建筑师:叶凯
设计团队完整名单:王惟捷、徐亮、叶凯、徐若彤、马嫣、颜博达、胡文清、马荣昭
建设单位:德清县文化旅游发展集团有限公司
建筑造价:3500万
室内造价:1300万
建成状态:建成
城市设计时间(起迄年月):2020-2021
建筑设计时间(起迄年月):2021-2022
室内设计时间(起迄年月):2023-2024
建筑+室内建设时间(起迄年月):2023-2025
用地面积(平方米):6050
建筑面积(平方米):7931
设计统筹:+群
项目策划:Urbaneer都市工作群
建筑施工图:悉地 (苏州)勘察设计顾问有限公司
结构施工图:悉地 (苏州)勘察设计顾问有限公司
建筑施工单位:浙江大东吴集团建设有限公司
室内施工图:上海大朴室内设计有限公司
照明施工图:上海大朴室内设计有限公司
室内施工单位:浙江振升建设有限公司
家具品牌:上海阿旺特家具有限公司
摄影师:林边、徐若彤
Project information
Project Name : Mogan Yujie —7Hills Yard · Hillstation Brand Center
Project Type : Urban Design / Architecture / Landscape / Interior
Project Location : Moganshan Town, Deqing County, Zhejiang Province, China
Design Firm : ConCom Studio
Firm Website :
Principal Architect(s) : Wang Weijie, Xu Liang
Project Architect : Ye Kai
Complete Design Team List : Wang Weijie, Xu Liang, Ye Kai, Xu Ruotong, Ma Yan, Yan Boda, Hu Wenqing, Ma Rongzhao
Construction Client : Deqing County Cultural Tourism Development Group Co., Ltd.
Construction Cost : 35 Million RMB
Interior Decoration Cost : 13 Million RMB
Completion Status : Built
Urban Design Period (Start-End Year/Month) : 2020-2021
Architectural Design Period (Start-End Year/Month) : 2021-2022
Interior Design Period (Start-End Year/Month) : 2023-2024
Construction Period for Architecture & Interior (Start-End Year/Month) : 2023-2025
Site Area (sq.m) : 6050
Gross Floor Area (sq.m) : 7931
Design Coordination : + Group
Project Planning : Urbaneer
Architectural Construction Drawings: CCDI (Suzhou) Survey & Design Consultants Co., Ltd.
Structural Construction Drawings : CCDI (Suzhou) Survey & Design Consultants Co., Ltd.
Architectural Construction Contractor : Zhejiang Dadongwu Group Construction Co., Ltd.
Interior Construction Drawings : Shanghai DopDesign Co., Ltd.
Lighting Construction Drawings: Shanghai DopDesign Co., Ltd.
Interior Construction Contractor: Zhejiang Zhensheng Construction Co., Ltd.
Furniture Brand: AVARTE
Photographer(s): Lin Bian, Xu Ruotong
Tencent Video Link (if any):
Video Copyright: ConCom Studio
客服
消息
收藏
下载
最近

































































