查看完整案例

收藏

下载

翻译
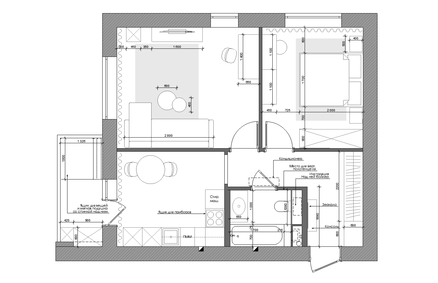
Проект квартиры для молодой пары. Квартира небольшая. Планировку менять нельзя было. И нужно было разместить многое (в частности в ванной) в эту маленькую площадь...Заказчикам по 26 лет. Девушка хоть и молодая, но консервативных взглядов и любит классику. Ее молодой человек более прогрессивный по натуре и любит все новое. Она более вдумчивая и спокойная. Занимается домом и танцами Frame. Он тренер по тайскому боксу, горяч и более динамичен в жизни. Постоянно взаимодействует с другими людьми
7 СЛОЕВ
Перед началом составления коллажа для комнат,
я подбираю все элементы
1 - потолок и стены
2 - напольные покрытия
3 - различная мебель (диваны, кровати, стулья, пуфики и т.д.)
4 - ткани (подушки, ковры, шторы и т.д.)
5 - корпусная мебель (шкафы, кухни, тумбы, консоли, комоды и т.д.)
6 - декор и искусство
7 - свет
Концепция Коллаж гостиной
Всё бы хорошо, но в какой то момент у меня встал вопрос: "А двери шкафа откроются напротив люстра?"... На самом деле, посмотрев на план, достаточно было немного скорректировать сам шкаф по размерам. В самом конце прихожей я добавил глухую часть. Из-за чего ширина дверки немного уменьшилась. В общем теперь есть зазор в 3см между дверью и потолочным светильником...Отдельно рад, что нашел интересные ручки под образ листка дерева. Которые потом мы перекрасили в приглушенный красный цвет.
THANKS FOR WATCHING
+7 913 980 3052
telegram
pinterest
客服
消息
收藏
下载
最近




































