查看完整案例

收藏

下载
评事街作为南京重要的历史风貌区,是老城南的缩影,它至今仍保留了丰富的文化记忆和市井生活气息。二十春立基于此,试图在老城南的历史肌理中植入一个具有当代公共性的社区节点。其价值在于绵延市井的活力。
设计的核心是通过在地转译,将场地记忆、市井生活与当代休闲需求交织,营造一个既能融入老街巷日常纹理,又能激发社区活力的“街角公园式”咖啡馆。
入口处的葫芦门洞源于传统中式园林的符号简化,它以一种近乎“笨拙”的、带有手工感的形态出现,暗示着内部空间的轻微超现实感。
外墙选用与周边老民居楼相似的马赛克,它是八九十年代最常见的外墙材料之一。我们试图以材料的时间对话使新体量在肌理上嵌入街区。
室内挑高了一处转角平台,并在窗边设置老公园里的木制“美人靠”。这一设计旨在使室内楼梯过渡到二楼的区域有缓冲和休憩的余地;同时创造闹市中的“凭栏远眺”。临窗坐位主动引导“晒太阳”这一极具市井生活气息的行为,将原本私密的咖啡消费转化为可观看、可参与的街道生活场景。
二楼
‘宝物饭局’是品牌对本地菜的新尝试,视觉呈现上延续了一楼活泼中式的表达。以一种介于碧色和翠色之间的醽绿贯穿整个垂直面,结合舒展的枝条,在旧木中透着生机。靠窗一侧的白色坡屋顶未作过多干预,以保证室内开阔疏朗的轻松氛围。靠墙的半坡顶我们以木饰面平行于屋面局部包裹,一是为了遮蔽背后的消防管道,同时以屋面做装饰简化墙面过于琐碎的表达。
我们希望设计能够最终超越咖啡馆和餐厅的商业本体,最终塑造一个具有吸附力的社区公共空间。
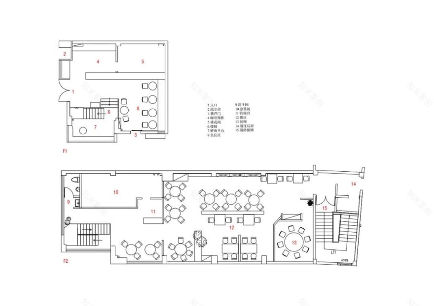
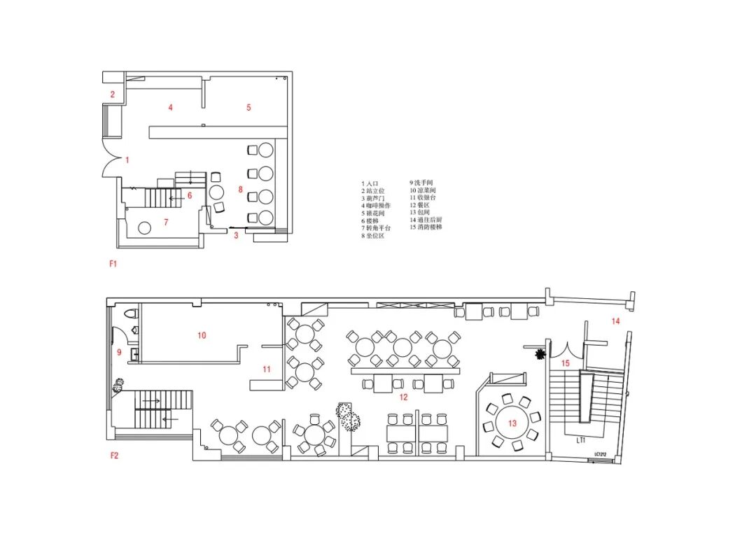
PLAN 平面布局图▽
项目名称|二十春&宝物饭局
设计公司|南京拙木空间设计
设计主创|吴媛媛
施工时间|2025.10 - 2025.12
项目地址|熙南里皮士街,南京
建筑面积|240㎡
摄影版权|黑曜石
主要材质|钢板、旧木、马赛克、地坪漆
吴媛媛 南京拙木空间设计创始人兼设计师
发现中国好设计 发现100年度设计师
拙木空间设计是一家专注于商业和住宅空间的设计事务所。我们试图以人物活动为出发去思考空间的边界,不断探索人的感性张角和空间的生动性。同时,我们以“拙”为美学坐标,打磨技巧也试图超越技巧,从而赋予对事物恒定的执着与热爱。
客服
消息
收藏
下载
最近































