查看完整案例

收藏

下载
村城中的校园
Campus in a Village-Town
新洲是深圳福田中心区南侧重要的居住生活区,多年的商住与城中村并置,丰富的城市肌理形成多样的社区与街道生活。本人早年落脚深圳,也曾在新洲居住7年,它或许不够“美观”,不够“高效”,却提供了标准化城市开发中日益稀缺的东西:生活的偶然性、社会的多样性、空间的包容性与成长的有机性,这里是一面诚实的镜子,映照出一座超级城市在宏伟叙事之下,细腻而坚韧的日常生活原力。
© 在场造象
Xinzhou, located on the south side of Futian Central Area in Shenzhen, is an important residential and living district. Over the years, it has developed a unique blend of commercial, residential, and urban village spaces. This rich urban fabric has fostered diverse communities and vibrant street life. Having settled in Shenzhen early on, I once lived in Xinzhou for seven years. It may not be the most “aesthetic” or “efficient” area, yet it offers something increasingly rare in standardized urban development: the unpredictability of life, social diversity, spatial inclusivity, and organic growth. It serves as an honest mirror, reflecting the delicate yet resilient daily life pulsating beneath the grand narrative of a megacity.
▼鸟瞰,aerial view © 樊钊明
▼半鸟瞰,semi aerial view © 樊钊明
场地西南侧福强路是城市主干道,噪音较大。西北新洲五街,东北侧新洲七街为城市支路,是建筑组织出入的主要界面。项目整体容积率2.26,是深圳高密度校园的典型。规避噪音,“上天下地”寻找空间,很快通过多方案比较得到了一个较为理性的总体布局,随后便展开建筑的设计。
▼场地分析,site analysis © 悉地国际东西影工作室
To the southwest of the site, Fuqiang Road is an urban trunk road that generates significant noise. Northwest Xinzhou Fifth Street and northeast Xinzhou Seventh Street, as urban branch roads, serve as the primary access interfaces for the building complex. With a total floor area ratio (FAR) of 2.26, the project is a typical high-density campus in Shenzhen. To mitigate noise impact and explore spatial potential both vertically and underground, a rational overall layout was efficiently developed through comparative evaluation of multiple schemes, followed by the detailed architectural design.
▼人视,human-eye view © 樊钊明
▼多空系统与周边对话,dialogue between multi-space system and surroundings © 樊钊明
开放共享式教育
Open and Shared Education
开放式学校出现在上世纪50年代美国,它打破年级界限,把各式电子教学设施集中起来形成全校的教学情报资料中心。这个空间通常布置在校园平面的中心部位, 形成一个多功能综合性的“学习中心”。
▼概念草图,concept sketch © 悉地国际东西影工作室
Open schools emerged in the United States in the 1950s. They transcended grade-level boundaries and consolidated various electronic teaching facilities to form a school-wide teaching information and resource center. This space was typically situated at the heart of the campus layout, creating a versatile and multifunctional “learning center”.
▼半鸟瞰,semi aerial view © 樊钊明
▼半鸟瞰,semi aerial view © 樊钊明
绿洲小学的设计以“U”型半围合的院子为类型作为空间原型,普通教室单元布置在周边,把所有共享功能,绿化围绕中庭展开,形成一个开放共享教育的发生场地。
The design of Oasis Primary School adopts the “U”-shaped semi-enclosed courtyard as its spatial prototype. Standard classroom units are arranged around the perimeter, while all shared functions and greenery are organized around the central courtyard, forming a venue for open and shared education.
▼首层架空层,ground-floor elevated level © 樊钊明
▼首层活动层,ground-floor activity level © 樊钊明
▼走廊通道,corridor passage © 樊钊明
▼首层活动空间,ground-floor activity space © 朱雄毅
中央庭院不仅是视觉焦点,更是学校各类活动的核心舞台。图书馆、报告厅、体育馆、游泳馆、艺术教室、科学实验室等共享功能空间面向庭院开放,使学习从封闭的教室延伸到整个校园。这种布局鼓励跨年级交流、激发偶然相遇与知识碰撞,将“开放教育”理念具象化为可感知、可体验的空间现实。
The central courtyard serves not only as a visual focal point but also as the core stage for a variety of school activities. Shared functional spaces—such as the library, auditorium, gymnasium, swimming pool, art classrooms, and science labs—open onto the courtyard, extending learning beyond enclosed classrooms to encompass the entire campus. This layout encourages interaction across grade levels, sparks spontaneous encounters and intellectual exchanges, and materializes the concept of “open education” into a tangible, experiential spatial reality.
▼图书馆室内照片,library interior photo © 樊钊明
▼图书馆采光天窗,library daylight skylight © 樊钊明
▼负一层内庭院,basement level -1 inner courtyard © 方芳
▼食堂室内照片,canteen interior photo © 袁小宜
▼体育馆室内照片,gymnasium interior photo © 方芳
▼游泳馆室内照片,swimming hall interior photo © 樊钊明
多零层活动平台 Multi-Zero-Level Activity Platform
通过水平楼板组织活动空间,强调建筑的水平性,楼板截面整合空调、设备管线,形成一块纯粹的“板”,层与层交错,富有变化。
Activity spaces are organized through horizontal floor plates, emphasizing the building’s horizontality. The floor plate section integrates air-conditioning and equipment pipelines, forming a pure “plate.” The interlocking layers create a dynamic and varied vertical composition.
▼半鸟瞰,semi aerial view © 樊钊明
▼半鸟瞰,semi aerial view © 方芳
课间十分钟通常被认为是“无法有效利用的碎片时间”,但在绿洲小学,这段短暂的时间被赋予了新的价值。学生只需几步就能从教室来到平台,享受阳光、新鲜空气和短暂的游戏。这种设计深刻理解儿童行为特征——他们需要频繁的休息和活动来维持注意力,而非长时间困在固定座位上。
▼轴测图,axonometric drawing © 悉地国际东西影工作室
The ten-minute recess is often dismissed as “fragmentary time that cannot be effectively utilized.” Yet at Oasis Primary School, this brief interval is reimagined as a valuable opportunity. Students can reach the outdoor platforms in just a few steps from their classrooms, where they enjoy sunlight, fresh air, and short bursts of play. This design reflects a deep understanding of children’s behavioral needs—recognizing that sustained focus relies on frequent breaks and movement, rather than remaining confined to fixed seats for long periods.
▼鸟瞰,aerial view © 方芳
▼活动平台,activity platform © 方芳
垂直维度的平等化:传统教学楼中,高层班级的学生往往难以在课间到达地面活动场地。多平台设计消除了这种垂直不平等,确保每个学生,无论所在楼层高低,都能平等享受活动空间。这些平台不仅是过渡区域,更是小型社交中心、临时展览空间和非正式学习场所,极大地丰富了校园生活的层次。
Equalization of the Vertical Dimension: In traditional teaching buildings, students on higher floors often struggle to reach ground-level activity areas during breaks. Multi-platform design eliminates this vertical inequality, ensuring that every student, regardless of their floor, has equal access to activity spaces. These platforms serve not only as transitional zones but also as mini social hubs, temporary exhibition spaces, and informal learning areas, greatly enriching the layers of campus life.
▼操场人视,playground human-eye view © 樊钊明
▼庭院,courtyard © 樊钊明
▼通高空间,double-height space © 樊钊明
同时,我们在这些平板之中“随意”放置了若干的“异物”,与学生相遇,成为日常的“玩具”。
At the same time, we have “casually” placed several “foreign objects” within these platforms. They encounter students and become everyday “toys”.
▼旋转楼梯,spiral staircase © 袁小宜
▼旋转楼梯,spiral staircase © 方芳
多孔、开放的校园
A porous and open campus
在深圳湿热的气候条件下,多孔设计促进了自然通风和散热。错落有致的开口形成风道,引导气流穿越建筑群;遮阳设施与绿植结合,创造了舒适的微气候。这种设计既降低了能耗,也让学生亲身体验可持续设计的价值。
In Shenzhen’s hot and humid climate, a porous design promotes natural ventilation and passive cooling. Strategically placed openings form wind channels that guide airflow through the building complex, while integrated shading facilities and vegetation create a pleasant microclimate. This approach not only reduces energy consumption but also allows students to gain a hands-on understanding of the value of sustainable design.
▼内庭院,inner courtyard © 袁小宜
▼屋顶构件,roof component © 袁小宜
▼屋顶构件,roof component © 王照明
▼楼梯通道,stair passage © 方芳
▼楼梯通道,stair passage © 朱雄毅
高密度之后
After high density
在深圳持续演进的新校园建设中,应对高密度挑战的设计策略已日趋完善,形成一套成熟而富有弹性的“工具包”。高密度不再必然指向压抑与单调,反而能被转化为塑造场所特色、激发空间潜力的独特机遇。
In the ongoing evolution of Shenzhen’s new campus construction, design strategies for tackling high-density challenges have matured into a sophisticated and flexible “toolkit”. High density no longer necessarily implies congestion and monotony; instead, it can be transformed into a unique opportunity to shape distinctive site character and unlock spatial potential.
▼人视,human-eye view © 朱雄毅
解决高密度问题之后,我们的目光终究需要回归到教育与空间的本质关系上。通过多次的回访与观察,我们发现这所嵌入城中村的校园,其内在气质似乎也悄然浸润着新洲社区特有的环境氛围。在这里,过度的管控与约束悄然退场,取而代之的是一份自然而生的自由与轻松。令人欣慰的是,这种氛围让空间的使用方式,在很大程度上贴近了设计最初的构想与期待——空间与行为之间,呈现出一种少见的、良性而活泼的默契。
After addressing high-density challenges, our focus must ultimately return to the fundamental relationship between education and space. Through multiple follow-up visits and observations, we have found that this campus embedded in the urban village seems to subtly embody the distinctive environmental ambiance of the Xinzhou community. Here, excessive control and rigid constraints quietly give way to a naturally emerging sense of freedom and ease. It is encouraging to see that this atmosphere allows the actual use of the space to align closely with the original design intentions and expectations—revealing a rare, positive, and dynamic synergy between space and behavior.
▼报告厅室内照片,lecture hall interior photo © 廖洪锋
▼施工过程,construction process © 王照明
▼施工过程,construction process © 朱雄毅
▼工作模型照片-方案对比,working model photo – scheme comparison © 悉地国际东西影工作室
▼模型照片,model photo © 悉地国际东西影工作室
▼总平面图,master plan © 悉地国际东西影工作室
▼负二层平面图,basement level -2 plan © 悉地国际东西影工作室
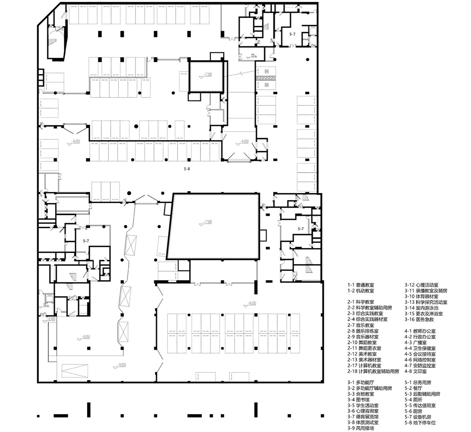
▼负一层平面图,basement level -1 plan © 悉地国际东西影工作室
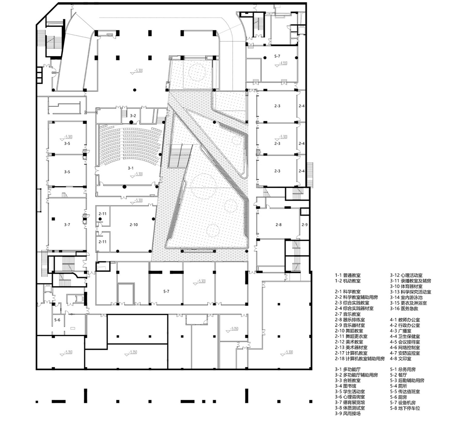
▼一层平面图,first-floor plan © 悉地国际东西影工作室
▼二层平面图,second-floor plan © 悉地国际东西影工作室
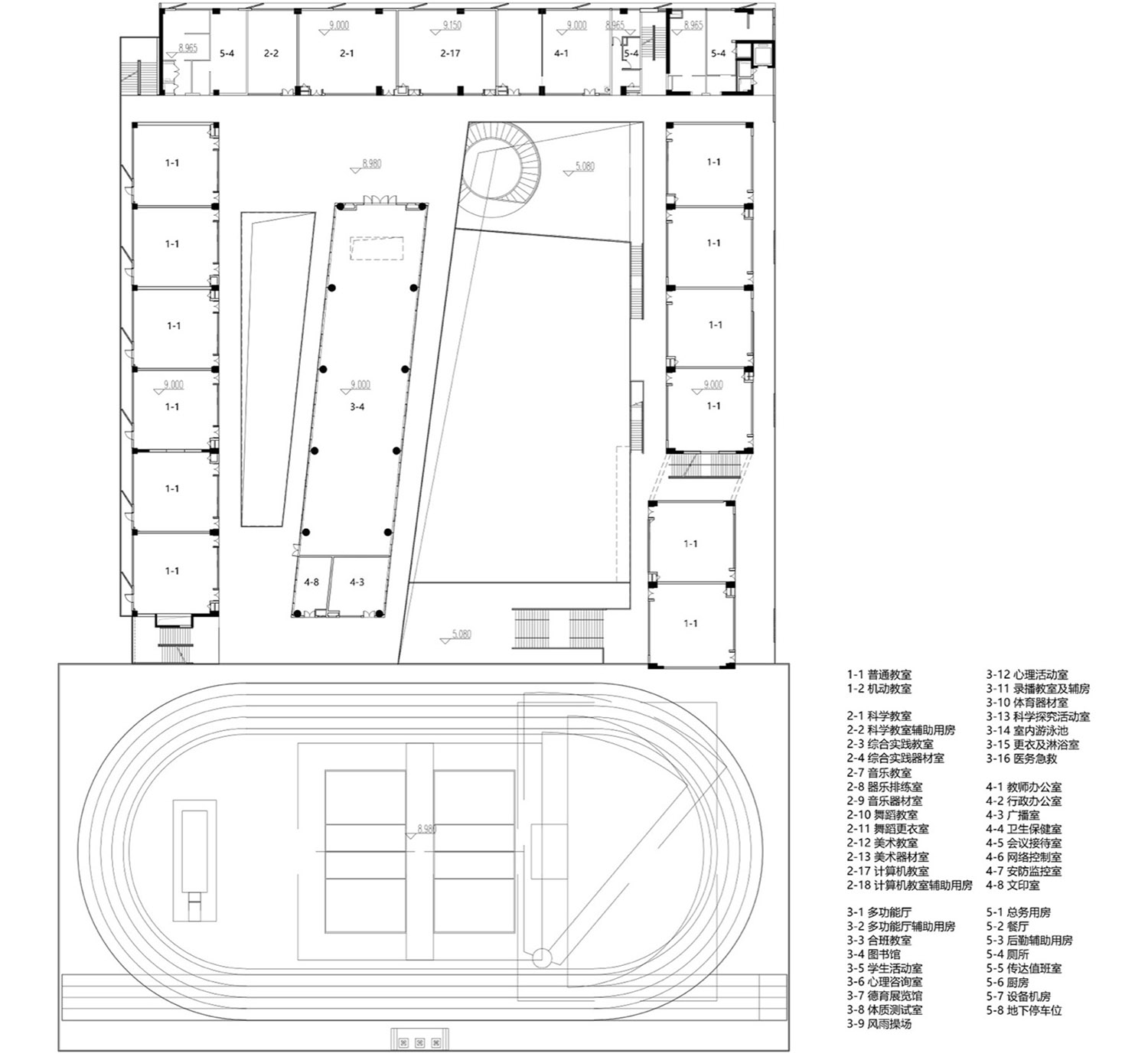
▼三层平面图,third-floor plan © 悉地国际东西影工作室
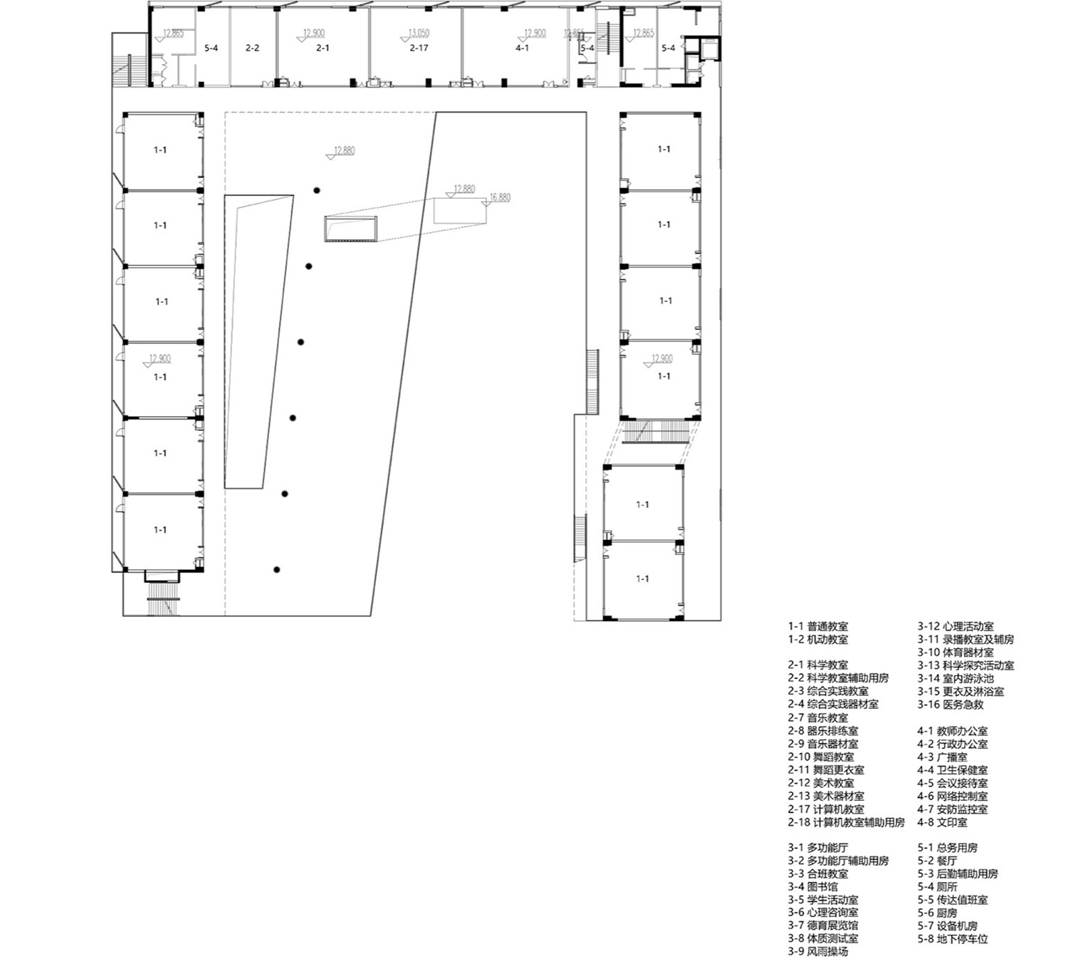
▼四层平面图,fourth-floor plan © 悉地国际东西影工作室
▼五层平面图,fifth-floor plan © 悉地国际东西影工作室
▼六层平面图,sixth-floor plan © 悉地国际东西影工作室
▼屋顶平面图,roof plan © 悉地国际东西影工作室
▼南北剖视图,north–south section © 悉地国际东西影工作室
▼东西剖视图,east–west section © 悉地国际东西影工作室
▼弧形天窗&空调节点,curved skylight & air-conditioning detail © 悉地国际东西影工作室
项目名称:深圳绿洲小学
建筑设计:悉地国际东西影工作室
设计时间:2019
竣工时间:2024年
建筑面积:35985平方米
项目位置:深圳市福田区新洲七街191号
建设单位:深圳市福田区建筑工务署
主持建筑师:朱雄毅、王照明
设计团队(人名): 余陈华、廖洪锋、林华妹、罗哲志、薛梦琦、夏坚强、詹文泽、林兆锦
总图:曹韶辉、杜国涛、高彤
结构:孙素文、黄建羽、王文涛、刘威、罗涛
机电:朱永斌、杨德志、姚京辉、刘康荣、张维业、杨纪超、康少军、黄嘉伟、刘俊、谭晓军、唐平成、陈多纳
幕墙:方志江、刘志鹏、刘洋、陈武林
造价:朱赛花
景观:汪春厚、伍艳瑜、杨丽娟、陈诚、戴超、崔敏、黄燚、鄢小娜
室内:深圳卓艺装饰设计工程有限公司
标识:深圳市自由空间标识有限公司
摄影:樊钊明、方芳、朱雄毅、袁小宜、王照明、廖洪锋
Project name: Shenzhen Futian Lvzhou Primary School
Project type: Educational Architecture
Design: CCDI DongXiYing Studio
Design year:2019
Completion Year:2024
Leader designer & Team: Leader Designer: Zhu Xiongyi, Wang Zhaoming Design Team: Yu Chenhua, Liao Hongfeng, Lin Huamei, Luo Zhezhi, Xue Mengqi, Xia Jianqiang, Zhan Wenze, Lin Zhaojin
Master Plan: Cao Shaohui, Du Guotao, Gao Tong
Structure: Sun Suwen, Huang Jianyu, Wang Wentao, Liu Wei, Luo Tao
MEP: Zhu Yongbin, Yang Dezhi, Yao Jinghui, Liu Kangrong, Zhang Weiye, Yang Jichao, Kang Shaojun, Huang Jiawei, Liu Jun, Tan Xiaojun, Tang Pingcheng, Chen Duona
Curtain Wall: Fang Zhijiang, Liu Zhipeng, Liu Yang, Chen Wulin
Cost Estimation: Zhu Saihua
Landscape: Wang Chunhou, Wu Yanyu, Yang Lijuan, Chen Cheng, Dai Chao, Cui Min, Huang Yi, Yan Xiaona
Project location:No. 191, Xinzhou 7th Street, Futian District, Shenzhen City, Guangdong Province, China
Gross built area: 35985㎡
Photo credit: Fan Zhaoming, Fang Fang, Zhu Xiongyi, Yuan Xiaoyi, Wang Zhaoming, Liao Hongfeng
Partner: Shenzhen Zhuoyi Construction Decoration Engineering Co., Ltd. (Interior Design) Shenzhen Free Space Sign Co., Ltd.(Signage Design)
Clients:Shenzhen Futian District Construction Works Authority
客服
消息
收藏
下载
最近







































































