查看完整案例

收藏

下载
在2020年9月,我们第一次探访郎酒集团位于二郎镇的总部。刚从高速驶下,就被整个赤水河谷雄浑的景观、暗调的色彩,和强烈的地势变化所震撼。跨过赤水河时,湿润的空气裹挟着浓烈的酒香扑面而来,湿度与气味的叠加,仿佛让身体直接感知此地之风土。二郎镇临河而建,人们想尽办法压榨土地的使用,多年来,整个河谷慢慢转变为一种生产和劳作浑然一体的景观。
In September 2020, we first visited the headquarters of Lione Group in Erlang Town. Just after exiting the highway, we were struck by the majestic scenery of the entire Chishui River Valley, its dark hues, and the dramatic changes in terrain. As we crossed the Chishui River, the humid air, laden with the strong aroma of liquor, enveloped us. The combination of humidity and scent seemed to directly connect our bodies to the local terroir. Erlang Town is built along the river, with people making the most of the limited land. Over the years, the entire valley has gradually transformed into a landscape where production and labor are seamlessly integrated.
▼从厂区鸟瞰,aerial view from the factory area © 存在建筑
▼从县道上方鸟瞰,aerial view from above the county road © 存在建筑
我们的基地位于公路转角,废旧的民房紧贴公路,形成逼仄的城市空间,然而民房的背后一侧是悬崖,有着三十米的高差,河谷景观一览无余。自然之力雄浑强大,然而人们劳作的力量更为持久,双方的对比仿佛锐利的黑白照片。▼场地关系,site relationship © 天仝建筑
Our site is located at a road bend, with dilapidated residential buildings hugging the highway, creating a cramped urban space. However, behind these buildings lies a cliff with a height difference of thirty meters, offering an unobstructed view of the river valley. The power of nature is grand and imposing, yet the enduring force of human labor is even more persistent. This interplay is like a sharp black-and-white photograph.
▼建筑主入口,main building entrance © 存在建筑
▼实验室入口,laboratory entrance © 存在建筑
▼质检入口,quality inspection entrance © 存在建筑
▼立面细节,facade detail © 存在建筑
业主希望在此建造一栋包含研发、检测、一个国家级实验室和生产小试区的综合大楼。并且他们希望每个部分都可以为人所参观但不影响研究院的内部运行:这个在上述场地的复杂性上再增加一个维度。
▼功能分布,program distribution © 天仝建筑
The client wishes to construct a comprehensive building here that includes research and development, testing, a national-level laboratory, and a pilot production area. They also hope that each part can be open to visitors without disrupting the internal operations of the research institute. This adds another dimension to the complexity of the site.
▼北侧关系,north-side relationship © 存在建筑
▼立面细节,facade detail © 存在建筑
▼穿越小试区,passing through the pilot production area © 存在建筑
▼中央水庭,central water courtyard © 天仝建筑
我们的设计起始于如何强化这个场地的特征。我们选择把建设用地的四分之一作为城市公园使用。在道路一侧形成城市级的退让。这是一个冒险的策略,但可以呈现一种独特的城市景观 :让无声的酿酒过程在城市一隅开放性的呈现。从高粱的种植收获、制曲下沙、九蒸九晒,到高温馏酒,甚至保存和陈化的过程都可以向公园打开,让劳作与自然的联系成为城市生活的一部分。
Our design begins with how to enhance the characteristics of this site. We chose to allocate one quarter of the construction land as a public park. This creates a significant setback on the side of the road. It is a risky strategy, but it can present a unique urban landscape: allowing the silent process of liquor making to be openly displayed in a corner of the city. From the planting and harvesting of sorghum, the making of yeast, the nine times of steaming and drying, to the high-temperature distillation, and even the storage and aging processes, all can be opened up to the park. This makes the connection between labor and nature a part of urban life.
▼街道关系,street relationship © 存在建筑
▼高粱公园,gaoliang park © 存在建筑
为了消解集中在一起的巨大体量,公园在尽头和层叠分台的建筑融为一体。高差可以让人从建筑的中间层进入,并引入九个大小不一的庭院来改善采光和通风。这些庭院还有独特的意图,其交替出现可以让使用者和参观者感受室内外的变化,进而感知到也许习以为常的自然的力量——空气、湿度、气味在空间中流动。
▼中庭剖透视,atrium sectional perspective © 天仝建筑
To break down the massive volume concentrated together, the park seamlessly integrates with the stepped architecture at its end. The height difference allows entry into the middle level of the building and introduces nine courtyards of varying sizes to improve lighting and ventilation. These courtyards also have a unique purpose. Their alternating presence allows users to experience the transition between indoors and outdoors, thereby perceiving the power of nature—air, humidity, and scent flowing through the spaces.
▼生产小试区,pilot production area © 存在建筑
▼曲库室内,interior of fermentation area© 存在建筑
▼中庭室内,atrium interior © 天仝建筑
连桥、飞廊与檐口,这些传统的建筑形式用现代的做法呈现在山地之间,形成庭院的同时又裁切景观。让到访者在不经意间与赤水河谷的四季变化对话。建筑不再是单纯的形态,如美酒琼浆不是简单的水和酒精 :它尝试提供更多的维度——让人们重新发现那些被忽视的自然细节,唤起对这片土地深深的认同。
Pedestrian bridges, flying corridors, and eaves—these traditional architectural forms are presented in a modern way among the hills, creating courtyards while framing the landscape. This allows visitors to unconsciously engage in a dialogue with the seasonal changes of the Chishui River Valley. Architecture is no longer just a form; like fine liquor, it is not merely a mixture of water and alcohol. It attempts to provide more dimensions—allowing people to rediscover the overlooked details of nature and evoke a deep sense of belonging to this land.
▼鸟瞰摄影,aerial photography © 存在建筑
▼场地初印象,first impression of the site © 天仝建筑
▼总平面图,master plan © 天仝建筑
▼负一层平面图,basement level -1 plan © 天仝建筑
▼一层平面图,first-floor plan © 天仝建筑
▼二层平面图,second-floor plan © 天仝建筑
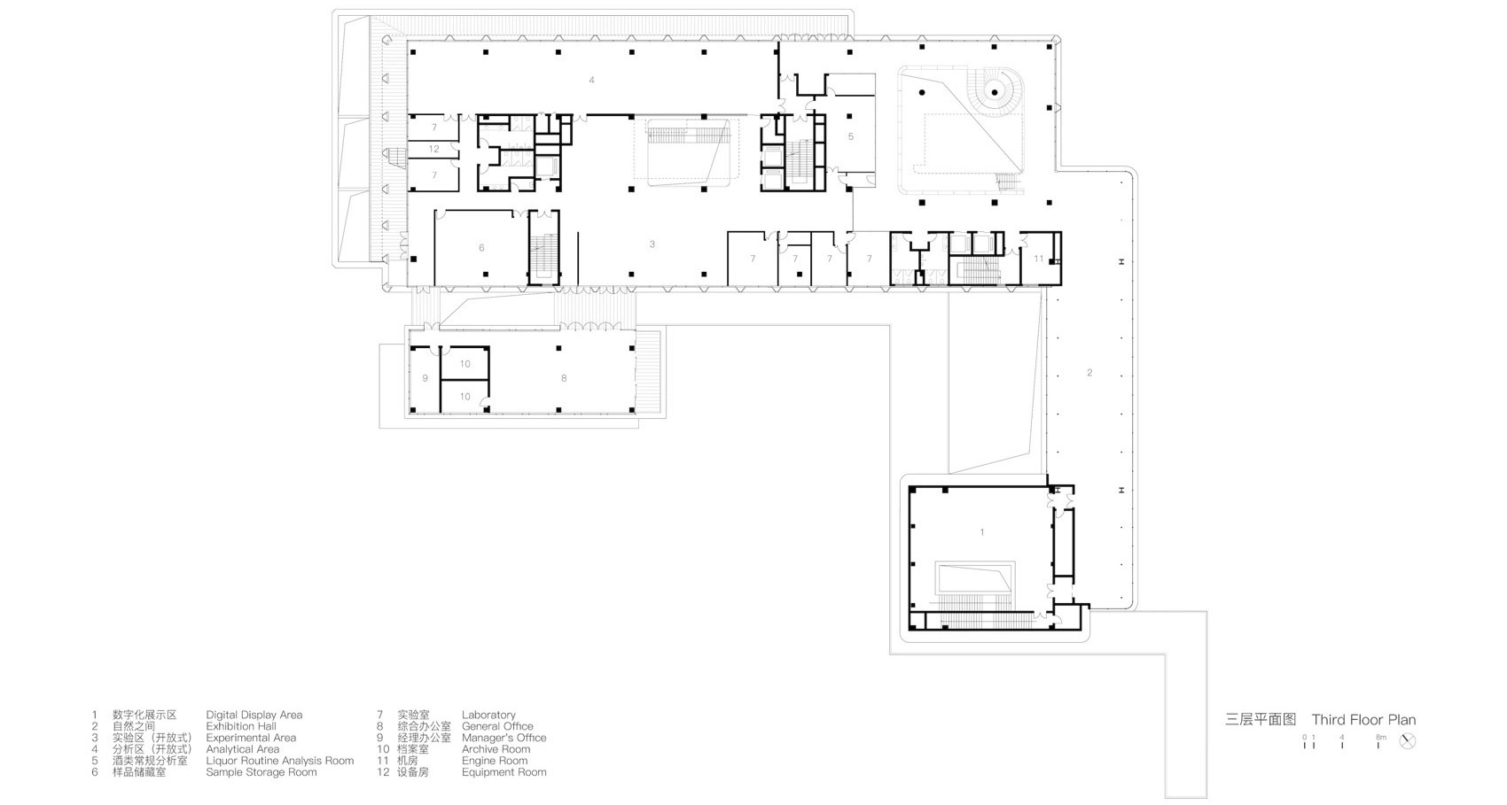
▼三层平面图,third-floor plan © 天仝建筑
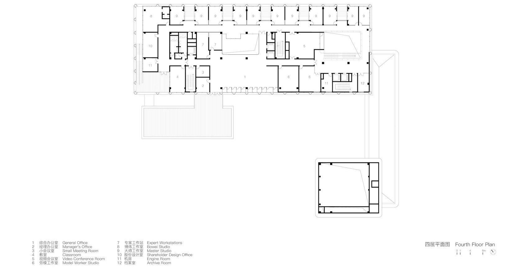
▼四层平面图,fourth-floor plan © 天仝建筑
▼砌块墙构造,block wall construction © 天仝建筑
▼双层铝板构造,double-layer aluminum panel construction © 天仝建筑
▼通风塞构造,ventilation plug construction © 天仝建筑
项目名称:郎酒集团品质研究院
项目类型:办公建筑
设计方:天仝建筑
设计时间:2020.10
完成年份:2024.01
设计团队:王翔,田文沐,齐然、倪燕,叶兆丹等
项目地址:中国泸州古蔺二郎镇南侧
建筑面积:19 425 M2㎡
摄影版权:存在建筑摄影
合作方:中其建筑规划设计有限公司
客户:四川省古蔺郎酒厂有限公司
材料:铝板,混凝土砌块,镂空铝板
品牌:成功铝板(黑色氟碳喷涂铝板),亚泰铝板(银色镂空铝板),固保利(PP膜仿木纹铝板,日本株式会社凸版科思膜),珠海市晶艺玻璃工程有限公司(由UHPC高性能混凝土复合玻璃钢纤维材料及其他辅助材料配比,根据产品特征设计专用模具复合制成混凝土砌块)
Project name: Langjiu Group Quality Research Institute
Project type: architecure / Office
Design: TEKTONN ARCHITECTS
Design year: 2020.10
Completion Year: 2024.01
Leader designer & Team:Wang Xiang 、 Tian Wenmu、Qi Ran、 Ni Yan、Ye Zhaodan
Project location:South side of Erlang Town, Gulin, Luzhou, China
Gross built area: 19425㎡
Photo credit: Arch-Exist Photographs
Partner:CH+ Architecture design and Planning Co.,Ltd
Clients:Sichuan Gulin Langjiu Factory Co., Ltd.
Materials:aluminium sheet,perforated aluminium sheet ,Concrete blocks
Brands:DAIICHI(Black fluorocarbon-coated aluminium sheet) /YATAI(Silver perforated aluminium sheet )/GUBAOLI(PP film imitation wood grain aluminium sheet, Toppan Cosmo Film Co., Ltd., Japan )/ KGE(Concrete blocks are manufactured through composite moulding using a blend of UHPC high-performance concrete, glass fibre reinforced plastic materials, and other auxiliary components, with the mould design tailored to the product’s specific characteristics.)
客服
消息
收藏
下载
最近




































