查看完整案例

收藏

下载
▲ 西安碑林博物馆新馆东南鸟瞰
回想起来,引向建筑诞生的重要瞬间,常常藏在某个不经意的——可能是灵感突然冒出来的一秒,可能是做出决定的刹那,也可能是偶然撞见的机会。“就那一下,好像什么都不一样了”。在碑林博物馆北区大厅的二层铜质长墙上,是从1087年延续至今的西安碑林大事记。碑林博物馆北扩(以下简称“碑林北扩”),必然是碑林百年历史的一部分,值得记录下来。
01设计的缘起
1.1碑林的历史
以1959年毁于雷击的大成殿为界,大成殿是文庙的结尾,是碑林的开始。从1935年《西安文庙及碑林图》上看,当时的西安文庙及碑林整体由三部分组成,包括学府街、文庙及碑林。那么,这次碑林北扩从内核上是扩展文庙还是碑林?让我们看看文庙及碑林的部分简史,西安碑林的源头可追溯至唐代立于长安城务本坊国子监内的《石台孝经》《开成石经》。从唐末天祐元年(904年)韩建第一次迁置唐石经,到北宋崇宁二年(1103年)虞策在碑林现址为唐石经及诸多唐宋碑刻找到归宿之地,整整用了200年时间。而唐石经三度迁置所经历的这200年,则是碑林的形成时期。
1.2街区的更新
碑林北扩用地属于建筑控制地带,面积约36.258亩,限高9m。《三学街历史文化街区保护规划(2020—2035)》(以下简称《保护规划》)中描述:“建筑整体风貌破坏严重,传统历史氛围破坏严重,建筑平面肌理无序化突出,街巷环境拥挤,街巷空间混乱。建设性破坏严重,街区外围建筑高度突破限高要求。建筑整体风貌是历史文化街区需要保护和延续的重要历史要素,风貌的完整性与否关系到历史街区的整体品质”。同时,《保护规划》制定了详细的高度控制规划图,对不同区域的建筑高度进行严格限制,以保证街区整体风貌的协调性,避免出现与历史风貌不协调的高大建筑。所以从风貌塑造的角度来说,建筑概念设计的问题包括但不限于:第一,碑林北扩的空间格局如何延续?第二,如何做到与历史及城市风貌的协调?自2007年启动规划以来,涌现了不少概念方案。
02方案的构思
2.1从碑到碑林
我们接到邀标的时候,这个项目已经过了多轮的方案征集及专家研讨,由于它的重要性,如何研判对于每一个决策者来说都是需要谨慎对待的,各个方案都难尽如人意。
新的邀标及多轮方案走过的弯路,让我们意识到城市更新的老问题总是绕不过的:是否现代建筑在历史街区没有可能性;是否意味着我们要走回传统建筑形式抽象化的老路子;如果延续传统,那延续的是什么传统——文庙还是碑林;新的展陈空间是否能适应相对受限的建筑尺度;地下空间如何利用;建筑的搬移和隔震如何解决等等。最后,相关专家的共识是:碑林博物馆的扩建不仅是文庙的延续,更重要的是书法艺术、历史文献及石刻艺术的传播,是碑的展示功能的延续,这是一个可以重新思考的切入点。如果我们不从传统建筑现代语言的形式主义老路子为切入点,我们还可以怎么做?
▲碑林建筑年代图
▲碑石分布图
对应鸟瞰图,我们再次阅读了碑林博物馆的历史资料:如果从文庙空间格局的发展历史来讲,它就是从宋代延续至今的一进进院落;如果从由唐代延续至今碑刻发展的角度来看呢,我们将碑的位置标红就得到了碑刻展示的发展脉络,这是一个全新的图谱。我们马上有了一种思路,可否以展示碑的功能为线索,寻找一种具有继承性的新的展陈空间。崔总画了一张草图:展碑空间以最适合人近距离观展为基本尺度,最初是12m×12m,内部挑空形成碑楼。碑楼延续了碑林博物馆由碑亭至碑林的脉络,直至“聚碑成林”形成“碑楼林”,碑楼林地上、地下均为两层,周边附属功能呈院落环绕,消解博物馆与街区建筑的尺度。
▲ 方案草图 崔愷 绘
▲全景总平面图
2.2碑楼林的展示空间
碑楼林展示空间沿中轴两侧对称布置,呈矩阵状。地上一、二层是“碑楼林”一个空间一尊碑,二层与一层相连通。屋顶形成广场,聚集着一座座冒出屋面的碑楼,也给下部空间采光。地下两层将矩阵合并成大空间,适合更大型的展示。碑楼林空间不仅是碑的聚集,更是一个藏碑的库。人们像在图书馆内廊道上游走,可以通过编号寻找不同的“碑库”。
▲ 中轴线南向鸟瞰
▲碑楼林广场
2.3隐入街区的碑楼林
从城市道路的角度看,碑楼林被一层坡屋顶建筑环绕着,从街区内人们能看到的仅是“城墙”基座和檐口低矮的碑楼群;从碑林博物馆院内来看,带“基座”的一层小坡屋顶也是恰当的;从空中鸟瞰,展陈空间的大屋面被分解为一个个矩形小坡屋顶,在碑林博物馆的各个建筑中并不抢眼,且其聚集又蕴含着大气魄。参展人群还可以登上“碑楼林”广场,环视整个三学街。方案的初稿给大家眼前一亮的感觉,我们团队也异常地兴奋。此时的我们还没意识到漫长的磨合期才刚刚开始:投标方案出炉,重中之重的《开成石经》未被迁入新馆,碑楼的小尺度空间被质疑且不断迭代,新馆高度一降再降,国家文物局的批示等等,这些都是后话。
▲从西安古城墙西南鸟瞰碑林博物馆
▲ 西北鸟瞰
03搬或不搬
2018年11月正是《西安晚报》刊发的文章《搬与不搬:解码西安碑林镇馆之宝<开成石经>争议》引起群众热议的时候,11月19号下午崔总带领我们向国家文物局汇报碑林项目的设计进展。我惴惴不安,不知道后面的讨论会将会面临什么:《开成石经》展厅是去是留?新馆的建设工期会不会受到影响?接待我们的是时任国家文物局副局长宋新潮,这是我第一次见到宋局长,他的学者模样让我印象深刻。我们简单汇报了设计之后,他让我们将画面停在介绍碑林历史变迁的总图上,向我们讲述他对新馆搬迁的设想,如数家珍:“以前的大成殿比这张图上画得要大,差不多到一展室两侧,碑室除了一处清代的,其他都是大概1938年的建筑;轴线上的两栋展室,可以将碑部分移至新馆,这样展室就疏朗了;于右任的碑可以放在西边的两个碑室中,东边这两个展室功能可以不变,这两个房子是给于右任盖的;《开成石经》展厅并不是像坊间说的由梁思成设计,而是设计后给梁确认过图纸;这个展厅是重中之重,就不动了,但是要重新调整碑的摆法”。他指着碑室平面说:“这个碑历史上是对上的,现在错位了,要摆回去;碑体还要翻新隔震、加固,另外我还惦记着要对埋在下面基座里的碑头重新复原;除此之外,其他石碑、墓志都可以重新梳理,移至新馆”。
“不要把争论都集中在《开成石经》上”,他强调了自己的观点:第一,建博物馆是最重要的事;第二,所有的争议都可以先搁置,《开成石经》就不移动了,不影响老碑林的核心地位,也不要影响新馆建设。整个讨论让我非常触动,我们开始设计不到半年,却不知远离西安的宋局长对这个项目及碑林的了解和关心远远超过我的想象。实际上,我们心里更有依靠了,当然也多了一份沉甸甸的责任感。
随后的2019、2020年,碑林北扩项目又多次向国家文物局汇报,很多重大决策都是在这一来一回中确定的,例如将博物馆主展厅沉入地下,限制高度;新馆主入口设在南侧,保护老馆地位;北馆应该弱化其入口形象;现场发掘的夯土基址要就地保护展示等。值得一提的是,宋局长对建筑风格又表现出非常开明且有前瞻性的态度,认为我们“不要束缚手脚,不必仿古”。
▲ 概念生成
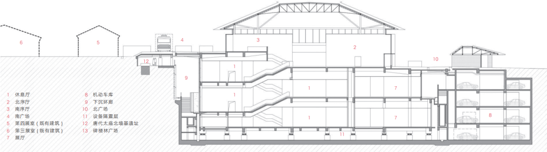
▲ 由于限高控制新馆进一步下沉至地下(向右滑动查看更多)
▲ 从老馆展室望向新馆主入口大殿
04立面设计的若干次调整
按道理,我应该将立面设计的介绍放在空间设计之后,但事实上立面形象在规划设计之初就尤其受关注。特别是对于这个面向大众的博物馆,我们需要不厌其烦地回答大多数人提出的问题——象征什么?寓意什么?美不美?像不像?
诚然,我们的设计从碑“进化”到碑林的过程,并不是以形式优先的。对于碑楼林的立面,我们丝毫不怀疑“概念的独特性必将引向形式的独特性”,追求独特感的目的是让独特的概念“适得其所”。我们希望通过现代的设计语言找到平衡点,而不是折衷。所以对立面的反复设计,变成了自我苛问的过程。
4.1平顶还是坡顶?
自始至终我们并没有被要求过采用坡顶,而且在之前的方案中都不乏平顶的案例,但不知为什么每个方案的尺度都巨大,在历史街区里显得格格不入。在传统街区坡顶是最直接能融入城市肌理的,但中国建筑师总是非常谨慎,1990年代前后由于对传统建筑美学缺乏基本素养(精确的尺度、合适的比例、恰当的装饰等),坡屋顶一度变成装饰且浪费的代言词。当今天地域文化被重新提及,坡屋顶的建造和空间利用再度成为可能。当我们环视密布的民居总是感叹他们蕴含的极大生命力,大量院落被改造,只要利用得当、结构合理,它们仍然具有无限的潜力。从鸟瞰角度,碑楼林的坡屋顶在尺度、布局上是非常特别的,矩阵的排列使建筑化整为零融入了环境,12m见方的坡屋顶与民居建筑相协调。
▲ 新馆北立面
4.2传统或是现代?
在传统还是现代的问题上我们并非没有犹豫,甚至一度回避碑楼林的形式感,进而弱化坡屋顶的形式。我们尝试将建筑立面表现为飘浮的石台,或是将碑楼和大殿的坡顶变成台阶状,或是将坡屋顶变薄到几乎平板的状态,使其视觉上不可见。后来由于限高问题,整个建筑的“台基”被埋入地下,坡面被暴露无疑,藏无可藏。这时,具有几何感的建筑坡度,屋顶是排水、采光的要素,室内直接暴露支撑结构,流线串联碑楼空间……也许这些直观的表达就是现代性本身。
4.3尊古却不仿古
我们将几乎所有屋檐都压到很低,很多地方不到3m,还缩小了入口的院落进深,使游客看不到建筑的全貌。建筑立面被“消解”了,人们的视线被挤压在水平延展的空间里,只有进入碑楼或大殿的那一刻才能看到天光笼罩,豁然开朗。坡顶低檐、基座深埋使建筑谦卑地放低了姿态,大多数地方看起来,甚至比老碑林七展室的体量还要低。
▲ 从东木头市街看新馆主入口
05碑楼林的“进化”
碑楼林空间是整个设计的核心,我们丝毫没有怀疑过碑楼林是最适合展碑的空间形式,甚至它们是支撑该项目展陈空间独特性的最基本单元。当回顾整个设计深化的过程,最后所形成的空间效果不是一蹴而就的,下文分享几个重要的节点。
1碑楼的数量:从东、西各十二个碑楼减少为九个碑楼,是因为多方提出中国传统以九为大,结果在不经意间它决定了东西中轴空间的质变。从原来十二碑到九碑,观展从东西轴线上以廊桥为主流线的模式改变为以碑楼内为主流线的模式。没有好坏,但我更倾向于前者,因为它更贴近传统体验(先进夹道再进碑楼)。
2空间高度的调整:碑楼的尺度是否合适,应该说环绕看碑或立或坐,尺度上是没问题的。但垂直空间上,有的学者指出俯视碑头是不敬的,这一点是我们没有意识到的。在后续修改中,我们将主要的展碑空间设置为一层,在碑楼顶部设置侧高窗采光。
3 碑楼空间的融合:为了适应大展示空间的需要,同时也为了满足馆方的要求,我们配合展陈方在轴线两侧及地下二层展厅弱化了碑楼之间的分隔,仅留碑楼四角墙体,碑楼空间主要呈现在地下一层及首层的主流线上。
▲ 二层平面图
▲ 一层平面图
▲ 地下一层平面图
4 混凝土质感:对于碑楼的表面肌理,我们做过多种尝试,最后采用了最利于自身消隐的清水混凝土,它的冷色调烘托出了略带暖色的碑。关于楼板,我们还曾经与结构专业配合采用双层格构混凝土夹层来隐藏管线,暴露在底板的是镂空混凝土,但几经权衡后还是放弃了这种想法,最终采用铜色方槽铝板吊顶。
5 碑楼屋顶:碑林博物馆的坡屋顶均采用小截面轻钢结构,暴露钢结构是最朴素也是最能与混凝土产生反差的,由于室内灯光等设备管线整合的需要,没有最初设计的纤细自在的墨色屋顶好。
▲ 北序厅
▲ 南序厅
▲ 一层碑楼展厅
6 光线引导空间:通过构造详图可以看出碑楼的体量是独立的,它脱开了环绕着它的混凝土屋顶,让地下的碑楼外壁都被线性天窗洗亮。碑楼与穿越它的廊桥也与之脱开了距离,光线被导向到了地下二层。碑楼内顶部以膜材平顶作为采光介质形成漫射光照亮碑体,使人们沐浴在温暖的自然光氛围中观看碑,可以说膜天窗的效果超出了我们的预期。
▲ 碑楼林展厅及连桥
7 是显还是隐:如前所述,碑楼屋顶如何体现代性是总也绕不过去的,是人视不可见还是抽象化为几何形态?我们一直在这两种方案中摇摆,最后选择压低坡顶的高度,用恰当的比例将传统屋顶抽象化。当然还有另两条路:一个是用平顶——彻底的现代性呈现;另一个是民居化,消隐在城市肌理中,其现代性空间体现在置入地下的混凝土基座。但前者在历史街区评审中很难通过,后者是建筑师内心过不了的一道坎。
▲ 从老馆望向新馆06将低檐回归街坊
东木头市在宋代被称为“菜市”,金代名为“草场街”,唐末渐成居民坊巷,明清成为府城的木头市、枋板市,“木头市”之名由此确定。明末,为与西木头市区分,改为东木头市。2018年我们踏勘此地时街道极窄,电线密布,道路北邻高层公寓及住宅楼,南侧项目选址处是一片低矮的平房,罕有民居或遗存,早没有了传统街巷的尺度感,但却充满了市井生活的拥闹。2025年,随着工地围墙打开,碑林的北入口广场悄然敞向了东木头市。
▲ 卫星合成图
从东木头市看,博物馆沿街的低檐将空间沿水平展开,入口处屋檐高度只有2.7m,它在透视上遮挡并化解了其后主殿的体量,主殿的檐口则被进一步压低至8.7m。我们想实现的不是对地域建筑的符号抽象,因为低檐显然不是陕西民居或西安唐风建筑的特征,而是希望找到一种纯粹的空间策略:大面积压低的坡面让建筑的立面消失,取而代之的是深邃的阴影,薄檐口消解了建筑的重量感,为人触手可及,剩下的只有轻及头顶的空间。
应该说,我们的策略是在为东木头市与博物馆之间寻求一种恰当地抵抗宏大叙事、亲切地回归市井尺度的方法。同样的方法也体现在从老碑林展室看新馆的屋顶那一刻,新馆虽大却沉到地下,露出台基的只有碑楼低矮的薄檐,丝毫不抢碑林老展室的风头。
▲ 剖面图
▲ 剖面图
07历史或“不可搬迁”
唐代中后期,儒家经典因手抄流传出现大量文字差异,导致经义解释混乱。为此,唐文宗下令,由翰林学士郑覃等官员主持召集学者校勘经文后刻《开成石经》114块石碑,均采用青石镌刻,每块高约2m,宽约1m,共镌刻包括《周易》《论语》等在内共计12部儒家经典,总计650 252字。它既是中国历史上规模最大、保存最完整的石刻经书之一,同时在历史意义上统一了唐代儒家经典的文字版本,对儒学传播、文化传承及版本学研究具有极高的价值。
2025年5月16日,碑林博物馆主体正式面对大众开放。游客们的赞赏让我们备受鼓舞,新展碑方式“让碑得到了最大程度的尊重和保护”。游客们穿梭在入口大厅,仰头看着巨大采光顶镂空着“碑林”二字纷纷拍照留影。此时他们都不知道,这个巨大的空间曾被设计来展示《开成石经》。2018年4月在方案第二轮的设计中,这个巨大的空间是《开成石经》的主展厅,我们设想当人们在入馆的那一刻,迎面而来的就是114块“镇馆之宝”,其震撼程度不亚于进入秦始皇陵兵马俑1号坑。
▲ 碑楼展厅序列
2018年7月15日,《西安晚报》刊登了《搬与不搬:解码西安碑林镇馆之宝<开成石经>争议》文章,引发了热烈的争议。文章中“反搬派”认为《开成石经》的存在使西安孔庙具有了不同于中国其他任何地方孔庙的精神价值,更是历史文化名城西安的重要文化地理坐标。西安孔庙自建立伊始,就与唐《石台孝经》《开成石经》的命运紧紧牵系在了一起。所有这些过往共同见证了历史的沧桑流变,包括我们所知的1936年梁思成参与的那次整修工程,对《开成石经》碑石进行全面检修、加固,将其从原文庙旧址的露天或简易棚舍中迁移至博物馆内专门修建的《开成石经》陈列室,奠定了今天西安碑林的基本格局,这些也都是建筑师们的共同记忆。
▲ 地下二层通道展碑空间
但历史是否“不可搬迁”呢?不可否认,纵观碑林的历史价值,确是今日之碑林“牵系”900多年变迁史所形成的。所以当知之越深,则迁之越怯,直至无可作为。同样不可否认的是,今日碑林已走到了2025年,当从《开成石经》展厅走向新馆,我知道我们与碑林的“牵系”也不会结束。此时,历史滚滚向前,我们再去讨论《开成石经》是否搬迁已没有意义。
工程地点:陕西省西安市
建筑面积:北区65 276m2,东区1 905m2,西区4 091m2
设计时间:2018年
建成时间:2025年
主持设计:崔愷、关飞、时红
建筑专业:刘洋、窦强、毕懋阳、单晓宇、范岩、赵昕怡、王军、宋旻斐、张嘉树、卫嘉音、刘仁杰、席琛
结构专业:王载、叶垚、许松健、陈婷婷、王文宇、任庆英、曹立之、刘盈、王喆、霍田浩、万思宇、李星语
给排水专业:张晋童、张笑菡、范改娜、匡杰
暖通专业:李京沙、郭晓静、贺舒、张荩文
电气专业:曹磊、袁天驰、李昱、岳世光、于征
智能化专业:朱敏、张月珍、高爱云、郑易
总图专业:李可溯
景观专业:成立、曹硕、杨志豪、李世隆、曹媛媛
室内专业:江鹏、韩文文
建筑摄影:李季
客服
消息
收藏
下载
最近































