查看完整案例

收藏

下载
METT Barcelona新近开业,标志着历史悠久的La Florida酒店的成功转型。该酒店坐落于蒂比达博山,在这里可以俯瞰城市全景,是一处极具地标意义的所在。Kokaistudios对其进行了室内空间改造,以当代视角重新诠释了建筑的遗产价值,在精心保护历史元素的同时,融入了现代酒店精巧的设计语言。
历史照片
酒店远景
©METT
该酒店最初以经典的建筑风格落成,兼具典雅气质与纪念性,长期以来一直是旅行者远离都市的隐逸之选。它坐拥奢华与宁静,隔绝了山下的喧嚣。数十年来,酒店曾接待众多政界与文化名流,享有巴塞罗那最具标志性酒店之一的美誉。然而,历经多次业主与管理方的更迭,酒店也经历了衰落与复兴的交替周期,其原有的整体风格与辨识度在一次次改造中逐渐被淡化。
酒店主入口
Eugeni Pons
2024年,Sunset Group基于此前与Kokaistudios在中东及东南亚多个餐饮项目的合作基础,联手酒店新业主ATOM,共同启动了该项目的重塑焕新。Kokaistudios受委托主导室内改造设计,旨在将酒店的历史风貌与METT品牌独特的地中海特质相融合。
此次改造在保留建筑原始结构与标志性外观的同时,重新规划了室内空间,从而改善自然采光、增强空间的流动,并强化与周边景观的视觉互动。设计通过克制的选材与精心的对比手法,使历史与现代的元素能和谐共存、彼此呼应。
铸铁艺术栏杆扶手与木制门廊
Eugeni Pons
保留原貌的大理石主楼梯
Grégoire Gardette (©METT)
在公共区域中,项目保留了原有的装饰吊顶与铸铁艺术栏杆扶手。针对现存装饰木质元素,设计团队采用选择性涂白工艺,从而在历史肌理中重建视觉的明晰和统一。此外,设计引入了一套由木材与织物构成的现代护墙系统,用于界定入口与公共空间的过渡区域,在原建筑与新设计语言之间创造出克制而有序的对话。
入口大堂
Eugeni Pons
接待台
Eugeni Pons
在入口大堂,两组现代休憩座区面向保留原貌的壁炉排布,量身定制的木质书柜分立两侧。与此相邻,新的接待区采用木制构造层架与织物饰面板相结合,营造出一种静谧的空间氛围,强化了大堂作为重要的连接空间的核心角色,串联起外部环境、历史建筑与现代的酒店体验。
八角形中庭
Eugeni Pons
零售空间
Eugeni Pons
大堂核心区的建筑几何线条经过重塑,强化了与连接客房楼层的八角形中庭的空间对称之美。在保留原貌的大理石主楼梯前,Kokaistudios匠心打造了一处紧凑的零售空间--现由Lladró品牌入驻--将其作为现代元素,无缝嵌入这座历史建筑的肌理之中。
花园酒廊Eugeni Pons
花园酒廊
Grégoire Gardette (©METT)
三座木质门廊界定了通往电梯厅、餐厅及花园酒廊的过渡空间。其中,花园酒廊内点缀着Lladró的吊灯与艺术摆件,敞向明亮的内部庭院。灯芯绒质感的天花与嵌入式书柜为空间增添了温暖与细腻,而舒适多彩的休闲座椅则营造出亲切宜人的花园酒店氛围。区域内还设有一个酒吧与甜点柜台,进一步提升了这个社交场域的格调与惬意。
室内泳池入口
Eugeni Pons
室内泳池
Grégoire Gardette (©METT)
泳池更衣室
Eugeni Pons
在室内泳池区域,Kokaistudios增设了一组连接首层客房与地下健身水疗层的楼梯,以此重新梳理垂直交通流线。这一设计改造将包含桑拿室、蒸汽房、更衣区等功能区整合为一体,打造出连贯完整的康养专区,现由Valmont Spa运营管理。
泳池露台
Grégoire Gardette (©METT)
泳池露台
Eugeni Pons
室内泳池沿纵向延伸,与户外温水泳池无缝衔接,由此可眺望巴塞罗那市中心与地中海的开阔景致。Kokaistudios重新设计了泳池周边露台与餐厅遮阳篷,并增设了一处户外吧台,为夜间欢聚提供惬意之所,更强化了露台作为俯瞰城市风光的核心社交空间的属性。
八角形中庭
Eugeni Pons
从电梯厅看向八角形中庭 Grégoire Gardette (©METT)
上行至客房楼层,走廊与公共区域以沉静、内敛的设计语言营造。木与织物结合的护墙系统巧妙勾勒出电梯厅轮廓,既与下层公共区域形成视觉与质感的连贯呼应,更强化了精致而私密的氛围。
露台客房
Grégoire Gardette (©METT)
海景豪华客房
Grégoire Gardette (©METT)
METT套房 Grégoire Gardette (©METT)
海景标准套房
Grégoire Gardette (©METT)
标准套房
Grégoire Gardette (©METT)
Kokaistudios对全部70间客房与套房进行了优化重构与定制化设计,尤其注重对周边山景与城市视野的框景处理。所有房间均保留了原有的天花、地面及卫浴饰面,并与全新的METT品牌特色元素相得益彰:配有木质床头板的大床宽绰舒逸、定制的迷你吧精巧别致、一体化休闲家具系统兼顾休憩与客房用餐,以及大尺寸电视与整体设计语言融为一体等等。
标准套房
Grégoire Gardette (©METT)
海景套房
Grégoire Gardette (©METT)
海景标准套房浴室
Grégoire Gardette (©METT)
照明系统也经过了全面重新设计,设计采用集成式的床头阅读灯、装饰壁灯、落地灯以及隐入床靠板内的线性灯,营造出层次丰富且精致的照明效果,为居停体验倍添舒适与氛围感。通过对历史建筑的保护与当代设计间的精妙平衡,METT Barcelona实现了历史与现代酒店体验的无缝对话——在这里,优雅格调、舒适体验与蒂比达博山的自然美景交融共生,为宾客创造出独特而难忘的体验。
—
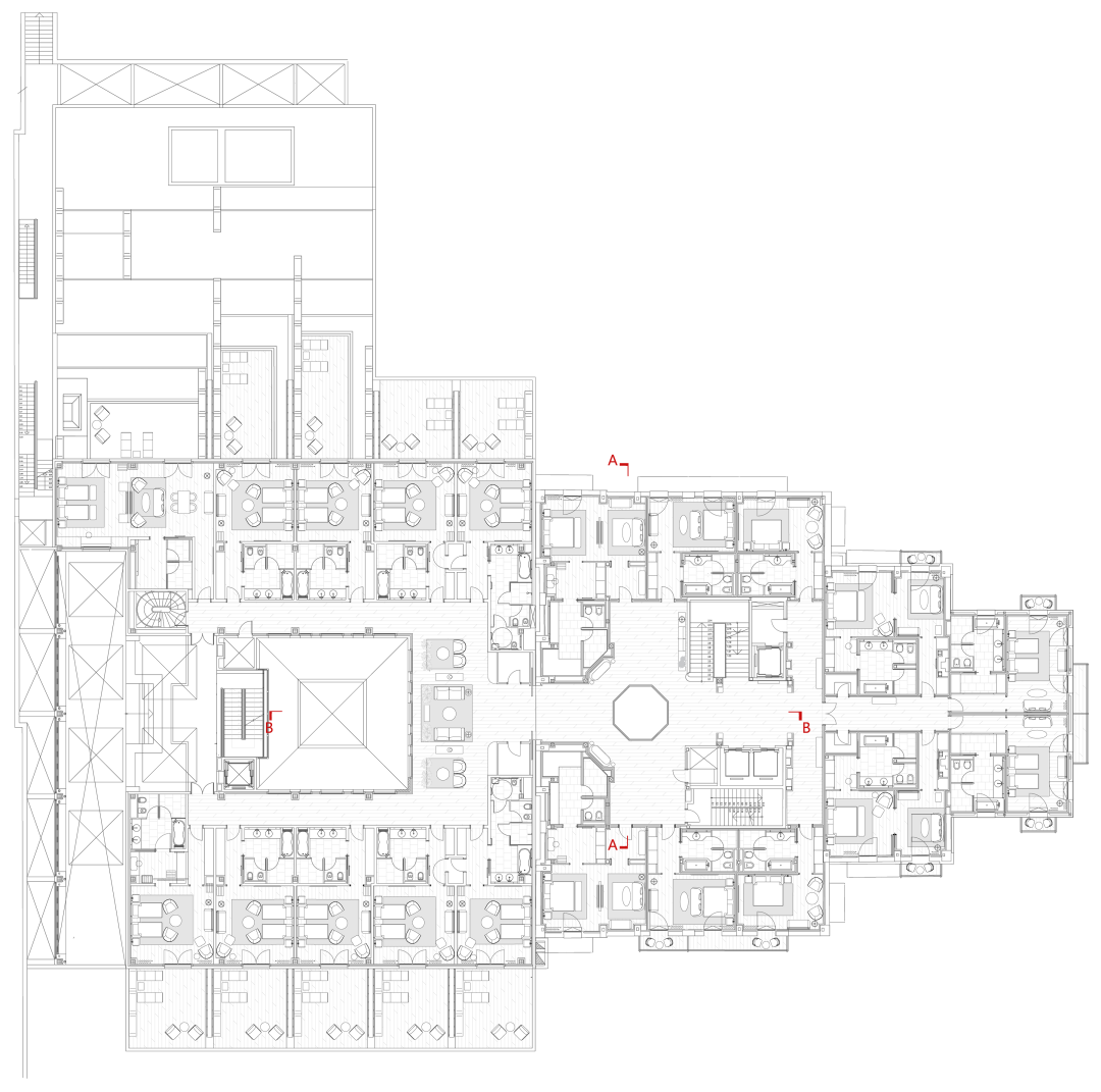
一层平面
客房层平面
客房平面
A-A剖面图
B-B剖面图
项目信息
项目名称:METT Barcelona
客户:ATOM HOTELES SOCIMI SA
地点:Barcelona, Spain
服务范围:室内空间改造,公共区域及客房室内设计
开业时间:2025年9月
设计面积:5,219平方米
设计公司:Kokaistudios
首席设计师:Andrea Destefanis, Filippo Gabbiani
室内设计总监:余书凡
室内设计团队:孙文娟,张晞然,王雯雯,曹珺禹,方玥,陈诗雨
客服
消息
收藏
下载
最近








































