查看完整案例

收藏

下载
我们为位于神奈川县藤泽市、拥有160年历史的五金制造商——内田商店,规划并设计了新的总部办公楼。
We planned the new head office for Uchida Shōten, a hardware manufacturer established 160 years ago in Fujisawa City, Kanagawa Prefecture.
▼项目概览,Overview of the project © Ju Yeon Lee
项目所在地曾是江户时期东海道第六宿场——藤泽宿。这里一度商旅云集,旅馆、茶屋与商铺鳞次栉比,繁盛一时。如今,这段历史仍在城市的某些角落留有痕迹,而基地本身也延续了典型的狭长型町屋用地特征。
The surrounding area flourished as Fujisawa-juku, the sixth post town along the Tōkaidō road during the Edo period, a town lined with inns, teahouses, and merchants. Traces of this history remain in places, and the site itself is characterised by its narrow, elongated townhouse-style plot.
▼场地鸟瞰,Aerial-view of the site © Ju Yeon Lee
▼立面的变化,Transformation of the elevation © Ju Yeon Lee
在江户时期,由于“间口税”制度的存在,沿东海道修建了大量正面狭窄、进深极长的町屋建筑。这类用地通常被划分为前、中、后,或上、下不同区段,并分别承担不同的功能。临街前段多作为商铺,后段则用于起居生活。在本项目用地上,原有建筑同样是前部为办公空间,后部则为农地;而马路对面的本家住宅中,前部为商铺,后部为仓库,二层则作为居住空间。
During the Edo period, a system known as “frontage taxation” led many townhouses being built with minimized frontage and extended depths along this old Tōkaidō road. The long plots were then divided into front, rear, and upper/lower sections, each assigned a specific function. Along this road, the front section was typically used as a shop, with the rear serving as living quarters. On this site too, the existing building had offices at the front and fields at the rear. Furthermore, at the main family residence directly opposite, the front section served as a shop, the rear as a warehouse, and the second floor as living quarters.
▼发光的建筑,Illuminated exterior © Ju Yeon Lee
项目最初的设想,是对这座具有历史价值的本家住宅进行改造,探索新的使用方式,并将其长期保留在这一场所之中。然而,随着道路对面的旧公司建筑严重老化,出于抗震等安全因素的考虑,重建已迫在眉睫。因此,我们优先建造了新的公司总部,将其作为吸引人流、重新激活这一地点的起点。
Initially, the request was to renovate this historic main residence to explore new uses, with the aim of preserving it on this site for the future. However, as the old company building across the road had become deteriorated significantly, urgent reconstruction was required considering factors such as earthquakes. Therefore, we first constructed the new company building, establishing it as a foothold to draw people to this location.
▼立面的悬窗,Awning windows on the façade © Ju Yeon Lee
▼从窗看向室内空间,Interior view seen through the window © Ju Yeon Lee
尽管总部进行了重建,但员工数量并未发生变化,因此建筑规模大致与原有建筑相当即可。基于这一前提,我们尝试为这一地区提出一种新的町屋使用方式:前部设置艺术家驻留空间,后部则为办公区域。艺术家驻留空间将向不同背景的创作者开放——从学生到在职创作者,从日本本土到海外人士,既可进行创作,也可举办展览。
Even though we rebuilt the head office, the number of employees remained unchanged, so a building of roughly the same scale as the existing one would suffice. Therefore, this time, we envisaged a new use for a machiya townhouse in this area, placing an artist-in-residence space at the front and offices at the rear. The artist-in-residence space will be used by all kinds of creators – from students to working professionals, and from Japanese to foreigners – for production and exhibitions.
▼入口,The entrance © Ju Yeon Lee
▼首层旋转楼梯,Ground floor spiral stairs © Ju Yeon Lee
▼餐厅,Canteen © Ju Yeon Lee
对于以内装构件设计与制造为主营业务的内田商店而言,尽管“制造”本身是企业的核心,但日常工作难免趋于程式化。我们希望通过这一项目,为企业内部注入新的价值与刺激;同时,也为当地居民带来文化层面的活力,成为一个促进交流与互动的契机。
For Uchida Shōten, whose business lies in the design of building components—despite being about making things, it tends to become routine—we hope this project will inspire new value. At the same time, it will also provide cultural stimulation for local residents and, serve as an opportunity for communication.
▼工作空间,Working space © Ju Yeon Lee
▼储物空间,Storage space © Ju Yeon Lee
▼办公室,Office © Ju Yeon Lee
在具体规划过程中,出于成本控制的考虑,建筑采用了一系列简洁的结构框架,将整体空间构成一个“巨大的盒子”。位于前部的艺术家驻留空间,在日常中同时作为公司总部的入口与公共空间使用。而在平时关闭的卷帘门之后,是一个被我们称为“寝床(nedoko)”的空间。这里配备了洗手池、卫生间、浴室等基本生活设施,并通过螺旋楼梯通向宽敞的阁楼,可供居住与停留,是一个向外部艺术家、设计师、学生等人群开放的空间。
In planning the project, cost considerations led to a structure featuring a series of simple frames, configuring the entire space as one large box. The artist-in-residence space at the front functions daily as the company building’s entrance and communal space. Behind shutters that are normally closed lies a space we call “nedoko (a berth).” This area is equipped with facilities for living and staying, including a sink, toilet, bathroom, and a spacious loft accessible via a spiral staircase. It serves as a space open to external artists, designers, students, and others.
▼通高空间,Double-height space © Ju Yeon Lee
▼阁楼空间,Attic space © Ju Yeon Lee
▼卫生间,Restroom © Ju Yeon Lee
▼家具细部,Detalis © Ju Yeon Lee
当这些空间被使用时,北立面的上悬窗如同呼吸一般向街道敞开,人的存在感也随之渗透到城市之中。这座公司建筑因此成为一个持续变化的场所,在不断生成新的相遇与连接。
At that moment, the awning windows on the north façade open onto the street as if breathing, allowing the presence of people to seep outwards. It serves to demonstrate this company building as one that undergoes continuous change, fostering new encounters and connections.
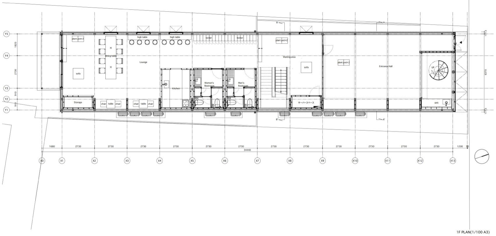
▼首层平面图,First floor plan © Schemata Architects
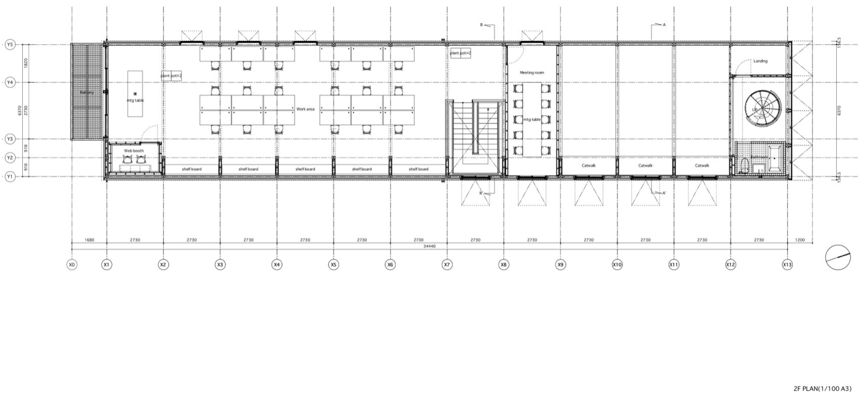
▼二层平面图,Second floor plan © Schemata Architects
▼阁楼平面图,Attic floor plan © Schemata Architects
▼立面图,Elevation © Schemata Architects
▼剖面图,Section © Schemata Architects
Title: Uchida Shoten New Head Office
Architects: Jo Nagasaka / Schemata Architects
Project team: Shoichi Sato
Location: 1-4-23 Honcho, Fujisawa-shi, Kanagawa, Japan
Usage:Office
Construction:Shinyo
Collaboration: Tokyo-gumi Co., Ltd., Hashigodaka Architects(Structural Design), Moeko Yamaguchi / NDC (Signage Design), Endo Lighting Corp. (Lighting Design)
Number of stories:2 Floor
Total floor area: 351.07㎡
Type of structure: Wooden
Completion: 5/2025
Photo: Ju Yeon Lee
客服
消息
收藏
下载
最近





































