查看完整案例

收藏

下载

翻译
APARTAMENTO GL - IPANEMA
Projeto e acompanhamento de obra
Projeto | Adriana de Castro e Marina Di Blasi
Fotos | Felipe Inácio
Projeto de reforma de interiores em apartamento do tipo cobertura, desenvolvido com o objetivo de readequar o programa às demandas dos usuários, com ampliação da área íntima por meio da implantação de um closet para o casal.
A proposta partiu da análise das condições existentes, considerando fluxos e setorização, resultando na reconfiguração de ambientes subutilizados e na integração da área gourmet ao terraço. O projeto contemplou o desenvolvimento do projeto de interiores para todos os ambientes da residência, com foco em soluções funcionais, técnicas e compatíveis com a execução da obra.
fotos
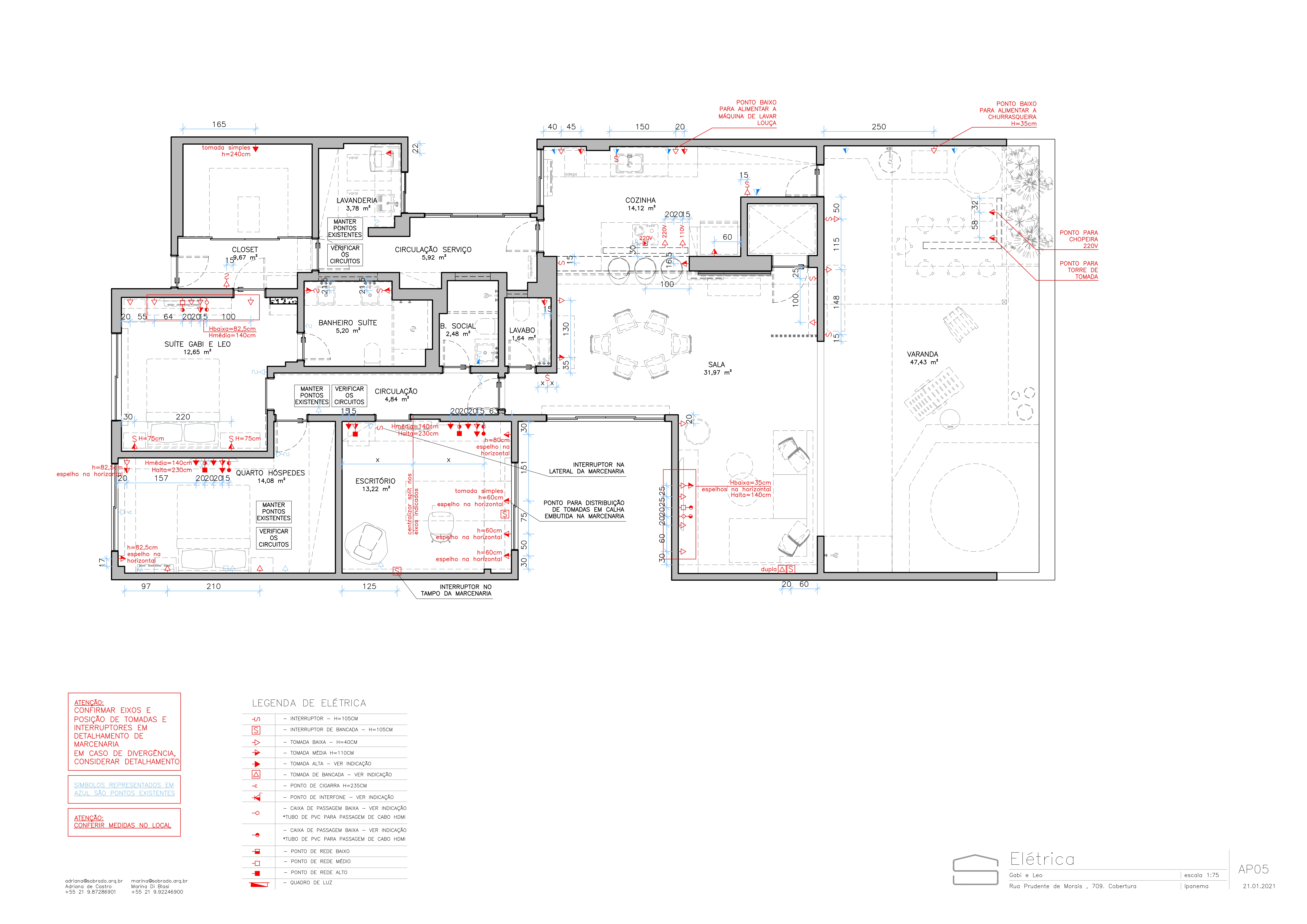
documentação técnica
客服
消息
收藏
下载
最近





























