查看完整案例

收藏

下载

翻译
APARTAMENTO AE - LAGOA
Projeto, decoração e acompanhamento de obra
Projeto | Adriana de Castro e Paula Daemon
Fotos | Leo Costa
*Projeto desenvolvido no escritório Linha Arquitetura
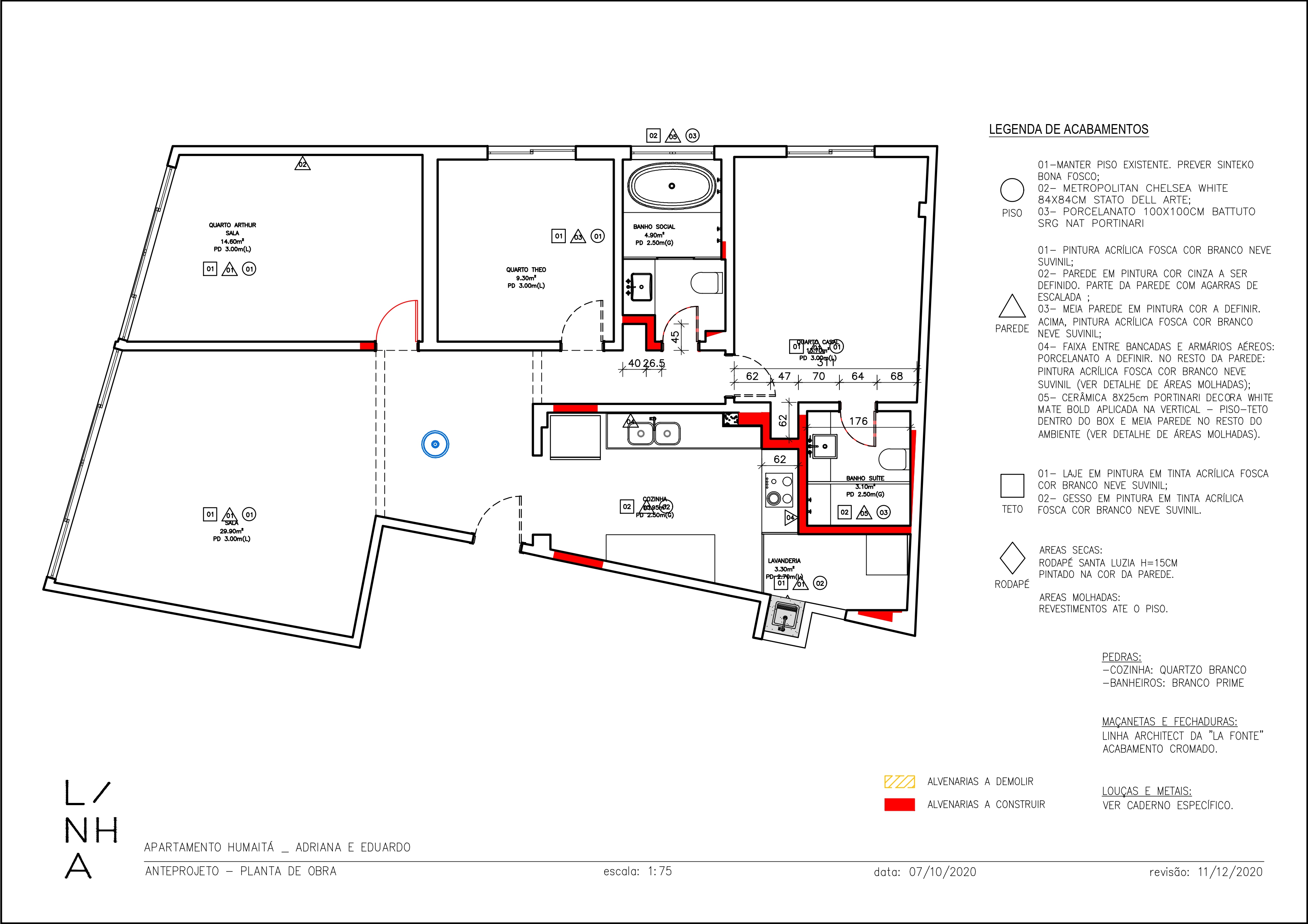
Projeto de reforma de interiores em apartamento residencial, desenvolvido com o objetivo de readequar o programa às demandas de uma família composta por casal e dois filhos pequenos, com aproveitamento integral dos espaços e criação de suíte para o casal em parte da área de serviço, sem perder a funcionalidade da mesma.
O escopo do projeto abrangeu todos os ambientes da residência, priorizando soluções funcionais, tecnicamente consistentes e adequadas à viabilidade construtiva do imóvel e financeira dos clientes.
fotos
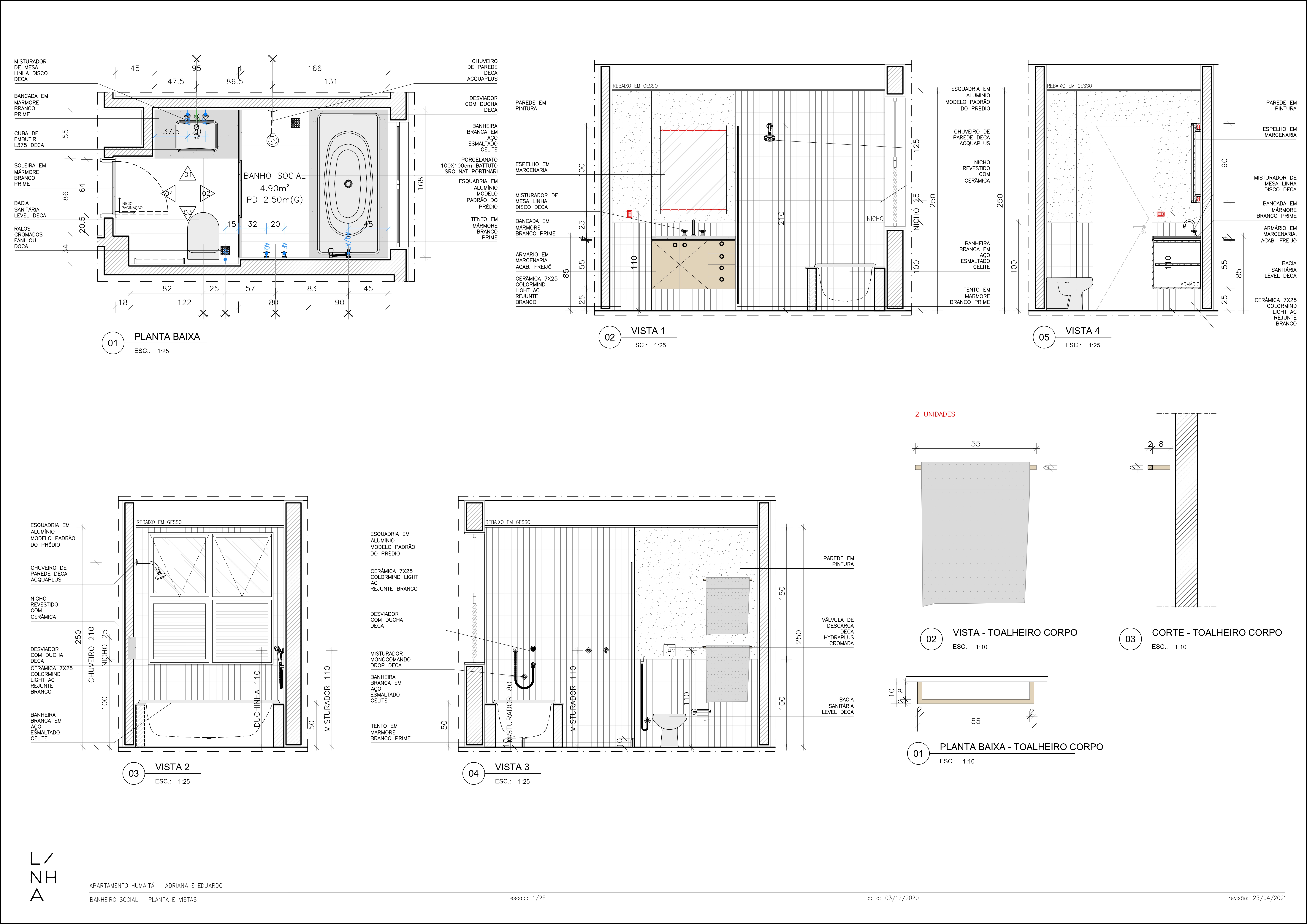
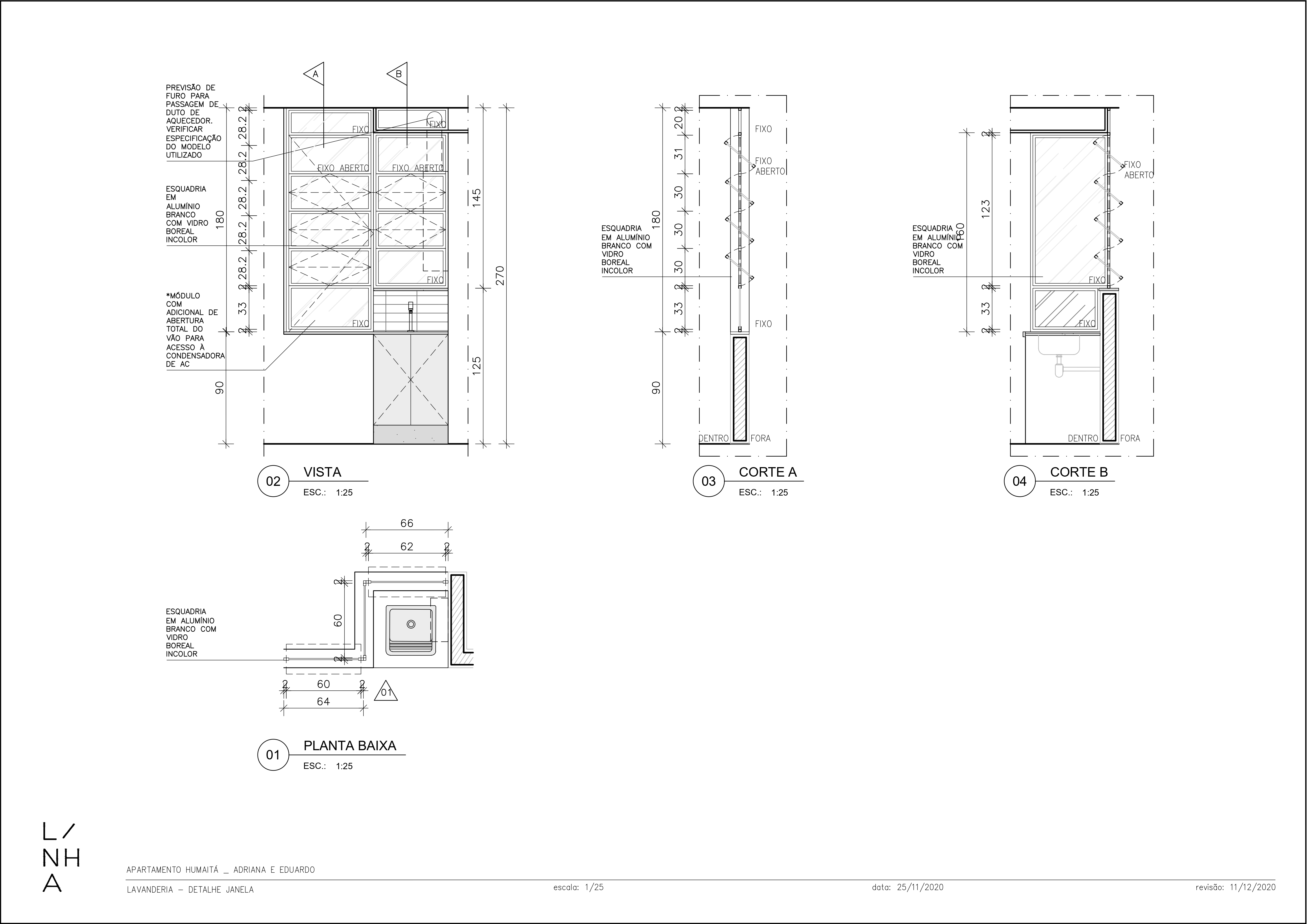
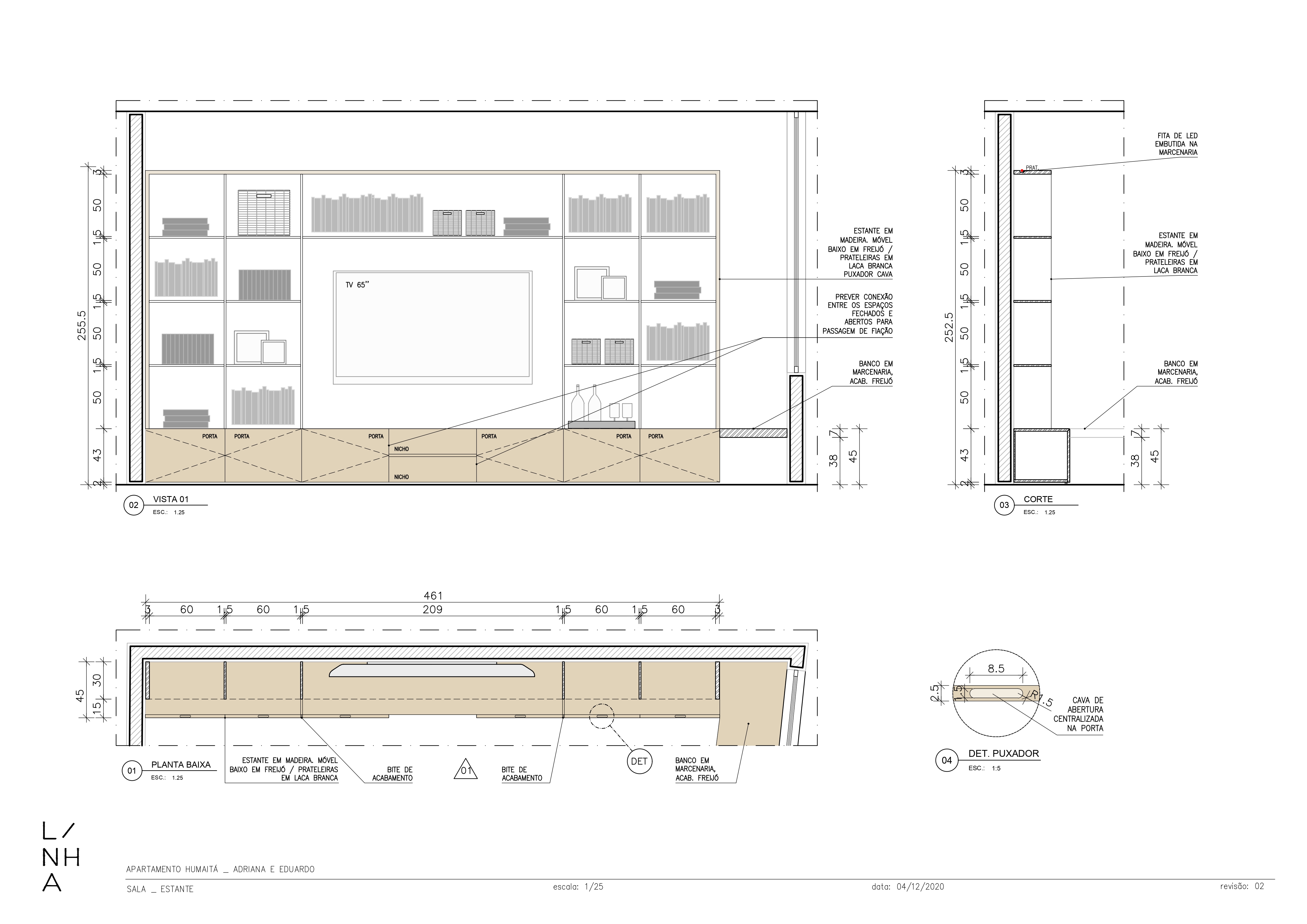
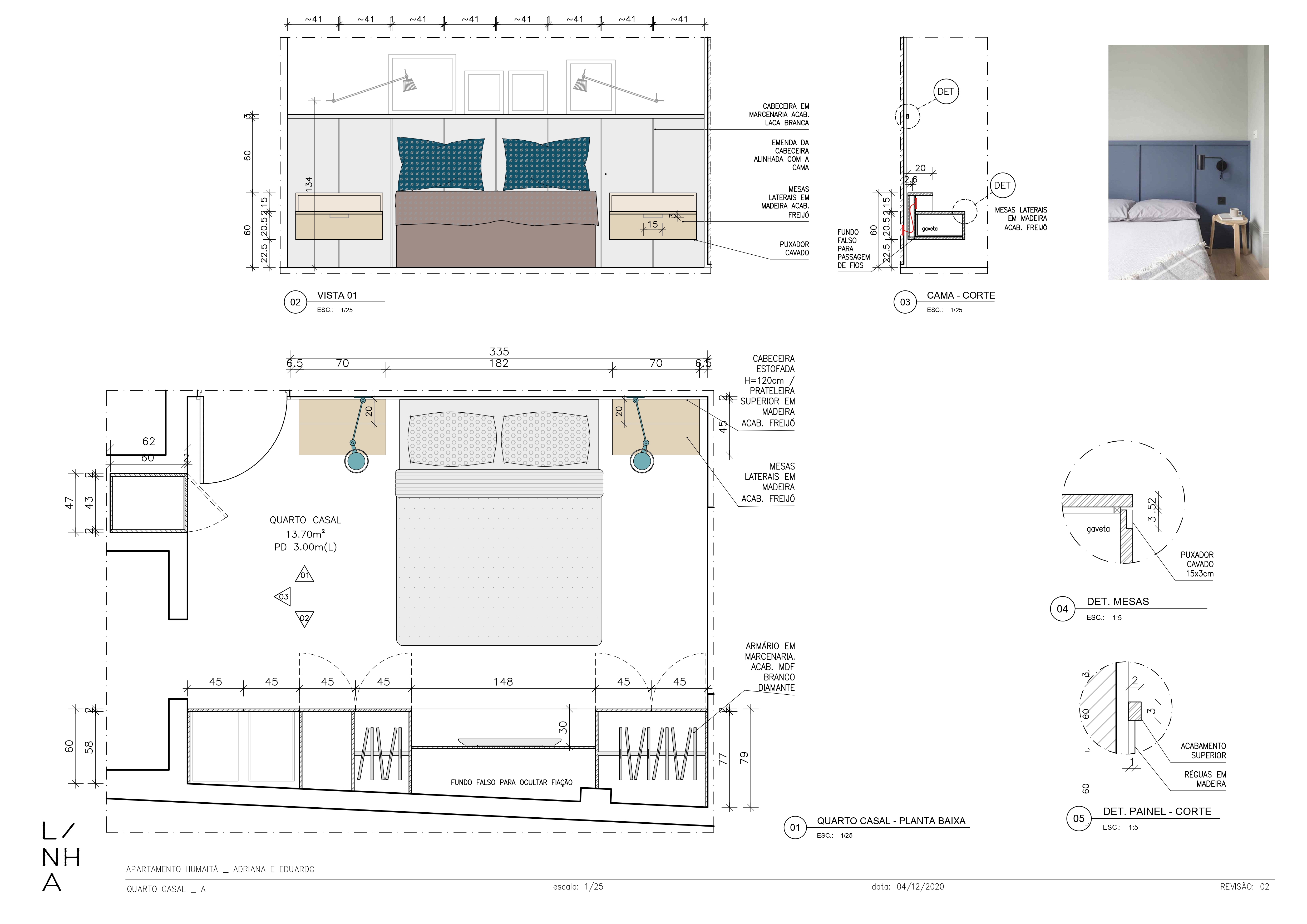
documentação técnica
客服
消息
收藏
下载
最近













































