查看完整案例

收藏

下载
地址:望京花园西区
面积:78㎡
造价:27万
风格:简约风
说在前面:
本案屋主是一对新婚夫妻,目前虽然是两个人常住,但也计划近几年内要baby。希望本次装修保证功能性的前提下,追求空间的开放和流动性,使整个住宅显得宽敞而通透。同时通过合理的空间划分,营造出不同的功能区域,满足屋主及家人的生活需求。
客厅在色彩选择上,采用了白色和黑色的经典搭配,营造出简洁明亮的氛围。红色的椅子作为点缀,为空间增添了一抹亮色,同时也体现了个性和品味。
客厅顶面以及垭口弧角的设计,不仅在视觉上延伸了空间,还巧妙地引导视线流动,使墙顶自然衔接,为客厅增添增添一份柔和与流畅。
长条形的落地电视柜,提供了充足的储物空间,用于存放电子设备和媒体物品。编织框和猫洞,给两只小猫咪也留足了自己的隐私空间。
客厅轨道灯照射墙面,赋予空间留白干净的视觉感受。选择了舒适的黑色皮质沙发,不仅耐用且易于清洁。柔软的面包型小沙发,可坐可躺实在太舒服了~
客餐厅一体的空间选择了中性色,作为空间的主基调。温润的木地板通铺整个空间,也增添了一份自然和温馨的感觉。黑色的皮质沙发和电视柜,增添了一份现代和奢华感。
打破空间的限制,客餐厅一体设计让空间宽敞明亮,动线更加自由流畅。没有刻意的分界,简单纯粹的布局,带来松弛和放松。
餐厅区域设计一个专门的宠物恰饭的空间,小柜子和抽屉可以用来存放宠物食品,如干粮、罐头等。下方开放格,用于存放宠物的食盆和水盆。这样可以保持宠物吃饭区域的清洁,同时隐藏起来也生活动线也非常流畅,不会经常踢翻宠物们的饭碗啦。
边柜总长1.8m,不仅提供了充足的储物空间,用于存放餐具、酒类和食品等。吊柜和底柜之间还设计了开放的操作空间,也能用于展示装饰品或常用物品,增加了空间的实用性和美观性。餐厅区域把冰箱嵌入了高柜中,增加西厨的功能分担性。黑白灰的配色搭配红色椅子作为点缀,形成了和谐的视觉效果。
餐桌的位置考虑了空间的流动性,确保与厨房和客厅之间的顺畅连接。上方设计了射灯照明,为展示区提供了充足的光线。同时吊柜下方设计了手扫隐形灯带,给西厨的操作台提供 照明,增强了墙角收纳的整洁效果。
餐桌具有延展伸缩的功能,可以根据用餐人数灵活调整桌面大小,既节省空间又方便好用。
厨房整体以简约实用为主,白色的主基调营造出干净、明亮的视觉效果。
木纹地砖的自然色调,为厨房增添了一份温暖和舒适感,与白色和黑色的现代元素形成了和谐的搭配。
玄关设计中,创造一个既实用又美观的入口空间。通过精心规划的储物分类和照明设计,玄关柜为多功能储物空间,上层可用于存放季节性鞋类,或不常用的物品,保持空间整洁。中间部分有开放式搁架,方便放置钥匙、钱包、手机等日常小物件,确保在进出时易于存取。下层鞋柜提供了充足的空间,用于存放日常穿着的鞋子。鞋柜内部设计了可调节的搁板,以适应不同高度的鞋子。
玄关区域安装了嵌入式顶灯,提供均匀的照明,确保在进出时有足够的光线。
柜体内部及底部设计有隐藏式照明,为存放的物品以及换鞋提供柔和的光线,同时也增加了回家时的温馨感。
在本次主卧设计中,为了营造一个宁静、舒适的睡眠环境。床头背板采用了高品质的深胡桃木,沉稳深色调,与墙面的浅色形成对比,视觉上营造出一种稳定和安静的氛围,增加了空间的层次感。
床头背板内置的灯带设计,发出柔和的光线,不仅具有装饰效果,还能作为夜灯使用,方便夜间起床或阅读。此外,灯带的光线还能在视觉上扩大空间感,使卧室显得更加宽敞明亮,为卧室增添了一份温馨和浪漫。
衣柜内部设计了多功能的储物解决方案,包括次净衣区,挂衣杆、抽屉和隔板,满足不同类型物品的存放需求。
次卧室设计中,目标是创造一个灵活多变的空间,既能作为舒适的客卧,又能作为高效的工作区和放松的游戏区,满足多样化的生活需求。
卫生间格局做了一些改动,将洗漱区外移实现干湿分离,半高墙体+嵌入的玻璃隔断,不仅增加了空间的通透性,通透无阻的明亮感使卫生间显得更加明亮和宽敞。干湿分离的设计避免早晨排队使用,生活也更加便捷。
通过推拉门的使用,实现空间的灵活分隔。无需为开门留出额外的空间,这对于面积有限的卫生间来说尤为重要,有效节省了内部容量,使卫生间显得更加宽敞,保持整体设计的简洁和现代感。
卫生间干区设计了弧形垭口,为浴室和过道洗衣区之间提供了一个柔和的过渡。打破了传统直角的硬朗感,增加了空间的流畅和舒适度。
卫生间墙面设计了壁龛 ,提供了充足的储物空间,用来存放洗浴用品和清洁用品,随手可取方便灵活。无边框的玻璃隔断,将淋浴区与马桶区域分隔开来,确保了淋浴时水花不会溅到马桶区域,保持了卫生间的干燥,减少卫生死角。
在本次设计中,我们将厨房门洞巧妙地改造为嵌入式洗衣机的空间。家政柜与周围的墙面和柜子融为一体,保持了空间的整体协调性和统一,提升了空间的美观度。
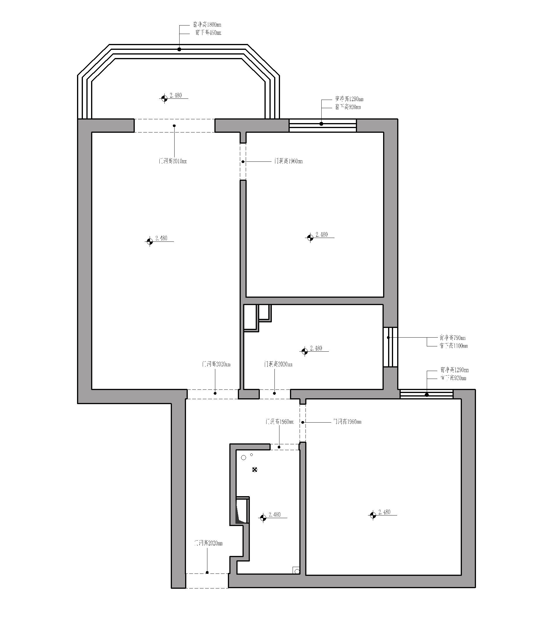
改造前:
1.玄关收纳不足,不够宽敞的过道,连放鞋子的鞋柜都不够,衣服也没地方挂。
2.卫生间空间比较小,考虑到未来会有宝宝,父母过来照顾,人员一旦增加,早上洗漱排队,便利性大大降低。
3.厨房是个重要的空间,厨卫门相对是他们比较介意的。洗衣机无处可放,还需要充分发挥空间的利用率。
4.不仅需要家政空间、扫地机器人。尤其男女主人出差,行李箱没有空间存放。
5.需要增加一处餐边柜的功能,既保证水吧台,未来宝宝的辅食操作台,还能满足小电器的存放
6.家里有两只猫咪,猫砂盆,饮水机,猫粮等一系列杂物无处安放。如果全都堆起在过道,会造成动线拥堵。
改造后:
1.改造玄关的隔断,右侧向卫生间移动空间。增加一排储物柜,可以完全解决了入户门储物,衣帽柜储物问题,看起来干净整洁。
2.卫生间做了干湿分离,将洗漱区外移至半高墙外,实现了干湿分离。这样的设计不仅提高了卫生间的使用效率,还有助于保持卫生间的干燥和清洁。
3.厨房调整洞口,原来的门洞嵌入洗衣机、烘干器。厨房内L型布局,保证充足储物和操作空间。
4.利用卫生间下水的空间,把管子隐藏,同时解决了家政柜,扫地机器人上下水的问题。
5.客厅与第三间房的隔断完全打开,做成一体式大横厅布局,提升通透性的同时,还弥补了采光的不足。
6.客厅和餐厅一体化设计,采用了开放式布局,将厨房与餐厅区域无缝连接,增强了空间的通透和互动性。这种设计不仅使空间显得更加宽敞,还方便了家庭成员之间的交流。
客服
消息
收藏
下载
最近

























