查看完整案例

收藏

下载

翻译
Architects:Equipe Lamas
Area:600m²
Year:2024
Photographs:Joana França
Lead Architect:Samuel Lamas
Category:Residential Architecture,Houses,Restoration
Project Team:Samuel Lamas, Casulo arquitetura
Landscape Architecture:Fausto Maule
City:São José do Rio Pardo
Country:Brazil
Text description provided by the architects. Among the wooded hills of the São Paulo countryside, Fazenda Pinheiro reaffirms that architecture can evolve in dialogue with time. Built in the 1980s as the headquarters of a farm, the house was restored by the Lamas Team with the purpose of reclaiming its essence and adapting its spaces to a contemporary way of living, while simultaneously enhancing the connection between architecture and landscape.
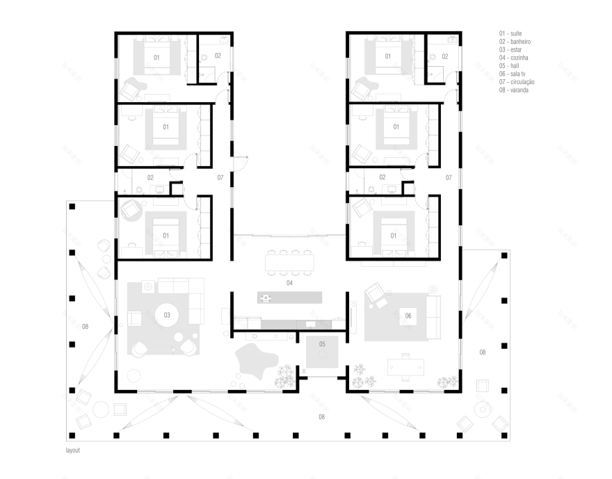
The intervention preserved the clay roof, eaves, and the U-shaped geometry of the original plan, reorganizing the interiors for a more fluid and integrated experience. At the center of the house, the kitchen has become the heart of the project, situated between the dining room and the TV and games room. The space opens to the patio through wide sliding glass and wood doors, dissolving the boundary between interior and garden. The hydraulic tile flooring, in the shade of the local earth, connects the spaces and reinforces the continuity between inside and outside.
The bedrooms and bathrooms maintain their original positions but have been clad in warm, natural materials. The peroba flooring has replaced the old slate in the social and intimate areas, while the national white marble and solid pine in the bathrooms convey an elegant simplicity, based on authenticity and precision. The enlarged window frames preserve the design and the vernacular green color, allowing light and air to flow through the house gently and abundantly.
The furniture brings together modernist pieces, family objects, and contemporary creations, including designs by Samuel Lamas himself, creating a balanced ensemble between sobriety and color. The white walls quiet the architecture, welcoming artworks and furniture in vibrant and earthy tones, creating a serene yet lively atmosphere.
The landscaping by Fausto Maule replenishes the surroundings with native species that bloom year-round, attracting birds and extending the inhabited space to the horizon.
Fazenda Pinheiro is a house that transforms while preserving memory. An exercise in synthesis and integration, where each gesture reveals the essential, the communion between light, matter, time, and landscape.
Project gallery
客服
消息
收藏
下载
最近





























