查看完整案例

收藏

下载

翻译
Santos Residence
Kitchen
US
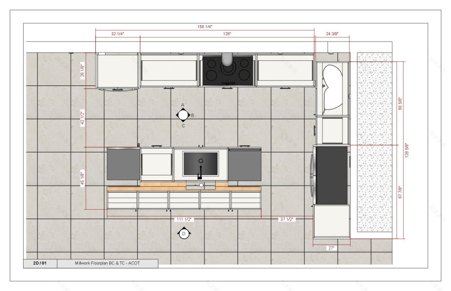
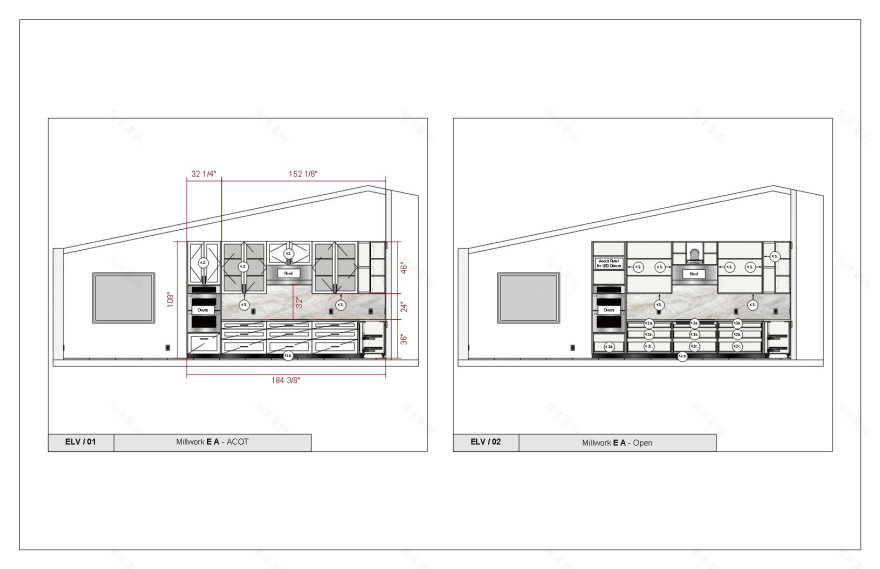
Shaker-style kitchen design as part of a residential renovation intended for short-term rental use. Project developed within the ALONSO FRANCO | High-End Millwork team, with involvement in layout planning, millwork design, material selection, and construction detailing, prioritizing functionality, durability, and visual appeal.
Diseño de cocina estilo Shaker como parte de la remodelación de una vivienda destinada a alquiler de estancias cortas.Proyecto desarrollado dentro del equipo de ALONSO FRANCO | High-End Millwork, con participación en la distribución, diseño de mobiliario, selección de materiales y desarrollo de detalles constructivos, priorizando funcionalidad, durabilidad y estética.
Bathroom Design | Refined Simplicity
US
As an integral part of the renovation, the bathroom design was conceived with a contemporary and timeless approach, emphasizing visual clarity, functionality, and material balance. Custom millwork, clean lines, and a neutral palette were used to enhance natural light and create calm, refined spaces throughout the residence.
ES
Como parte integral de la remodelación, el diseño de los baños se planteó bajo una estética contemporánea y atemporal, priorizando la limpieza visual, la funcionalidad y el equilibrio material. Se trabajó con mobiliario a medida, líneas depuradas y una paleta neutra que resalta la iluminación natural y aporta una sensación de calma y sofisticación a cada espacio.
客服
消息
收藏
下载
最近























