查看完整案例

收藏

下载

翻译
Architects:AGP Architects
Area:6640m²
Year:2024
Photographs:Damir Otegen
Manufacturers:VEKA,Armstrong ceilings,Balta
Lead Architects:Kanashkova Svetlana
Category:Schools,Adaptive Reuse,Renovation
Technical Team:Zhunusov Madi, Kapenov Askar, Shevchenko Aleksandr
Engineering & Consulting > Lighting:Dampa
City:Almaty
Country:Kazakhstan
Text description provided by the architects. A former 1978 campus building at Narxoz University in Almaty has been transformed into a contemporary Business School that redefines how executive education is experienced in Central Asia, turning a forgotten architectural feature into the driving force of a new institutional identity.
The project is located within the active university campus and occupies a structure that had long housed administrative offices and a cafeteria. A rooftop addition from the early 2000s had altered the original proportions of the building, giving it a heavy and visually disconnected presence. The client's ambition was to create a business school aligned with international standards of executive education while clearly distancing it from the image of a conventional academic building. At the same time, the project had to operate within strict constraints related to height, structural capacity, and seismic regulations, which are particularly demanding in Almaty's seismic zone.
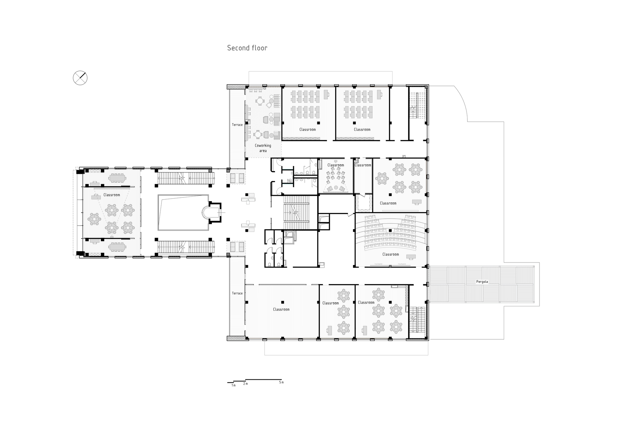
During the technical assessment, the upper floor was found to be structurally unsafe and had to be completely dismantled. This created the risk of losing the building's original sawtooth roof, which had been concealed behind parapet panels and was no longer visible in the campus landscape. Archival research and on-site investigations revealed the original roof geometry, and the architects made a deliberate decision to reconstruct it using new structural systems. In a context where many Soviet era buildings in Kazakhstan are routinely demolished, this choice became a cultural statement, demonstrating that existing architecture can be treated as a resource rather than an obstacle.
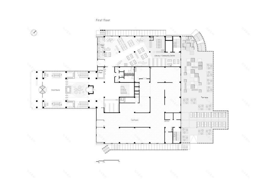
To give the Business School a clear public presence and a contemporary identity, a new attached volume was added to house the main entrance, reception, a double-height lobby, and a panoramic elevator. This addition acts as a communication and circulation hub, reinforcing the autonomy of the Business School within the larger campus while improving accessibility and orientation.
Inside, the spatial organization unfolds as a sequence of academic and social spaces distributed across all levels. The program includes technologically equipped classrooms, coworking areas, informal meeting zones, coffee points, and video studios. Former basement storage rooms were transformed into multifunctional halls for events and exhibitions, now filled with natural light through full-height glazing and a horizontal skylight integrated into the terrace above. Throughout the building, generous daylight, open views, and carefully designed acoustics support concentration, dialogue, and collaboration.
Metal defines both the roof and facades through standing seam panels that flow seamlessly across the volume, emphasizing the rhythm of the sawtooth profile and giving the building a unified architectural expression. A restrained palette of grey and white tones maintains a dialogue with the surrounding campus while allowing the Business School to assert its own identity.
The completed building now operates as a flexible educational and social platform, supporting both academic programs and public activities. By revealing and reinterpreting a hidden architectural layer, the project offers a powerful example of how historic structures can be adapted for contemporary use, providing a cultural reference for future generations and a new public face for Narxoz University.
Project gallery
客服
消息
收藏
下载
最近































