查看完整案例

收藏

下载

翻译
Architects:Estudio Libre MX
Area:376m²
Year:2025
Photographs:Luis Young
Lead Architects:Andrés Berjón, Diego Rodriguez
Category:Houses
Lead Team:Diego Rodriguez, Luis Gerardo Campos Alanís
Technical Team:Ricardo Castro Padilla
Landscape Architecture:Tepetl
Interior Design:Departamento de Interiores
Engineering And Consulting > Lighting:Light and Architecture. Space
Engineering And Consulting > Other:Aqualaris
City:Ciudad de México
Country:Mexico
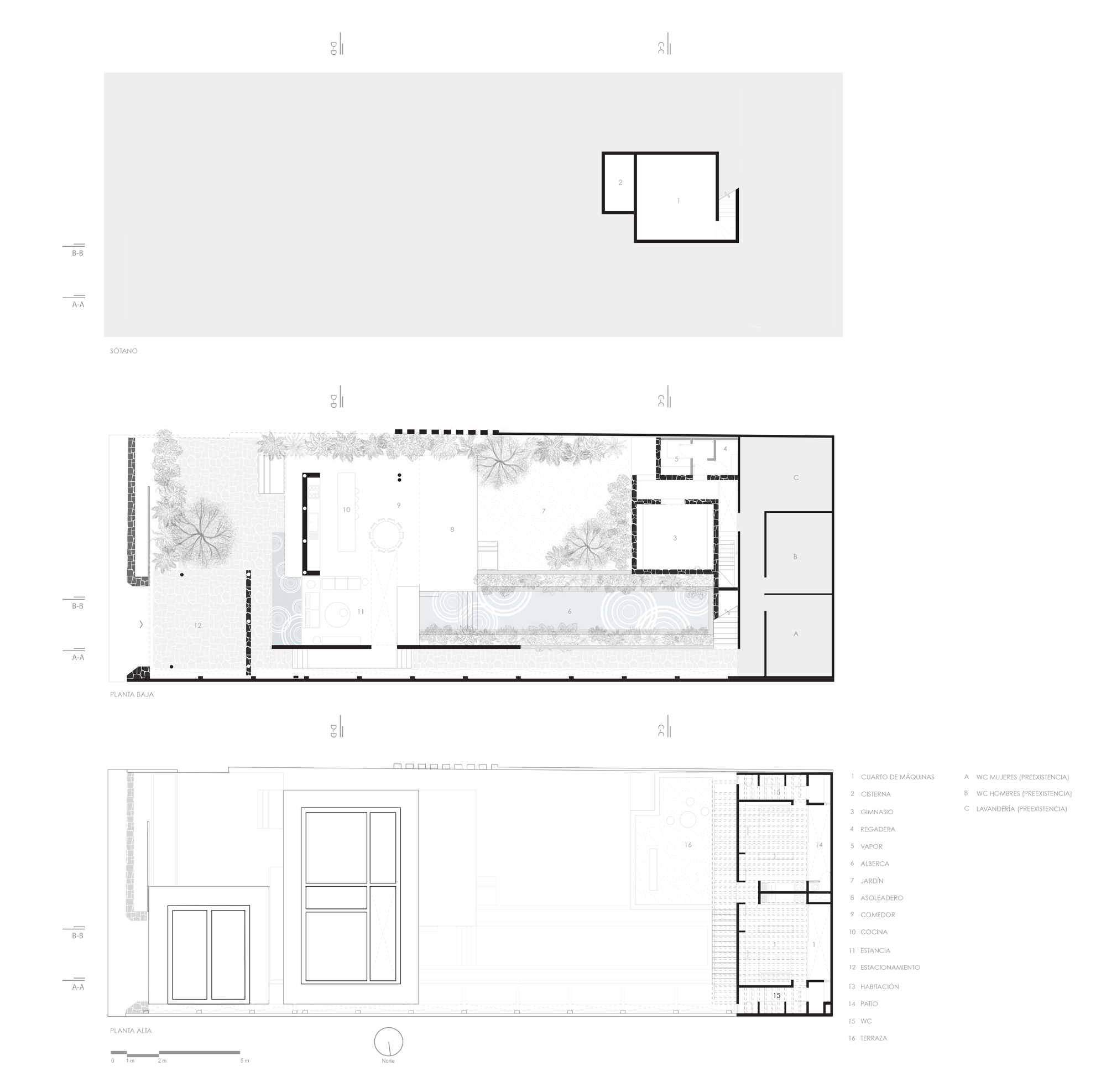
Text description provided by the architects. Located to the south of Mexico City, a residential house was designed with the goal of hosting gatherings and events — providing a space for family interaction and recreation — with a swimming lane as the main axis of the project.
The program is resolved linearly, through vehicular and pedestrian access on the eastern side, where the public spaces are first revealed — the living room, kitchen, dining room, and gardens; at the end of the property, the private program is concentrated — steam room, shower, gym, and bedrooms. The journey allows for the discovery of the architecture unfolding through planes and slabs, generating visual focal points and lobbies, as well as spaces for contemplation and containment at every turn.
Its layout allows the house to play with volume/void, positive/negative; in section and when traversing the terrain, the project permits free circulation, promoting natural cross-ventilation with open spaces, without windows, under a large roof that contains the recreation area. This reinforced concrete slab is supported by circular profile columns and a load-bearing wall — finished with tezontle — that gives the impression of sliding beneath the slab and framing the swimming lane.
Hanging from the slab, a pair of curtains help control the afternoon sun and, if necessary, also the rain. This entire volume is raised from a foundation of visible stone walls that support a lightweight concrete slab. The overhang of this slab makes the volume "float" above the vegetation. In turn, the swimming lane intersects this plane and glides beneath the cantilevered slab. Along the tezontle wall and the swimming lane, two planters and a cantilevered slab extend to shelter the user, leading them to the private area of the project.
Finally, contained within walls of locally placed and carved stone are the spaces that have a more private and relaxing character; these draw the user into a dimly lit area, where they can use the gym, sit in the steam room after exercising, and take a shower. A pair of bedrooms crown the house on the second level. Their access is through stone stairs that lead to a habitable terrace, bordered by planters and tezontle gravel flooring. Each bedroom is equipped with a kitchenette and a balcony.
Project gallery
客服
消息
收藏
下载
最近














