查看完整案例


收藏

下载
与时间博弈,以专业破局。面对250㎡单层空间与紧迫工期的双重考验,设计师凭借超高效率巧妙“变层”,将单层空间重构为双层格局,实现精准破局。方案紧扣商业动线、产品陈列与顾客体验三大关键要素,在确保推进速度的同时深挖设计内涵,让木作艺术之美与高效交付需求完美融合,以硬核实力彰显卓越设计水准。
项目概况
|Project overview
|Address:上海·一体家美学木作展厅
Space:500㎡
Housetype:木作定制展厅
Design:有关设计
一楼
原始户型图
|Original Structure
|▼Before
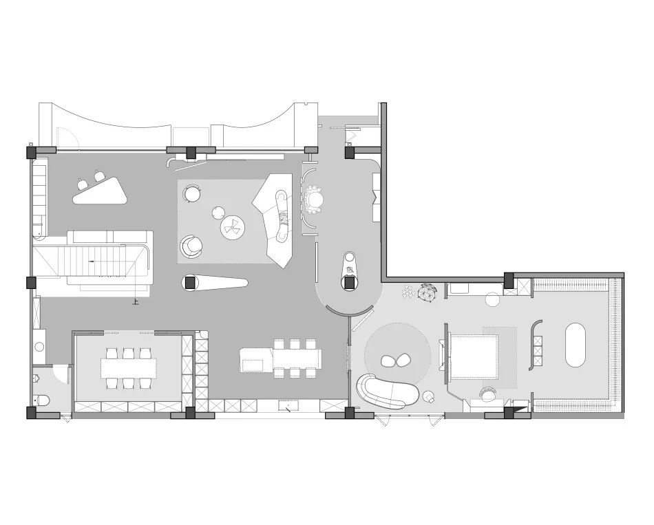
一楼平面布置图 | Layout Plan | ▼After
设计亮点 | Design highlights |
1、垂直拓展双层设计,最大化空间利用率。
2、分层布局,体验与展示功能清晰界定。
3、多元材质碰撞,提升空间格调美感。
业主:一体家木作展厅位于上海一个创意园区,我们想打造“摩登上海”的独特风格。从2024年10月7日测量,月底动工,到2025年3月正式开业,全程不到五个月,这对设计团队的效率和配合度是极限挑战。
设计师:挑战很大。我当时在国外,得在15天内敲定平面,推演完整立面和造型逻辑。那半个月我倒着时差工作,只为找出精准方案。
业主:方案让我眼前一亮。你没因时间紧就敷衍,反而巧妙利用层高,抓住了“摩登”精髓。
设计师:我们把物理上的一层拆解成“双层”,一层是气场强大的商业展厅,二层是洽谈、办公一体的私属空间,平衡了动与静。
业主:这正是我想要的“动静分区”。面对急单,你没套模板,而是定制化思考,这也是我敢在严苛工期下坚持高专业标准的原因。
设计师:谢谢信任。设计效率就是在最短时间内捕捉空间灵魂。“摩登上海”不是符号堆砌,而是精致与包容并存。
业主:对。后续施工还需高频跟进,你们这种高强度专业配合,才是项目完美落地的保障。
门头与门厅
阔尺窗洞引自然光倾泻而入,尖顶拱门拉升空间视觉纵深,凭一抹神秘韵味,吸引来客步入此间,开启探索之旅。
步入门厅,弧形灯带与墙面弧形隔断相映成趣,柔化棱角,浅石、深木与亮红交织,于光影间勾勒出现代美学的克制与深情。
客厅
黑白交织奠定现代基调,镂空木隔断赋予空间呼吸感。不对称沙发围合慵懒氛围,奶白底色点缀朱红与墨绿,石材、丝绒与木作刚柔并济,营造出格调与温情共生的家庭归宿。
餐厅
深色木作邂逅天然石材,诉说着人间烟火的温情。转角弧形墙板柔化空间,深邃黑底上金色花枝悄然绽放,化作过渡空间里最为灵动的一笔。
起居室
弧形线条与光影交织如诗。暖白色布艺沙发触感轻柔,叠加镜面打破空间界限,黑色屏风与法式壁炉遥相呼应,于明暗间勾勒出浪漫法式风情。
卧室
悬浮床架轻盈如羽,似卸去所有重负,许一夜好梦。木作柜体巧妙划分休闲与梳妆区,围就一方远离喧嚣的惬意天地。
衣帽间
隐藏与开放结合的收纳格局,平衡视觉整洁与实用需求,以灵活形式妥帖收纳各类物品,让精致井然有序。
VIP室
浅灰底色铺陈冷静质感,金属移门转换视线虚实。极简空间剥离繁复,以纯粹的理性秩序,酝酿每一次重要思考与对话。
卫生间
依偎楼梯,干湿分离实用雅致,深灰柜体配红岩板台面,玻璃镜柜延伸视觉,方寸间尽显格调。楼梯
白色几何楼梯如艺术品悬浮于挑高空间,玻璃幕墙引入自然光,与隐形光源交织,光影流转间步移景异。梯下绿意盎然,自成迷你森林,为空间注入自然生机。
二楼
二楼原始户型图
|Original Structure|▼Before
二楼平面布置图 | Layout Plan | ▼After
过道与展示区
楼梯口仿生枝桠吊灯垂落,暖光轻洒,温柔迎候每一位顾客。弧形走廊通向样板展示区,两侧绿植簇拥,宛若森林秘境,转身回眸皆是自然深情。
总经理办公室
弧形吊顶呼应流线型沙发,营造出漫步云端般的轻盈感。浅木、纯白与玻璃,三重质感巧妙平衡,细节尽显女企业家精致格调。
茶室
新中式茶室的静谧,是让时光慢下来的魔法。黑胡桃木奠定基调,绿植与木色刚柔相济,光影中茶香浸染禅意时光。
卫生间
墨绿大理石凝山水于墙,深邃静谧。浅木色木作,点缀金属,冷暖交融,碰撞出自然与工业共生的艺术。
取之于木,用之于心。木作的魅力,在于它将生命的纹理凝固为永恒的美学。我们以木为笔,勾勒出空间的无限可能,探寻人与环境共生之道。展厅的终点,亦是理想生活的起点。我们与木、与匠心的故事,随岁月缓缓生长。
/ 荣誉 Honor /
2022年 G+全球设计精英 武汉TOP10
2021年 IHIDA人居空间设计奖
2021年 国潮星设计 百强设计师
2021年 寻找国民好设计
2021年 40 under 40 中国(武汉)设计杰出青年
2018 - 2021年 40 under 40中国(湖北)设计杰出青年
2021年 绝对设计 设计创造价值精英人物
2021年 20G+/21 AWARDS 中国·武汉TOP10
2021年 黑标设计师 入围
2021年 国际幸福家设计大赛 特别大奖
2020年 “她设计”年度优秀软装设计
2020年 金住奖(武汉)十大居住空间设计师
2019 金住奖中国百杰居住空间设计师
2019 中国(武汉)十大居住空间设计师
2018 IDF“建筑主义“设计先锋人物
2018 芒果奖 中国住宅优胜奖
2018 CCTV《空间榜样》入选作品
2018 国务院颁发光华龙腾奖 百人榜
2018 M+中国高端室内设计大赛 年度网络人气奖
2016 湖北室内设计总评榜 住宅类优秀奖
2016 Hi - Design第四届室内设计大赛公寓组一等奖
2016 第七届筑巢奖住宅类优秀奖
△可上下滑动查看更多
服务咨询 | TEL 180 - 8611 - 9393
座机 | TELEPHONE 027 - 88877876
whygsj999
地址 | ADD 武汉·武昌区和平大道龙湖滨江天街铂金岛7 - 1 - 1818
扫码关注有关设计 有关里的一切 只为与你有关
未来 我们共同期待
客服
消息
收藏
下载
最近

















































