查看完整案例

收藏

下载
空间的表达是后知后觉的精神,如果一个空间没有思考的递进,那么视觉仅仅是洞察的表象。
项目信息
Information
项目坐标
Location:河南.郑州
项目面积
Square Meters:157㎡
设计团队
Project Construction 集物所建筑设计
主要用材
Material:瓷砖、木饰面、乳胶漆、不锈钢、木地板、清水艺术漆
设计时间
Time:2024.6
施工时间
Time:2024.9-2025.9
设计撰文
Write Article 刘明帅
项目施工
Project Construction 柘筑精造
协作品牌
基里SIILI家居
中装联金属定制
智装侠
鲍荣艺术漆、流体实验室涂料、德利丰岩板、大金空调、研石空间、菲斯曼、集木地板、BOSCH、Kumahome、朗斯、汉斯格雅、minotti
项目摄影
立明
▲手机录制 ©集物所
BEAUTY OF BALANCE 建筑的平衡 01
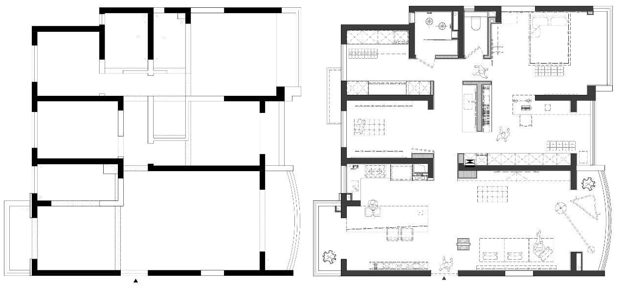
空间概况:本案位于河南省郑州市,是一套正常四居室的居住空间,原始格局上有诸多的承重墙,且结构与多重梁体交叉,拆改的可能性非常受限,导致前厅与后端的空间被迫分离,如何让空间变得灵活以及让空间能够跳脱出来原始的束缚是空间的一个思考点。
整个空间大胆地运用了看似很冷实则会激发温度的黑以及毛坯触感的混凝土,在业主的功能需求之外,我们聊了很多关于认知和审美上的事情,清晰记得他当时刚从埃及回来,与我分享了很多的经历和故事,能够感受到他希望的空间,是冰冷的,是松弛的,是渴望的,同时也是自我的,就如同他所形容的:我希望我的家像是一个停尸房,但是也有温度。见面一个多小时后我们签订设计合作,离开后我甚至不知道他叫什么名字、、、
设计思考上,房屋是一个人居住,我们无需考虑常规家庭的居住方式,也无需评判个人的习惯。
初始化的承重墙,把所有的毛面进行处理,尽可能地确保看似不能利用的梁体和墙体作为一个架构关自然的裸露出来,形成一种其他场域的互补,从而建立逻辑,建立松弛背后能够被看到的那些氛围,以达到有效的冰冷和温暖重组。
ONTOLOGICAL
本体性建造 //////
前厅的视觉关系决定着我们进入到这个家的第一感受,原始入户格局上是餐厅和客厅的常规组合方式,其实就是一个很直观的左右分离的两个固态模式的呈现,为了打破直白的视觉关系,也为了能够让前厅通往后面卧室的空间形成一种节奏,我们加了一根很夯实的不锈钢柱体,让其成为一种衔接的媒介,从而区分客餐厅的空间关系,也让整个光线形成一种垂直错落的明暗层次。
在让空间变得延伸以及使使用者用起来更加便利后,材质应用组合上,我们在工区的地面处理中用了柔光的深黑色瓷砖作为漫反射的条件,进而让空间逐渐温和下来,整个米灰色的手工砖和深黑色的长条砖作为空间的整个铺贴基调,使得空间的场域里面出现了细微的材质变化,且丰富着居住者的精神内核。
餐厅延续着整个空间的节奏,不管是颜色,还是材质的组合方式,基于居住者的实际生活习惯和所从事过的行业属性关系,我们把原本的餐厅和厨房墙体完全打掉,用一个类似于装置性质的吧台,把空间联系起来,金属色的岩板、定制的不锈钢脚蹬、金属吊灯以及斜切面不规则形式的金属漆柜板,这些通常属于商业元素的设计形态完全融入到这个家里面,环境与人的关系,更是被无限放大的表述着业主的认知和生活的感官形式。
现场手机随拍 业主
空间形式和节奏,与人有关,从前厅逐渐步入到设计终端的探索过程,我们一直希望空间的动线方式是在表达着居住者的行为思考逻辑。
▲手办间
▲通往书房
空间内部的初始形式是建筑所给与的,但被定义成是否合适的时候,要思考的是当下的空间状态如何能够和未来的生活方式联系起来。在行走的无限个解读的方式中,我们似乎是在找寻一种内心的方程式,重新塑造后的变化真正给居住者带来的精神世界是怎么样的,对内向空间的体验该如何转述成一个叙事性的过程,是很难但又是一个追求的方向。空间的体块和温度,材质的明暗和触感,所包含的释放与内敛,作为独立的个人,这不单单只是一次的设计,也不仅仅是一个承载着只是居住的家,而是要融入到以及要接受所面临的二次生活方式的随机性改革问题。
主卧套房
这幅来自一个艺术家的手工雕刻的海洋肌理,如空间强调的光感和层次。随着画面的延伸,被带入到这个原创者所希望的那个世界里。
▼夜色-手机随拍 ©业主
我们终其找寻感动,是精神的独处,是内心的飘离。我们回归到田野,看着星辰,躺卧在杂草的谷堆上,放任思潮的涌动。这些不曾被注视的岁月尘埃,一直都在伴随着我,极力的追逐自由、阳光和爱。我们相信,一个设计的开始,应当来自于对其本源的再思考。
客服
消息
收藏
下载
最近









































