查看完整案例

收藏

下载

翻译
Architects:Bohlin Cywinksi Jackson
Area:265000ft²
Year:2024
Photographs:Nick Lehoux
Manufacturers:Forbo Flooring Systems,Miller Knoll,Mohawk Group,Turf,Usai Lighting,Via Seating
Category:Educational Architecture,University
Lead Team:Thomas Kirk, Daniel Lee, George Murphy,
Design Team:Tom Breslin, Bryan Sistino, Margaret Sledge, Judy Chang
Architecture Offices:Walker Architects
Engineering & Consulting > Structural:Walter P. Moore
Engineering & Consulting > Mep:Affiliated Engineers (AEI)
Landscape Architecture And Civil Engineering:CHW
Engineering & Consulting > Acoustic:Siebein Associates
General Contractor:Ajax Building Corporation
Engineering & Consulting > Services:hka
Engineering & Consulting > Other:N-RG Cladding, SageGlass / Saint-Gobain
City:Gainesville
Country:United States
Text description provided by the architects. Malachowsky Hall is the central hub for data- and AI-focused academic and research programs from the Herbert Wertheim College of Engineering, the College of Medicine, and the College of Pharmacy. Here, faculty and students from these and other colleges at the University of Florida work together to use data analytics and AI to improve health; engineer the next generation of robotics, unmanned vehicles, and communication systems; and ensure AI is used ethically and equitably. Intentionally positioned at a prominent location near the Reitz student union, the LEED Platinum project welcomes broad campus engagement and exploration.
The building's exterior, clad in 1,500 custom metal panel units, is a marked departure from the predominant use of brick throughout campus. The prefabricated panels helped achieve budget and sustainability goals, while creating a striking presence that changes with shifting light throughout the day. The typical rainscreen panel module, a 6' x 7.5' folded aluminum sheet, is a single unique geometry that is rotated and mirrored to create a dynamic expression.
Shop-manufactured panels aided in meeting an ambitious schedule and allowed for greater quality control. Window shapes within the panelized facade contain electrochromic glazing, which responds to the path of the sun, tinting each unit to mitigate glare for occupants. All glazing on the project, including the electrochromic windows, features a bird-safe frit pattern.
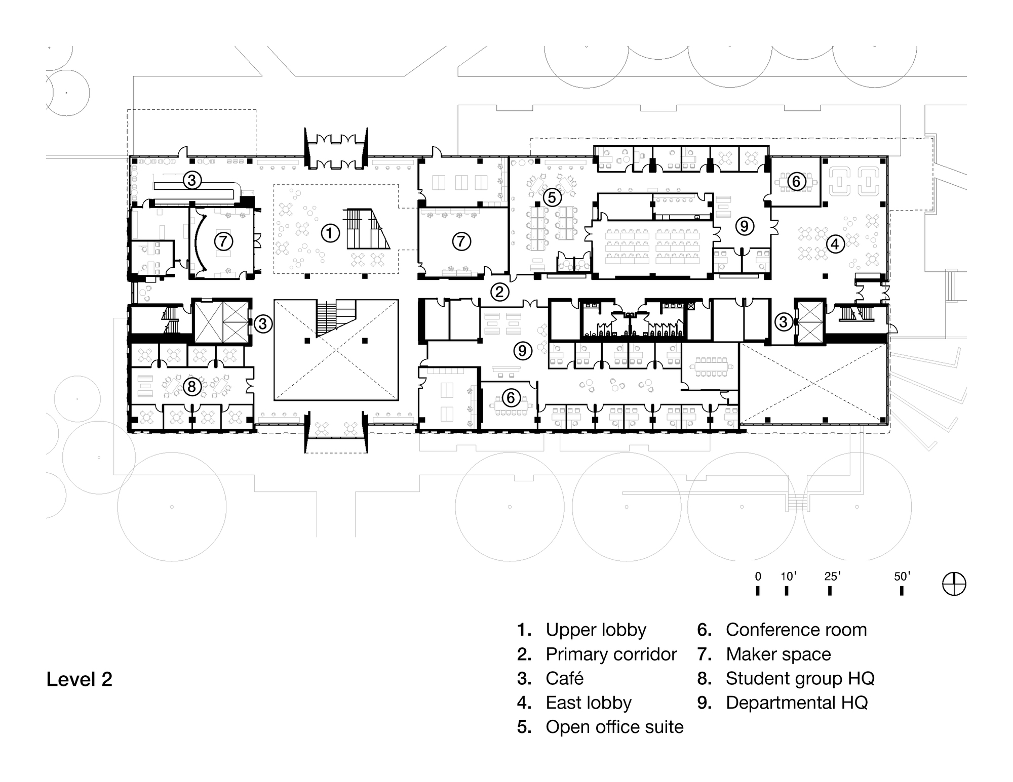
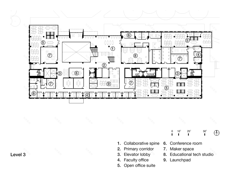
Space-planning goals included providing areas for focused and group work; flexibility within departments and throughout the building; democratizing access to daylight and views; and reducing siloing by creating opportunities for spontaneous interaction. Although privacy was necessary for some departmental work, the design team developed strategies for encouraging cross-pollination of ideas and research across fields of study.
A light-filled central commons connects departments and opens all levels of the building. Each floor is broken into a series of "academic villages" with spaces to gather, offices and meeting rooms, makerspaces, and departmental headquarters. This variety promotes interaction between students from different research laboratories and provides flexibility for different working styles.
At Malachowsky Hall, students and faculty have access to an array of environments seldom found under one roof, including a high-bay robotics lab, dedicated makerspaces for cybersecurity and AI, and easily reconfigurable classrooms. Given the diversity of work and the rapid pace at which technology evolves, research labs were designed like makerspaces, allowing users to customize their environment as needs, technology, and personnel change.
Responding to the competing desires for transparency and privacy in ongoing scientific research, most are positioned around the commons, visible as hubs of activity while maintaining separation for the sensitive nature of the work. A 300-seat auditorium and 150-person multipurpose forum provide new capacity for the University to host events and lectures of varied scales within Malachowsky Hall.
Project gallery
客服
消息
收藏
下载
最近


























