查看完整案例

收藏

下载
项目位于三种截然不同的城市肌理交汇处——东、西两侧为拉肯(Laeken)的老城区,南侧则是滨水工业区。迪厄多内·勒费弗街(Dieudonné Lefèvre Street)在此成为分隔不同城市世界的界线,同时又通过一片缓缓倾斜的林地,与南侧的 Tour & Taxis 公园相邻。住宅与工业并置的混合语境,使场地呈现出强烈的对比性特征:项目一侧紧邻一座体量庞大的仓库,其立面仅由一面空白墙体构成。
Located at the intersection of three distinct urban entities — the old neighborhoods of Laeken to the east and west, and the maritime district to the south — Dieudonné Lefèvre Street acts as a boundary line between these worlds, while bordering the Tour & Taxis park to the south, through a gently sloping wooded area. This hybrid context, both residential and industrial, is marked by an imposing warehouse adjacent to the project, framed by a blank wall.
▼项目外景,Exterior of the project ©STIJN BOLLAERT
▼屋顶排水装置,Exterior of the project ©STIJN BOLLAERT
建筑以南北向展开,这一布局有助于精准控制自然采光,在最大化室内明亮度的同时,避免夏季过热。原有住宅为三间首尾相连的房间,此次改造将其重组为一套当代两居室,并重新聚焦于与私人花园之间的空间关系。
The project unfolds with a north-south orientation, providing optimal control of natural light, maximizing brightness while preventing summer overheating. The former apartment, originally composed of three consecutive rooms, has been reconfigured into a contemporary two-bedroom space, refocused on its connection to a private garden.
▼檐下空间,Space under the eaves ©STIJN BOLLAERT
▼主空间,Primary space ©STIJN BOLLAERT
设计中的一个激进举措,是对原本完全不透水的庭院进行开挖,将其地面降低至公寓的室内标高。这一新生成的可渗透空间被转化为花园,成为地块后方的一处“自然口袋”。贯穿客厅与花园之间的第一条对角线,是项目的重要空间策略:它不仅将光线引入原本昏暗的室内深处,同时在靠近花园的位置塑造出一个私密而亲切的角落,可直接通往花园与覆棚露台。该空间既可作为灵活的工作区,也成为日常生活中流动而明亮的延展。
A radical move involves excavating the formerly impermeable courtyard, lowering it to the apartment’s ground level. This new porous space transforms into a garden, a pocket of nature in the rear of the plot. The first diagonal of the project, extending from the living room to the garden, serves multiple functions: it brings light into the formerly dark interior while also creating an intimate niche with direct access to the garden and the covered terrace. This space becomes a flexible work area, a fluid and luminous extension of daily life.
▼收纳空间,Storage space ©STIJN BOLLAERT
▼吧台,Service counter ©STIJN BOLLAERT
扩建部分延续了室内外融合的逻辑。新建卧室面向花园,通过覆棚露台获得私密性,在居住空间与自然之间建立起一种微妙的关系。窗户以对角线方向布置,使花园仿佛“渗入”室内,模糊了内与外的界限;不同体量相互咬合,弱化了传统空间分隔所带来的明确边界。立面不再遵循单一、刚性的平面,而是通过折断与错动生成深远的视线与意外的景观关系。餐厅与厨房锚定在这一尺度慷慨的扩展空间中,与花园保持持续对话,同时相较于原有布局,建筑占地面积反而得以缩减。新的屋顶在尊重既有结构的前提下,与原屋顶齐平,形成一条连续的视觉带,将整体空间统一起来,确保空间与材料上的连贯性。
The extension continues this logic of merging interior and exterior. The new bedroom, facing the garden, gains privacy through the covered terrace, establishing a subtle relationship between living space and nature. The windows, oriented diagonally, allow the garden to “penetrate” the living spaces, blurring the boundary between inside and outside. The volumes interlock, softening traditional spatial limits. The façade, instead of aligning to a rigid plane, fractures the space, generating deep perspectives and unexpected views. The dining room and kitchen anchor themselves in this generous extension, in constant dialogue with the garden, while reducing the building’s footprint compared to the original layout. The new roof, respectful of the existing structure, aligns with the original to create a visual band that ties the project together, ensuring spatial and material continuity.
▼餐桌,Dining table ©STIJN BOLLAERT
▼空间与自然的连接,Relationship between living space and nature ©STIJN BOLLAERT
▼室内结构与细节,Interior structure and detail ©STIJN BOLLAERT
结构体系同样遵循这一对角节奏,柱与梁以原始、坦率的方式显露出来,使每一个结构构件都成为空间叙事中的主角。最终呈现的是一种碎片化却无明确界限的空间感知,如同自然本身——建筑在其中逐渐退居幕后,让人的生活与环境之间实现无缝、流动的融合。
The structural system follows this diagonal rhythm, exposing columns and beams in a raw aesthetic where each structural element becomes a protagonist in the spatial narrative. The result is a fragmented perception of space, without clear boundaries, akin to nature itself, where architecture fades to allow a seamless fluidity between human life and its environment.
▼室外细节,Exterior detail ©STIJN BOLLAERT
▼平面图,Floor plan ©NOTAN OFFICE
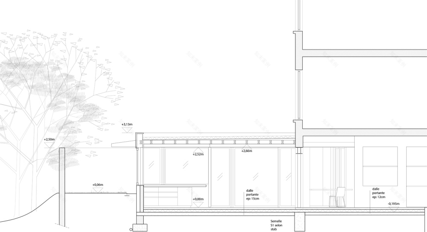
▼剖面图,Section ©NOTAN OFFICE
Project Name: DIEU
Architecture Firm: NOTAN OFFICE
Instagram: notanoffice
Facebook:
Firm Location: Brussels
Completion Year: 2024
Gross Built Area: 122m2
Project location: Brussels, Belgium
Lead Architects: Frédéric Karam
Photo credits: STIJN BOLLAERT
Clients: Private
Engineering: Forme et structure
客服
消息
收藏
下载
最近




















