查看完整案例

收藏

下载
@门诊综合楼前广场-主入口
@门诊楼主入口-院外视角
@门诊综合楼-主入口
项目位于绥化市北林区城区西部,东侧为医院远期预留发展用地,紧邻西湖公园、 水上乐园及游乐场,南临文体馆,景观环境优美,交通便利。
@项目原貌及区位
建筑打破封闭的巨构医院建筑模式,规划布局自然舒展,打造多个开放式庭院与风廊,引导阳光与气流自由穿梭。形成建筑、庭院、连廊有机穿插的"三庭四院"院落式布局,让建筑在绿色中生长,成为一座与自然共律动的疗愈绿洲。
△总平面图
设计汲取中国传统群落空间模式,将院区主形象入口设置在场地的南侧,入口设置主景观广场,将新建建筑居中布置,沿南北主轴线关系构筑一系列由门诊医技、康养中心、住院部、行政后勤区、传染楼、连廊所组成的组群院落空间,高低错落,规划出围合、半围合的院落空间,形成富有层次、特色鲜明、文化浓厚的个性化动态空间。
△规划布局
规划布置六大功能区,串联南北两大景观区,通过连廊及空间的变化,创造出多重院落空间,使建筑与景观融为一体。
△ 规划布局根据业主方近期、远期需求,统筹考虑规划布局,院落可分可合,流线高效顺畅。目前一期二期建筑部分已完成并投入使用。
@景观内院
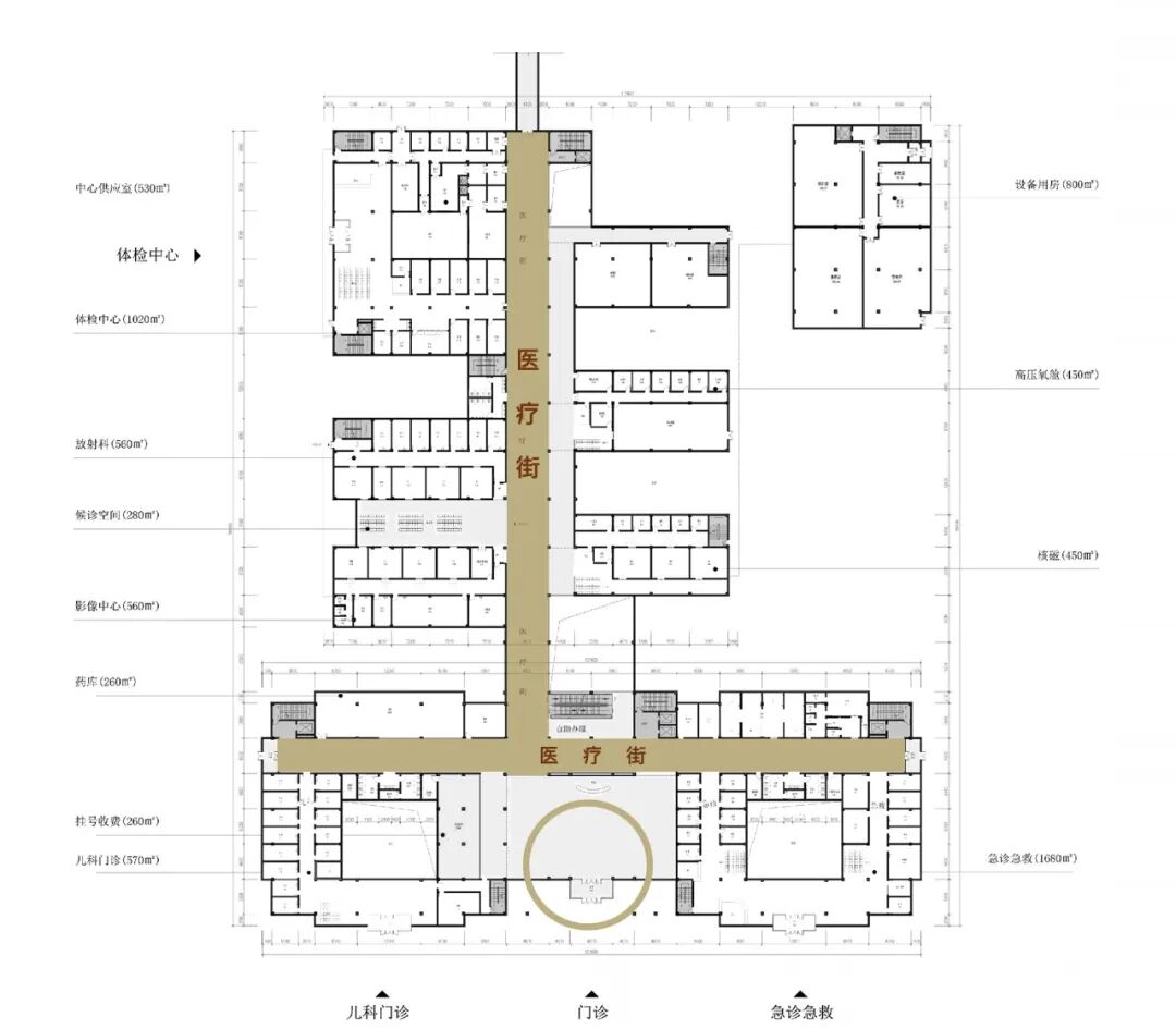
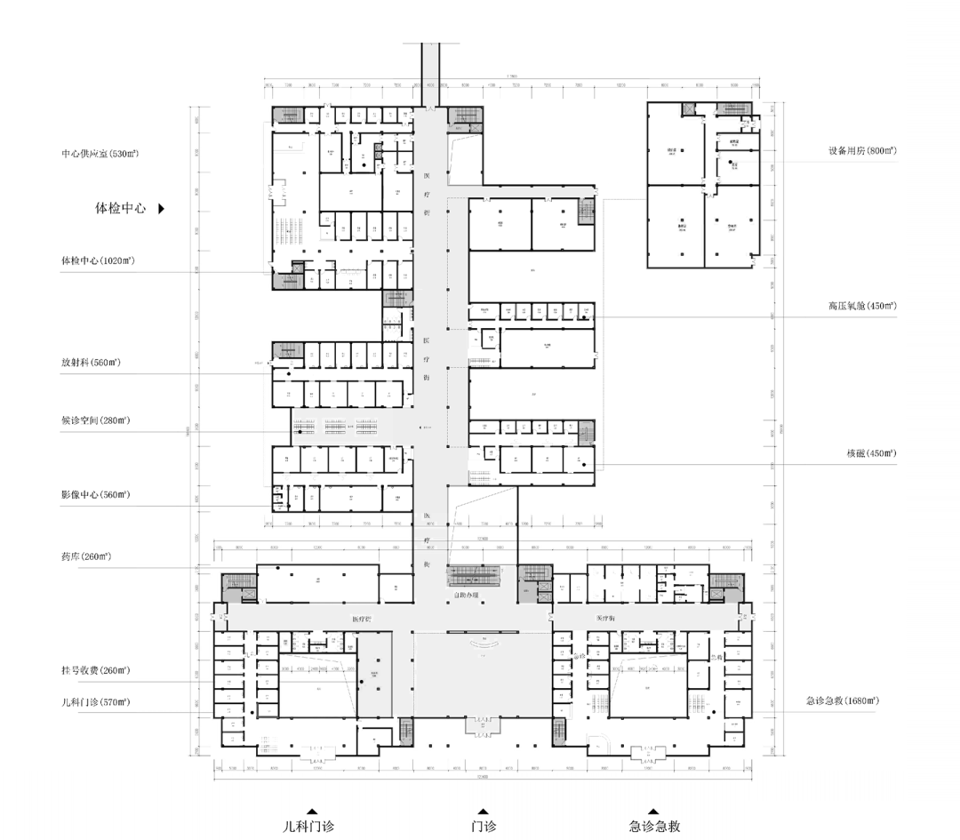
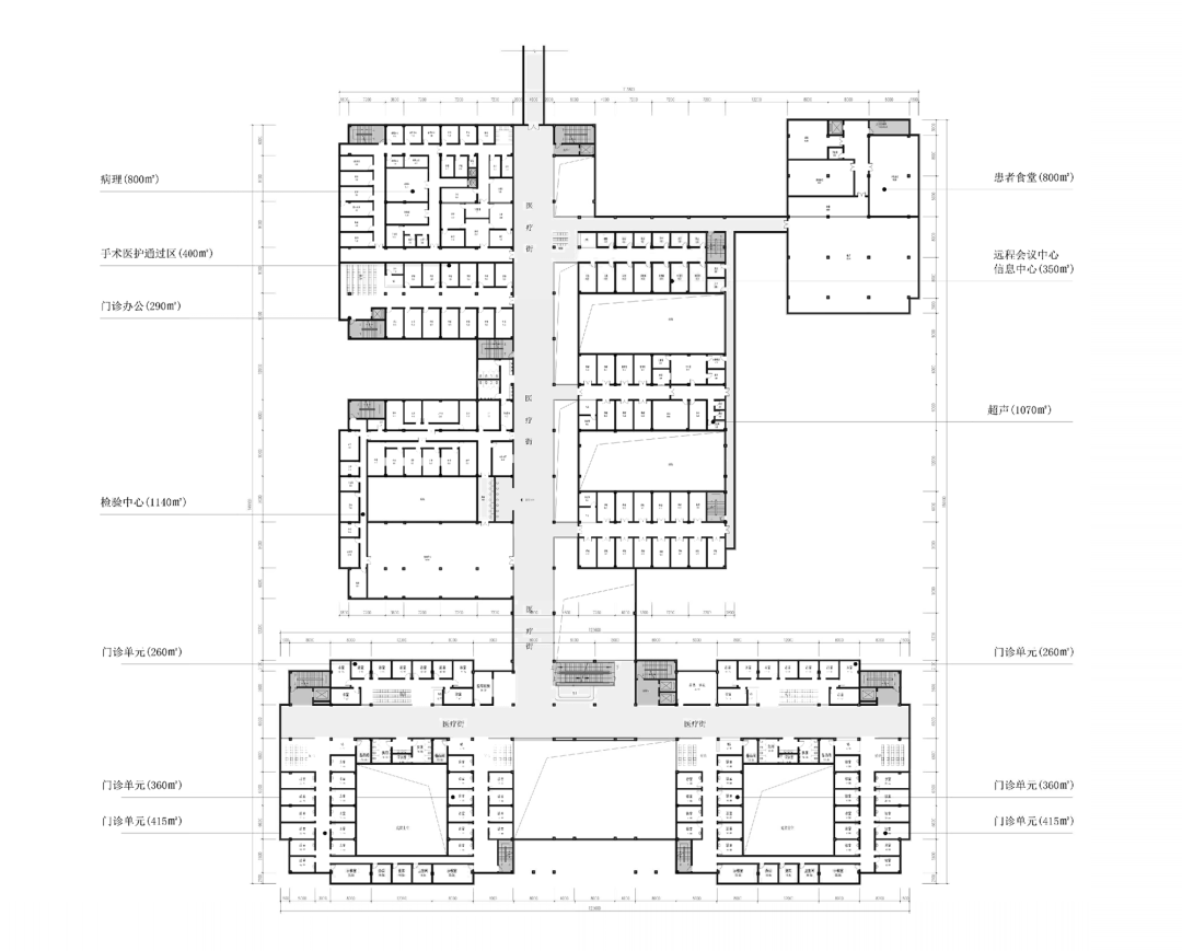
清晰开放的主轴医疗街,作为医院的"主动脉",极大降低患者、访客的寻路难度,提升可达性;串联门诊、医技、住院等核心单元,实现检查、治疗的高效短流线;链接三庭四院,沿街集中布置公共服务设施(商业、问询、休息区),实现资源高效共享,将医院转化为一个逻辑清晰、体验连贯、高效协同的有机整体。
@门诊综合楼-门诊大厅
@门诊综合楼-医疗街
以"空间秩序”重构“医疗秩序"。实现了功能效率、人文关怀与运营弹性三者的统一,让医疗建筑设计从"以技术为中心"向"以人与流程为中心"的范式转变。
@门诊综合楼-四季厅
北方建筑风貌——新中式建筑
我们希望能呈现一座"园林式的现代医院"。简洁、典雅,邂逅一丝熟悉的中式韵味,藏着东方的风骨与意境。
@门诊综合楼
不是对传统形式的简单复刻,而是将古典建筑的意境,安放在现代的形体中。提取传统建筑中沉稳的比例与韵律,却用简洁的体块、干净的线条来呈现。
@门诊综合楼入口
@住院部主入口
室内,是建筑精神的延伸。我们强调空间"去医疗化",通过明亮的空间、自然采光、绿植与艺术陈设,创造非institutional的亲切环境,缓解患者紧张情绪,以营造熟悉、安宁的公共氛围,提升心理舒适度。提供非正式的休息、等候与交流空间,促进患者与家属间的相互支持。
@门诊综合楼-一层四季厅
@门诊综合楼-医技候诊区
@门诊综合楼-急诊大厅
@门诊综合楼-药局
@门诊综合楼-二层四季厅
@住院楼-内科走廊
山水之法,得山为上,藏水次之。
汲取禅意山水园林的精髓,以当代设计语言表达中国传统园林的精神内涵。
禅意山水,以"山、水、画、石"之形态,构建"可行、可望、可游、可憩、可居"五重体验礼序,打造枯山水是花园,营造一份古典园林意境与现代园林功能相融合的新中式景观园林。
@康养活动区及隔离区-康复疗养园及静思园
@康复疗养园-仁寿轩
在满足现代医疗高技术、高效率、高洁度要求的前提下,通过现代设计语言,重新诠释中国古典园林的布局、意境与元素,创造出具有鲜明中国文化特质和自然属性的疗愈景观环境。
@康养活动区及隔离区-康复疗养园及静思园
景观意境:运用叠山、理水、植栽、小品等元素,营造意境空间,将自然景观转化为积极的疗愈媒介。
@康复疗养园及静思园
@康复疗养园及静思园
@大医精诚园-体检中心前庭院
文化符号:抽象化运用传统建筑语汇(如坡屋顶、格栅、月洞门)、材料和色彩体系,营造宁静、典雅、富有文化认同感的氛围。
@医技综合楼外部空间-颐景园
@医次入口文化形象展示区-医者仁心园
——
医疗环境本身,就是一副重要的"处方"。疗愈,从空间开始。
- 项目图纸 -
△门诊医技综合楼 一层平面
△门诊医技综合楼 二层平面
△门诊医技综合楼 三层平面
客服
消息
收藏
下载
最近












































