查看完整案例

收藏

下载

翻译
Architects:Minimalist Architecture & Design Studio
Area:6870ft²
Year:2025
Photographs:Nakul Jain
Manufacturers:HANS GROHE+ FIMA CARLO FRATTINI,ART-N-GLASS,ASTRONEA ITALIA,Arte,Cortizo,Daikin,Flos,NILAYA ANTHOLOGY,Norisys,SCIC ITALIA
Category:Houses
Architecture R&D & Design:Samridh Aneja
Interiors R&D & Design:Samridh Aneja, Anima Aneja
Team:Samridh Aneja, Anima Aneja, Arshdeep Singh, Abhijeet Kalsi, Karishma Narula
Interior Styling:Minimalist Architecture & Design Studio
Lighting Consultant:Studio Lightscapes
Landscape Consultant:Asl Landscapes + Minimalist Architecture & Design Studio
Structure Consultant:Thirdspace Consultants
Visualization:Infinity Studio + Minimalist Architecture & Design Studio
Acoustic Consultants:Anterbox
Automation:Akubela
Pmc:Ayush Taneja
Carpentry:Sr Interiors
City:Ludhiana
Country:India
Text description provided by the architects. The residence is conceived as an architecture of quiet presence. It unfolds as a quiet architectural composition, shaped by light, proportion, and deliberate restraint. Eschewing overt ornamentation, the design allows space, material, and daylight to take precedence, creating an environment in which architecture gently recedes to support everyday life.
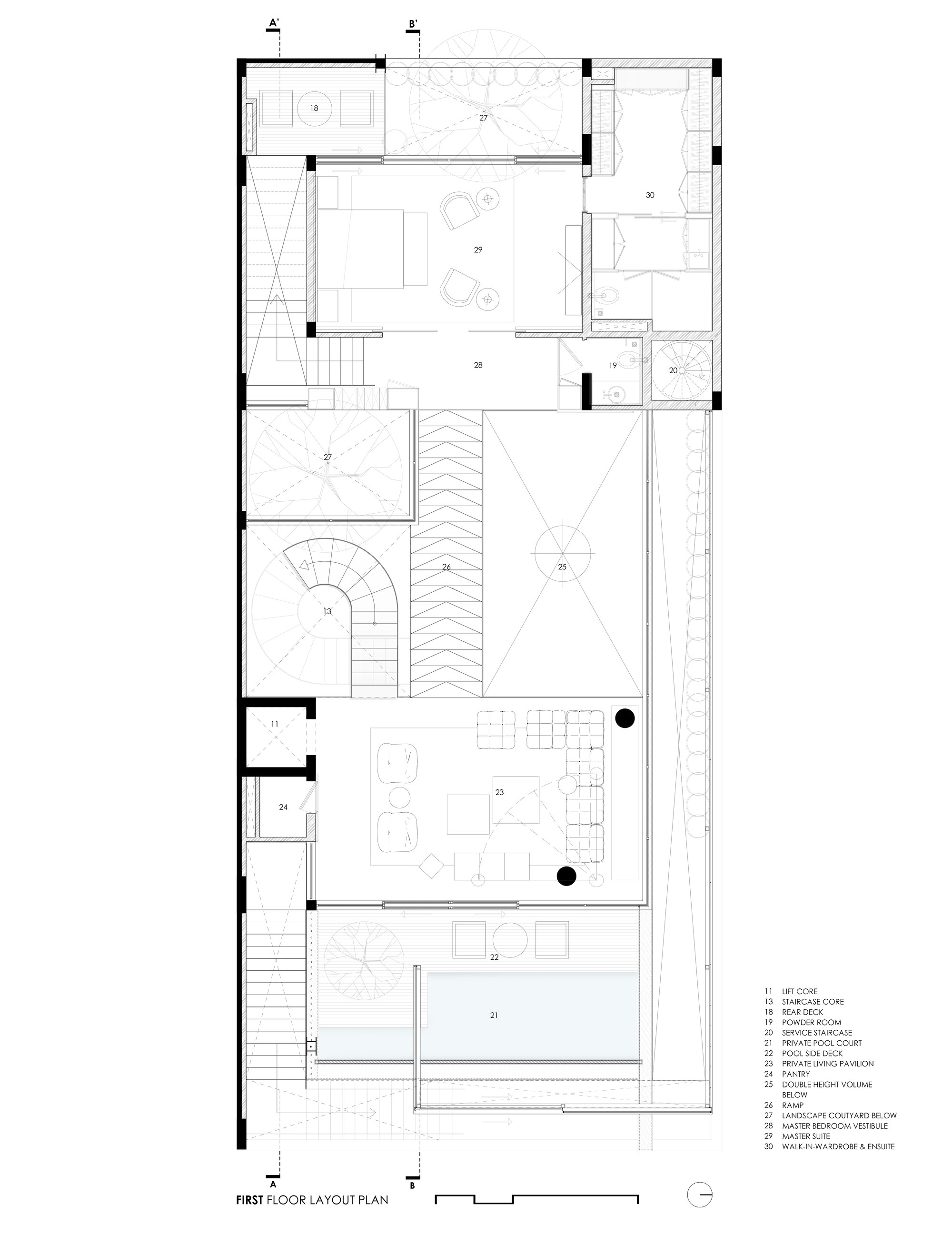
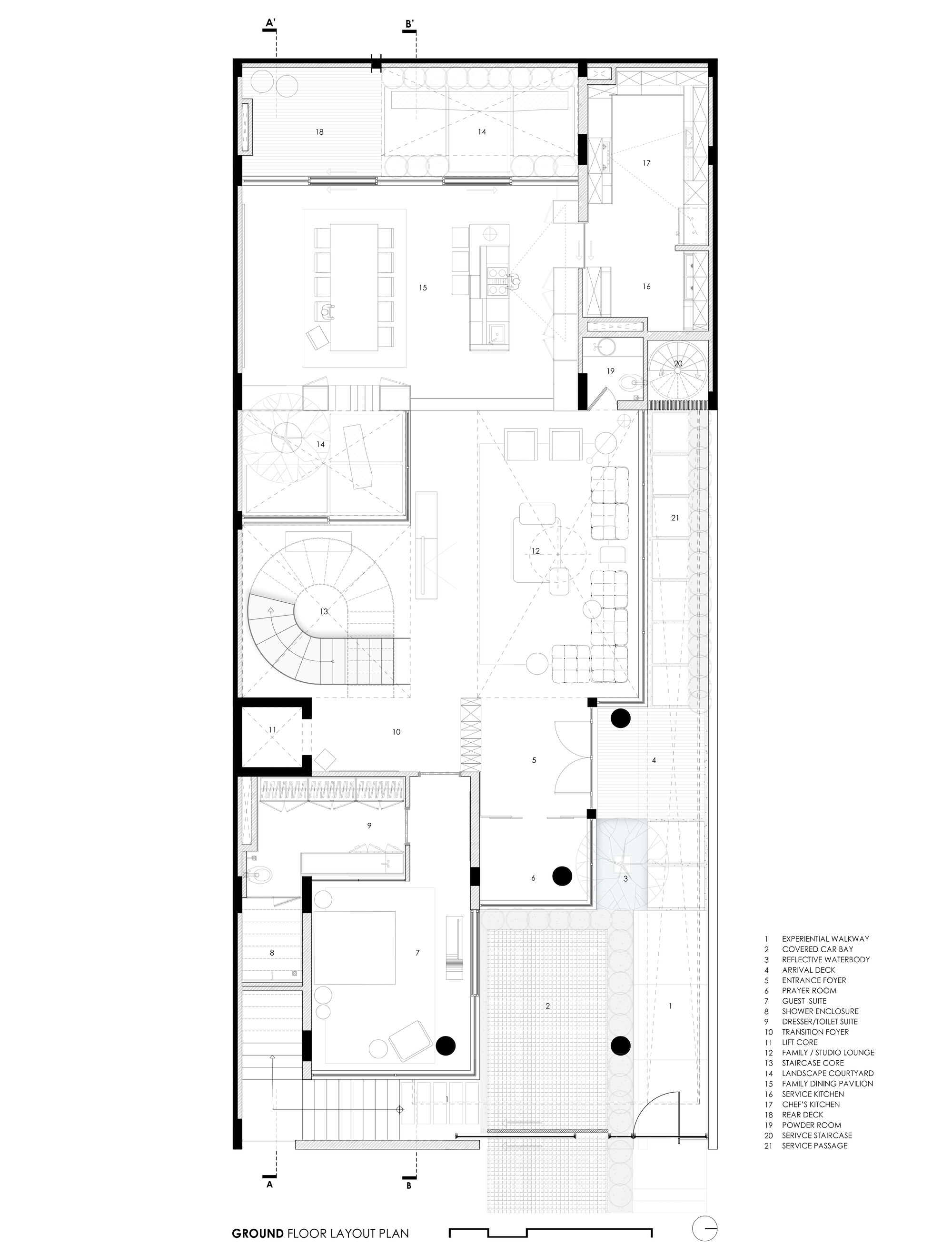
The house is composed of a sequence of layered volumes. Openness and privacy are negotiated through setbacks, screens, and voids rather than walls alone. Light enters indirectly—filtered, softened—casting slow-moving shadows that register the passage of time across surfaces and floors.
At the center of the home, a vertically connected living space anchors the plan. A sculptural stair rises within this void, not as an object, but as a spatial element that binds levels together. Double-height volumes extend the interior upward and outward, framing controlled views of sky, landscape, and light.
The material language is intentionally muted and tactile. Concrete, stone, light-toned wood, and soft textiles are employed in a restrained palette, balancing monolithic presence with warmth and intimacy. Detailing is subtle and exacting, with emphasis placed on edges, junctions, and proportions rather than decorative expression. Furniture and built-in elements are conceived as architectural extensions, reinforcing a unified and coherent spatial narrative.
Private spaces are drawn inward. Bedrooms are conceived as places of retreat—defined by muted light, reduced material contrast, and a heightened sense of enclosure. These rooms offer silence and introspection, balancing the openness of shared living areas.
The residence seeks balance rather than statement. It is an architecture of measured gestures—where light, shadow, and form coexist in equilibrium—offering a timeless setting shaped not by excess, but by intention.
Project gallery
客服
消息
收藏
下载
最近
































