查看完整案例

收藏

下载

翻译
Architects:Christian Prasser Architektur
Area:974m²
Year:2025
Photographs:Hertha Hurnaus,Stefan Huger,Julius Scherb
Construction Coordinator:Coordin.at Ziviltechniker Ges.m.b.H
Building Services Engineering:Käferhaus GmbH
Landscape Planning:Auböck + Kárász Landscape Architects
Category:Renovation
Architect:Dr. Josef Frank and Dr. Oskar Wlach
Project Management:Benedikt Dekan, M.A., cp architektur
Collaboration:Hanna Beck-Tiefenbach, M.A., Laurenz Oswald, B.A., cp architektur
Building Physics:Roland Müller
Room Book 122022:Fabia Podgorschek
Wall Report:Susanne Wutzig
Wood Report:Christine Rotter
Rubber Report:Sarah Jahns
Rubber Expert Opinion:Dr. Dietmar Linke
Metal Report:Chrsitoph Melichor
Stone Report:Martin Pliessnig
Glass Expert Opinion:Christoph Sanders
Existing Building Area Of General Renovation:893.53 m²
Extension Area Of General Renovation:80 m²
Plot Area:3169 m²
Built Up Floor Space Of Existing Building:469.9 m²
Gross Floor Area (Gfa) Of Existing Building:818.5 m² (ground floor to top floor), 319.7 m² (basement)
Gross Volume (Gv) Of Existing Building:2862.9 m³ (ground floor to top floor), 1148.8 m³ (basement)
Usable Floor Space (Nf) Of Existing Building:893.53 m² (basement to top floor)
Extensions Basement Terrace Used As An Archive:50 m² (basement)
Extensions Basement Terrace Used As A Technical Room For The Ventilation System:30 m² (basement)
Supervision:Coordin.at Ziviltechniker Ges.m.b.H
Restorers Collaborator:Alexandra Sagmeister
Surveying:Fleischmann Vermessung
City:Wien
Country:Austria
Text description provided by the architects. A key work of Viennese Modernism open to the public for the first time Villa Beer in Vienna-Hietzing, designed in 1929 by Josef Frank and Oskar Wlach for the Beer family, will be open to visitors for the first time in March 2026. After years of intensive research and restoration work, one of the most important residential buildings of Viennese Modernism can once again be experienced in its original quality.
Under the direction of owner Lothar Trierenberg and architect Christian Prasser (cparchitektur), Villa Beer was restored in close collaboration with experts, craftspeople and the Federal Monuments Office. Alexandra Sagmeister led the restoration investigations that preceded the renovation.
Villa Beer is considered a key work of Austrian modernism. Architecture theorist Christian Kühn emphasised that its significance ’can hardly be overestimated,’ while Friedrich Achleitner described it as ’probably the most important example of Viennese residential culture of the interwar period.’ Internationally, it ranks alongside icons such as Villa Tugendhat, Villa Savoye and Villa Müller.
Its opening offers an opportunity to rediscover the work of Josef Frank. Villa Beer marks the pinnacle of his architectural career and stands for an open, people-friendly modernism beyond dogmatic austerity.
Careful restorationThe aim was to preserve the house from decay and secure its long-term future, as well as to restore its unique character and adapt it to its planned use.
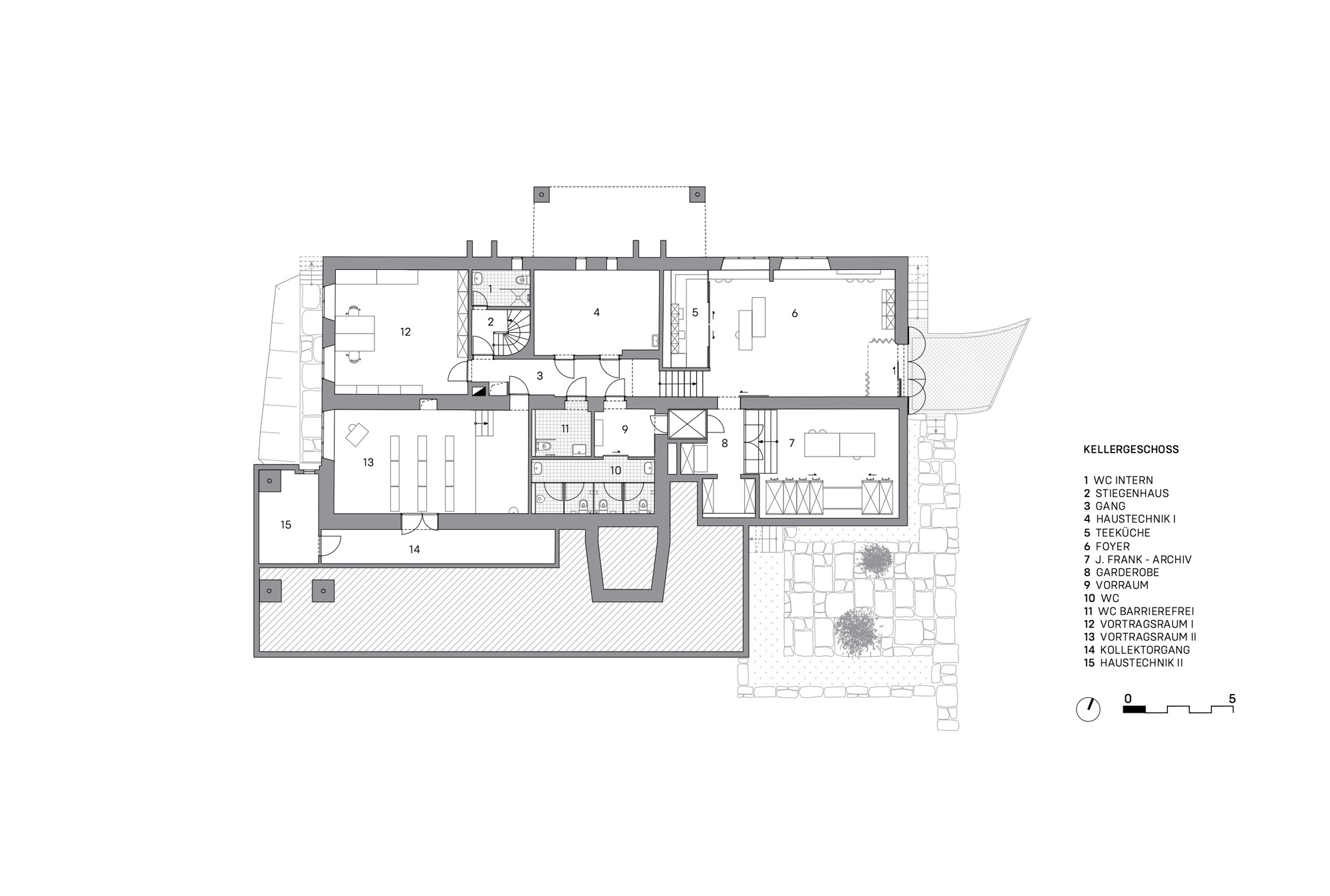
Although the house had been rebuilt several times throughout its history, it had not undergone any fundamental renovation for a long time. In the course of the current renovation, the areas from the ground floor to the first floor were restored to their original room layout. To achieve this, windows that had been added later were closed and additional walls were removed. The open room layout, the light-flooded interiors and the unusual materials now characterize the house once again as they were intended.
In a first decisive step, the house was given a new, stable foundation from the ground up and the basement was completely renovated. The original room structure was retained, but adapted to the necessary infrastructure for the future museum operations. Today, the area houses a visitor foyer with a small shop as well as rooms for education and administration, a cloakroom, sanitary facilities and technical rooms.
As part of the basement renovation, the terrace in front of the living room was also converted into a basement, creating a climate-controlled exhibition space for the Villa Beer archive. The two levels of the basement were connected by a lift.
Garden designThe landscape architecture firm Auböck + Kárász was responsible for the garden design, which deliberately drew on the historical context of the property. Mirror panels in the garden fence indicate that the property was originally twice as large. In her design, Maria Auböck attached great importance to preserving the existing tree population as far as possible. Frank and Wlach also understood nature to be an integral part of the design concept for the house.
Particularly noteworthy is the replanting of two 60-year-old black locust trees (the original trees had to be removed due to fungal infestation) in front of the villa. The current garden was designed to highlight the original relationship between the house and the garden, as well as to serve as a place for visitors to stroll and hold events.
Construction costs and support from the City of Vienna
The project costs for the renovation amount to around 10 million euros. The City of Vienna supported the renovation with a one-off contribution of 500,000 euros, while subsidies from the Federal Monuments Office amount to around 200,000 euros. Further subsidies from the City of Vienna amounting to 200,000 euros are earmarked for the operation of Villa Beer as a place of education.
Plan for the construction of a villa for Mr Julius and Mrs Margarete Beer - The history of the Beer familyDespite several years of research by the Villa Beer Foundation, the sources on the origins of Villa Beer and the fate of its builders remain incomplete; much of the information is based on a few surviving documents and accounts from descendants.
The property in the Hietzing villa district, acquired in 1929 by Julius Beer and his wife Margarethe, was designed by the architects as a prestigious residence for the art-loving couple, who belonged to liberal Judaism, and reflected both their social status and their understanding of culture. The villa was the architects’ largest private commission.
The history of Villa Beer is inextricably linked to the fate of its Jewish owners. The family’s happiness in their new villa came to an end shortly after its completion in the early 1930s, when Julius Beer lost his position and ultimately his shares in the company following professional and financial setbacks. As a result, he was no longer able to service the loan instalments. Although the family retained the right to live in the house, from 1932 onwards they had to rent it out repeatedly in order to finance the repayments. The tenants during these years included prominent artists such as Richard Tauber, Jan Kiepura and Martha Eggerth, as well as their secretary Marcel Prawy, who lived in the house until they were expelled in 1938.
After Hitler seized power in Germany in 1933, the Beer family’s situation deteriorated steadily and was finally torn apart after Austria’s annexation by Nazi Germany in 1938. While some family members managed to flee into exile, their daughter Elisabeth Beer was deported in 1940 and murdered in Maly Trostinez in 1941.
The fate of the family is exemplary of the disenfranchisement, expulsion and extermination of Vienna’s Jewish population.
The architects’ lives also reflect this turning point: Josef Frank emigrated to Sweden with his wife in 1934. Oskar Wlach had to leave Austria in 1938 and fled to America, where he was never able to repeat his successes in Vienna.
The biographies of the Beers, Franks and Wlachs thus refer to the numerous Viennese Jews who were forced to emigrate and to the irretrievable loss that this persecution meant for the cultural and social diversity of the city.
Rediscovering Josef Frank
What is modern? It has been around a century since Josef Frank posed this question, which he pursued with equal measures of seriousness and polemic throughout his life, at the Werkbund conference in Vienna in 1930. Two months later, the Beer family moved into their new house on Wenzgasse, which was to become the most significant work by Frank and his long-time professional partner, Oskar Wlach.
The Villa Beer is an icon of architectural history and plays a key role in Austrian modernism. Unlike its international counterparts, such as Villa Savoye in Poissy (1928–31) by Le Corbusier and Pierre Jeanneret or Villa Tugendhat in Brno (1928–30) by Ludwig Mies van der Rohe, both of which were listed as historic monuments in the 1960s, it did not receive this status until 1987.
Frank, born in 1885 in Baden near Vienna, is considered the most important representative of the architect generation after Adolf Loos and Josef Hoffmann. However, Josef Frank and Oskar Wlach abandoned the strict logic of the classical floor plan in favour of an open, three-dimensional spatial structure. Different heights and sizes are combined to create a lively sequence that makes movement, orientation and visual relationships intuitively tangible. In Frank’s 1930 essay ’The House as Path and Place,’ Frank describes this principle as a playful interplay.
On the outside, this ’inner freedom’ of the villa is continued in an asymmetrical, differentiated façade design. Basements, attics, terraces and balconies extend the living concept outdoors and create spaces for movement, retreat and socialising.
Frank’s vision of modern architecture aimed at an organic, lifelike house that frees living from rigid rules, opens up space for spontaneity and dissolves the boundaries between architecture, interior space and urban context – an approach that continues to shape modern living to this day.
In its overall conception, the house represents a masterpiece in the relationship between rules and freedom." Friedrich Achleitner, 2010
The opening to visitors now allows Josef Frank’s work to be rediscovered.In addition to the architecture, Josef Frank and his partner Oskar Wlach also designed the entire interior of Villa Beer, including furniture, fabrics and curtains. These designs were produced at the time by their joint company Haus & Garten.
Over the decades, the built-in furniture has been preserved, but most of the original furnishings have been lost, with the exception of a few pieces. The preserved built-in elements were restored with great care, and missing parts were replaced. Floors, fireplaces, security grilles, the dumbwaiter and radiators were repaired and, where necessary, rebuilt to a high standard of craftsmanship and historical accuracy, in some cases with the involvement of the original contractors. This work was carried out with great attention to detail and a thorough knowledge of the construction methods used at the time.
A conscious decision was made not to reconstruct lost furniture or add additional furnishings to the rooms. Instead, empty spaces were left to create room for exploring the history of the house and its inhabitants.
’In future, the house should be filled with life and carry the ideas of modernism, as understood by Josef Frank, into the present,’ says Lothar Trierenberg (Managing Director of the Villa Beer Foundation).
A lively meeting place
Program and education
With its opening, Villa Beer will become more than just a monument: it is set to become a lively venue for architecture, culture and research. Under the direction of Katharina Egghart, a diverse program of guided tours, discussions, music and literary events, symposia and educational offerings is being developed.
’Even though Villa Beer will be open to the public in future, its character as a residential building will be preserved as far as possible. Visitors should feel like welcome guests,’ says Katharina Egghart (Managing Director of the Villa Beer Foundation).
The house will be accessible as part of individual and interactive guided tours that highlight architectural, social and cultural contexts.
From Wednesday to Sunday, there will be regular overview tours on the architecture and history of the house. In addition, themed tours will offer in-depth insights – for example, on the restoration of the villa, Josef Frank’s furniture and fabric designs, or social life in the villa. A central component of the programme will also be an examination of Jewish life in Hietzing before 1938. Julius Beer supported, among other things, the construction of the architecturally outstanding Hietzing Synagogue. Last but not least, the surrounding urban space will be included in the programs – from the neighbouring villas of Adolf Loos, who played an important role for Josef Frank, to the Werkbundsiedlung, which was initiated and co-designed by Josef Frank.
In addition, guided tours are offered for private groups, circles of friends, students, architects and other visitors from Vienna and around the world; these can be booked individually, depending on capacity.
guided tour in order to discover and experience the architecture independently. Guests can enjoy the house almost as if they were residents, browsing through a book from the library and sitting in an armchair. For safety reasons, however, not all rooms in the house are accessible during free visits.
School programs
From autumn 2026, programs for schoolchildren of various ages, workshops and academy formats for adults, as well as walks, will expand the range of activities on offer. They will cover the architecture and history of Villa Beer and its immediate surroundings.
Science, research and residency programsAn annual symposium, collaboration with scientific institutions, research residencies and a series of publications are also planned.
The house has an archive and a collection that will be accessible for scientific purposes in the future.
’Villa Beer is also intended to become a place of learning and teaching for architecture as well as for the complex history of the interwar period,’ says Lothar Trierenberg (Managing Director of the Villa Beer Foundation).
Living in Villa Beer
For researchers and guests who want to experience Villa Beer in its original function as a residence, a new living area has been created in the attic, consisting of a kitchen, bathroom and three guest rooms. It invites visitors not only to view the house, but also to live in it.
The rooms are furnished with textiles and furniture designed by Josef Frank, which are still manufactured today by the traditional Swedish manufacturer Svenskt Tenn. Thanks to the support of the Beijer Foundation (owner of Svenskt Tenn), the attic can now be experienced as a living environment in the spirit of Josef Frank.
The guest rooms are primarily intended for the artist and research-in-residence programme, but are also available for rent on request, subject to availability (double room 350 to 450 euros/ night).
The focus is on an authentic living experience: accordingly, the rooms are designed as guest rooms and – as was customary in the 1930s – equipped with a washbasin; the bathroom is shared. In addition, guests have access to a small kitchen, a dining room and the roof terrace.
Cultural encounters and events at Villa Beer
The Beer family also had the house built as a venue for larger gatherings, with a music room and a Bösendorfer grand piano, played by trained pianist Grete Beer, at its centre. A series of events, concerts, readings and discussions are planned to revive this aspect of the villa’s history. It will also be possible to hire the rooms and garden of Villa
Project gallery
客服
消息
收藏
下载
最近





















































