查看完整案例

收藏

下载

翻译
Architects:MIKAMI Architects
Area:1105m²
Year:2025
Photographs:Koji Horiuchi
Lead Architects:Kazuhiko Mashiko
Category:Schools
Design Team:Taketoshi Tomita, Katsuya Saito, Mitsutoshi Kusukawa, Natsumi Koma, Katsumi Kuramochi
Technical Team:Keiichiro Matsumoto, Yu Yamakawa
Architecture Offices:Ishikawa Design Office
Engineering & Consulting > Structural:Tada Shuji Structural Design Office
Engineering & Consulting > Mechanical:Akeno Equipment Research Institute
City:Tsuruoka
Country:Japan
Nightingale's Nurse Cap – Located in the Shonai region of Yamagata Prefecture, Tsuruoka is a city where the heritage of the Shonai Domain remains deeply woven into the cultural fabric. The new campus for Tsuruoka City Shonai Nursing School was conceived under the theme of a nursing school grounded in Tsuruoka's history and culture, dedicated to cultivating professionals who will sustain regional healthcare. Sitting quietly within a culturally vibrant corner of the city, the building features distinctive white shades inspired by Florence Nightingale's nurse cap. These shades serve a dual purpose: they are functional devices to control solar heat gain and symbolic gestures to the community, expressing a commitment to the future of local medical care.
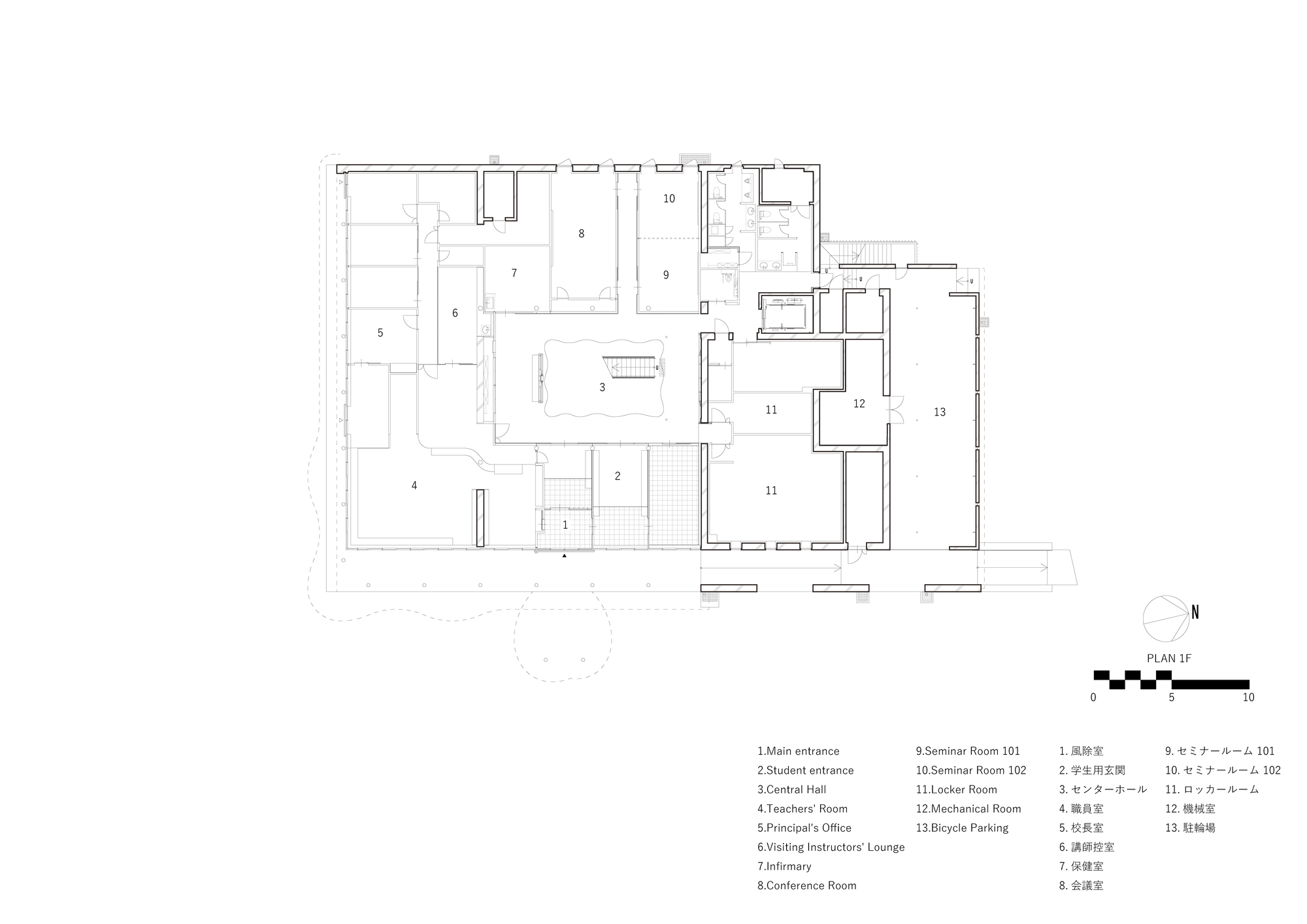
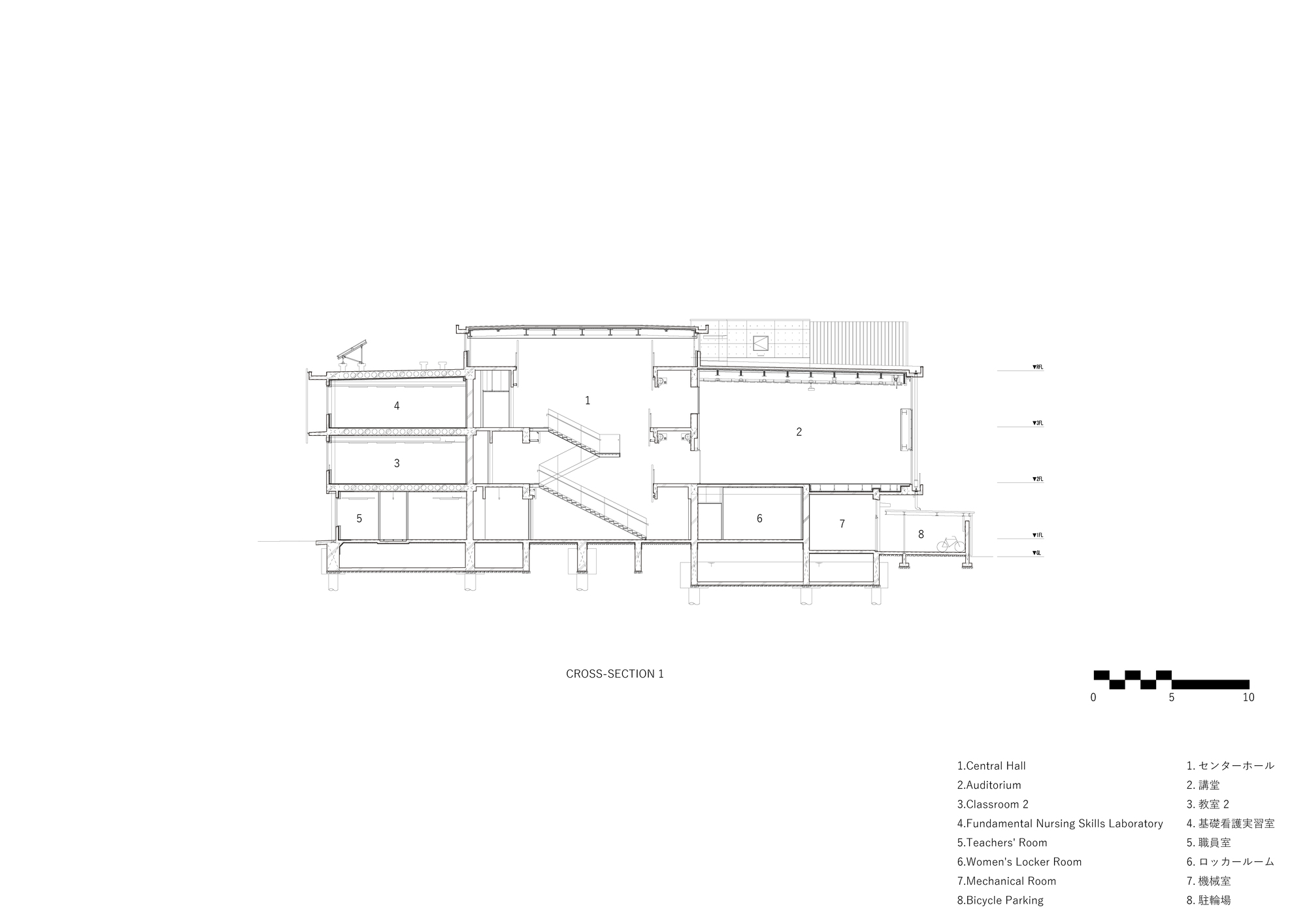
Interior Landscape – The interior is defined by a central hall, a full-height atrium extending from the ground floor to the penthouse, which allows natural light and a sense of shared "presence" to permeate the entire building. A staircase encased in a delicate cedar wood lattice seamlessly connects the floors, ensuring that classrooms, laboratories, and the library emerge not as isolated, "closed boxes" but as a continuous and interconnected landscape of learning.
Within this flow, the auditorium holds profound significance as the venue for milestone ceremonies such as the Capping Ceremony. By intentionally incorporating views of the adjacent Shonai Hospital and the front plaza into its design, the auditorium psychologically bridges the gap between academic study and the reality of the clinical front lines.
Technical Ingenuity – The project successfully navigated demanding site conditions, including strict height limits under Category I Height Control District regulations and potential flood risks. To address these challenges, floor heights were minimized through the use of void slabs and flat beams, while interior ceiling heights were preserved by leaving mechanical systems exposed.
This approach allowed the logic of the structure and systems to be directly translated into the spatial aesthetic, realizing a form that reflects the very essence of nursing education: an architecture that embodies the spirit of sincere and consistent care. Finally, by enriching the perimeter with green spaces and pedestrian paths, the facility offers an open and welcoming atmosphere, establishing itself as a new landmark that honors the city's historic streetscape.
Project gallery
客服
消息
收藏
下载
最近



















