查看完整案例

收藏

下载
这是我2025年设计的最特别最个性化的案例~
房子位于广州市天河区的一栋旧房,屋主看中了这间屋子梁体柱子偏少,以及白天采光很棒的特性,选择置业于此。希望改造成完全个性化的生活空间,自己喜爱的游戏,收藏的手办,宽阔的洗手间,落地玻璃窗,宠物空间,所有的原有内容通通拆除重新开始~
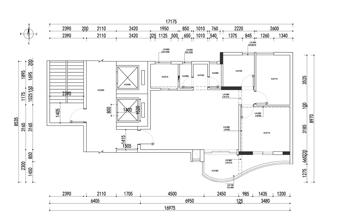
房屋原本的户型为三房空间,三个房间均分布在图纸右侧,每间房使用一扇窗户,整体的格局既紧凑又合理。厨房与洗手间方方正正,客厅利用率也非常棒。
户型上唯一的不足便是阳台的弧形空间收窄的区域仅有450mm宽度,实在难以利用。
屋主对于新家的想法是三房改一房,外加超大的洗手间与开放式厨房。
整个方形空间布局中仅有唯一的柱体位于中部,改造的思路也随这根柱体展开:
①沿着柱体边缘规划四分离洗手间,足够大的面积还可以设置洄游动线,厨房与主卧室双房门进入。
②原本利用率很低的阳台弧面直接合并进入主卧室,成为主卧室的观景区域。
③客厅与开放式厨房融为一体,沿着开放式厨房的墙边制作L型储物柜,收纳足够齐全公共空间才会更加整洁。
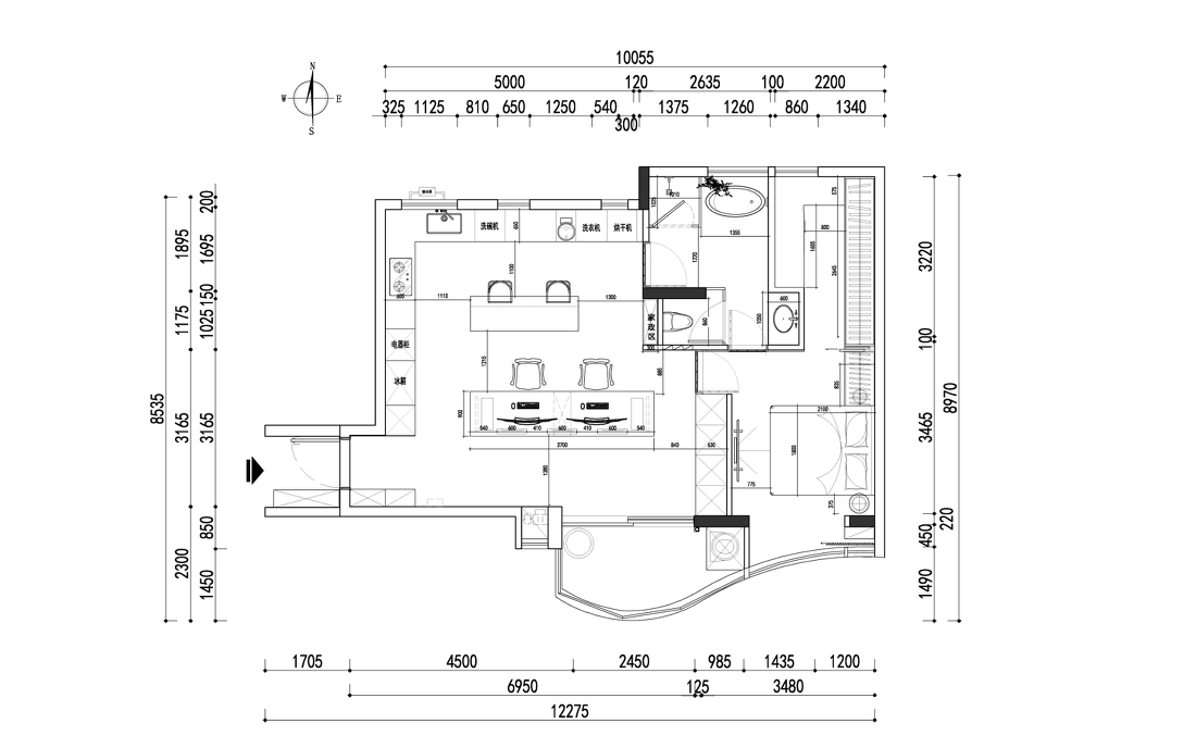
户型没有传统意义上的玄关,开门即客厅,或者应该叫电竞空间?
一张长度高达3.7m的电脑桌横置在中间,完整地放下两台32寸显示器与中塔机箱。
电脑桌中间设置支架与收线槽,所有的线材与电源全部暗藏在中间。两边使用玻璃桌腿支撑,营造超长一体化的悬浮感
电脑桌侧面就是手办收纳柜,玻璃柜门搭建常规的手办收纳,黑色柜体的侧面单独定制三角菱纹格,在光线照进来的情况下,不同的反射切面形成不同程度的灰调,层次丰富鲜明。
大门口有一平方米入户区,两面均设置了鞋柜,搭配镜面的柜门板,也可以作为入户的小换鞋区。这里还有一个小彩蛋,墙面的壁灯照向水波纹的天花板,给黑白灰的空间带来一抹彩色~
房空间和客厅空间是合并在一起的,电脑桌的背面便是吧台空间
平时用餐最多两人进行,所以只设定了单边的放腿收纳位
吧台侧面靠近过道的区域同样设置一小格收纳手办的位置,入户转角就可以看见
橱柜超长的一整面L型空间其实被电器与家具分隔成了两块区域
中间部分安排油烟机与灶台,洗菜盆靠近光亮的窗边,转角过来也很方便完成洗切炒的动作
实际的烹饪操作就使用这一块区域即可。
靠近入户门口是蒸烤箱与冰箱位置,在电器需求不多的情况下把烤箱抬高,可以避免弯腰,用起来更加顺畅
另外一块区域是洗衣区,除了洗衣机烘干机之外,还有扫地机器人与洗碗机安置在此
台面上的空间也不会浪费,咖啡机和小电器的专属使用区
可以说,厨房与客厅共同构成了整个户型的公共区域
从洗衣机旁边的隐藏门就可以进入洗手间
因为面积足够大,除了塞下浴缸之外,还将马桶间与淋浴间做了单独分离
主卧室也可以通过另一扇门进入洗手间,洗手间内部的整体配色也和全屋保持一致,完全的黑白灰配色
相比起其他的空间,主卧室的内部陈设则简单很多,一张床,落地窗,一台电视就是全部的配置了。
注意电视机左侧有一扇木色的小窗户,这是给猫猫🐱预留的通道,猫猫也有自己的洄游动线~
靠近角落的区域利用窗户空间还打造了一个小的衣帽间,配备全软膜天花灯的方案。
屋主有空的时候还可以自己在桌上制作手工。
黑色与白色柜子中间留有一个空格,空格内暗藏一块推拉门,方便夜晚休息时减少房间内的空调能耗。
还记得刚才猫猫的洄游动线吗?主卧室的小木门就通向阳台空间,现在这里成为猫猫的专属游玩空间。
由于是全屋整体拆除改造,所以施工的过程也得以非常迅速,一切按照图纸和规划快速完成
Q&A
Q:装修过程花了多长时间?
A:装修时间花了半年,整体时间进度非常快速,一项工程接着一项工程来,半年时间全面完成交付。
Q:说说是什么给了你灵感,打造出现在这个作品的?
A:灵感来源于屋主对于素色的喜好,本身屋主的性格就是喜欢黑白灰的简洁感,简洁的空间塞入各种彩色的手办,才能更好点缀和展示。
Q:你对这套作品最满意的地方在哪里,为什么?
A:最满意的地方在于使用三角菱形格成为柜体表面的点缀,屋主有聊到喜欢一款游戏“漫威争锋”中的角色“潘妮帕克”,我们索性采用角色的三角形蛛网元素,与工厂讨论定制打样制作在柜门上,成为这个家独特的亮点
Q:对平面布局做了哪些优化改动,为什么?
A:平面布局的改动主要是空间开敞,依据全屋唯一的柱体位置进行改造设计,依次安排主卧室与客厅,最终形成了客厅厨房一体化的宽阔视觉效果
Q:在整个装修设计期间遇到最大的挑战是什么?
A:整个过程非常顺畅,几乎没有什么难度。得益于全打全拆的改造以及简洁化的设计,所有东西都一气呵成,快速做完
客服
消息
收藏
下载
最近


































