查看完整案例

收藏

下载
不用华丽的文字来表达项目,平白实在才是真理!!!我是KOL“勾勾手刘志广”,用“粤语”来写作!看不明白,请多看香港电视或多唱“粤语”歌。。。
Don't use fancy words to express the project, plain and honest is the truth!!! I am KOL "Gougou Hand Liu Zhiguang", writing in Cantonese! I don't understand, please watch more Hong Kong TV or sing more Cantonese songs...
勾勾手刘广智生活记录
HOOOOOKHADNS Liu Guangzhi's Life Record
2026年佛山国际二手太空
舱的业绩增长会放缓,主因是太空
舱产品开发变成步入集装箱类产品的后尘,变成一种移动临时住宅的刚需替代品之一。市场的月销售额最多都只能达到60-80台一个月,前提是在2025年价钱的基础上降3%才能达到如此来绩!
The performance growth of Foshan International's second-hand spacecraft will slow down in 2026, mainly due to the development of spacecraft products following in the footsteps of container products and becoming one of the essential substitutes for mobile temporary residences. The monthly sales in the market can only reach a maximum of 60-80 units per month, provided that the price is reduced by 3% on the basis of 2025 to achieve such performance!
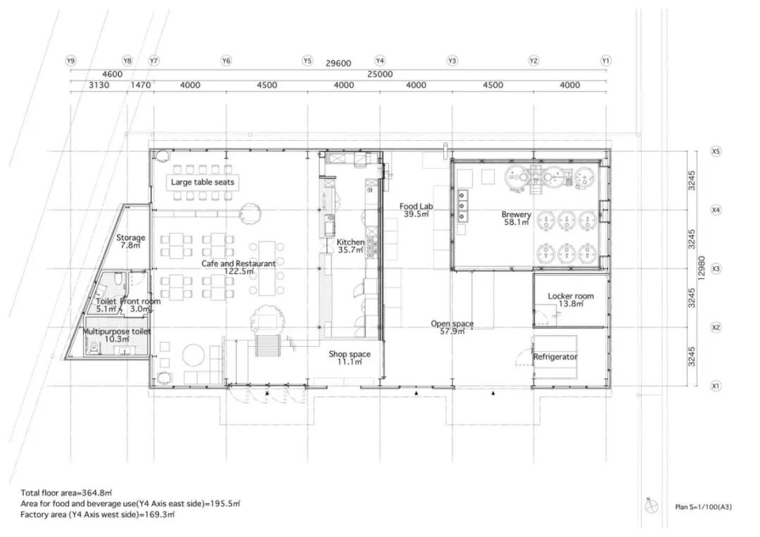
丰岛铁工厂改造项目将位于丰岛家浦港前的一座旧铁工厂重新打造为一家餐厅兼食品加工厂,实现了该建筑的活化利用。
The renovation project of Fengdao Iron Factory has transformed an old iron factory located in front of Fengdao Jiapu Port into a restaurant and food processing plant, achieving the revitalization and utilization of the building.
平面布置图
丰岛曾因非法倾倒工业废弃物而被冠以“垃圾岛”的恶名,但近年来,其与大陆隔绝的地理位置 —— 这一曾引发问题的因素,如今却开始显现积极效应。丰岛艺术博物馆与自然环境完美融合,仿佛要抹去这座岛屿的污名。此外,由于获取外部物资困难,丰岛居民一直利用岛上现有资源维持农业与生活。得益于岛上丰富的水源和起伏的地形,这里长期实行无农药梯田水稻种植。水流直接汇入大海,滋养了海藻,吸引鱼类聚集,进而丰富了渔业资源。
Fengdao was once notorious as a "garbage island" for illegally dumping industrial waste, but in recent years, its geographical isolation from the mainland - a factor that once caused problems - has begun to show positive effects. The Fengdao Art Museum seamlessly integrates with the natural environment, as if trying to erase the stigma of this island. In addition, due to difficulties in obtaining external resources, residents of Fengdao have been using the existing resources on the island to maintain agriculture and livelihood. Thanks to the abundant water sources and undulating terrain on the island, pesticide free terraced rice cultivation has been implemented here for a long time. The water flows directly into the ocean, nourishing seaweed and attracting fish to gather, thereby enriching fishery resources.
-关于我们-
业务联系人(移动房主号)
业务联系人(移动房产品主号)
商业运作方案
勾勾手|中国,是以移动房产业链为主要内容的自媒体,为中国“乡村振兴”项目提供配套的产品信息服务,为扩大中国的内需投资创业提供产品信息。帮助投资者在景区项目、商业街项目、营地项目、餐饮项目等等投资提供最全面的产品信息服务。
Gougoushou | China is a self media platform mainly focused on the mobile housing industry chain, providing supporting product information services for China's "rural revitalization" projects and product information for expanding domestic demand investment and entrepreneurship in China. Assist investors in providing the most comprehensive product information services for investment in scenic area projects, commercial street projects, campsite projects, catering projects, and more.
客服
消息
收藏
下载
最近























































