查看完整案例

收藏

下载

翻译
Architects:Equipe Lamas
Area:630m²
Year:2025
Photographs:Joana França
Manufacturers:Reka Iluminação,Ulimax,kitchens
Lead Architect:Samuel Lamas
Category:Residential Architecture,Houses
Project Team:Casulo arquitetura
Engineering & Consulting > Structural:Ita engenharia
General Construction:Mario Gusmão
Landscape Design:Rodrigo Oliveira
City:São José do Rio Pardo
Country:Brazil
Text description provided by the architects. Located in São José do Rio Pardo, in the interior of São Paulo, Casa MM is a single-story residence of 630 square meters, designed by the Lamas Team for a couple who wished to live close to their daughters and grandchildren already settled in the same condominium. The request was clear: a ground-level, welcoming living space with a wooden structure, ceramic roof, and full accessibility.
Inspired by the original urban landscape of the city, marked by vernacular buildings with simple proportions and ceramic roofs with two or four slopes, the house avoids recent references to the immediate surroundings. Instead of imitating the past, it establishes a dialogue with the local identity through form, materials, and construction gesture, adopting a serene, contemporary, and timeless language.
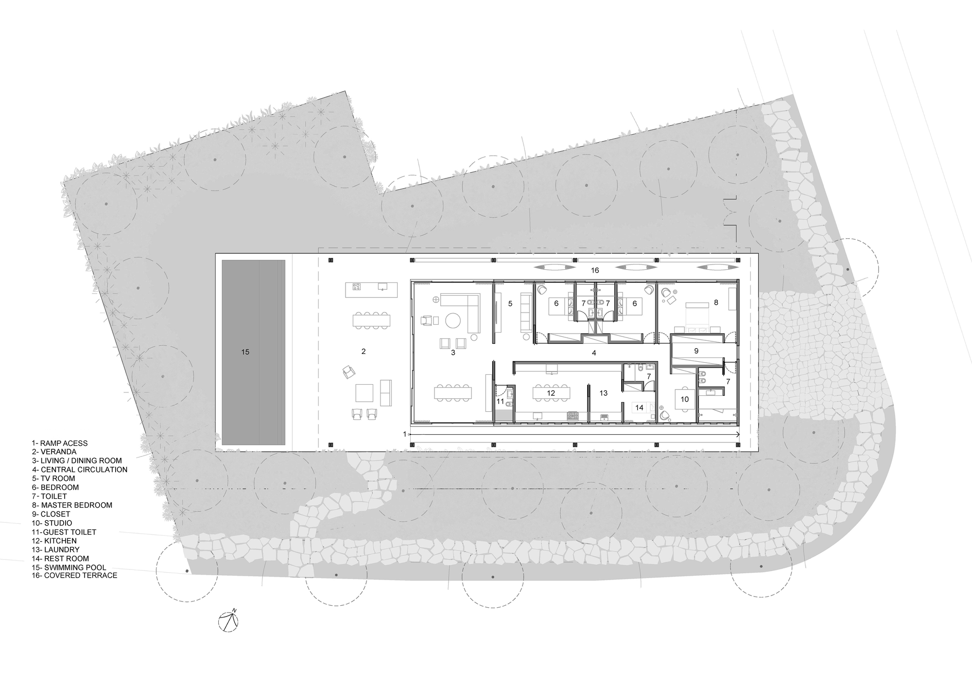
The residence rests lightly on a base of São Tomé stone, which houses a garage, storage areas, and technical spaces. The main volume rises under a gable roof, supported by laminated wood columns that define the structural score and reinforce the lightness of the ensemble. A side ramp connects the two levels, gradually revealing Rodrigo Oliveira's tropical garden, in a journey through filtered shadows and native vegetation.
The central implantation frees the lot in all directions, creating vegetative breathing spaces and enhancing integration with the surroundings. The absence of walls and the presence of a metal grille concealed by vegetation preserve privacy without breaking continuity with the landscape.
The rectangular plan follows an orthogonal grid that organizes the structure and spaces fluidly. The pillars located at the ends free the internal environments from supports. The trusses span 16.5 meters with regular spacing of 6.6 meters, and the front closure in glass highlights the constructive logic and bathes the interiors in natural light.
At the end facing the garden, the porch acts as a transitional and communal space. Integrated into the living room through sliding frames on three sides, it dissolves the boundaries between indoors and outdoors. The longitudinal axis organizes the programs symmetrically. To the right are the half-bath, kitchen, service areas, and office; to the left are the TV room, two mirrored suites, and the master suite. All the bedrooms face north, protected by movable mashrabiya in freijó wood, while the southern-facing rooms receive fixed cobogó panels reinterpreted in wood.
Natural materials and precise choices define the spatial hierarchy. Polished granitina, peroba wood, clay tiles, and local stones compose a cohesive sensory palette. The heating system for the house and the pool is powered by solar energy.
In the interiors, the white walls provide a quiet backdrop for artworks and author pieces. The furniture by Samuel Lamas coexists with names like Sergio Rodrigues, Zalszupin, Castiglioni, Prouvé, and Claudia Moreira Salles, composing a scene that synthesizes tradition and contemporaneity, constructive lightness, and technical solidity. Rooted in the place that inspires it, Casa MM proposes a sensitive way to inhabit the present.
Project gallery
客服
消息
收藏
下载
最近






























