查看完整案例

收藏

下载
在2025年秋季,FLIP studio番番營作再次为时尚女装品牌SANI设计了一座可循环搭建的大型快闪装置“息岚亭”。设计以品牌“从轻演绎,自然不一样”的精神内核为切入点,取“草木竹石”之“竹”以及林间云雾之“岚”,以带有传统东方色彩和岭南风情的“竹”与轻柔的充满年轻活力的充气膜相结合,将品牌秋冬系列柔软舒适的质感转化为岚栖竹林的抽象意境,同时探索年轻的、更具实验性和戏剧化的审美和零售体验。
“息岚亭”装置中庭俯视©️朱润资
息于竹,耀于气©️FLIP
竹之林
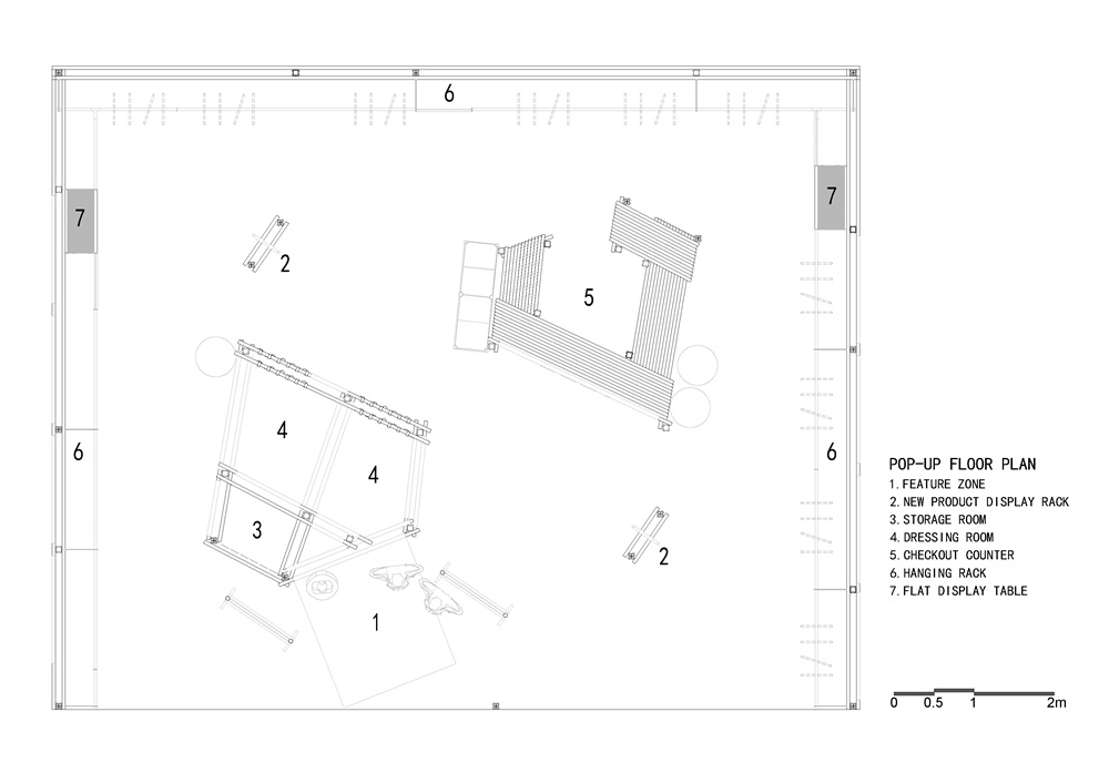
项目的初次搭建选址在广东省惠州。FLIP围绕独具岭南风情的“竹”元素,却以打破传统的方式,利用泰森多边形(Voronoi)网格系统作为生成竹林的空间网格。场地是一个8x10m的长方形范围。设计将整个平面用Voronoi网格系统划分成8组对角线对称的16个多边形,并在该网格的交点之上树立起竹钢结构。整座装置由竹钢元素的挂杆结合黄色布料围合而成,中间的两个多边形网格分别对应同样是用竹钢搭建成的收银台与试衣间的道具模块。这样的平面布局在结合U型环绕动线的同时利用多边形中岛形成更加有机自由的游逛动线,营造仿若置身竹林中寻觅探索的零售体验。
轻盈气膜下的竹构与时装展陈©️朱润资
岚之雾
当置身竹林之中,抬头仰望,漂浮着的由明黄色温暖而又柔软的气膜连成的天篷,如同岭南湿润的竹林间的弥漫着的岚雾,却以如此活泼明媚的方式呈现。平面的Voronoi网格系统此时生成8组重复的黄色充气膜。装置结构的顶部采用拉索与最小限度的钢结构拉结成一个整体,而所有的气模则通过绑绳与拉索端头特别设计的固定件相连结实现漂浮。
竹构与气膜装置细节©️朱润资
轻盈气膜下的竹构与时装展陈©️朱润资
当传统与现代相遇,时尚与自然融合,竹与气膜两个看似冲突的材料相结合,“息岚亭”以轻松活泼的方式,在叙述品牌地域文化故事的同时,诠释了品牌对自然、材料、美学、年轻力的理解。
“息岚亭”夜景©️FLIP
voronoi充气膜光影©️FLIP
轴测图
顶视图
平面图
项目信息
项目名称:SANI 2025巡演快闪店
项目地点:广东省惠州市(后多次拆卸循环使用)
业主:SANI女装
设计单位:FLIP studio番番營作
主持设计: 孙凯伦、王志明
空间面积:80㎡
设计团队:宋泽胤
摄影:朱润资
设计时间:2025.5-2025.09
完工时间:2025.09
客服
消息
收藏
下载
最近

















