查看完整案例

收藏

下载
宋屿庭园
Song Yu Garden
时间是自然的诗篇,也是空间生长的印记。在佛山云庭项目中,时间不仅是设计的背景,更是塑造场所精神的参与者。建筑与庭院在时间的维度中相互渗透,共同演绎一场野趣、自然、古朴的空间叙事。景观不再是建筑的衬托,而是环境的主导者;建筑则退隐为景观的容器与画框,让自然成为主角。
© 陆启水建筑师事务所
Time is the poetry of nature and the imprint of spatial growth. In the Cloud Garden Residence project, time is not only the background of design but also a participant in shaping the spirit of the place. Architecture and courtyard interpenetrate in the dimension of time, jointly narrating a wild, natural, and rustic spatial story. Landscape is no longer a foil for architecture but the dominator of the environment; architecture recedes into a container and frame for the landscape, allowing nature to take the leading role.
▼鸟瞰图,aerial view © 知筑影像 Arch Nango
本项目位于广东佛山陈村花卉世界,业主从事于景观植物销售行业,该地块作为植物销售基地使用,地块总面积约6200㎡,靠外圈(沿公路侧)为植物集中种植和销售区,靠内圈为核心景观庭院集中打造区,面积约2600㎡。老建筑位于核心景观庭院区东侧,坐东朝西,主立面面向核心景观庭院区,功能为庭院配套辅助用房。该项目的设计内容为整体核心景观庭院打造与老建筑改造,设计旨在营造一个野趣、自然、古朴的”原生之境”,庭院与建筑共生,回归自然本真,追求一种去人工化的、随时间生长的诗意氛围。
The project is located in the Flower World of Chencun, Foshan, Guangdong. The owner is engaged in the landscape plant sales industry, and the plot is used as a plant sales base. The total area of the plot is about 6,200㎡. The outer ring (along the road side) is the intensive planting and sales area for plants, while the inner ring is the core landscape courtyard area, covering about 2,600㎡. The old building is located on the east side of the core landscape courtyard area, facing west, with its main facade oriented towards the core courtyard area, functioning as auxiliary space for the courtyard. The design of this project focuses on the holistic creation of the core landscape courtyard and the renovation of old buildings. It aims to craft a wild, natural, and rustic “primordial realm” where the courtyard and architecture coexist, returning to the essence of nature and pursuing a poetic atmosphere that is devoid of artificiality and evolves over time.
▼庭院景观,courtyard landscape© 知筑影像 Arch Nango
建筑改造的内容是一栋略显时代痕迹的三层老建筑,占地约130㎡。它位于核心庭院东侧,红色的条形瓷砖立面,带着八九十年代南方自建房的典型特征,与其身旁自然野趣的庭院景致,存在着一种微妙的隔阂。我们的任务,并非打造夺目的建筑主体,而是让这座建筑退隐,并最终与庭院共生。景观设计在前,建筑设计在后,整体景观设计呈现野趣、自然、古朴的设计风格,以景观设计为基调提供建筑改造设计依据,建筑所需做的,是从一个时代的遗留物,转变为一处融入景观的背景与”观景器”。
▼原始场地,original ground© 知筑影像 Arch Nango
The building to be renovated is a three-story old structure bearing traces of its era, covering an area of approximately 130 m². Located on the east side of the core courtyard, its facade of red strip tiles carries the typical characteristics of self-built houses from the 1980s and 1990s in southern China, creating a subtle dissonance with the naturally wild and rustic scenery of the adjacent courtyard. Our task is not to create a striking architectural centerpiece, but to allow this building to recede and ultimately coexist in symbiosis with the courtyard. The landscape design comes first, followed by the architectural redesign. The overall landscape design embodies a wild, natural, and rustic style, which sets the tone and provides the basis for the architectural renovation. What the building needs to do is transform from a relic of its time into a backdrop integrated into the landscape and a “viewing frame.”
▼庭院景观,courtyard landscape© 知筑影像 Arch Nango
庭院设计
Courtyard Design
整个庭院拒绝刻意的形式与华丽的装饰。我们通过模拟自然生态的多层次植物配置(如本地乔木、观赏草、蕨类与地被植物的自然组合),营造丰富而随性的空间质感。让植物自由生长,形成荫蔽、路径与焦点,使庭院随着季节更迭呈现不同的生命状态,赋予场地独特的野趣与活力。
The entire courtyard rejects deliberate forms and ornate decorations. We simulate natural ecosystems through multi-layered plant configurations (such as the natural combination of local trees, ornamental grasses, ferns, and ground cover plants), creating a rich and casual spatial texture. Allowing plants to grow freely forms shade, paths, and focal points, enabling the courtyard to present different states of life with the changing seasons, giving the site a unique wildness and vitality.
▼院中亭,Pavilion in the courtyard© 知筑影像 Arch Nango
景观布局注重探索式的体验序列。路径的铺装选用青石板、碎石等天然材料,以非规则的铺设方式,引导人们在迂回行进中不经意地发现不同的景致。核心水景的设计摒弃光洁的池壁,采用天然石材与湿生植物的自然过渡,营造出静谧古朴的意境,使其成为庭院精神的凝聚点。
The landscape layout focuses on an exploratory sequence of experiences. The paving of paths uses natural materials such as bluestone slabs and gravel, laid in an irregular manner to guide people to inadvertently discover different scenery while meandering. The core water feature design abandons smooth pool walls, adopting a natural transition with natural stones and hygrophytic plants to create a quiet and rustic atmosphere, making it the focal point of the courtyard’s spirit.
▼青石步道,bluestone footpath© 知筑影像 Arch Nango
▼绿野仙踪,the wizard of oz© 知筑影像 Arch Nango
景观在此并非建筑的配景,而是环境的定义者。所有景观元素的设计,均以将建筑”包裹”和”消解”为目的。面向建筑主立面的区域,植物层次经过精心考量,既保证室内观景的视野通透,又让建筑底层融入绿意之中。最终,景观成为主体,建筑则”退隐”为景观中的一幅画框、一个容器,共同成就一种浑然天成的空间气质。
Here, the landscape is not a backdrop for the architecture but the definer of the environment. The design of all landscape elements aims to “wrap” and “dissolve” the building. The plant layers in the area facing the main facade of the building are carefully considered to ensure transparent views from the interior while integrating the ground floor of the building into the greenery. Ultimately, the landscape becomes the main body, and the building “recedes” into a picture frame and a container within the landscape, together achieving a natural spatial quality.
▼隐匿的建筑,hidden buildings© 知筑影像 Arch Nango
▼共生与连接,symbiosis and connection© 知筑影像 Arch Nango
▼庭院一角,A corner of the courtyard© 知筑影像 Arch Nango
建筑设计
Architectural Design
原建筑改造难点在于形态和立面构成复杂,与现有庭院不协调,需在不改变建筑原始框架的情况下,削弱建筑与景观的违和感,以达到共生状态;景观设计在前,建筑设计在后,建筑设计上需考虑如何与景观深度融合的问题。造型重构(做减法):改造的第一步是做减法。我们移除了立面上所有冗杂的装饰性构件,剥离其多余的内容,让建筑体量回归最清晰、纯粹的几何形态。
▼SU模型图,SU model© 陆启水建筑师事务所
The primary challenge in renovating the existing building lies in its complex form and facade composition, which lacks harmony with the current courtyard landscape. The goal is to mitigate the sense of dissonance between the architecture and the landscape without altering the building’s original framework, ultimately achieving a symbiotic state. Since the landscape design takes precedence, the architectural redesign must focus on strategies for deep integration with the landscape. Form Reconstruction (Subtraction): The first step of the renovation was subtraction. We removed all redundant decorative components on the facade, stripping away unnecessary elements, allowing the building mass to return to its clearest, purest geometric form.
▼建筑立面,architecture facade© 知筑影像 Arch Nango
界面消隐(坡屋檐与灰空间):在建筑的主要景观面设计坡屋面挑檐结构,其形态源自于传统坡顶的现代化演绎,用深灰色铝板代替传统瓦屋面,简化建筑线条,弱化视觉效果,形成檐下灰空间。在此驻足,光影斑驳,眼前庭院舒展,屋檐为人提供了与自然互动最富诗意的停顿点。
Boundary Dissolution (Pitched Eaves and Grey Space): A pitched roof overhang structure was designed on the main landscape facade of the building. Its form derives from a modern interpretation of the traditional pitched roof, using dark grey aluminum panels instead of traditional tiles, simplifying the building lines, weakening the visual impact, and creating a grey space under the eaves. Stopping here, with dappled light and shadow and the courtyard stretching out before one’s eyes, the eaves provide the most poetic pause point for interaction with nature.
▼金属挑檐,metal eaves© 知筑影像 Arch Nango
▼檐下空间,eaves space© 知筑影像 Arch Nango
通透界面(门窗设计):在门窗的设计和选择上,为将尽可能多的庭院景观通过门窗引入室内空间,我们选用大玻璃与极简框扇。同时在一层直面庭院水池核心景观的茶室空间,采用大玻璃对开移门。当门扇闭合,呈现一幅精心裁切的立体画框,可将庭院四季收纳于室内;当门扇开启,物理的界限彻底消失,茶室与庭院连为一体,脚步声、风声、水声交织,完成了建筑空间与自然景观的深度融合。
Transparent Interface (Door and Window Design): In the design and selection of doors and windows, to introduce as much courtyard scenery into the interior space as possible, we chose large glass panels with minimalist frames. Furthermore, in the tea room space on the first floor facing the core water feature of the courtyard, large sliding glass doors are used. When the doors are closed, they present a carefully cropped three - dimensional picture frame, bringing the four seasons of the courtyard indoors; when the doors are opened, the physical boundary completely disappears, connecting the tea room and the courtyard into one, with footsteps, wind, and water sounds interweaving, achieving a deep integration of architectural space and natural landscape.
▼镜中景,scene in the mirror© 知筑影像 Arch Nango
▼框景,framed scenery© 知筑影像 Arch Nango
材料契合(立面材质): 整体立面风格塑造上,我们刻意回避了炫技与华丽的表达,整体立面覆以平实的深灰色外墙涂料,这种质朴无华的选择,恰恰是对周边环境最真诚的回应。它让建筑的表皮随着光阴流转产生细微的痕迹,使其仿佛从土地中生长而出,散发出一种安静、温润的时间质感,与庭院的古朴气息浑然天成。
Material Harmony (Facade Material): In shaping the overall facade style, we deliberately avoided showy and extravagant expressions. The entire facade is covered with a plain dark grey exterior coating. This simple and unadorned choice is precisely the most sincere response to the surrounding environment. It allows the building’s skin to develop subtle traces over time, as if it grew from the land, emitting a quiet, warm temporal quality that blends seamlessly with the rustic atmosphere of the courtyard.
▼建筑立面,architecture facade© 知筑影像 Arch Nango
▼内庭院,inner courtyard © 知筑影像 Arch Nango
▼生长的建筑,growing architecture© 知筑影像 Arch Nango
体验强化(檐下回廊):沿建筑一圈回廊。屋顶出檐,一个延伸而出的檐下灰空间,划出一片半明半暗的过渡地带。坐在室内与户外的交界处,身体的一半在檐下的阴翳中,感受茶室的庇护与安宁;另一半则能感知庭院的微风、细雨的气息和阳光的温度,模糊了内外的绝对界限,让人处于一种既内且外、安然观照的禅定状态,是精神向外探出的触角。
Experience Enhancement (Corridor under the Eaves): A corridor runs around the building. The roof overhang creates an extended grey space beneath the eaves, demarcating a transition zone of half-light and half-shadow. Sitting at the boundary between inside and outside, half of the body is in the shade under the eaves, feeling the shelter and tranquility of the tea room; the other half can perceive the breeze of the courtyard, the scent of drizzle, and the warmth of the sunlight, blurring the absolute boundary between inside and out. It places a person in a meditative state of being both inside and outside, observing serenely, an extension of the spirit outward.
▼檐下空间,eaves space© 知筑影像 Arch Nango
触感体验(茶室细节): 茶室内铺设的羊皮纸需要赤足进入,被轻触、被感知。赤足其上,能感到纸张表面微妙的阻尼与温度,能够感受到近乎肌肤相亲的私密触感。▼茶室一景,a scene in the teahouse© 知筑影像 Arch Nango
▼茶室空间,tea room space© 知筑影像 Arch Nango
设计总结
Design Summary
佛山云庭项目,是一次在严格限制条件下寻求诗意栖居的积极探索。通过建筑造型重构、界面消隐、材料契合等多策略设计,旨在将一个时代的遗留物转化为与新生的自然景观共生的现代空间。我们不仅要解决原建筑与景观不协调的难题,更通过现代极简的设计语言,营造出静谧、质朴且富有深度的空间体验,最终成就了一栋生长于庭院中的建筑。这是理性改造的感性表达,让人在静谧质朴中回望过去、感受当下、望眼未来。
The Cloud Court Project in Foshan represents a proactive exploration of poetic dwelling within strictly defined constraints. Through multi-strategic design approaches including architectural form reconfiguration, boundary dissolution, and material harmony, it aims to transform a relic of its era into a modern space that coexists symbiotically with a newly born natural landscape. The project not only resolves the incongruity between the original structure and the landscape but also, through a modern minimalist design language, creates a tranquil, rustic, and profound spatial experience. The ultimate achievement is a building that grows from within the courtyard itself. It is an emotional expression of rational renovation, allowing one to quietly contemplate the past, experience the present, and look toward the future within its serene and质朴 (rustic/austere) atmosphere.
▼建筑立面夜景,architecture facade night view© 知筑影像 Arch Nango
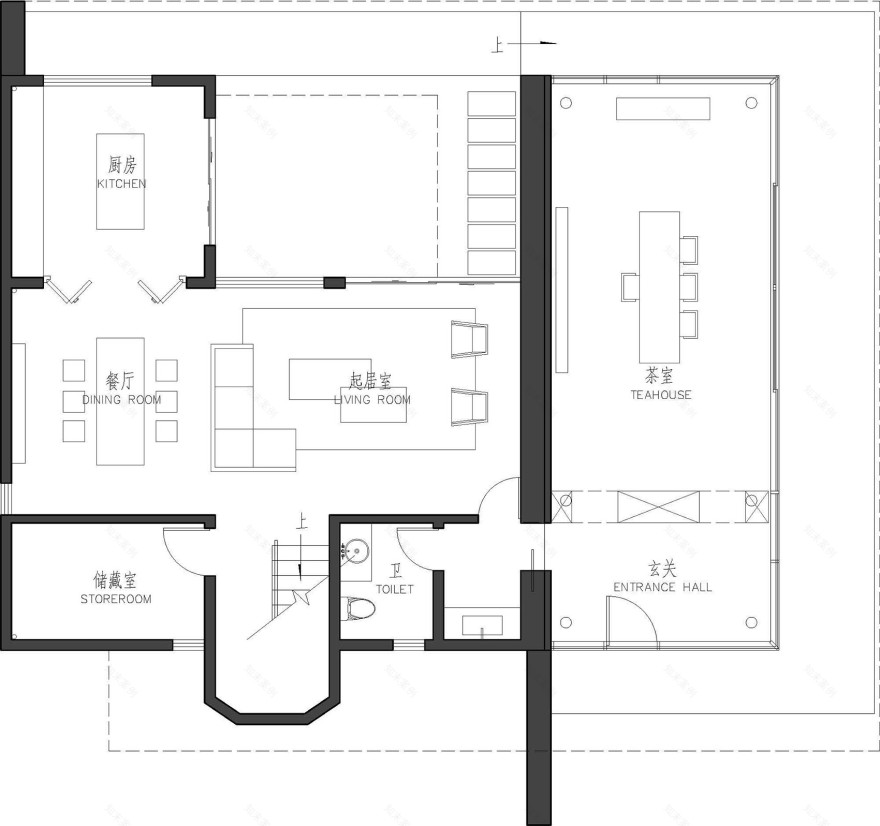
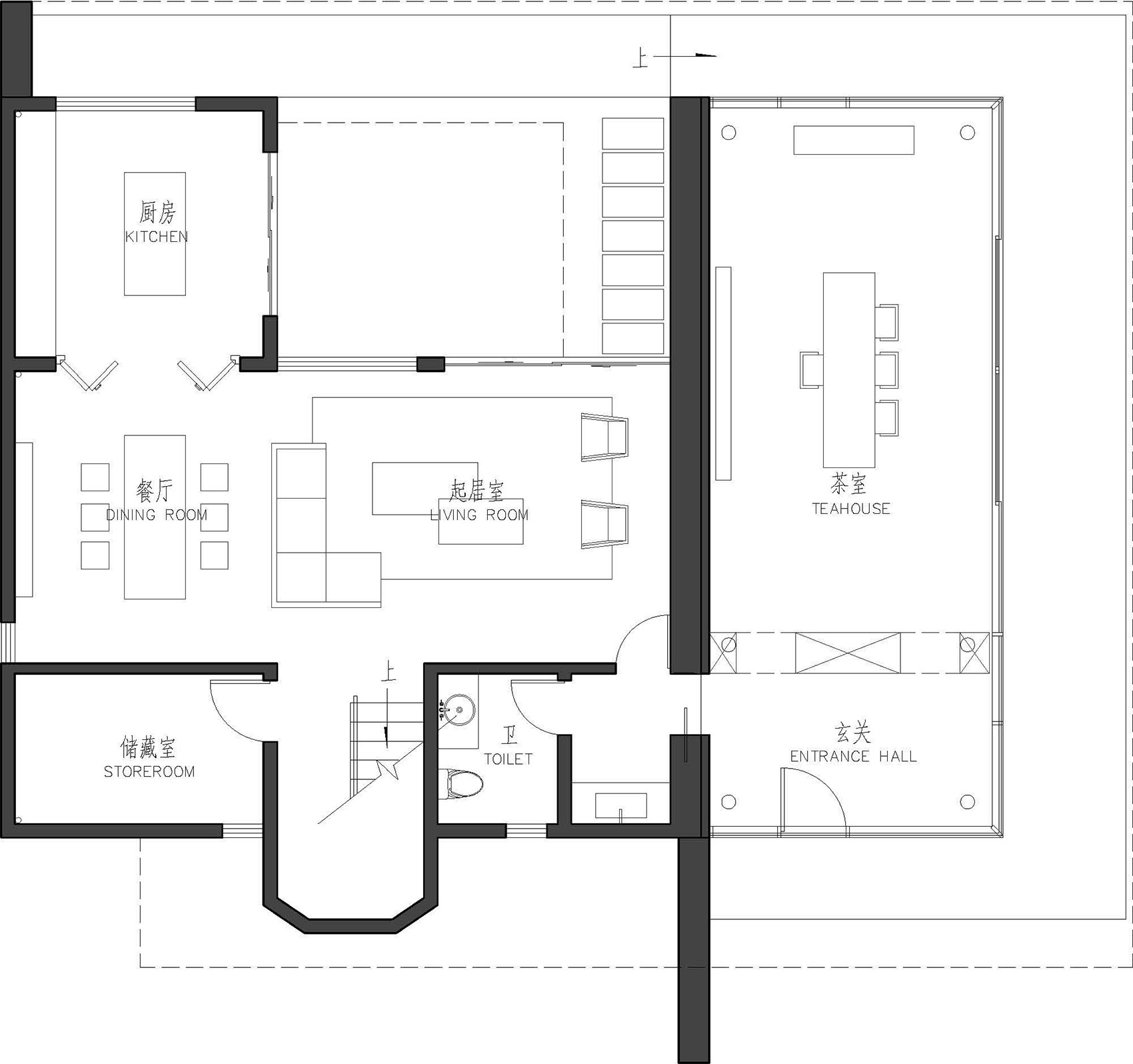
▼一层平面图,first floor plan© 陆启水建筑师事务所
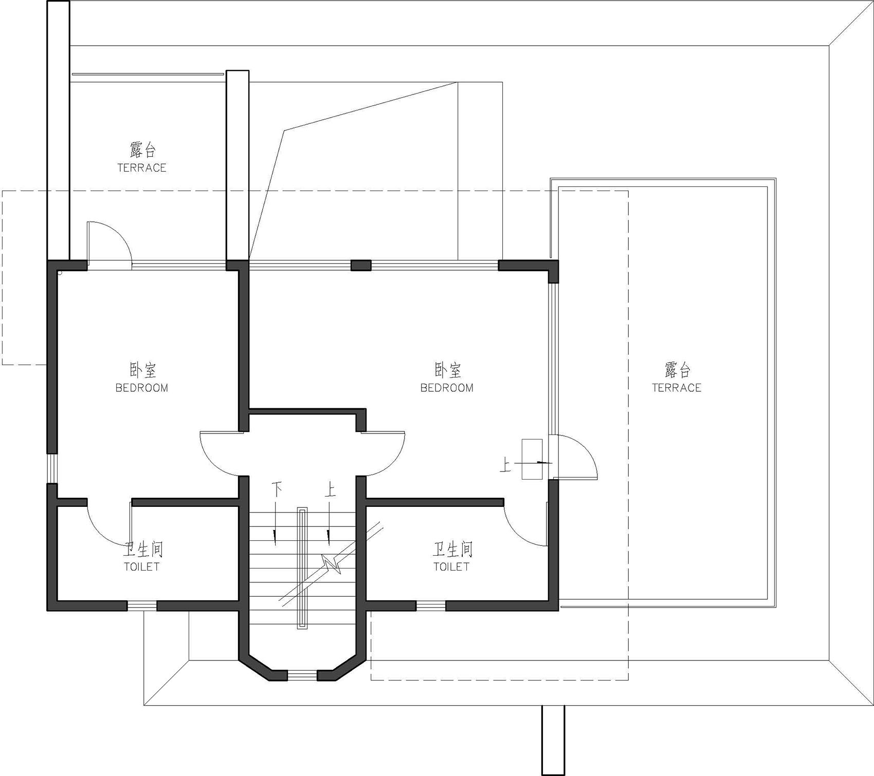
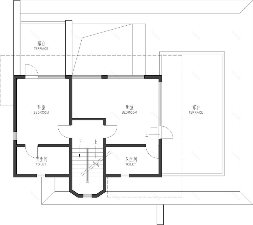
▼二层平面图,second floor plan© 陆启水建筑师事务所
▼三层平面图,third floor plan© 陆启水建筑师事务所
▼立面图,elevation plan© 陆启水建筑师事务所
▼剖面图,building section© 陆启水建筑师事务所
项目名称:宋屿雲庭
项目地点:广东省佛山市
建筑设计:陆启水建筑师事务所
主持建筑师/项目主创:陆启水
专业负责:李国斌、谢树藤
设计团队:章仕杰、马卿、孙义群、陆启跃、张晨、范泽冉、杨陈楠
庭园营造:园居生活
庭院设计:宋屿园林
庭院面积:6200m(核心庭院面积2600m)
建筑面积(改造):254m
设计时间:2024/04-2024/10
建设时间:2024/05-2025/06
摄影:知筑影像 Arch Nango
Project name: Song Yu Garden
Project location: Foshan City, Guangdong Province
Architectural Design: LQS Architects
Principal Architect / Lead Designer: Lu Qishui
Project Responsible:Li Guobin,Xie Shuteng
Design Team: Zhang Shijie, Ma Qing, Sun Yiqun, Lu Qiyue, Zhang Chen, Fan Zeran, Yang Chennan
Garden Construction: Yuanju Life
Landscape Design:Song Yu Landscape
Garden Area: 6,200 ㎡ (Core Garden Area 2,600 ㎡)
Construction Area (Renovation): 254 ㎡
Design Period: 2024/04 – 2024/10
Construction Period: 2024/05 – 2025/06
Photography:Arch Nango
客服
消息
收藏
下载
最近










































