查看完整案例

收藏

下载
The building was originally an artists studio and residence. Over time, it deteriorated, suffering from functional obsolescence, poor circulation, leaks, and disrepair. The new owner, an artist, wanted to seamlessly integrate living and creative spaces while preserving the large-scale utility needed for studio work and display—aiming to give the home a soul and create a nurturing womb for art.
本项目坐落于成都具有标志性意义的蓝顶艺术区。蓝顶艺术群落源于二十多年前,由周春芽、何多苓等著名艺术家创立,是中国西南地区艺术生态的重要地标。此次改造的号楼,正是这一深厚艺术脉络的一处物理载体。
This project is situated within the iconic Blue Roof Art Zone in Chengdu. The Blue Roof artist community was founded over two decades ago by renowned artists such as Zhou Chunya and He Duoling, making it a significant landmark in the artistic ecosystem of Southwest China. The renovation of Building No.3 represents the revitalization of a physical vessel carrying this profound artistic lineage.
建筑原为艺术家的工作室与居所,经年使用后出现了功能滞后、动线混乱及漏水破损等问题。新任业主作为艺术家,希望在不失工作室大尺度创作和展示的前提下,将生活空间与创作空间完美融合,为“家”注入灵魂,为“艺术”提供温床
The building originally served as a studio and residence for artists. After years of use, it faced i
The new owner, an artist, wished to perfectly integrate living spaces with creative spaces without compromising the large-scale utility required for studio work and display essentially, to imbue the home with a soul and provide a nurturing womb for art.
面对原有结构的限制与新的功能需求,我们采取了“保留、加建、重组”的复合策略:gy of Retain, Add, and Reorganize:结构保留与功能重置:最大限度地保留了原有两层混凝土框架,以此为基础进行彻底的功能重置,将生活区、展览区与工作区清晰分离又有机串联。
Structural Retention - Functional Reset: The original two-story concrete frame was largely preserved. Based on this, a thorough functional reorganization was implemented, clearly separating yet organically connecting the living, exhibition, and working zones.
新建、拆除剖图
体量加建:通过局部加建第三层,成功置入了一个逾300平方米的顶层工作室,并在内置入一个有自然采光的花房,完美满足了业主对创作空间和植物热爱的需求。
Volume Addition: A partial third-floor addition successfully incorporated a new studio space of over 300 square meters, featuring an internal greenhouse with natural lighting, perfectly addressing the clients need for expansive creative space and their passion for plants.
边界消融:运用落地推拉门、采光花房和横向长窗,将周围花园的绿意与天光最大限度地引入室内,物理边界被弱化,建筑、艺术与自然在此展开对话
Blurring Boundaries: The use of full-height sliding doors, the internal light-filled greenhouse, and horizontal windows maximizes the introduction of greenery and natural light from the surrounding gardens into the interior. Physical boundaries are weakened, facilitating a dialogue between architecture, art, and nature.
多变的空间:在内部空间设计中结合原有结构和新建部分强调空间从矮到高,从窄到宽,从而增加整体空间的丰富性和体验感。
Spatial Variety: The interior design leverages both the original structure and new additions to emphasize transitions from low to high ceilings and from narrow to wide spaces, thereby enhancing the overall spatial richness and experiential quality.
通过设计营造一场充满仪式感的沉浸式空间体验。
The design creates an immersive spatial experience filled with a sense of ritual.
建筑外立面 · 克制表达与自然对话
Building Facade
A Restrained Dialogue with Nature
建筑外立面选用经济实用的灰色防水涂料,浅灰的色调在茂密植被的映衬中,既清晰勾勒出建筑体量,又自然融入环境而不显突兀。
The building facade is finished with an economical and practical gray waterproof coating. The light gray hue stands out against the lush vegetation, clearly defining the building’s volume while blending naturally into the environment without appearing obtrusive.
临道路的东立面采用克制性的开窗策略,在满足室内采光的同时有效保护居住隐私。大小不一的窗户开口不仅构建了功能性的光影秩序,也为室内营造出温馨而富有层次的光影氛围。
The east elevation, facing the road, adopts a restrained window-opening strategy that ensures sufficient natural lighting while effectively maintaining privacy. The varying sizes of window openings not only create a functional play of light and shadow but also contribute to a warm and layered luminous atmosphere indoors.
而朝向花园的其余三个立面,则大量运用落地窗和推拉门设计。这一处理不仅极大强化了建筑与自然的视觉联系,更通过物理界面的消隐,实现了室内外空间的渗透与融合,进一步呼应了“艺术与生活共生”的整体理念。
The other three elevations facing the garden feature extensive use of floor-to-ceiling windows and sliding doors. This approach not strengthens the visual connection between the interior and the natural surroundings but also blurs the physical boundary, achieving a seamless integration of indoor and outdoor spaces. This further reinforces the overall concept of symbiosis between art and daily life.
二层 · 生活的容器
Second Floor
Vessel of Life
改造后的入口从侧面移至建筑正面,通过斜向退让与增加钢板挑檐,结合门前竹林,营造出“曲径通幽”的入场仪式。此层作为主要生活区,容纳了厨房、餐厅、起居室及卧室。设计通过刻意压低的入口廊道(层高2.2米)与其后挑高的起居中庭形成强烈对比,在空间的收放与明暗变化中,丰富了居住的情绪节奏。
The renovated entrance was relocated from the side to the front facade. A strategic setback with added steel plate canopies, combined with bamboo groves at the doorstep, creates an entry sequence imbued with a sense of secluded tranquility. This level serves as the main living area, containing the kitchen, dining room, living room, and bedrooms. The design intentionally contrasts a low entrance corridor (2.2m ceiling height) with the subsequent double-height living atrium, enriching the domestic experience through compression and release, and shifts in light and shadow.
三层 · 创作的高地
Third Floor
Creative Loft
一部由钢板打造、结合书架的悬浮楼梯,引领主人步入三层的创作主场。工作室中心嵌入一个白色阳光板室内花房,阳光通过屋顶引入,简约空间中滋生几分自然温暖。混凝土与阳光板材质的交错映衬出和谐质感,柔化线条的同时让面与面之间完美结合,营造出舒适静谧的工作室氛围。这里安静、明亮、充满自然能量,是一个能无限激发创作灵感的理想容器。
A floating steel staircase, integrated with bookshelves, leads the owner up to the primary creative domain on the third floor. At the heart of the studio sits an internal greenhouse with a polycarbonate roof. Sunlight pours in from above, instilling a sense of natural warmth within the minimalist space. The interplay of concrete and polycarbonate materials creates a harmonious texture, softening lines and seamlessly blending surfaces to foster a comfortable and serene studio atmosphere. This is a quiet, bright, and energy-filled space an ideal vessel for inspiring limitless creativity.
一层 · 艺术的展场
First Floor
Gallery of Art
从二层生活区一扇隐藏的门下行,空间情绪陡然转变——从亲密的生活尺度瞬间切换米挑高的宏大展览厅。原始的建筑肌理(交叉井字梁)被保留,巨大的落地窗将下沉花园的景色囊括入内。这里既是作品的展示场,亦是艺术与自然冥想的殿堂。
Descending from the living area on the second floor through a concealed door, the spatial mood shifts abruptly transitioning from an intimate domestic scale to a grand 6-meter-high exhibition hall. The original architectural texture (the cross-ribbed waffle slab) is preserved, and large floor-to-ceiling windows frame the views of the sunken garden. This space functions both as a gallery for artwork and a hall for meditation on art and nature.
最终,建筑披上一袭经济的浅灰色外衣,谦逊地隐匿于自然环境之中。我们通过克制的设计手法,精准回应了艺术家业主的功能与精神需求,成功模糊了工作室与家的边界。
In the end, the building is clad in an economical light gray coat, modestly receding into the natural surroundings. Through a restrained design approach, we have precisely responded to the functional and spiritual needs of the artist-owner, successfully blurring the boundary between studio and home.
在这里,生活即是艺术,艺术亦是生活。这不仅是一次旧建筑的重生,更是一次关于艺术创作与日常居住如何共生共融的深刻探索。
Here, life is art, and art is life. This project represents not merely the rebirth of an old structure, but a profound exploration into the symbiotic integration of artistic creation and daily living.
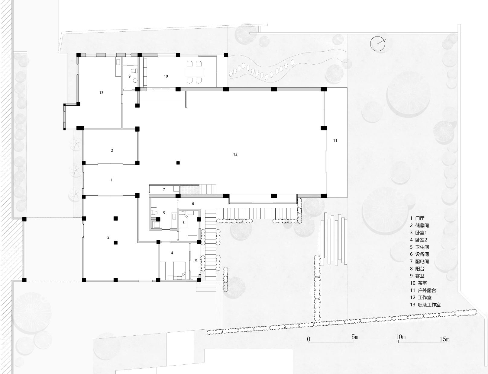
总平图
一层平面图
二层平面图
三层平面图
剖立面图
项目名称|蓝顶艺工作室改造
项目地点|中国|成都|三圣乡蓝顶艺术区
设计机构 | 成都相对建筑设计有限公司
设计团队 靳洪铎、宋柏林、叶良松、王叶明、向悦
项目摄影 | 形在摄影HereSpace | 贺川
项目面积 | 1387
完工时间|2025
施工单位|王春成
结构设计|张鹏丽
主要品牌 Multi Design Lab、华商暖通、旭格门窗、NANOGRE瓷砖、花园木作、林桠高端卫浴
靳洪铎 相对建筑 创始人/主持建筑师
相对建筑2015年成立于成都,由靳洪铎主持发展。“ 相对,是指依靠一定条件而存在 或变化”,用相对的思维面对复杂的项目,是我们对设计的态度和方法。各种事物发展的过程都是相对的,城市建筑空间也是一样,被赋予社会、历史、人文等特定含义之后,有属于其自身的属性与气质,挖掘并以现实,创新的方式表达,是我们对场所最大的尊重。我们关注于项目本身,用最直观,形象的方式寻找最好的答案。相对建筑由一群具有国际视野并充满创造力的设计师组成。每次的设计实践,都是我们对城市建筑/空间更深层次的探索。我们善于倾听并思考,富有创意地表达对场所的理解;注重材料与建造过程, 把控设计细节;尊重使用者的体验,将设计与其结合。我们关注从概念设计到实施落地的全过程,重视每一个项目的完成度与整体性。
客服
消息
收藏
下载
最近
























































