查看完整案例

收藏

下载
剧场的文化共生设计
上海MCOD镜合设计团队希望复刻传统古城建筑的对称形制,以强化历史风貌的延续性,但古城文旅空间的体验需求与现代商业的开放属性,迫使这一想法被调整。于是,设计方转而采用 “舒展飞檐 复合体块” 的理念,同时融入北魏文化符号:以北魏石窟中 “层叠出挑” 的斗拱为原型,将其简化为轻量化白色构件与木饰面模块,既还原了北魏建筑 “雄健舒展” 的形制特征,又以模块化预制适配现代空间的功能布局。
建筑以曲线形态环抱场地,既呼应古城飞檐的文化符号。建筑立面以低成本金属格栅模拟中式肌理,搭配高通透玻璃幕墙,既保留地域文化的视觉辨识度,又控制了材料与施工成本;屋顶采用模块化预制构件,在还原传统飞檐曲线的同时,缩短了现场工期、降低了人工开支。
丨项目图纸
左右滑动,查看更多 →
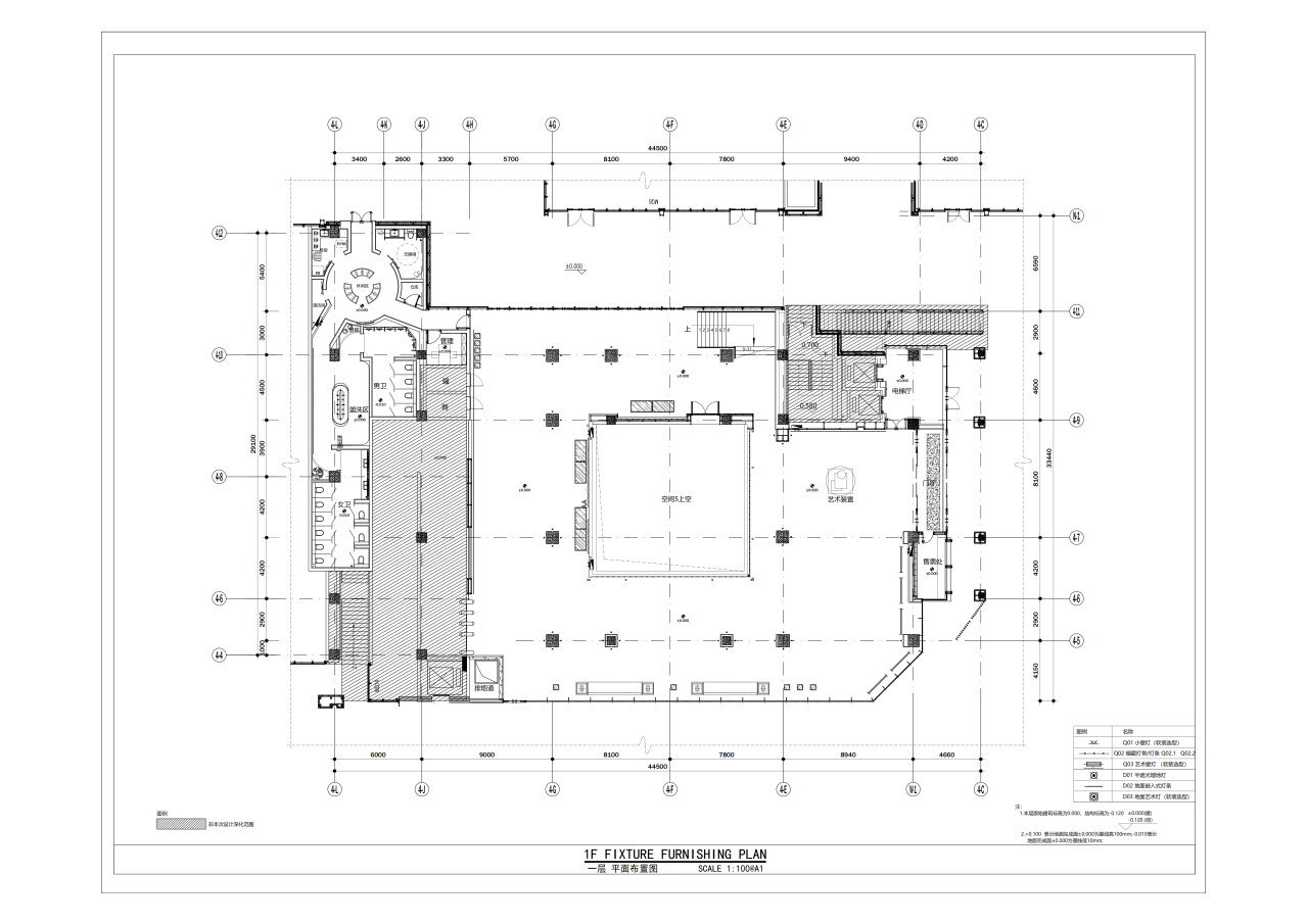
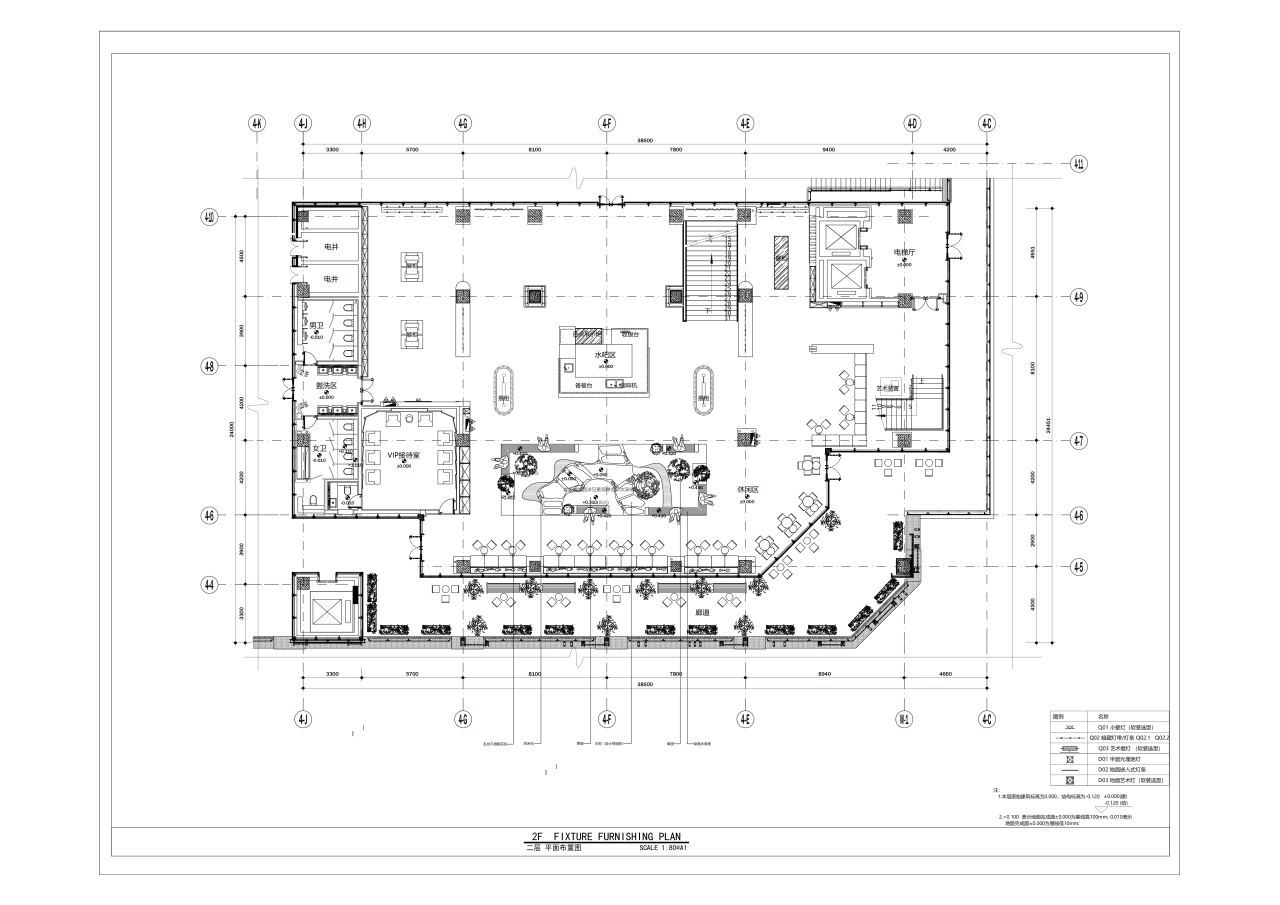
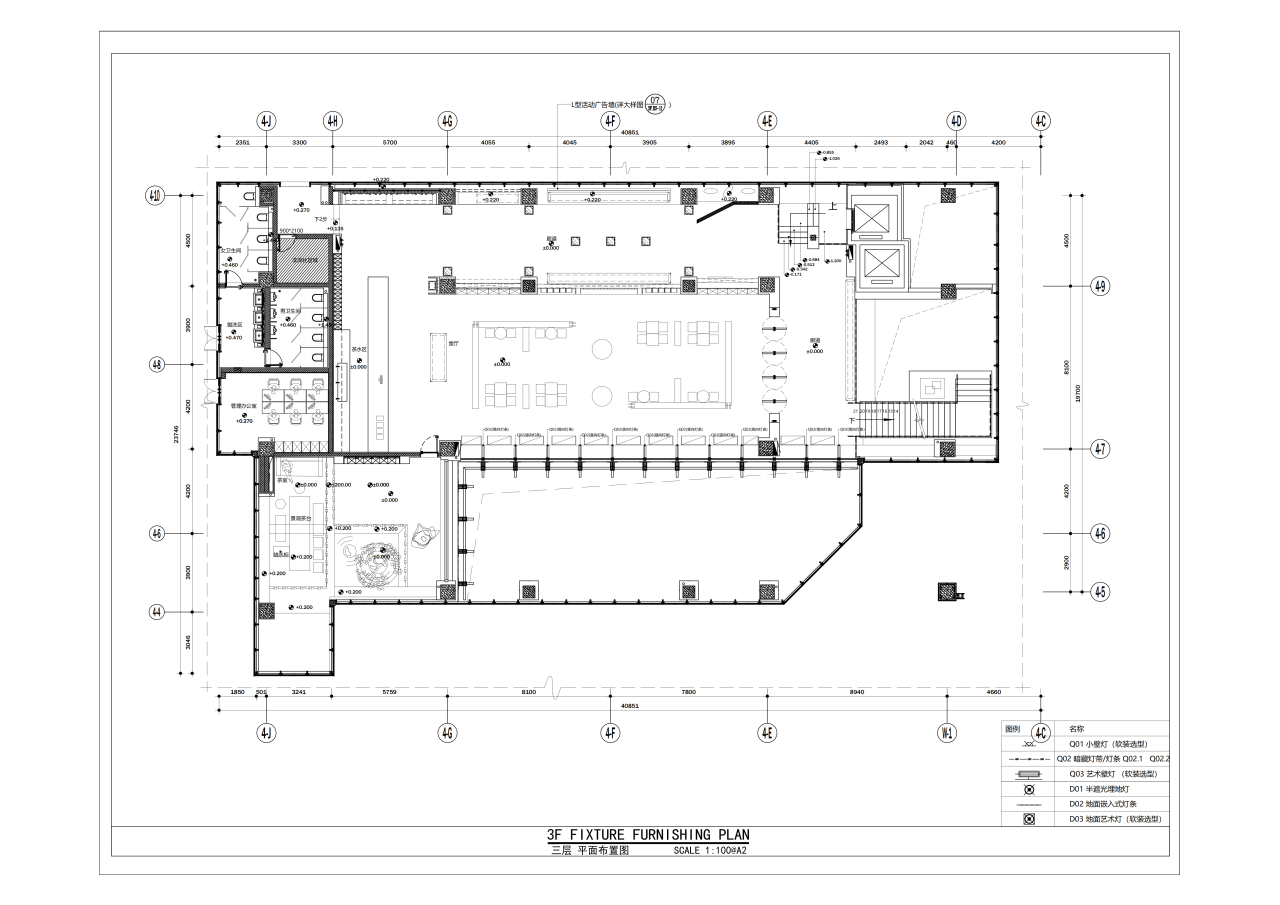
1F-3F 平面图
空间设计通过 “递进式动线 场景化分区”,让古城风貌与北魏文化随着脚步逐步铺展:入口的低矮连廊引导视线向内收束,魏碑装饰与斗拱构件渐次出现,同时窥见庭院景致;直至抵达剧场前厅,开阔的古城天际线与通高空间中的北魏风格斗拱序列完整呈现。
魏风初遇:梦与序幕的文化缓冲场域
《如梦大同》一层演绎大厅,以 “传统符号的当代沉浸式表达” 为核心,构建出文化与体验融合的场域:将入口区的座位系统定位为 “如梦” 体验的文化开篇载体,以 “轻量化引导 文化初印象传递” 为核心逻辑,让每一处座位都成为 “古城与北魏文化” 与访客的第一次温和对话,在空间的起始点就锚定项目的在地文化基调。
一层作为项目的 “门面” 与体验起点,承担着 “从城市公共空间过渡到项目文化场域” 的功能,因此座位设计需同时兼顾 “空间缓冲” 与 “文化轻触” 的双重目标。格栅上简化的北魏云纹、斗拱轮廓,与座位框架的线条感形成视觉联动,让文化符号以 “不刻意” 的方式完成初显。这样的设计让首次到访的客人不会因文化元素的堆砌产生距离感,反而能在松弛的视觉体验中,隐约感知到空间的地域属性。
候座的位置既不会遮挡影像的观看视线,又能让访客在等候时自然接收到文化信息。抬头就能看到墙面装饰的轻量化斗拱构件 —— 这种 “影像信息与空间实体” 的呼应,让文化认知从 “视觉接收” 转向 “空间感知”,完成了 “文化初印象” 的第一层传递。
前厅的深色石材地面、白色斗拱序列营造出 “文化庄重感”,而浅棕色软包座位则像一个 “温和的过渡带”,让从入口区走来的访客,不会因空间气质的突变产生割裂感,反而能在柔软的坐感中,自然适应前厅的文化氛围。
这些临时休憩座,恰好衔接了 “入口连廊到剧场前厅” 的动线:当访客从连廊进入项目,先在候座上完成 “文化初触”,再途经休憩座时,抬首望去,正是前厅通高空间中,白色斗拱序列与窗外古城屋顶的轮廓重叠。这一刻,座位不再是单纯的 “休息设施”,而是 “文化体验的引导者”,让 “如梦” 的序幕,以 “空间 文字 视觉” 的多维方式,在访客心中埋下文化感知的种子。
卫生间的设计,延续项目“传统气质当代表达”的逻辑,同时兼顾功能与体验的精致感:
风格与材质的适配:以深色石材地面、金属质感墙面搭配木质纹理洗手台,既呼应项目整体的厚重文化基调,又通过材质对比提升空间的精致度;弧形顶面与镜面的运用,弱化了卫生间的封闭感,同时增强空间的延伸性。
功能与体验的细节设计
洗手台采用一体化弧形造型,既优化使用动线,又以独特形态成为空间视觉焦点;
与项目调性的统一
材质选择(金属、石材)与项目公共区域保持一致,同时通过灯光(嵌入式射灯、间接照明)的层次设计,延续整体的沉浸式氛围。
魏韵轻栖:梦与体验的松弛文化场域
传统茶空间的形态、材质多遵循固定的中式范式,很难适配年轻群体的审美与社交习惯。但在《如梦大同》二楼,上海 MCOD (镜合)设计团队重构了这一逻辑:将座位系统定位为 “入梦” 阶段的核心文化叙事单元,以 “分阶式设计” 适配年轻群体的轻社交、慢休闲需求,同时让北魏文化以 “松弛化、轻量化” 的形态,渗透到每一处体验细节中。
二楼作为 “年轻休闲茶业态” 场域,以 “让年轻群体愿停留、乐体验” 为核心,座位设计兼顾 “松弛感” 与 “文化质感”。开放式散座是核心载体:浅木框架配软包坐垫,以 “简化美学” 让建筑与家具的文化基因形成统一视觉语言。
浅木色调是刻意选择,其 “温暖松弛” 属性与中庭绿植、浅灰石材形成温润对话 —— 苔藓、蕨类带来生机,石材作冷静基底,座位则串联自然与空间,营造 “室内微园林” 氛围。
散座灵活分布于中庭周边,窗边单元适合独自放空,斗拱旁可轻商务交流,每个单元都有独特微场景。
通透玻璃 绿植围合出半私密空间,既保通透又遮视线。卡座靠背弧线呼应顶面弧形吊顶(模拟北魏石窟穹顶),材质延续原木基调,靠垫印简化魏碑短句 “平城秋望,茶烟绕檐”。访客入座后,在松弛中自然沉浸,完成 “入梦” 体验进阶。
魏脉深享:梦与叙事的沉浸文化场域
在《如梦大同》三楼,上海 MCOD镜合 设计团队将座位系统提升为 “享梦” 阶段的核心文化载体,以 “层级化设计” 承载茶商文化与北魏文脉的深度叙事,让座位不再是 “体验的附属”,而是 “文化的参与者”。
三楼作为 “茶商博物馆 茶空间” 场域,核心目标是传递大同茶商文化脉络、让访客在品茗中感受北魏文脉,座位设计兼顾文化厚重感与体验舒适度。
深棕色调与古铜展柜、深色石材地面形成统一视觉体系,模拟北魏宫殿石质台基质感,串联展柜文化氛围,营造沉浸式历史场域。
“文物 文字 实景” 三维叙事体系,让访客在品茗中读懂文物背后历史,感受文化当代延续。
结语
《如梦大同》项目展示了一套以 “文化基因当代转译” 为核心的空间叙事体系 —— 从北魏斗拱的形制轻量化到魏碑笔墨的肌理渗透,从 “如梦 - 入梦 - 享梦” 的体验链路到多业态空间的功能适配,从古城飞檐的形态重构到低成本材料的文化质感表达,每个设计决策都锚定同一个目标:让空间成为大同地域文化与当代生活方式对话的物质载体。
这个项目的价值,不在于传统符号的堆砌复刻,而在于建立了一套可迁移的文化空间设计方法论 。对于面临 “文化传承与现代功能平衡” 挑战的设计团队而言,这个案例提供的不是可复制的形式,而是一种解题路径:从地域文化的核心特质出发,找到其当代表达的原型,再通过空间动线、材料构造、符号转译等元素的系统化组织,将文化基因转化为可感知、可参与的完整空间体验。
项目信息
项目名称:《如梦大同》剧场
项目领域:商业综合体
项目地点:山西,大同
项目面积:3000 平方米
设计时间:2024 年 3月
完工时间:2025 年 5月
设计单位:MCOD 上海镜合设计
设计总监:朱云峰
设计团队:梁宇轩、付强、周昊霖、章阳
项目摄影:吴奇睿
朱云峰
MCOD 上海镜合设计总监
师承艺术大师陈逸飞,曾任LayefeHome设计总监,奠定高端家居美学体系。
25年室内设计实践,APDC亚太设计会员 | 中国杰出青年设计师
镜合设计创始人,为罗卡福、伊丽莎白雅顿等100知名品牌提供品牌视觉形象全案设计服务。意大利著名家具品牌Asnaghi首位华人设计师。
致力于研究中国文化在建筑空间里的运用和创新,在作品中,将“当代性”“文化性”“艺术性”共融、共生,以此作为设计语言用于空间表达。从传统与当下的共通、碰撞处,找寻设计的灵感;在艺术与生活的交错、和谐处,追求设计的本质。倡导“人文、生态、未来”的和谐设计理念。
客服
消息
收藏
下载
最近





























