查看完整案例

收藏

下载

翻译
Architects:Taller Michoacán
Area:332m²
Year:2025
Lead Architects:Johana Domínguez Valencia, Jaime Guillén Castañeda
Category:Houses
Design Team:Sebastian Ochoa, Marisol Barragán
Engenharia E Consultoria > Civil:MONTEA ingeniería estructural, ing. Luis Fernando Chávez García
City:Peribán de Ramos
Country:Mexico
Text description provided by the architects. House A. Martínez, located in the center of Peribán de Ramos, Michoacán, is a project that proposes a simple way of living, where space accompanies daily life and architecture becomes a silent support for what is essential.
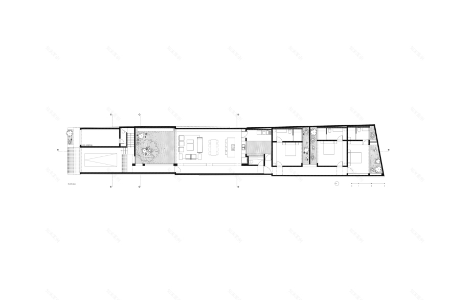
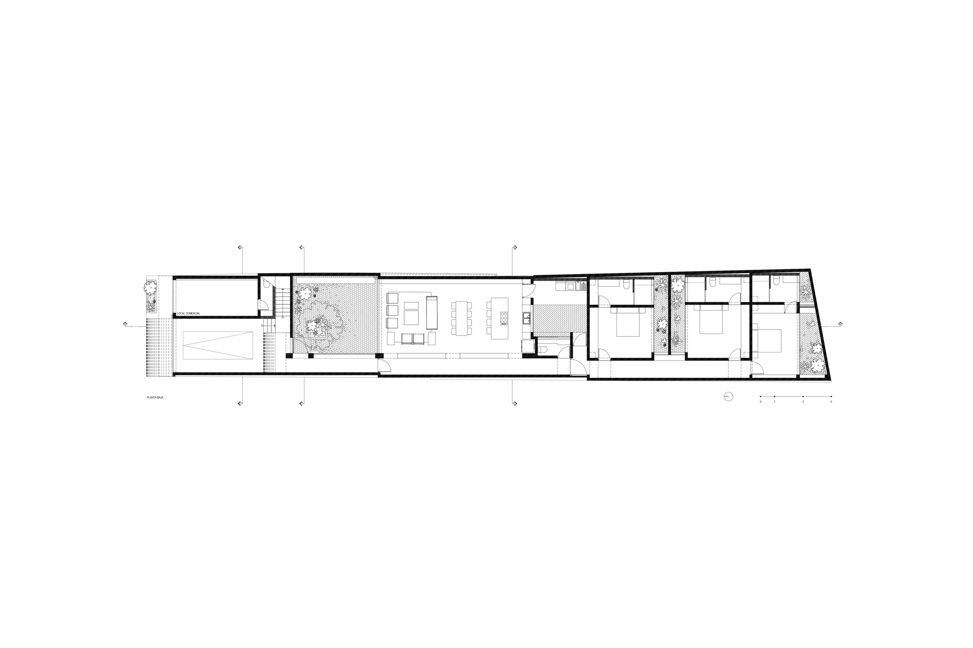
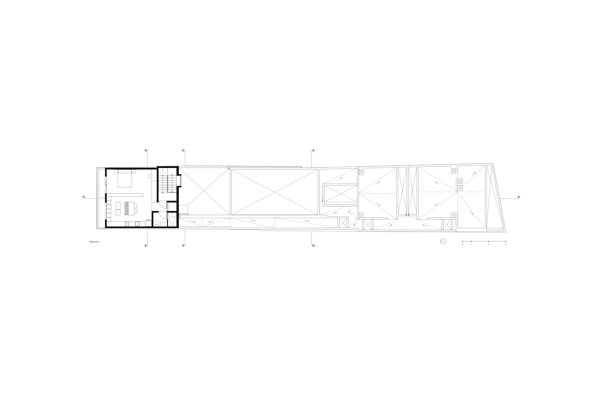
The original brief called for the organization of a ground floor residence, a commercial space, and a room/studio on the upper floor. The proposal transforms the longitudinal condition of the land into a hallway that articulates a sequence of spaces with different scales, heights, and voids.
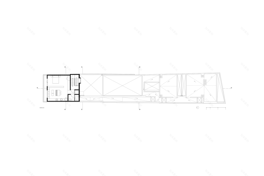
On the exterior, the project presents itself with a discreet façade, where a longitudinal balcony features as the only space on the upper floor, establishing a respectful dialogue with its surroundings and urban context. The foyer serves as a distributor between the main house and the studio; passing through it, the first section of the hallway precedes the entrance to the home, accompanied by light filtered through pieces of glass block.
The second section of the hallway connects to the social area—living room, dining room, and kitchen—which unfolds under a barrel vault that gradually reveals itself to the viewer through changes in scale. This journey culminates in the main patio, marked by the shadow of a tabachín tree. The relationship of this space with the service patio allows for cross ventilation and lighting of the living room.
The longitudinal hallway continues and leads to the final section of the project, where the spaces corresponding to the resting area are articulated: two twin bedrooms with an interior patio and a third bedroom that resolves the asymmetry of the remaining land.
House A. Martínez seeks to respond to the needs of a retirement home, where the single-level residence transcends the simplicity of the layout through spaces articulated at different scales, controlled lighting, and a spatial sequence that generates atmospheres and experiences away from traditional flatness.
Project gallery
客服
消息
收藏
下载
最近





























