查看完整案例

收藏

下载
△ 改造后的父母宅 ©朱雨蒙
设计单位:也似建筑设计(北京)有限公司
项目地点:重庆
建成时间:2023年2月
建筑面积:50平方米
本文文字由设计单位提供。
故事必须从2005年说起。那一年,居住于中国腹地重庆的人们接触到了来自遥远欧亚大陆另一端尽头的生活梦想——开发商在宣传单上写下这样的句子:“在伊比利亚半岛上点燃的热情,会沿着地中海的岸线一直蔓延到意大利的脚跟;在托斯卡纳的平岗上接受来自世界的顶礼。建筑,因此成就了风格”。在席卷神州的房地产浪潮下,“风格”成为一个寄托未来生活希望的标签。仿佛这被称为“西班牙式”的风格能赋予的不仅仅是建筑外观,还能将西班牙终年强烈的阳光、刀削斧凿般锐利的阴影、以及干爽的空气一并带到重庆。
△ 改造前 ©也似建筑
在时间的见证下,“风格”败给了“生活”。重庆的光影因云层遮挡缺乏立体感,气候潮湿闷热,在地自然条件与西班牙南辕北辙,多云气候下特有的漫射阳光无法通过窄窗进入室内。因此即使在盛夏正午,偏爱明亮居室的父亲也不得不点亮所有灯具以保障基本的光照。
△ 改造前 ©也似建筑
缺乏直射阳光更严重后果,是导致紧邻挡土墙的一层因重庆漫长的梅雨季节而潮气凝聚。由于室内墙体和地面结露,人始终被湿冷环绕。除了终年开着除湿机,母亲甚至将墙体刷成明亮的黄色,期望用视觉的温暖来弥补触觉的不适。这个家在空间上留给我最强烈的印象就是昏暗的光线,不知应作何用途的天井和后院,以及许多难以使用和打扫的犄角旮旯。
△ 改造前 ©也似建筑
迁居十五年后,父母提出了由我来改造住宅的想法。除了升级老化失能的管网以及更换损坏的设备,他们也希望根据他们已经形成的生活经验重塑空间。父母对设计提出了三点希望:“简单”,“经济”,“易用”。
在设计过程中,我和父母的对话始终围绕着“在这里会发生什么”,而非“应该摆放什么”或“应该表达什么”。设计非常小心地选择需要改造的界面,尽可能的为已经存在的家具、尚可继续使用的门窗妥善地在新居内找到用武之地。
△ 概念草图 ©也似建筑
我和父母在设计过程中达成了一个共识,即家作为生活展开和变化的舞台,而不是占领生活的“工艺品”。在如此思考的引导下,改造不再坚持基于“风格”或者“叙事”的创作,而演变为一次整理生活的努力。
△ 改造方案剖透视 ©也似建筑
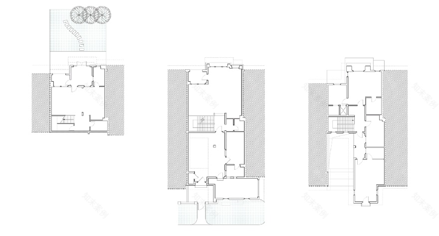
既有的三层建筑位于跌落的地形上,南北贯通。多年生活习惯形成了垂直功能分区:连接南侧小区机动车道的二层是主入口,分布着起居室、车库、客房、阳台和天井;连接房屋人行次入口的一层背靠山体挡墙、面朝后花园,由餐厅、厨房和娱乐室组成;三层则是最为私密的就寝区域,有两个卧室与一个书房。
△ 建筑平面改造前后对比 ©也似建筑
在经过不断地讨论与方案比选后,该分区被改造方案继承。思考集中在如何让房屋释放空间潜力,成为未来生活演进的催化剂。
△ 施工记录 ©也似建筑
考虑到房屋是与其他三个邻居共享建筑结构,以及经济性原则,改造完整了保留了原结构体系以及上下水主体管网。优化集中在容易拆改的非承重砌块墙体,力图以最“轻”的手段介入。
△ 建筑顶视图 ©也似建筑
在二层,通过挪移一堵面向天井的墙体,设计解决了增加无障碍电梯、改变客房位置,扩大天井面积半户外部分使用潜力、增加了换鞋更衣间等目标。在一层,通过取消一排墙体,北向的娱乐室与晾晒门廊被并入室内,餐厅被前移至靠近后院,第一次让室外景观成为就餐活动的一部分。
△ 起居室 ©朱雨蒙
超长的中岛成为空间焦点。它被设计为一个舞台,处于灶台、餐桌、麻将桌的环绕下。在聚会的时候,热衷亲自下厨的父母能够与家人朋友讨论厨艺的同时一显身手。开放的楼层中有一面墙体延伸向室外。它协调出一个半开放的烹炒隔间,避免川菜的重油烟影响就餐空间。它还在后院中切割出设备间,整合了空调室外机、热水器、晾晒等功能。
△ 厨房与舞台般的中岛 ©朱雨蒙
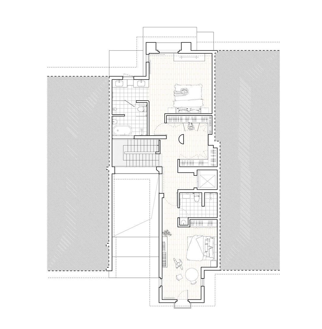
在三层,通过增加一堵外墙体,将一段半室外走廊消除,从而放大了室内空间的灵活性,改善了夏季和冬季的体感,并解放了衣帽间等原本只能位于建筑布局深处的功能,激发了新的生活想象。建筑设计并不追求强烈的风格宣言,自然而然地让房屋的外立面延续了过去的风格,无声地没入社区环境之中。
△ 改造后的三层走廊、次卧和卫生间 ©朱雨
设计心思被用在与身体有关的细节上:大门拉手和楼梯扶手的形式呼应了推拉门扇与上下楼梯的具体动作需要;设备与收纳体量像是穿插进生活的盒子,为喜欢收纳打扫的父母提供了可拓展的储藏空间;自然纹理的木材、质感涂料、及拉丝不锈钢配件的材料搭配力求素朴和温暖,并易于保养与更换。
△ 楼梯和把手细节 ©朱雨蒙
为了解决“西班牙式”建筑为重庆的居住带来室内光照不足问题,天井的北侧墙体被打开,在三楼和二层分别安装了巨大的玻璃窗。二十年来第一次,父母不必在白天全部打开室内的灯光。其中二层的玻璃墙体重新定义了天井与室内的关系,让二者在视觉上被整合为一体,两者互为背景和纵深——天井从此前纯粹的交通空间转变为起居室的延伸。
房屋落成后,生活迅速占领了这“没有屋顶的房间”,原本被放在室内的一套茶桌椅被搬到了天井的屋檐下,成为父亲午后享受阳光和茶点的去处。
△ 天井为起居室带来光线 ©朱雨蒙
为了达成这一设计目标,我们定制了一面3米高、3.8米宽的单片玻璃,作为天井落地玻璃幕墙系统的核心产品;由于其尺度超过了建筑入口,我们采用了吊车将其吊装进入天井进行安装,成为改造期间具有纪念意义的瞬间。这个连续的、包含起居室入口的玻璃幕墙与天井等宽,消解了院落由于原始建筑风格而产生的封闭感和沉重感。
△ 天井施工过程 ©也似建筑
建筑的二层仿佛脱离了重力的约束,悬置在金属和玻璃组成的通透隔断之上。
在室内,因经济考量而保留的室内楼梯成为一个引导光线进入室内的“装置”。它并没有被理所当然地设计为一个完全通透的玻璃楼梯。相反,一个基于光照分析的实体雕塑体量贯穿建筑的垂直方向,在不影响光线进入的前提下,通过塑造阴影让光变得可被感知。在人的通行功能被电梯取代后,楼梯成为光在建筑内上下移动的主要手段。
△ 楼梯将光线带入各层空间 ©朱雨蒙
以上所有的墙体挪移、外维护开洞、或者功能变化,都必定会与原建筑实体发生冲突,进而制造出“冗余”。它们或者是处于房间之中的柱子,或者是因建筑造型凹凸进退的墙体,或者是高度不齐的横梁,不一而足。诚然,为了更加惊人的“设计效果”,我们可以通过技术手段来消除掉它们——例如透过结构强化来取消部分柱子和改变横梁尺寸,但是否解决一些问题的关键是通过不再将之视为问题,而是可能性?是否建筑可以充当新与旧的协调者?
△ 入户门与客房入口 ©朱雨蒙
因此在改造中,我们保留了这些“冗余”,赋予了它们新的意义。二层北侧曲折的墙体被改造为两个“飘窗”,成为父母喜爱的夏日午睡地点;起居室中间的柱子被作为装饰灯照亮天花;餐厅内高低不同的横梁露出吊顶,成为区分就餐区、娱乐区、和厨房的线索。
△ 起居室“午睡飘窗” ©朱雨蒙
△ 起居室的“冗余柱” ©朱雨蒙
△ 餐厅的“冗余柱” ©朱雨蒙
卫生间和玄关隔墙被轻轻“搁放”在地面上,与楼梯一起形成起居空间的视觉焦点;三层的柱子则成为一个全身更衣镜……
这些冗余的更大价值在于它们都在一个开放的场域内划分空间,以一种非强制性性的方式区别了场所。这种分割空间的动作是由人的身体与这些实体构筑物互动时激发的。它们是每一个空间内最具有决定性意义的“家具”。
△ 卫生间与玄关隔墙 ©朱雨蒙
△ 三层的“冗余柱” ©朱雨蒙
△ 开放式衣帽间 ©朱雨蒙
这是一个没有“故事”的设计。我们相信建筑所做的退却,是生活迈出第一步的催化剂。激进而离奇的故事会被绵延的日常所消磨。随着父母的入住,建筑开始了新的生命周期。这一次父母自己成为了设计的主角,让改变持续发生着。从旧的家里搬来的一切慢慢地充实起空间:旧沙发、麻将桌、工艺品、字画、照片、餐具、书籍
△ 餐厅与后院 ©朱雨蒙
来访的客人常被提前请到一楼的餐厅,一边玩棋牌一边与准备饭菜的母亲拉家常。起居室中央的大长桌是父母爱好的堆场,随时都放满了杂志、茶具、零食。父亲也开始构想在天井里为孙子放上一个充气泳池、或是在家庭聚会时在后院摆上一桌火锅。
父母的生活经验没有成为设计的约束。相反,它帮助我们着眼于真正重要的瞬间,而不是产品与概念。
△ 夜间的天井 ©朱雨蒙 设计图纸 ▽
△ 改造后一层平面 ©也似建筑
△ 改造后二层平面 ©也似建筑
△ 改造后三层平面 ©也似建筑
△ 后院墙身剖细图 ©也似建筑
△ 天井墙身剖细图 ©也似建筑
△ 天井幕墙节点与入户门把手 ©也似建筑
完整项目信息
项目名称:父母宅 PARENTS HOUSE
项目类型:改造 室内
项目地点:重庆
建成状态:建成
设计时间:2020年6月
建设时间:2023年2月
用地面积:58平方米
建筑面积:50平方米
设计单位:也似建筑设计(北京)有限公司
主创建筑师:罗韧、赵耀
设计团队:罗韧、赵耀、王盈力、温一帆
施工:仟绘饰家
材料:SKK、天井幕墙(日朗)、固定家具(思动)
摄影师:朱雨蒙
视觉 / 陈汝婷
校对:宋诗雨
也似建筑设计(北京)有限公司授权发布。欢迎转发,禁止以有方编
客服
消息
收藏
下载
最近

















































