查看完整案例

收藏

下载
南丁格尔之冠
The Nightingale’s Cap
鹤冈市立荘内护理专门学校坐落于历史悠久的山形县鹤冈市。设计以“南丁格尔的护士帽”为视觉灵感,通过独特的白色遮阳板装置,将护理职业的荣誉感与建筑功能完美结合。建筑内部通过通高中庭与杉木格栅楼梯构建出连续的学习场景,并在严苛的限高条件下,通过结构与设备的一体化表达,塑造出一座充满赤诚之心与人文关怀的教育地标。
Located in historic Tsuruoka, Yamagata Prefecture, the Tsuruoka City Shonai Nursing School takes Florence Nightingale’s nurse’s cap as its visual inspiration. The design integrates professional pride with architectural function through distinctive white solar shades. The interior features a full-height atrium and a cedar-lattice staircase, creating a continuous “learning landscape.” Despite strict height limits, the building realizes an honest and caring educational landmark through the integrated expression of structure and mechanical systems.
▼东南外观-穿孔折叠板面纱的灵感来自南丁格尔的护士帽,Southeast Exterior – Perforated folded plate veil inspired by Nightingale’s nurse cap©Kouji Horiuchi
地域文脉与象征意义
Context and Symbolism
鹤冈市位于山形县荘内地区,是一座承载着荘内藩历史底蕴的城市。新校舍的设计植根于当地文化,致力于培养支撑地区医疗的专业人才。建筑外立面采用以南丁格尔护士帽为灵感的白色遮阳装置,这既是调节热环境的性能构件,亦是向社区传递医疗使命的象征。
Located in the Shonai region of Yamagata Prefecture, Tsuruoka is a city where the heritage of the Shonai Domain remains deeply woven into the cultural fabric. The new campus was conceived to cultivate professionals who will sustain regional healthcare. The building features distinctive white shades inspired by Florence Nightingale’s nurse’s cap—serving as both functional solar control devices and symbolic gestures to the community.
▼东南外立面,Southeast Exterior©Kouji Horiuchi
▼东立面,East Exterior©Kouji Horiuchi
▼面纱投下的阴影,Shadow cast by the veil©Kouji Horiuchi
连续的学习场景
Interconnected Learning Landscape
内部空间中央是一个贯穿全楼的竖井中庭,能够积极引入自然光并增强了空间内的“存在感”。由杉木格栅环绕的楼梯间将各层无缝衔接,使教室、实验室与图书馆不再是孤立的盒状空间,呈现出一面连续的教学景观。
The interior is defined by a full-height atrium that allows natural light and a sense of shared “presence” to permeate the building. A staircase encased in a delicate cedar wood lattice connects the floors, ensuring that classrooms, laboratories, and the library emerge as a continuous landscape of learning.
▼三层不同波浪的百叶,Three Layers of Differently Waved Louvers©Kouji Horiuchi
▼从2楼中心大厅俯瞰多功能空间,View of the Multipurpose Space from the 2nd Floor Center Hall©Kouji Horiuchi
礼堂作为举办戴帽仪式等的神圣场所,通过视线设计与相邻的医院相连,在心理上拉近了学术与临床前线的距离。
The auditorium, significant for ceremonies like the Capping Ceremony, incorporates views of the adjacent hospital, bridging the gap between academic study and the clinical front lines.
▼礼堂,Auditorium©Kouji Horiuchi
▼图书馆,Library©Kouji Horiuchi
▼社区和家庭护理实习室,Community & Home Care Nursing Practice Room©Kouji Horiuchi
建筑逻辑的表达与技术挑战
Logic and Technical Ingenuity
作为一级高度限制及洪涝风险地区,项目采用了空心楼板与扁平梁结构压缩层高,并通过外露机械系统保留了室内净高。这种将结构与设备逻辑直接转化为空间美学的做法,反映了护理教育“真挚且表里如一”的本质。环绕建筑的绿地与步行路径,使其成为尊重历史街区的开放地标。
Navigating strict height limits and flood risks, the project utilized void slabs and flat beams to minimize floor depth, while leaving mechanical systems exposed to preserve ceiling heights. This approach translates the logic of structure and systems into a spatial aesthetic, reflecting the essence of nursing: sincerity and consistent care. With green perimeters and pedestrian paths, the facility stands as a new landmark that honors the city’s historic streetscape.
▼教室,Classroom©Kouji Horiuchi
▼研讨室,Seminar Room©Kouji Horiuchi
▼基础护理实习室,Basic Nursing Practice Room©Kouji Horiuchi
▼建筑立面,Building facade©Kouji Horiuchi
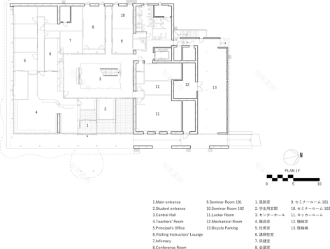
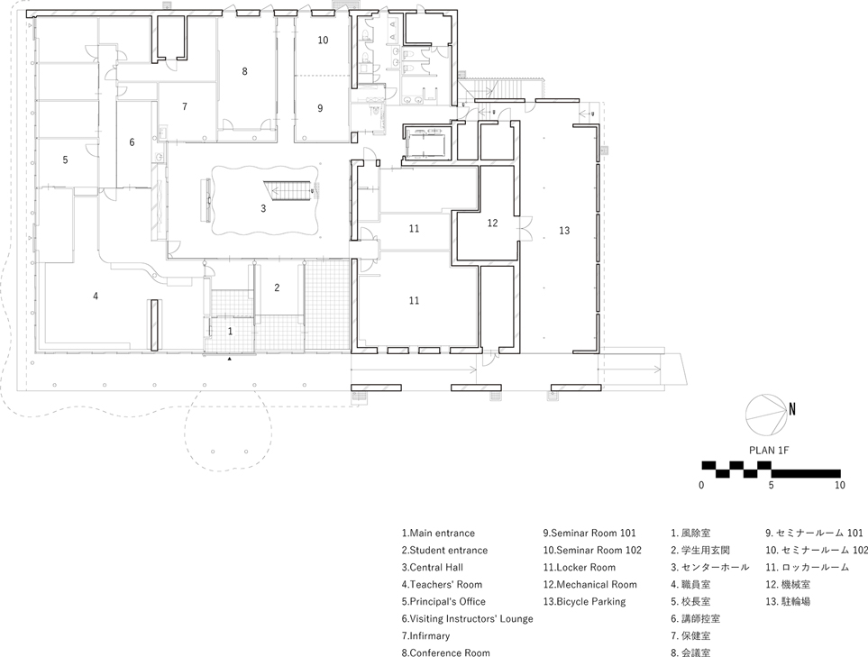
▼一层平面图,First level floor plan ©MIKAMI Architects
▼二层平面图,Secondlevel floor plan ©MIKAMI Architects
▼三层平面图,Thirdlevel floor plan ©MIKAMI Architects
▼立面图,Elevation ©MIKAMI Architects
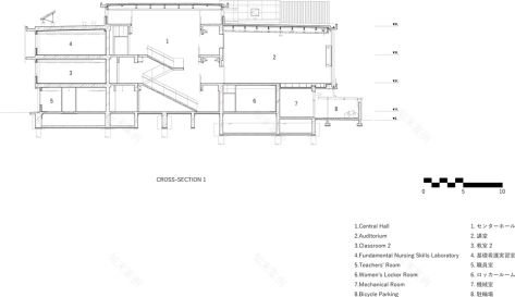
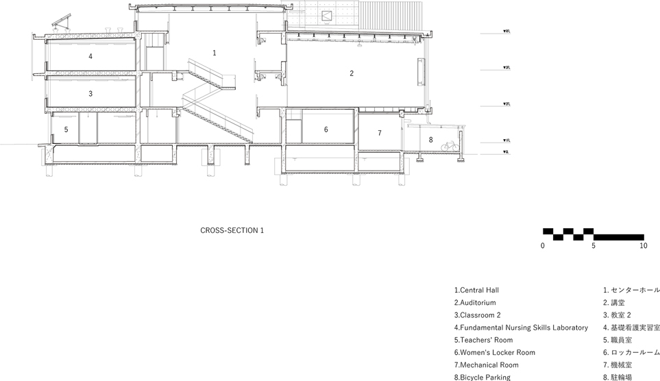
▼剖面图,Section ©MIKAMI Architects
项目名称: 鹤冈市立荘内护理专门学校
项目类型: 专修学校(职业教育机构)
设计方: 株式会社 三上建筑事务所 kin@mikami-arc.co.jp
设计年份: 2022年6月-2023年3月
完成年份: 2025年3月
主创建筑师: 益子 一彦
设计团队:
建築:三上建筑事务所–冨田武俊、高麗夏実、齋藤勝弥、楠川充敏 石川设计事务所–石川裕司、石川友裕
结构:多田修二结构设计事务所–多田修二、川又祐介、遠藤啓志 三上建筑事务所–倉持勝己
项目地址: 日本山形县鹤冈市
建筑面积: 1,104.25㎡
总建筑面积: 2,679.69㎡
结构规模: 钢筋混凝土结构部分钢结构/3层建筑
摄影师: 堀内広治
合作方: 明野设备研究所(机械设备),鶴岡建設・マルゴ・佐藤組JV(施工)
客户: 鹤冈市
材料: 钢筋混凝土、钢、杉木、白色铝板、玻璃
Project Name: Tsuruoka City Shonai Nursing School
Project type: Vocational School
Design Firm: MIKAMI Architects. kin@mikami-arc.co.jp
Design year: 2022.6-2023.3
Completion Year: 2025.3
Leader designer & Team: Kazuhiko Mashiko Architect & MIKAMI Architects
Design Team: Architecture: MIKAMI Architects — Taketoshi Tomita, Natsumi Koryo, Katsuya Saito, Mitsutoshi Kusunokawa,Ishikawa Design Office — Yuji Ishikawa, Tomohiro Ishikawa
Structure: Shuji Tada Structural Design Office — Shuji Tada, Yusuke Kawamata, Keishi Endo,MIKAMI Architects — Katsumi Kuramochi
Project Location: Tsuruoka-shi, Yamagata-ken, Japan
Building Area: 1,104.25 m²
Gross Built Area: 2,679.69 m²
Structural Scale: Reinforced Concrete Structure with Partial Steel Structure / 3-Story Building
Photo Credit: Kouji Horiuchi
Partner: Akeno Equipment Laboratory (Mechanical Equipment), Tsuruoka Construction・Marugo・Sato Group JV (Construction)
Clients: Tsuruoka City
Materials: Reinforced Concrete, Steel, Cedar wood, White Aluminum Panels, Glass
客服
消息
收藏
下载
最近

























