查看完整案例

收藏

下载
Vladimir de Mollerat du Jeu Le Penhuel et Associés建筑事务所在法国Tremblay-en-France完成了Simone Veil学校综合体。该项目体现了事务所在应对气候紧急背景下,对教育空间进行可持续转型的设计理念。
LE PENHUEL et ASSOCIÉS Le Penhuel et Associés建筑事务所在法国Tremblay-en-France完成了Simone Veil学校综合体。该项目体现了事务所在应对气候紧急背景下,对教育空间进行可持续转型的设计理念。该创新性项目拒绝标准化模式,并重新诠释了“学校之家(school house)”这一概念,于今年11月荣获2025年法国Équerre d’Argent建筑奖。
总体轴测图
© Le Penhuel - Associés
建筑正立面概览
© Vladimir de Mollerat du Jeu
建筑正立面近景 © Vladimir de Mollerat du Jeu
建筑侧立面概览 © Vladimir de Mollerat du Jeu
建筑侧立面近景 © Vladimir de Mollerat du Jeu
项目位于城市南侧一片安静的独立住宅区内。学校综合体包含八间教室、一间多功能厅、学校餐厅、行政办公区以及一套看护人员住宅。屋顶设置了一处运动场,并与社区协会共享使用。市政府的初衷是以扩展后的教学空间与公共区域,取代传统意义上仅在课余时间使用的“课外活动中心”。因此,学校内的所有空间如今均由小学与幼儿园儿童共同使用。项目目标是在保持建筑面积不变的前提下,营造一个更加宽敞、舒适且具有高度可变性的教学环境。
主入口 © Vladimir de Mollerat du Jeu
室内概览
© Vladimir de Mollerat du Jeu
俯瞰屋顶
© Vladimir de Mollerat du Jeu
屋顶运动场外观 © Vladimir de Mollerat du Jeu
屋顶运动场室内 © Vladimir de Mollerat du Jeu
共用空间的居住化
学校的门厅位于整个建筑的核心位置,沿南北向布置,贯通整个校园并延伸至操场。它不仅仅是一个公共交通空间,更被设计为一个真正的“生活空间”,能够容纳多种形式的学习与交流活动。三个组织方式各异的壁龛空间,拓展了使用的可能性,鼓励并支持多样化的学习方式。
门厅
© Vladimir de Mollerat du Jeu
“教室街道”自东向西贯穿整个建筑,形成另一条组织学校空间的主轴线。该轴线被室内活动空间分为两段,每一段均布置四间教室及其对应的庭院。每间教室入口处均设有前厅衣帽间,并配备游戏架,可作为教学或娱乐使用。
“教室街道” © Vladimir de Mollerat du Jeu
在两条空间主轴的交汇处,一个大型室内活动空间构成了学校真正的核心区域,大大拓展了空间的使用可能性。该多功能空间在早晚时段可用于迎接幼儿园儿童,同时补充多功能厅和体能活动室的使用。在强降雨天气下,它作为室外操场的延伸使用,同时也可承载展览与演出活动。
空间主轴交汇处 © Vladimir de Mollerat du Jeu
室内活动空间 © Vladimir de Moll erat du Je
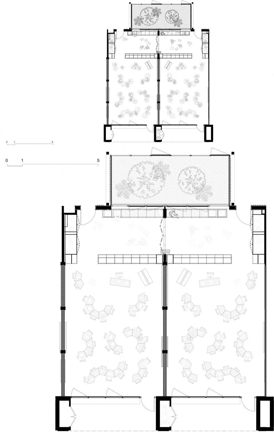
多功能教室
双朝向教室享有多重自然采光来源及良好的通风条件。其北侧面向庭院,南侧朝向操场,使同一教室内部呈现出不同的空间氛围。北侧在庭院采光的映照下,由两间教室共享的木质空间营造出安静、平和的学习区域;南侧则面向操场,体量更大,更具集体属性。每间教室还配备一处“私密”的游戏空间,面向“公共”操场。该遮蔽空间改善了室内外之间的流线关系,成为教室的自然延伸。位于南侧、由一排树木遮荫的操场由幼儿园与小学共同使用,形成一处真正的绿色场所,是儿童探索自然与进行户外活动的理想环境。屋顶设置了一处生物多样性空间,进一步完善了学校的室外活动体系。该区域包括种植蔬菜的花箱及大型野餐桌,有利于开展与自然相关的教学活动。运动场亦可在课间使用,鼓励学生参与体育活动。
教室轴测图 © Le Penhuel - Associés
多功能教室
© Vladimir de Mollerat du Jeu
操场 © Vladimir de Mollerat du Jeu
餐厅 © Vladimir de Mollerat du Jeu
共享休息室 © Vladimir de Mollerat du Jeu
尊重环境
作为一座学校建筑,其对环境的承诺理应清晰可见。这一原则贯穿于项目的材料选择与建筑运行方式之中。学校的承重石材立面取材自距离施工现场不足60公里的Bonneuil-en-Valois采石场。其厚度不仅保证了建筑良好的热惰性,也强化了体量雕塑感的表现。
连廊 © Vladimir de Mollerat du Jeu
石材立面与窗户细部
© Vladimir de Mollerat du Jeu
在教室之间,夯土砖被引入木结构体系之中,进一步提升了天然材料与生物基材料在建筑中的可见度。庭院在公共空间中起到点缀与节奏组织的作用,使项目内所有空间均享有良好的自然采光、新鲜空气与舒适湿度。庭院的布局使为儿童设计的所有空间以及公共区域均可实现自然通风,从而真正转化为可被“居住”的场所与学习空间。运动区域屋顶安装了光伏板,其发电量超过建筑自身的能耗需求。其余屋顶则进行绿化种植,不仅提升了建筑的热工性能与雨水滞留能力,也为周边居民提供了宜人的景观视野。
庭院 © Vladimir de Mollerat du Jeu
走廊转角处 © Vladimir de Mollerat du Jeu
阅读角
© Vladimir de Mollerat du Jeu
构造与装饰细部 © Vladimir de Mollerat du Jeu
正立面夜景 © Vladimir de Mollerat du Jeu
运动场夜景
© Vladimir de Mollerat du Jeu
项目图纸
首层平面图
© Le Penhuel - Associés
二层平面图 © Le Penhuel - Associés
教室空间放大平面 © Le Penhuel - Associés
剖面图 © Le Penhuel - Associés
体育馆北立面构造详图
1:30
© Le Penhuel - Associés
教室雨棚构造详图
1:20
© Le Penhuel - Associés
多功能厅构造详图
1:20
© Le Penhuel - Associés
Client: City of Tremblay-en-France
Architects: Le Penhuel - Associés (Mandataire), Nebbia (Landscape architect), Emenda (sustainability / Environmental Engineering Consultant – HQE), Batiserf (Structural Engineering Consultant), BMF (Cost Consultant), Ergo Zen (Ergonomist), Impédance (Acoustic Engineering Consultant), ATEC (Cuisiniste)
Programme: School complex (8 classrooms) with innovative teaching methods and a sports hall shared with the city
Location: Tremblay-en-France (93)
Surface de plancher: 2400 m2 et 2330 m2 d’espaces extérieurs
Budget: 10 M €
HQE: Matériaux géo- et bio-sourcés (Structure bois, briques de terre crue, pierre porteuse), RE2020, BEPOS, E4C1
Date de livraison: 2025
Équipe projet: Warren Lepolard, Ersi Hoxha, Philippe Souaid
客服
消息
收藏
下载
最近














































