查看完整案例

收藏

下载
物 外 空 间 设 计 出 品
2025年秋 拍摄于黄山(边诗琪)
远处的山峦 河床 风吟 小船
物在静默中流动 自然空旷的充盈 是不动声色的静
...
01 INFO
设计出品 | 物外空间设计 | WUWAI SPACE DESIGN
主案设计 | 边诗琪 饶梦雅
项目类别 | 320㎡
项目地点 | 蚌埠
设计时间 | 2025.9
文案编辑 | 饶梦雅
踏入家门,像是走进一个被光和自然温存的拥抱里。赤足轻触地面,微微的凉意与踏实感,是你与家最初的默契。墙面与天花板漫着柔柔的燕麦色,细腻的纹理仿佛呼吸般轻轻起伏,温柔地拥抱着每一寸进入这里的时光。
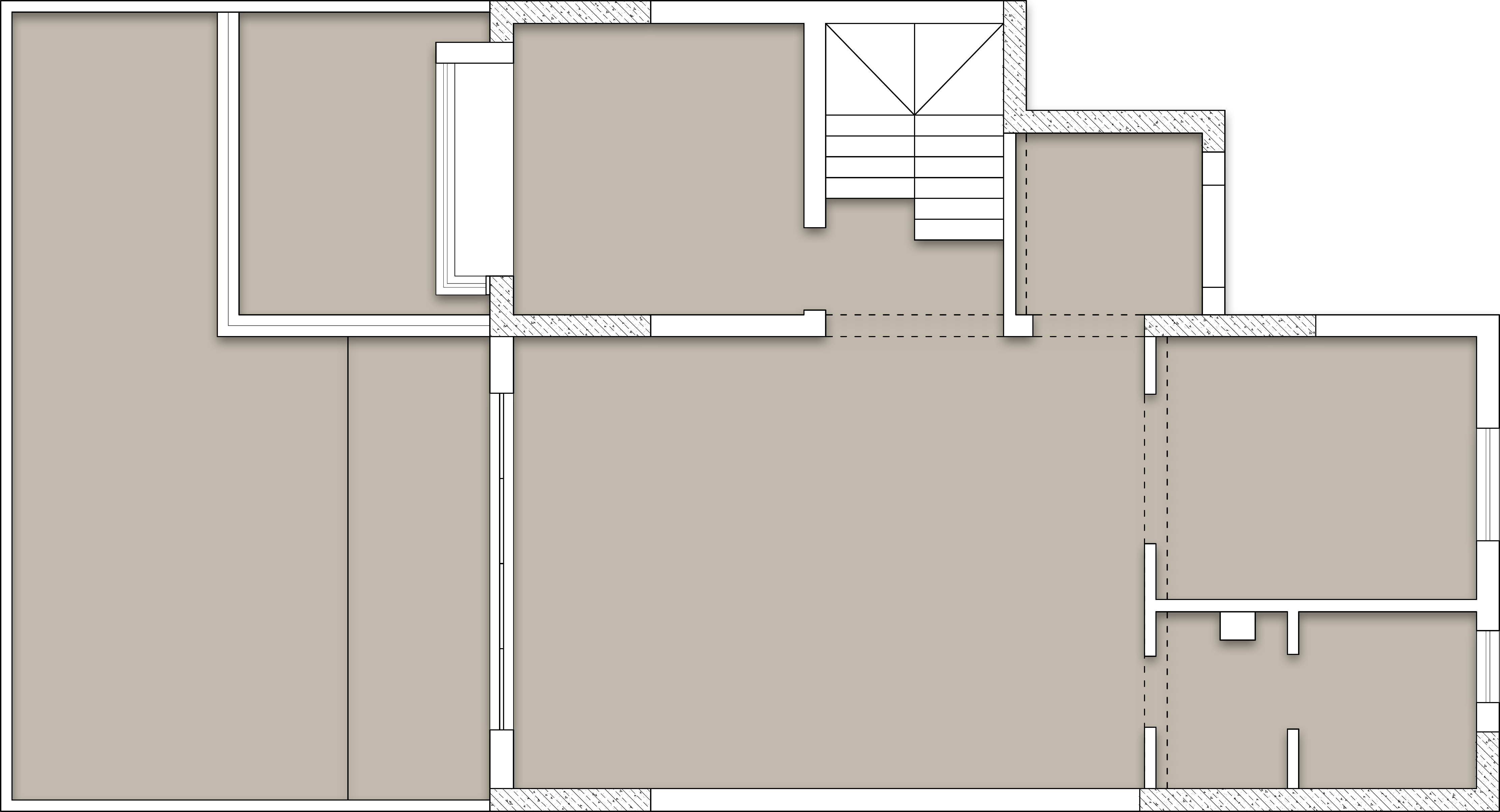
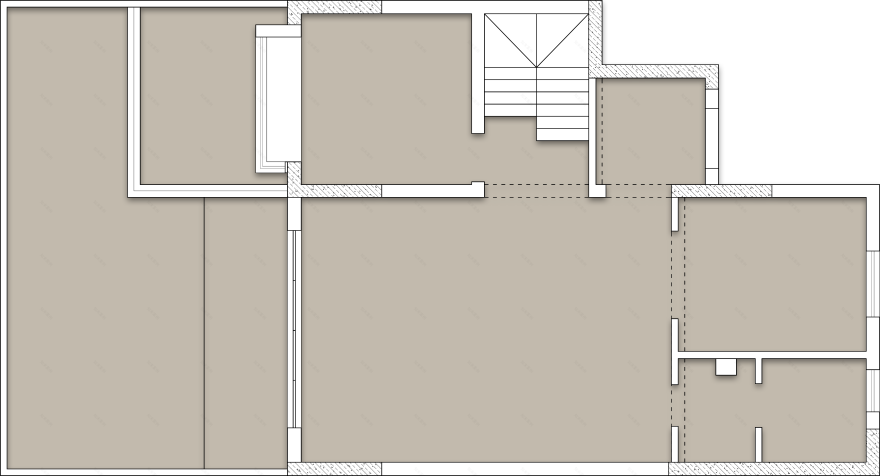
02 LAYOUT
原始户型 | ORIGINAL FLOOR PLAN
地下室
1F
2F
1F 平面方案 | LAYOUT
2F 平面方案 | LAYOUT
-1F 平面方案 | LAYOUT
-2F 平面方案 | LAYOUT
RENDERING
1F客厅 | LIVING ROOM
赤足漫步 | 粗犷而宁静
推开家门,便被家的能量温柔拥抱。
赤足漫步于天然莱姆石碎拼的地面,每一寸温润的触感都仿佛与大地轻轻对话。燕麦色的肌理涂料在墙顶静静延展,像初秋的原野般素朴而温暖,包容着每一刻的呼吸。
向左转身,开放的空间如画卷舒展。厨房、中岛餐桌与水吧区轻轻相连,没有坚硬的边界,只有流淌的光线与空气。在这里准备早餐、煮一杯咖啡,或是与家人并肩料理晚餐,都像是自然发生的日常诗篇。洄游式中岛不仅是一方台面,更是生活与对话的圆心,食物与言语在此交织成温热的能量场。
客厅里,橄榄绿色的沙发舒展地倚靠着,身旁整面的玻璃移门将室内与院落温柔连接。家具低缓而放松,为流动的光与风留出充裕余地。那座悬浮楼梯安静地向上延伸,连结起更私人的休憩之所;另一侧,顺着苍葭绿扶手楼梯向下转折,缓缓通往另一层“玩趣”空间。
-1F/-2F 起居室 | -1F/-2F THE LIVING ROOM
构筑沉默乌托邦 | 不必克制 把兴趣爱好统统填满
向下探索,家展开另一重沉稳而松弛的维度。
负一层是由整浇结构改造而来的夹层空间,从天井引入的自然光成为这里的灵魂。天井的上半部,悬着一张白色网床,犹如一片轻盈的云,是小憩的童趣之地。其下方则围合出一个安静的读书角落:一张宽大的单人沙发深陷其中,旁边立着一盏可移动落地灯,光线温和,适合沉浸于书页之间。这一层还设有一间开放式书房,供专注工作和学习。
最引人注目的,是沿着楼梯侧面贯通负一层与负二层的整面书架墙。它既是知识的围墙,也是空间的视觉脊柱,沉稳的木色与有序的陈列,带来图书馆般的静谧气质。负一层功能齐备:一整排顶天立地的储物柜,足以作为后期家里增加成员的衣物或杂物;相邻是瑜伽区也是多功能区,为日常舒展提供专属角落。
沿苍葭绿的铁艺圆弧扶手楼梯继续向下,便进入挑空开阔的负二层。这里作为家庭的娱乐核心,风格上更鲜明地致敬中古包豪斯,流露出复古的杂志感。移动电视支架赋予空间自由变化的可能,沙发与单椅的搭配松弛有度。
客厅右手边一扇鹅黄色的复古折叠门轻巧醒目。门后是一间集中收纳所有杂物的储藏室,明亮的色调消解了空间的隐蔽感,让实用与美观并存。
负二层入口处依墙定制了充足的鞋柜与储物柜,满足从车库归家的收纳需求。右手边,一面独特的“骑行装置墙”展示着屋主夫妇的骑行爱好,头盔、工具...
在这里,功能与情感交织,沉静与活力平衡。它不仅是休闲娱乐的场所,更是家人兴趣与记忆的收藏馆,让家的能量深沉而丰沛地向下生长。
2F卧室
| 2F BEDROOM
2F 卧室 | 2F BEDROOM
2F卫生间 | 2F BATHROOM
1F卧室 | 1F BEDROOM
静谧与能量的私密回响
缓缓步上二楼,空间便陷入柔和的静默里。这里是专属于家人的私密能量场域,延续着整个家的疗愈语言,却更添几分内省的温柔。
步入主卧,首先会经过一间步入式衣帽间。充足的收纳空间让衣物与物品各得其所,日常取用非常方便,始终保持整洁有序的状态。过道转角处特别为女主人设计了一处梳妆区,深色巴士门可以轻松开合,不用时能将台面物品完全隐藏。围合式镜面在打开时形成一个专注的小世界,晨间洗漱或晚间护肤时,这里是她从容整理自己的安静角落。
浴室采用干湿分离的布局,彼此独立,使用时互不打扰。地面延续了一楼的天然莱姆石碎拼,光脚踩上去能感受到熟悉的自然触感。靠窗的墙面铺着细腻的手工贝壳砖,在光线下泛起温润的光泽。窗边设有浴缸,可透过窗景望见庭院绿意。
睡眠区设计得简洁而放松。所有光源都做了隐藏处理,只有柔和的漫射光轻轻照亮空间。赤脚踩在实木地板和编织地毯上,触感自然又舒服。靠近落地窗的位置放了一张书桌,白天有充足的自然光,工作或阅读时也能望见窗外的绿意。阳台一角被巧妙地改造成了安静的读书角。一个人靠着软垫和靠枕,正好可以窝进去读本书、发会儿呆。风从窗外轻轻掠过,树影在墙面上缓缓移动,是属于自我的时间在此静静流淌。
在这里,每个细节都在轻声提醒:你可以安心放下所有疲惫,让身心慢慢恢复柔软与平和。
我们将空间重组,愿在此间的你,无距亦无惧,无论空间还是内心,都能寻求到一份平静。
物外主理人:边诗琪 饶梦雅
04 ABOUT US
我们是物外设计。
我们研究“物”-即人物、事物、空间之间的联系,以及“物”以外-时间、情感、文脉对于设计的影响。
我们不会为哗众取宠而标新立异,却敢于为真正解决问题打破一切常规。
我们探寻最深层次最本源的诉求。
我们关注设计,我们不止设计。
物 外 空 间 设 计 | WUWAI SPACE DESIGN STUDIO
客服
消息
收藏
下载
最近


















































