查看完整案例

收藏

下载
红砖叠砌的缝隙里 灵感正悄然酝酿
传统工艺在比例 结构与材质的锤炼中沉淀
秩序与形态于张力之间生出独特的语言
上镇精酿 —— 让景德镇陶溪川的在地文化 在流动与延展里扎根
Origin 溯源
//
以景德镇陶溪川的在地基因为起点,红砖在手工错缝叠砌中构建,实现“结构即表皮”的统一。
双拱连续体取意龙窑的长弧,在尺度与节奏中,回应历史与当下的并置。
拱壳沿建筑横向展开并向下延伸,形成更深层的空间序列。
单柱支撑的环形平台悬浮其间,轻盈而克制,维持整体的通透节奏。
螺旋形态串联上下层,以工业线条消解建筑厚重,成为 功能 + 装置 的双重载体。
楼梯与栏杆以复合构件的方式串联动线。红调暗合陶土原生色彩,光线随行,视线得以延续。
红砖的厚重 金属的冷静 木饰面的温润 在空间中各自成立 又彼此呼应 形成连续而统一的感知体验
Interior Order
内序
//
空间由外而内展开,外部红砖拱体节奏转化为空间体验秩序。历史并未被复刻,而是在当代语境中持续生长。
吧台区采用轻量悬挂体系,金属链条吊装吧台与顶部面板,地面得以释放,空间更显通透。
木饰面包裹的柱体承载灯具与空间重量
家具在粗粝与松弛之间取得平衡
地面格纹砖延续外部尺度
材质 构件与使用在此自然汇合
吊灯以双层结构呈现,外层圆形取意制瓷轮盘,内层多杆光源映照拉坯杆结构。光、结构与符号在同一体系中完成整合,克制而聚焦。
Brewing
沉酿
//
长条形模块 化区域顺应人群聚集的节奏,木饰面与玻璃保持空间的透明关系,隐藏式结构让场域保持完整与开阔,材质以暖木为基底,金属与软包点到为止,氛围在克制中逐渐沉淀。
金属板与木饰面以阵列方式铺陈,为空间增添韵律层次。
光线经由漫射,柔和而稳定。
拱型灯架与外立面相呼应,多杆吊灯以隐性的方式嵌入空间,不喧哗,却持续提醒着工艺的存在。
夜幕降临 空间回应陶溪川的文艺气息 窑边停歇的日常场景 被转译为 砖拱下举杯的当代片段 在地生活方式与文化在空间里延续
光线轻柔流淌,映照着欢愉的精酿氛围。
空间不刻意表达,却始终在场。
每一处体验都恰到好处,在砖与木之间安静停驻。
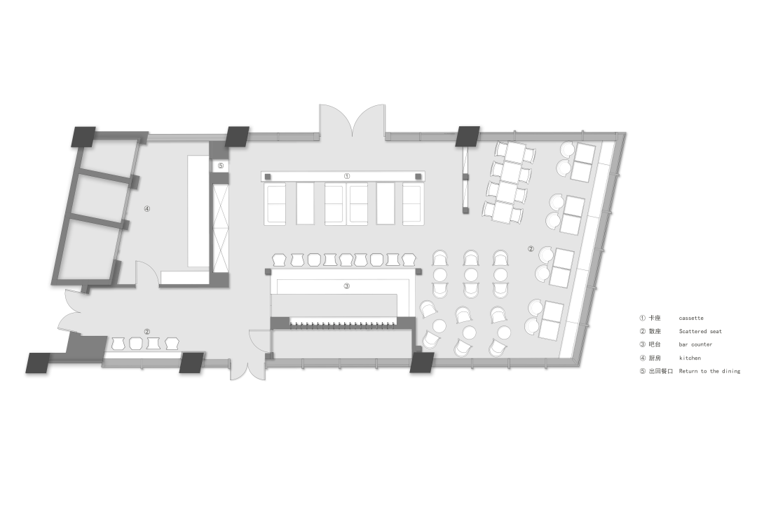
▼ THE FIRST FLOOR PLAN
▼ THE FIRST FLOOR BELOW GROUND PLAN
Translation 转译
//
钢筋水泥中呈现建构本真 金属 清水水泥与玻璃多重交映 灰空间 延展城市尺度 建筑与场域的自然衔接 让精酿体验回归本质
深色木梁以模数化排布,构筑裸露秩序。
摒弃装饰性包覆,形成“结构即视觉”的表达。
UPTOWN 标识与照明构成光环境,塑造视觉与照明的双重焦点。
It does not hurry to narrate, but unfolds with quiet patience.
Like a vessel in hand, familiar through repeated use and touch.
Between the rhythm of lifted glasses and gentle pauses, the city’s essence seeps softly into the present moment.
▼ THE FIRST FLOOR PLAN
项目名称 | 上镇精酿
项目位置 | 景德镇 江西
空间面积 | 1382㎡
设计主创 | E.ko 梁屹
设计团队 | Tao Tao 朱峻甫 | Laurel 罗惠兰
文字撰写 | CORBYN
项目摄影 | Eason·十聿空间摄影
艺术设计 | Eliza 张思佳
完工时间 | November 2025
E27STUDIO,由主理人梁屹E.Ko于2017年创立,聚集一群充满研发创新精神的新设计师。专注于全球空间设计、视觉输出和装置艺术的研发与落地。
我们的核心使命是追求空间审美的卓越呈现,不断探索新设计,以独特方式表达对艺术的多层次理解,发掘视觉传达的无限可能性。
如今,E27STUDIO在成都和纽约设有两处事务所,为我们提供更广阔的舞台和全球化视野。我们将继续秉持创新精神,致力于更多创意呈现。
客服
消息
收藏
下载
最近





































