查看完整案例

收藏

下载

翻译
Architects:Nobuyasu Hattori + Shota Koga
Area:134m²
Year:2024
Photographs:Benjamin Hosking
structural Engineer:SHUNYA TAKAHASHI TECTONIC STUDIO
contractors:Araki Housing
Lighting Consutlant:Shota Koga
Category:Houses
Architect / Design Collaboration:Nobuyasu Hattori, Shota Koga
Project Team:Nobuyasu Hattori, Shota Koga
Metal Fabrication:Shota Koga
Custom Steel Handrails:Shota Koga
City:Toyohashi
Country:Japan
Text description provided by the architects. 1. Context – The Stable and the Orange Barn is a residential project located on a narrow flag-shaped plot in Toyohashi, Japan, surrounded by factories, nursing facilities, and suburban houses. Rather than asserting a strong formal gesture, the design began by closely observing the everyday rhythms of a young family and their relationship with the surrounding environment.
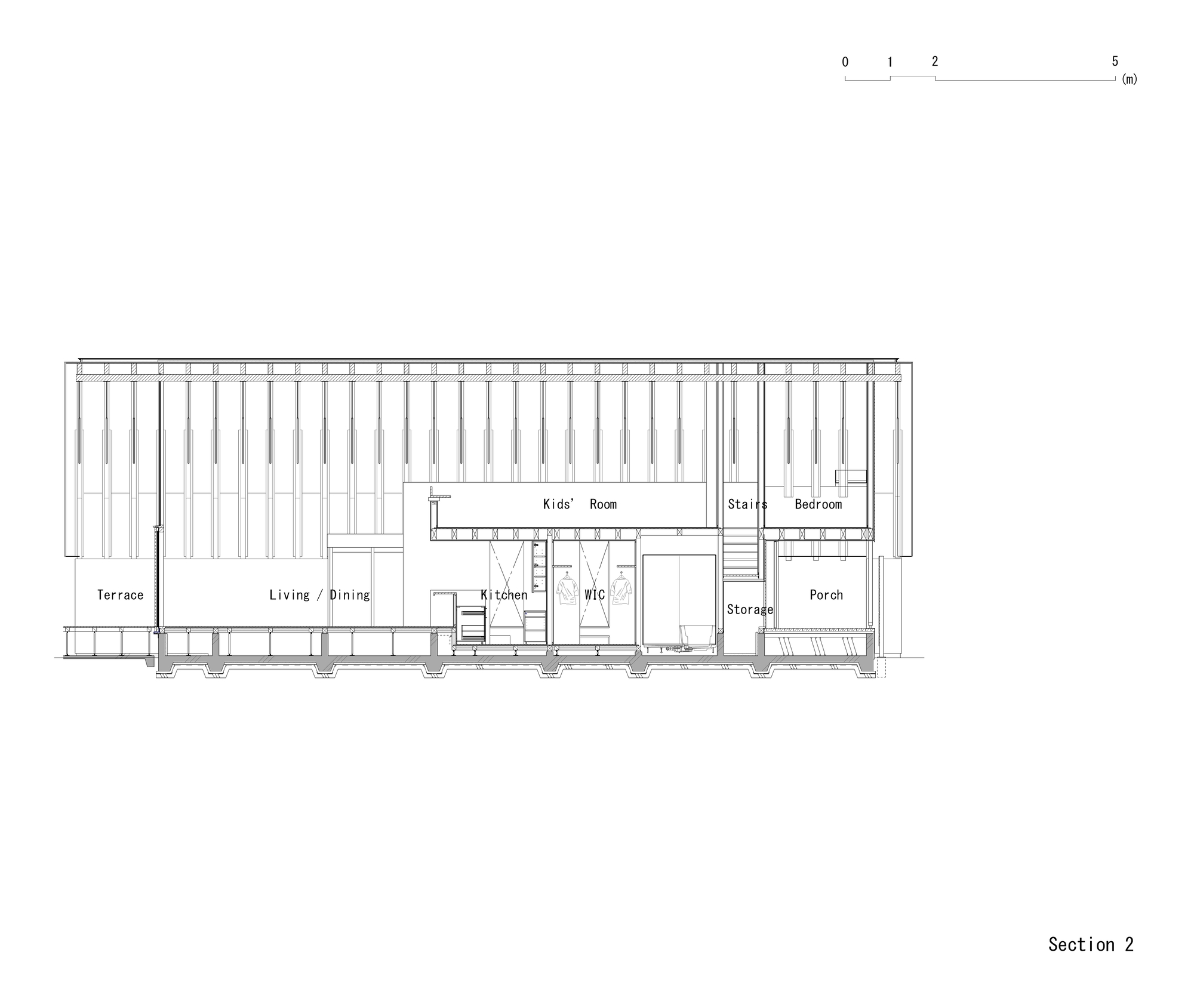
2. Barn as an Undetermined Domestic Space – The project explores a contemporary reinterpretation of a barn-like domestic space. The barn was introduced as an image source, proposing a generous and undetermined domestic environment rather than a fixed functional layout. Instead of subdividing the house into many rooms, essential functions are consolidated into a compact core volume conceived as a single box placed beneath a large pitched roof. Around this core, living, dining, circulation, and children's spaces remain loosely defined, forming a continuous spatial field that residents can reinterpret and adapt over time.
3. Structural System – The structural system consists of repetitive timber frames at a 606 mm pitch combined with curved steel tie rods that counteract roof thrust. This hybrid timber–steel system allowed the use of standard timber members while achieving a long-span interior space with a ceiling height of nearly six meters at the ridge. Roof loads are distributed from the ridge beam through curved steel pipes to the rising beams, expressing structural logic while generating spatial openness.
4. Color Continuity and Spatial Linking – A small barn-like annex was placed at the corner of the site as a semi-outdoor space for flexible use, such as a private salon, workshop, or neighborhood gathering space. Both the main house and the annex are finished in warm reddish tones, visually linking the two volumes and creating a sense of enclosure between them. Rather than separating the buildings, the continuity of color ties the main house and the annex into a single domestic landscape.
5. Structural Contrast and Ambiguity – In contrast, the annex is intentionally constructed with a simple frame and readily available materials such as vinyl curtains and ropes. While color links the two volumes, the structural systems are deliberately differentiated. This contrast introduces an ambiguous condition between permanence and provisionality, allowing the architecture to remain neither overly rustic nor overly refined.
6. Layered Finishes – The reddish finish is layered over a Bengala undercoat, while the silver finish is applied over a smoked base layer. By placing different layers beneath the surface, the finishes are intended to appear with subtle depth and presence rather than as flat surfaces.
7. Collaboration and the Perspective of Making – This house is a collaborative design by Nobuyasu Hattori and Shota Koga. Beyond the conventional boundary of architectural design, the project was developed through sharing a tactile sense of making and an understanding of material behavior. Drawing on Koga's background in metal fabrication, handrails, lighting fixtures, furniture, and even the tent fabric cladding of the annex were designed and coordinated through direct involvement in drawing, fabrication instructions, and procurement. By experimenting with heterogeneous materials such as yacht ropes, the project explores the relationship between structure and ornament, material and handwork, through the act of making.
8. Ambiguous Architectural Elements – Rather than pursuing architecture that can be described through clear statements such as "beautiful light" or "strong form," the project seeks elements that are ambiguous yet functional—handrails that are both objects and infrastructure, and architectural membranes that generate intermediate environmental conditions, neither fully enclosed walls nor completely open exterior spaces. Within this ambiguity, the project finds richness and openness in everyday life.
9. Adjectival Architecture and Time – The project considers architecture not as a set of nouns and verbs that prescribe use, but as adjectives that quietly connect objects and bodies, functions and sensations. By accumulating such ambiguous yet precise acts of making, the house becomes a framework for the slow construction of family time.
10. Time & Open Framework – By reducing programmatic rigidity and emphasizing spatial generosity under a single roof, the project proposes the barn as a domestic framework that can evolve with life. Through collaboration, Hattori and Koga continue to explore how architecture can cultivate richness in everyday living.
Project gallery
客服
消息
收藏
下载
最近










































