查看完整案例

收藏

下载
不同于眼镜零售空间惯常采用的语法——明亮灯光、白色货架与高度重复的陈列方式——这一设计选择从根本上拆解并摒弃了这种语言。这里没有成墙铺陈的产品,也没有令人眼花缭乱的选择压力。整个项目围绕三个核心概念展开:存在、间隔与注意力。
每一副太阳镜都被视作一个独立而完整的瞬间。它们分别陈列在为该空间量身定制的3D 打印支架上——这些支架由建筑师为项目反复打样、研发并制作——或悬浮于空中,或安装于墙面之上,每一次只呈现一件物品。这样的展示方式引导专注,让每一副镜架都能以自身的节奏被观看、被感知。没有堆叠,没有密集陈列,始终是一件一件地呈现。空间的节奏并不催促前行,而是放慢脚步,邀请人们停留。
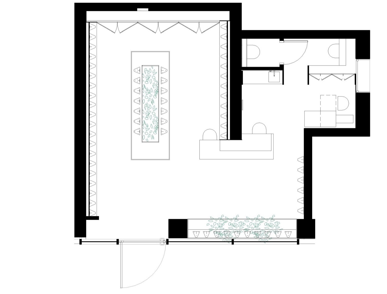
空间的核心是一座包覆水磨石的种植池。它作为一种空间过滤器存在——切分视线、柔化动线,并在同一时间内减少可被看到的物件数量。种植池不仅锚定了平面布局,也建立起一种行为逻辑:人们围绕它行走。它并非用来分隔空间,而是用来校准空间——引入节奏、制造间隔,并放慢访客的观看速度。
从种植池的两侧,眼镜仿佛向外“生长”——悬挂在几乎不可感知的纤细钢索之上。每一副镜架都悬浮在属于自己的空气框架中,与墙面、货架乃至环境噪音保持距离。种植池与悬浮支架共同构成一个完整的空间系统——一者有机,一者人为制造——协同运作,编排着注意力在空间中的流动方式。
如同YET Architecture的许多项目一样,植物并非空间完成后的附加元素,而是设计的起点。它们塑造使用方式,也组织空间体验。在这里,植物还承担着对比的角色:在精密的网格体系之间,嵌入一种鲜活的存在感,以垂直的柔软性打破展示逻辑中惯常的水平秩序。
店铺被划分为两个彼此连通的空间,由一条连续的柜台加以区隔。一侧空间轻柔、明亮,以水磨石与不锈钢定义气质;另一侧则更为紧密厚重,橙色支架与木饰面形成包裹感。这种转换安静而克制,却经过精确控制。两种状态共同构成空间节奏——在松弛与压缩之间形成对照。
材料的选择并非出于装饰,而是基于它们对光线与时间的回应能力。水磨石以克制的质感吸收光线,不锈钢则在不断变化的表面上反射并漫射光影。一面镜墙在视觉上将空间加倍,同时引入一种张力——既显露,又遮蔽。眼镜支架本身采用半透明 PETG 材料,由建筑师在内部制作完成,其微妙的透光性赋予镜架一种近乎悬浮的轻盈感。
橱窗并未被视作传统意义上的展示界面,而是被当作室内空间逻辑的延伸。第二座由不锈钢框定的种植池锚定了街道视角,其上方,一系列太阳镜悬浮其间,同样由纤细、几乎隐形的钢索固定。即便卷帘关闭,这一装置依然部分可见,延续着室内的视觉节奏。设计的重要目标之一,是从任何角度都保持空间的完整性——即便在无人状态下,也能通过植物的存在与悬浮镜架的静止,传达空间的氛围。
SaM&Jo并不是一家追求产品密度或零售效率的商店。它更像是一处建筑意义上的“静止空间”——设计退居幕后,注意力被重新聚焦;在这里,每一副镜架都成为一个事件,每一位访客的脚步,也不自觉地慢了下来
▼平面图
客服
消息
收藏
下载
最近




















