查看完整案例

收藏

下载
该项目对位于圣保罗 Cerqueira César 区的一套 95 平方米复式公寓进行了全面改造。公寓交付时为毛坯状态,上层尚未建造,但原始结构提供了难得的 双层挑高空间,为设计带来了充分的自由度——既可探索“空”的尺度,也可细致推敲楼层之间、楼梯与走廊在垂直空间中的关系。
This project involves the complete renovation of a 95-square-metre duplex apartment located in a new residential building in the Cerqueira César neighbourhood of São Paulo. Delivered by the developer as a shell—with no upper floor constructed—the apartment originally featured a generous double-height volume, offering unusual freedom to explore emptiness, vertical relationships, and the dialogue between floors, staircases, and circulation.
Vapor Arquitetura
Apto. Edifício Autem
Autem 大楼公寓
//
Vapor Arquitetura – Apto. Edifício Autem ©摄影: Arthur Duarte
Vapor Arquitetura – Apto. Edifício Autem ©摄影: Arthur Duarte
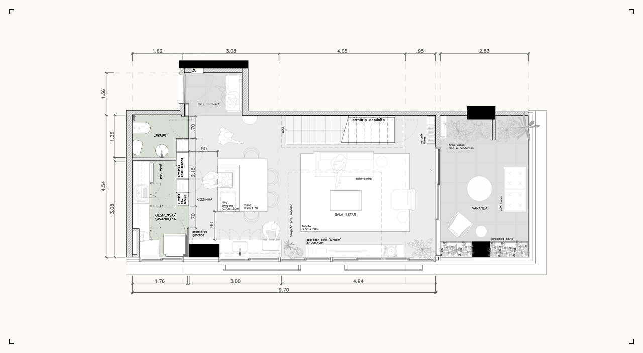
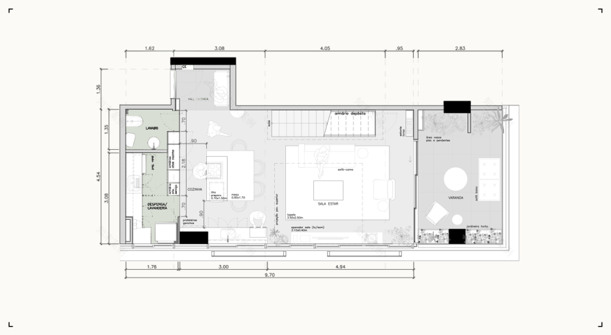
公寓为一对年轻、无孩的夫妻而设,目标是在简约的框架下营造一个 温暖而富有个性的居所。空间布局包括:与客厅及阳台相连的开放式厨房、一间带独立卫浴的卧室、宽敞的衣帽间,以及一处书房,既满足日常生活,也兼顾工作与思考的需要。
Designed for a young couple without children, the apartment seeks a balance between minimalism and warmth, creating a space that is both restrained and expressive. The programme includes an open-plan kitchen connected to the living room and balcony, a bedroom with an en-suite bathroom, a generous walk-in wardrobe, and a home office—accommodating everyday life while allowing space for work and reflection.
Vapor Arquitetura – Apto. Edifício Autem ©摄影: Arthur Duarte
Vapor Arquitetura – Apto. Edifício Autem ©摄影: Arthur Duarte
Vapor Arquitetura – Apto. Edifício Autem ©摄影: Arthur Duarte
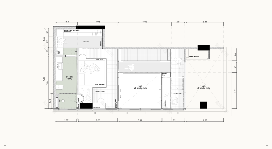
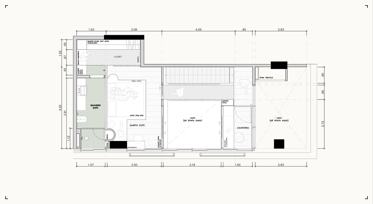
上层空间中,卧室与书房分别布置在两端,通过一条 悬空的走廊相连。走廊跨越双层挑高,向下俯瞰客厅,使垂直空间得以延展。楼梯与走廊在此不仅是交通元素,更成为塑造空间的关键构件——它们界定“空”的边界,同时赋予其尺度、方向与性格。
On the upper level, the bedroom and office are positioned at opposite ends of the plan and connected by a suspended walkway that overlooks the double-height living space below. Here, the staircase and walkway function not merely as circulation elements but as spatial devices—defining the void while simultaneously expanding it, giving it scale, direction, and character.
Vapor Arquitetura – Apto. Edifício Autem ©摄影: Arthur Duarte
Vapor Arquitetura – Apto. Edifício Autem ©摄影: Arthur Duarte
Vapor Arquitetura – Apto. Edifício Autem ©摄影: Arthur Duarte
Vapor Arquitetura – Apto. Edifício Autem ©摄影: Arthur Duarte
Vapor Arquitetura – Apto. Edifício Autem ©摄影: Arthur Duarte
Vapor Arquitetura – Apto. Edifício Autem ©摄影: Arthur Duarte
Vapor Arquitetura – Apto. Edifício Autem ©摄影: Arthur Duarte
Vapor Arquitetura – Apto. Edifício Autem ©摄影: Arthur Duarte
Vapor Arquitetura – Apto. Edifício Autem ©摄影: Arthur Duarte
Vapor Arquitetura – Apto. Edifício Autem ©摄影: Arthur Duarte
Vapor Arquitetura – Apto. Edifício Autem ©摄影: Arthur Duarte
1F PLAN
2F PLAN
在材料选择上,客厅铺设了带铝合金结构的实木地板,而卧室与书房则采用木材的自然状态,以形成细微的层次变化。空间中还运用了铝合金窗框、新增的铁结构构件、NPK 石材台面、tauari 木材定制木作,以及在特定平面与空间中引入的艺术纹理。浴室与洗衣房则以水泥砖与环氧涂料完成,强调功能性的同时保持整体材质语言的统一。
Material choices reinforce this spatial clarity. The living area features engineered timber flooring with aluminium detailing, while the bedroom and office retain wood in its more natural expression. Throughout the apartment, aluminium window frames, newly introduced steel structural elements, NPK stone countertops, custom tauari wood joinery, and selected artistic textures are employed with restraint. In the bathrooms and laundry areas, cement tiles and epoxy finishes provide a robust, utilitarian counterpoint to the warmth of the living spaces.
INFO
项目名称:
Apto. Edifício Autem
项目类型:私人住宅
项目坐标:巴西
项目
完成
2023年
室内设计:
Vapor Arquitetura
目摄影:
Arthur Duarte
客服
消息
收藏
下载
最近






















