查看完整案例

收藏

下载
©金伟琦
Annn和佺,是我们多年的好友,19年与他们设计并建造了顺义佺宅,至今一家子仍然住在那个舒服慵懒阳光充足的合院家宅中。随着他们陶艺工作的展开,家宅中的工作空间慢慢显得局促。23年在疫情的某一天,Annn和佺,邀请我去京郊顺义一处园区看房,这是工厂片区改造而成的艺术园区,大体上为几座条状的建筑围合而成的。那时候看的一处待出租的空间,工厂的缓坡屋面印象深刻,但整个内部空间通高而幽长。因为空间较小,当时并未承租下来。
Xiao An and Quan are our long-time friends. In 2019, we designed and built the Quan House in Shunyi for them. To this day, the family still lives in that comfortable, laid-back and sunny courtyard house. As their pottery work expanded, the workspace in the house gradually became cramped. In 2023, on a day during the pandemic, Xiao An and Quan invited me to visit a property in a park in Shunyi, on the outskirts of Beijing. This was an art park transformed from a factory area, roughly composed of several long, strip-like buildings. At that time, we visited a space for rent. The factory’s sloping roof was quite memorable, but the entire interior was tall and long. Due to the small size of the space, we didn’t rent it at that time.
▼工作间,Workshop ©金伟琦
直到2025年春,我们再次互相联系,说同一场地的旁边一处更宽敞的空间终于空了出来,希望我们能一起重新思考它的可能性。这处房间南北和西向三面采光,光线充足。上空为大而长的缓坡屋顶。原有屋面主体结构由工字钢梁屋架支撑,彼此之间有次梁(檩条)方钢连接。覆盖屋面的构造材料为带保温材料复合的压型钢板。为了防止侧向不稳定的受力,主钢梁之间用钢杆斜向支撑连接。不管怎么说,站在室内中央,12*24米的长宽,屋脊最高处4米高,屋檐最低处3米高的整体空间中,还是感受到了巨大的缓坡屋顶带来的一种奇异的覆盖感。
▼现状,Current situation ©Atelier kai
It wasn’t until the spring of 2025 that they got in touch with me again, saying that the larger space next to the same site had finally become available and hoped that we could rethink its possibilities together. This room has three sides of natural light from the south, north and west, with abundant sunlight. The roof above is a large and long sloping roof. The main structure of the original roof is supported by I-beam trusses, with secondary beams (purlins) of square steel connecting them. The roof covering is made of composite profiled steel sheets with insulation materials. To prevent lateral instability, some of the trusses are connected by diagonal steel rods. Regardless, standing in the center of the room, with a width of 12 meters and a length of 24 meters, and a height of 4 meters at the highest point of the roof ridge and 3 meters at the lowest point of the eaves, one still feels a strange sense of coverage from the large sloping roof.
▼复合展厅,Composite Exhibition Hall ©金伟琦
▼工作间与陶艺教室,Workshop and pottery classroom©金伟琦
策略
Strategy
伊始定位整个项目,工程基于一个明确的前提:总面积330平方米总面积不超过25万元的预算,折合每平方米800元的预算,Annn studio的创始人小岸决定和我们与施工方石总一起推进建造工程。因此,这与其说是室内装修,不如说是一项开放式的,实验性策略的协作搭建——正如Annn studio陶艺空间的实验性陶器一样,我们这需要突破传统装修范畴,也许可以采用基本建材,例如预制镀锌钢、桦木多层板和聚酯产品等等现场技术性组装而成。保留工业厂房的本源,利用三侧充分的自然光线,将之改造为改造为充满光线、绿植与空间层次的住宅兼陶器实验室的复合文化空间。
▼改造要素分析图Analysis Diagram of Transformation Elements ©Atelier kai
At the very beginning, the entire project was defined. The project was based on a clear premise: a total area of 330 square meters with a budget of no more than 250,000 yuan, which is equivalent to an average budget of 800 yuan per square meter. The founder of Annn studio, Xiao’an, decided to work with us and the construction party, Mr. Shi, to carry out the construction project. Therefore, this is not so much an interior decoration as it is an open and experimental collaborative construction – just like the experimental pottery space of Annn studio, we need to break away from the traditional scope of decoration. Perhaps we can use basic building materials such as prefabricated galvanized steel, birch multi-layer boards and polyester products, and assemble them on-site through technical methods. Retain the essence of the industrial factory building, make full use of the abundant natural light on three sides, and transform it into a composite cultural space that is full of light, green plants and spatial layers, serving as both a residence and a pottery laboratory.
▼室内环境,Interior space ©金伟琦
重要的是,作为熟知陶艺工序及配套运营的小岸来说,对各个功能空间有着清晰的想法,例如玻璃房以及烧窑房等等诸房间需要围合封闭以及特殊的流线。也就是说,除了公共空间,封闭的工艺空间同样成为这个项目的课题之一。如果仅仅按照功能要求,自然地划分房间,那么业主小岸,精心挑选的一个大空间的良苦用心也许就会丧失。因为势必会因为诸多功能空间的机械排列,呈现出传统的一个个单一模式的房间;但作为想要达到的一个整体的复合的大空间,还需要确保各个房间的功能性,舒适性,这是一个问题。
The important thing is that for Xiao’an, who is well-versed in pottery processes and their supporting operations, he has clear ideas about each functional space. For example, rooms such as the glass room and the kiln room need to be enclosed and have special flow lines. That is to say, apart from the public spaces, the enclosed production spaces also become one of the topics of this project. If rooms are simply divided according to functional requirements and naturally arranged, then the painstaking efforts of Xiao’an, who carefully selected a large space, might be lost. Because it is inevitable that due to the mechanical arrangement of many functional spaces, it will present traditional single-mode rooms; but as an overall composite large space that one wants to achieve, it is also necessary to ensure the functionality, comfort, and this is a problem, of each room.
▼制陶工作间,Pottery workshop ©金伟琦
布局
Layout
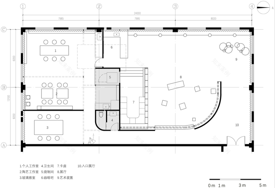
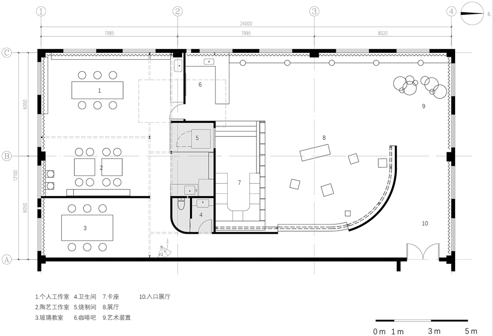
我们设想,工作区与生活区,公共展区的界限是通过空间中的一组紧凑的功能体块来分割,通过体块中材料的尺度和材质的变化来定义不同空间。这组体块如同“视觉和声学的积木块”。所以将无需良好的采光,更具技术性的烧窑实验间,后勤房,卫生房,客房,咖啡操作台等等紧凑整合在一起。在90平的工作坊与150平的复合展厅之间形成过渡。与此同时,可以选择“可变隔断”为核心策略:用轻质镀锌钢架支撑桦木多层板滑动墙体灵活分割运营空间。新建体块端部的旋转钢梯以及吧台处的后勤通道实现逻辑清晰的动线布局,例如无需穿过工作区域就可以到达夹层的起居空间,抑或无需穿过教室区域也可以到达个人工作室。这些动线组织,使项目能够适应不断变化的需求,同时始终保持功能区之间清晰但通透的界限。在平面上,北侧则结合入口,打开呈现一种“广场”的感觉;一道巨大的倾斜弧墙,像张开的手掌一样,承接西向夕阳的光线;南侧最好的阳光平均分配给小岸的开放工作坊,这块区域包含她自己的工作间以及两间教室。
We envision that the boundaries between the work area, the living area, and the public exhibition area are delineated by a group of compact functional blocks in the space. These blocks define different spaces through the variations in the scale and materiality of the materials within them. These blocks are like “visual and acoustic building blocks”. Therefore, the technical and more technical kiln experimentation room, the logistics room, the washroom, the guest room, the coffee operation counter, and other compact elements are integrated together without requiring good lighting. This forms a transition between a 90-square-meter workshop and a 150-square-meter composite exhibition hall. At the same time, the “variable partitioning” strategy can be selected as the core: using lightweight galvanized steel frames to support sliding walls of birch multi-layer boards to flexibly divide the operational space. The rotating steel staircase at the end of the new building block and the logistics passage at the bar counter achieve a clear and logical layout of the movement lines. For example, one can reach the living space on the mezzanine without passing through the work area, or reach the individual studio without passing through the classroom area. These movement lines organize the project to adapt to changing needs while maintaining clear but transparent boundaries between the functional areas. On the plane, the north side combines the entrance and opens up to create a sense of a “square”; a huge inclined arc wall, like an open palm, receives the sunlight from the west; the south side evenly distributes the best sunlight to the open workshop of Xiaoxuan, which includes her own workspace and two classrooms.
▼钢梯,Steel ladder©金伟琦
最终,原有厂房的大屋面将各个空间平缓覆盖。空间的下部因为功能房间被墙体分割为若干部分,人们的视线可以沿着屋顶的缓坡斜线尽可能的延伸,从而感受到原有的“大”。这也许可以创造既彼此独立又彼此连续的空间。屋顶的高侧窗将午后阳光温柔引入,光影在弧墙面与混凝土地面间缓缓游移。而当暮色渐染,灯光次第亮起,弧墙便化作温润的发光体。
Ultimately, the large roof of the original factory building will smoothly cover all the spaces. The lower part of the space is divided by the walls into several parts, allowing people’s lines of sight to extend as far as possible along the gentle slope of the roof, thus experiencing the original “grandeur”. This may create spaces that are both independent and continuous. The high side windows on the roof gently introduce the afternoon sunlight, and the light and shadow slowly shift between the arc wall and the concrete floor. As the dusk deepens, the lights gradually turn on, and the arc wall transforms into a warm luminous body.
▼夹层,Interlayer ©金伟琦
▼夹层栏杆,Interlayer railing ©金伟琦
▼夹层聚碳酸树脂板屋面,Laminate polycarbonate resin board roof ©金伟琦
建造 Construction
一些中等尺度的空间的尺寸过高,为了避免骇人的不舒适的尺度感,上部的空间划分通过螺钉固定聚酯波浪板,下方的空间根据运营可分可合,南部强烈的阳光可以通过这些悬浮的半透材质,均匀地反射与透射。从而创造出像温室一样弥漫且明亮的空间。
▼排烟风罩及设备管道图,smoke exhaust hood and equipment piping diagram©Atelier kai
The dimensions of some medium-sized spaces are too large, in order to avoid an intimidating and uncomfortable sense of scale, the upper space is divided by screw-fixed polyester wave panels, while the lower space can be divided or combined according to the operation. The intense southern sunlight can be evenly reflected and transmitted through these suspended semi-transparent materials, thus creating a space that is diffused and bright like a greenhouse.
▼悬浮隔墙,Floating partition wall©金伟琦
▼玻璃烧制教室,Glass firing classroom©金伟琦
为了充分利用空间,地台下的所有空间被一种带轮轴的”抽屉箱体“模块填充,平日这些方钢龙骨多层板饰面制作的”大抽屉“充当收纳功能,将制陶所修的泥胚以及其余工具进行收纳,需要展陈时亦可以拉出来布置于广场之中充当展台。
▼可移动式收纳箱示意图,Portable storage box ©Atelier kai
To make full use of the space, all the areas beneath the platform are filled with a kind of “drawer box” module with a wheel axle. On a daily basis, these multi-layered boards with steel frame finishes serve as “large drawers” for storage purposes. They are used to store the clay molds and other tools made in the pottery workshop. When it is time for exhibition, they can be pulled out and placed in the square to serve as a display stand.
▼可移动式收纳箱,Portable storage box©金伟琦
为了满足灵活多变的展陈需求,我们顺着原有X型抗侧拉杆形式,用40*80的方钢布置了X型吊装展架,不重的展陈招贴和灯具就可以安置在其上面。吧台采用30的钢格栅作为柜体板,这种既镂空又结实无比的材料既能满足咖啡操作台下方设备的散热需求,又可让视线穿透吧台,保持空间的通透感。钢格栅表面经防滑处理,兼顾实用性与安全。旁边休息区为了最小化的干涉布展空间,沿西墙一侧布置固定座椅,利用工地余料,即兴采取了脚手架钢管与多层板的搭接组合,这种方式同样适合建造一个悬浮的咖啡板桌。
▼咖啡区,Cafe quartier ©Atelier kai
To meet the flexible and diverse display requirements, we continued the original X-shaped anti-side-tension rod design and used 40*80 square steel bars to arrange the X-shaped lifting display stands. Lightweight display posters and lamps can be placed on them.The bar counter uses a 30mm steel grid as the cabinet panel. This material, which is both perforated and extremely sturdy, can not only meet the heat dissipation needs of the equipment under the coffee operation counter, but also allow the line of sight to penetrate the bar counter, maintaining the transparency of the space. The surface of the steel grid is treated with anti-slip treatment, balancing practicality and safety. The adjacent seating area, in order to minimize interference with the exhibition space, is arranged with fixed seats along the west wall. Using leftover materials from the construction site, an improvised combination of scaffold steel pipes and multi-layer boards was adopted, and this method is also suitable for building a suspended coffee board table.
▼咖啡区,Cafe quartier ©金伟琦
▼休闲区,Relax zone ©金伟琦
▼咖啡区座椅,Coffee area seats ©金伟琦
诚然,这个项目探讨了经济与技术,工艺流程,以及商业运营的议题。但实验性的空间,无法为简单问题提供简洁答案,仍然试图最后呈现的空间体验,正如小岸的Annn studio 的所言,这个空间给人的感觉希望是自由的、浪漫的、松弛的、 能取悦自己的、能专注于跟自己独处的 ,浪费时间也好 虚度光阴也罢 ,能让自己真正放松下来的一个空间。
▼钢构框架图,Structure diagram©Atelier kai
▼座椅构件图,Component ©Atelier kai
Indeed, this project delved into issues related to economy, technology, production processes, and business operations. However, the experimental space cannot provide simple answers to straightforward questions. It still attempts to present a final spatial experience, as Anne Studio of Koshino puts it, this space is supposed to give people a feeling of freedom, romance, relaxation, the ability to please oneself, the ability to focus on being alone with oneself. Whether it’s wasting time or idling away the hours, it is a space that allows one to truly relax.
▼烧窑间及清洗室,Furnace room and cleaning area ©金伟琦
▼展厅,Exhibitionhall ©金伟琦
▼一层平面,First floor plan©Atelier kai
▼夹层平面,Interlayer plane©Atelier kai
▼剖透视图,Poche diagram©Atelier kai
客服
消息
收藏
下载
最近






























