查看完整案例

收藏

下载

翻译
Architects:Eduardo Souto de Moura,Nuno Graça Moura
Area:851m²
Year:2024
Category:Restaurant,Refurbishment
Coordination:Eduardo Souto de Moura, Nuno Graça Moura
Project Team:Carlos Albuquerque Castro
Engineering & Consulting > Civil:Jorge Nunes da Silva, Ana Silva
Engineering & Consulting > Electrical:Alexandre Martins
Engineering & Consulting > Mechanical:Marco Carvalho, Daniela Gomes
Engineering & Consulting > Others:Raquel Fernandes, Iperplano
General Construction:Lúcios Engenharia e Construção
City:Lisboa
Country:Portugal
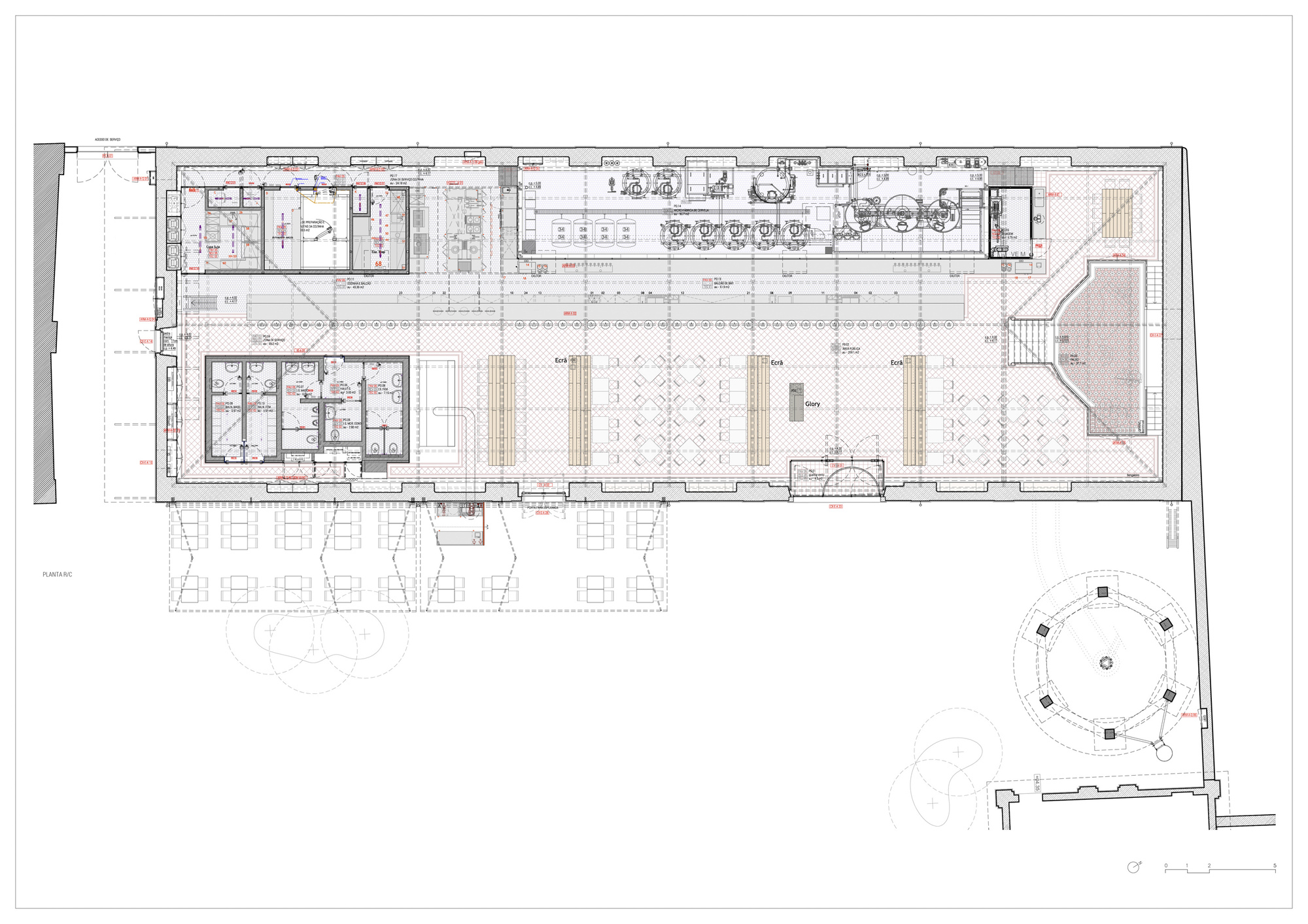
Text description provided by the architects. It is intended to install a restaurant/bar, a respective kitchen, and a microbrewery in the former Military Maintenance Electric Central of Beato, now the Creative Hub of Beato.
A long counter located approximately along the main longitudinal axis separates the public and private areas. To the east of the counter are the public areas, namely the restaurant/bar and public restroom facilities. To the west of the counter are the service areas: kitchen, storage, and preparation areas, and at a higher level of about 70 cm, the brewery.
On the south facade, the existing door will remain and will serve as a service entrance for loading and unloading, etc. On the exterior of this facade, we plan to demolish the attached structures to allow for the reopening of the originally existing passage. On the north wall, we also propose the opening of a gateway to facilitate direct access to the building.
The project envisions the reconstitution of all relevant elements existing in the current building and their respective colors. We propose the reconstruction of all interior wainscoting with identical tiles and mosaics. For the floors, we will reuse handmade hydraulic mosaics, with designs and colors identical to those currently existing.
The iron frames will be treated and reused or reconstructed, although with the introduction of laminated double glazing for thermal and acoustic reasons. The current door will have the missing colored glass replaced. The ceiling will be repaired and applied with open joints and insulation on the inside for better acoustic performance. The metal pipes of all mechanical installations will remain visible, along the ceiling and on the facades.
The equipment for the brewery will be made of stainless steel, as will the kitchen equipment and the longitudinal counter that organizes the space. In the public area, the restroom facilities will be covered with stainless steel sheets. The remaining existing elements, such as the roof structure, bridge, and respective guides, fans, and generators with their ducts will be fully restored.
Project gallery
客服
消息
收藏
下载
最近

































