查看完整案例

收藏

下载

翻译
Architects:Space&Matter
Area:10850m²
Year:2026
Photographs:Riccardo De Vecchi
Category:Residential Architecture,Houses
Lead Team:Lidia Egorova, Marthijn Pool , Tjeerd Haccou
Design Team:Daniel Südkamp, Martijn Feenstra, Inigo Ruiz, David Koezen
Landscape Architecture:DELVA Landscape architecture urbanism
General Contractor:Karbouw
Engineering & Consulting > Structural:Treetek, B-Happy/B-Invented
City:Amersfoort
Country:The Netherlands
Text description provided by the architects. At the edge of the historic Nimmerdor forest in Amersfoort, Dutch studio Space&Matter has completed Common Woods, a circular and nature-inclusive neighborhood comprising 56 homes. The neighborhood combines villas, semi-detached houses, and apartments across social, mid-range, and private housing, with the aim of promoting social inclusion and a strong sense of community.
Organized as a compact cluster, the masterplan allows the forest to extend deep into the site, creating a series of open "forest rooms" that mediate between landscape and architecture.
The architectural identity of Common Woods is defined by a combination of carefully scaled volumes and a shared timber material palette that relates to the surrounding woodland. The facades are finished in earthy reds, smoky blacks, and sandy beiges, a material palette that is rooted in the site and echoes the forest's bark, soil, and seasonal greenery.
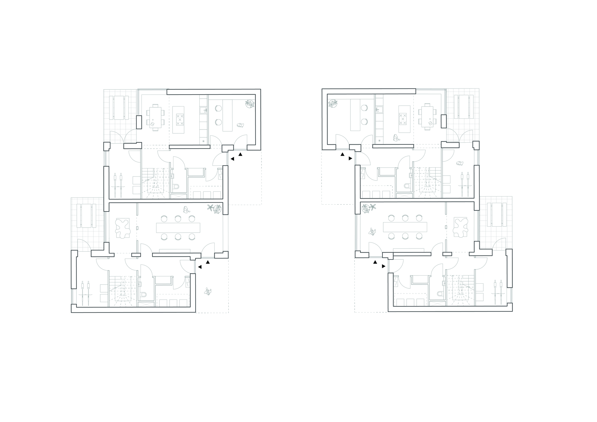
A modular system underpins both the massing and façade expression of the buildings. Vertical and horizontal articulations in the cladding result from an efficient prefabrication strategy, establishing a clear structural rhythm across the development. This approach produces a family of buildings with consistent proportions while accommodating variation between villas, apartment blocks, and communal structures.
The homes are constructed primarily from cross-laminated timber (CLT), reducing the carbon footprint and benefiting from the comfort and precision associated with prefabricated timber construction. Circular principles are embedded in the project's material choices, building methods, and long-term adaptability, supporting its ambition to serve as a future-proof model for responsible living.
At the center of the neighborhood, a communal square and greenhouse act as a social hub intended to encourage daily encounters and shared activities. A sequence of thresholds — including terraces, balconies, and intimate inner streets — activates the public realm and creates a gentle transition between forest and city. With habitable façades, nesting features, and native planting to support wildlife, Common Woods integrates architecture, ecology, and community into a cohesive and forward-looking living environment.
"Common Woods demonstrates how architecture, nature, and community can go hand in hand. It's great to see how our design strengthens this connection, turning the neighborhood into a living ecosystem." - Lidia Egorova, Managing Director at Space&Matter
Project gallery
客服
消息
收藏
下载
最近
































