查看完整案例

收藏

下载

翻译
Architects:note architects
Area:72m²
Year:2025
Photographs:Kenta Hasegawa (OFP)
Manufacturers:Tsubohara Mokko
Lead Architects:note architects
Category:Renovation,Apartment Interiors
Lead Team:Ryo Kamamatsu
City:Tokyo
Country:Japan
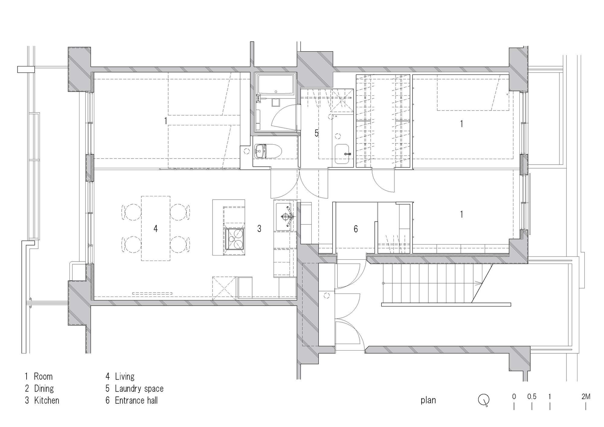
Text description provided by the architects. We renovated a 45-year-old vintage apartment building in Tokyo. A huge cross-shaped beam crossed the residence. The beam restricted the floor plan, but we felt that it created an extremely attractive landscape, with a sense of inclusiveness that seemed to envelop it from above. However, the existing home had a typical family layout, with only a group of private rooms. As a result, the beam appeared fragmented, and the plan did not fully utilize the natural beauty of the landscape. We envisioned a scene that would make the most of the landscape, with a family of four living together under a beam.
First, the beam finish was stripped away to expose the concrete, revealing the shape of the landscape. Partitions and finishes are raised to the height of the beam so as not to hide it. A good wind flows through from the nearby river, connecting the east and west sides of the house. The entire space is connected through the gaps between the beams and walls, creating a living space rich in variety where rooms influence each other.
Lintel is placed under the long beam, and the wall is constructed using a variety of materials, including rattan-clad sliding doors, perforated board, lauan wall, and lauan doors. The rattan-clad doors can be moved along the lintels, and additional doors can be made to create private rooms. A flexible design was required to accommodate changes in the family as the children grow. The four rooms created by the cross beams have different wall finishes, giving them distinct personalities. The kitchen and bedside tables, used for eating and sleeping, are set back from the beams, making them closer to the human body in scale.
By reading the existing landscape and creating an intimate relationship with the beams, we were able to realize a lifestyle unique to this location, where the family is conscious of living together while being embraced by the beams.
Project gallery
客服
消息
收藏
下载
最近






















