查看完整案例

收藏

下载

翻译
Architects:Wood Marsh
Year:2025
Photographs:Fergus Floyd
Category:Museum,Educational Architecture,Extension
Client:Potter Museum of Art at University of Melbourne
City:Parkville
Country:Australia
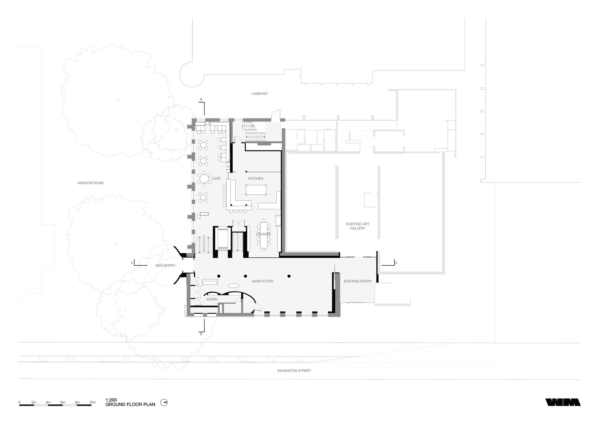
Text description provided by the architects. The Ian Potter Museum of Art, Education and Programs Centre is a significant expansion of the original museum at the University of Melbourne's Parkville campus, extending into the heritage-listed 1930s Physics Annex. Connecting with both the campus and a major road leading out of the city centre, the concave, mirrored, polished stainless-steel portal extends from the original façade, marking the museum's presence and creating a multi-faceted public interface.
Spanning four levels, including a basement, the project connects seamlessly with the Victorian Architecture Medal-winning gallery. It enhances gallery, teaching, and hospitality spaces while reorienting the museum's main entry to Masson Road, strengthening its civic identity and cultural presence on campus.
Close collaboration with the University, the Museum, and University Art Museums Australia ensured alignment of diverse goals through a unified vision. Heritage architects Lovell Chen oversaw the restoration of original elements, guided by detailed surveys to maintain historical accuracy. Contemporary systems—including thermal upgrades and 'AA' environmental controls—were carefully integrated to support artwork conservation.
The complexity of the project included cohesively integrating the existing Ian Potter Museum of Art (1998), with the former Bacteriology building (1900s) and the Physics Annex (1930s). A key challenge was reconciling the different floor levels between the Museum and Physics Annex, addressed through thoughtful, DDA-compliant design. The result is a flexible, accessible, and future-focused cultural facility supporting education and engagement.
The portal leads into a vaulted, double-height foyer, where a monochromatic black timber wall guides visitors through the foyer and restaurant (Residence at the Potter) to the existing gallery spaces.
The museum provides a range of dedicated and hybrid teaching spaces on level 1, supporting the University Art Collection and the annual exhibition program. Designed as a destination for art, social activity, and lifelong learning, it combines hybrid teaching and display spaces, climate control, and an integrated lighting system to ensure optimal conditions for both conservation and presentation.
The new extension also accommodates education services, seminar rooms, teaching and gallery spaces, cloak rooms, a café, public program areas, and utility support, providing a flexible environment for exhibitions and learning activities.
Project gallery
客服
消息
收藏
下载
最近





































