查看完整案例

收藏

下载
Simplex Architecture 欣然宣布,位于韩国三陟的Isabu Dokdo博物馆项目已建成完成。博物馆旨在展示新罗名将伊萨布及独岛的历史。项目基地位于江原道三陟市汀罗洞,东侧临近三陟港,东南为工业区,北侧为商业区,西北侧为居住区。公元 512 年(新罗智证王十三年),伊萨布将军正是从三陟此地率领水军出征,征服于山国——即今日的鬱陵岛与独岛,并将其纳入新罗版图。© Kyungsub Shin
Simplex Architecture is pleased to announce the completion of the Isabu Dokdo Museum project in Samcheok, Korea. The museum designed to exhibit the history of general Isabu and Dokdo. The site lies in Jeongna-dong, Samcheok-si, Gangwon-do. Samcheok Port is located to the east, with an industrial zone to the east and the south, a commercial zone to the north, and a residential zone to the north west. In A.D. 512 (the 13th year of King Jijeung’s reign), Silla general Isabu set off from this spot in Samcheok with his marine troops to conquer Usanguk, today known as Ulleungdo Island, Dokdo Island which was part of the Silla territory.
▼Isabu Dokdo博物馆鸟瞰图,the Aerial View of Isabu Dokdo Museum © Kyungsub Shin
▼顶视图,top view© Kyungsub Shin
基地中央的六香山,在伊萨布出征的时代曾是一座海中孤岛,如今却已演变为陆地山体。填海形成的土地之下,仍埋藏着当年作为岛屿的六香山下部地形。项目通过对山体下部的开挖,使场地高度回落至历史标高,并引入水体,形成名为“六香池”的水面景观,既呼应六香山之名,也隐喻“海上之岛”的意象。沿着重新显露的地貌展开的展览空间,成为三陟新的文化场所,唤回曾在景观中消失的历史记忆。▼分析图,analysis diagram© Simplex Architecture
Yukhyangsan Mountain, located at the centre of the site, was once an oceanic island at the time of Isabu’s departure, but has now become a mountainous region. Underneath this reclaimed land are the lower reaches of Yukhyangsan Mountain that was once an island. The lower part of the Yukhyangsan Mountain was excavated, the site was lowered to its former altitude, and water was introduced. The water introduced to this area adopts the form of a pond with the name Yukhyang-ji, relating it to Yukhyangsan Mountain and alluding to the image of an island on the sea. An exhibition space tracing the historic features throughout the newly revealed site, will come to play a role as new cultural site in Samcheok, and recover what in the landscape had been lost to the past.
▼Isabu Dokdo博物馆概览,overall of Isabu Dokdo Museum © Kyungsub Shin
▼建筑与景观之间的平衡,balance between architecture and landscape© Kyungsub Shin
▼水景庭院,water feature courtyard© Kyungsub Shin
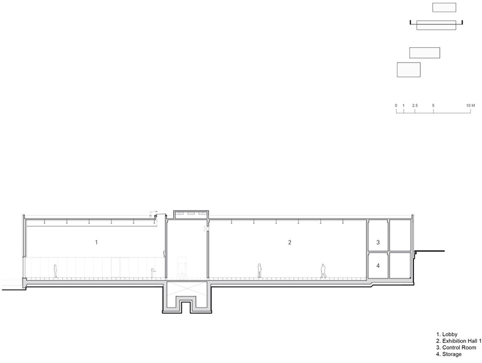
Isabu Dokdo博物馆由四个功能体量组成:游客信息中心、领土防卫纪念馆、Dokdo体验空间以及多功能社区空间。四个相对独立的体量共同构成展览体系与参观路径,使流线更为自由而流畅。它们既可作为一个整体的展览场所运作,也可分别承载独立展览与活动。
The Isabu Dokdo Museum is composed of four features: the tourist information center, a territorial defense memorial hall, the Dokdo experience space, and a multi-purpose community space. These four independent masses inform the composition of the exhibition and the way in which visitors engage with the exhibition, as well as ensuring more fluid circulation. The project, composed as separate sections, is simultaneously a single exhibition hall, as well as a place in which independent exhibitions can be installed.
▼Isabu Dokdo博物馆由四个功能体量组成,the Isabu Dokdo Museum is composed of four features © Kyungsub Shin
▼外观,exterior views© Kyungsub Shin
项目摒弃了单一、被动、按既定顺序参观的传统展览方式。观者可以在不同体量之间自由穿行,或在室内展览与户外自然之间不断切换;可以在途中停留、休憩、观看,也可以从中段进入,选择性地体验内容。各体量之间的户外空间被精心组织,与周围自然景观相互连通,使建筑与景观融为一体。参观者不仅与展厅中的展品对话,也与周围的自然环境产生交流,使到访本身成为一次兼具观展与感受场所精神的体验。
© Kyungsub Shin
Marking a departure from the more passive approach of moving through an exhibition according to a prescribed order, controlling circulation, here it will be possible to move between the sections, or to experience the internal exhibition spaces and outdoor nature at intervals, or to move to a different spot and to rest while observing the exhibition, or to start from the midpoint and selectively view what one wishes to see. In between each section, the outdoor spaces which offer views of the surrounding natural landscape have been filled and organised to connect, bringing the architecture and landscape into harmony. The visitor can communicate not only with the exhibited artefacts within the exhibition hall, but also with the outdoor nearby spaces, visiting not only to observe the exhibitions but to enjoy and appreciate this place.
▼庭院,courtyard© Kyungsub Shin
▼庭院地面灯光设计,light design of the pavement© Kyungsub Shin
参观通常从游客信息中心开始。建筑上层可直接从道路进入,设有咖啡空间,既服务游客,也向当地居民开放。沿楼梯下行至下层,可抵达入口大厅与信息中心,这里是真正进入Isabu Dokdo博物馆体验的起点。离开游客中心,前往领土防卫纪念馆的路径上,一道由毛石砌筑而成的墙体迎面而立,用以纪念此地曾作为新罗海防要塞——三陟浦津城——的历史。沿游客中心侧面的室外台阶登高,可抵达堡垒道路,其上以地面刻痕标示出三陟浦津城的位置。
▼轴测图分析图,analysis diagram© Simplex Architecture
The visitors to the Isabu Dokdo Museum begin their exhibition experience at the tourist information center. The upper level of the building can be entered from the road level, where there is a café which can be used by visitors and locals. Descending to the lower levels using the stairs, an entrance lobby and information center where one can acquire information about the Isabu Dokdo Museum can be found. This is the point at which one really begins to experience the Isabu Dokdo Museum. Exiting from the tourist information center, to take the pathway to the territorial defense memorial hall, one is met by a wall at the forefront, composed of rubble masonry. This has been introduced to reflect on the historical significance of the site by preserving the place where Samcheokpojin-seong Fortress was once located as a marine military base for the Silla empire. Following the outdoor steps at the side of the tourist information center, and mounting them to the upper level, one comes across a fortress road and trail along which the location of the Samcheokpojinseong Fortress is engraved in the ground. Upon entering the second section, the territorial defense memorial hall, a high-ceilinged lobby greets visitors, and the light from the windows above fall into the space through the stone finished walls.
▼毛石砌筑而成的墙体,the wall constructed with rubble stones© Kyungsub Shin
进入第二个体量——领土防卫纪念馆后,挑高的大厅空间首先呈现,天窗洒下的自然光顺着石材墙面流淌而下。这里既是参观等候空间,也是可以停留、眺望风景的休憩场所。纪念馆与独岛体验空间之间的石铺广场,正对六香池与六香山,是静坐沉思、感受独岛意象与多样活动的场所。穿过广场进入独岛体验空间,其大厅可透过窗洞看到六香山下部裸露的岩体。环绕体验空间的坡道引导人们上行,在上部大厅中,可再次以俯瞰的方式回望展览。由独岛体验空间南侧延伸出的桥梁,将参观者引向多功能社区空间;过桥途中,可再次欣赏六香山与六香池的景观,而终点的社区空间则可作为居民活动场所、书吧、讲座或公共活动空间使用。
▼轴测分析图,axonometric diagram© Simplex Architecture
The space is simultaneously a waiting room for the exhibition visitors, as well as a lounge in which people can rest and enjoy the views. The stone plaza which is located between the territorial defense memorial hall and the Dokdo experience space is directed towards both Yukhyang-ji and Yukhyangsan Mountain. It is a place in which to gain a fuller sense of Dokdo Island, and where one can sit in quiet meditation or experience the diverse range of activities. In the lobby of the Dokdo experience space, which can be reached by passing through the stone plaza, one can appreciate the lower section of the Yukhyangsan Mountain rocks through the window. The slope, which flows around the Dokdo experience space, guides people towards the upper levels, and here, at the lobby, it allows one to observe, once again, the exhibition with a top-down view. Crossing the bridge connected to the south of the Dokdo experience space connects it to a multi-purpose community space. The visitors cross the bridge to appreciate the lower reaches of the Yukhyangsan Mountain and Yukhyang-ji once again, and the multi-purpose community space to which they arrive after crossing the bridge can be used as a multipurpose space for resident facilities, as a book café, for lectures, events, etc.
▼入口大厅,entrance hall© Kyungsub Shin
▼双层通高的大厅,double-height hall© Kyungsub Shin
▼由室内看庭院,viewing the courtyard from interior© Kyungsub Shin
▼光影,light and shadow© Kyungsub Shin
▼展览/会议空间,exhibition / meeting area© Kyungsub Shin
▼沉浸式影视空间,immersive experience space© Kyungsub Shin
领土防卫纪念馆与Dokdo 体验空间的上部体量采用实石材饰面,下部则以通透的玻璃围合,使室内外空间相互渗透:外部可观察展览空间,内部亦可眺望六香山与六香池的自然景观。社区多功能空间同样在上部大量采用玻璃,以强化开放性。整体外立面以洞石(Travertine)完成,与自然环境和谐呼应,并通过 2400×300mm 的石材模数,强化狭长体量的水平延展感;下部开口采用 1200mm(半模数)尺寸,室内地面则使用 600×600mm 的石材铺设。由此,室内外不仅在视觉与流线上连贯,也在模数体系上形成统一。
The upper sections of the territorial defense memorial hall and the Dokdo experience space were finished with solid stone, while the lower sections were finished with transparent glass. The glass across the lower section allows the inside and outside spaces to communicate, and to permit observation of the exhibition and its spaces from the outside, and for those inside to observe the natural landscape of Yukhyangsan Mountain and Yukhyang-ji outside. In the multi-purpose community space for the local residents, the upper section also employs glass to emphasise a sense of openness. The project was finished with travertine stone, in harmony with the natural surroundings, and by using a 2400×300mm module, the direction of the long and narrow mass was emphasised. The outlets for the lower section of the mass were composed of 1200mm, half of the stone module, and the floor indoors was finished with a 600×600mm dimension stone. As such, the indoor and outdoor areas of this project interconnects, not only in terms of its visual elements or circulation, but also in unifying the modules indoors and outdoors.
▼整体外立面以洞石完成,the project was finished with travertine stone© Kyungsub Shin
▼建筑上部体量采用实石材饰面,下部则以通透的玻璃围合,the upper part of the building is decorated with solid stone, while the lower part is enclosed by transparent glass© Kyungsub Shin
▼外观细部,details of exterior© Kyungsub Shin
建筑周边的户外空间以“融入而非侵入”为原则进行设计,使建筑与场地景观自然交织。这些户外区域同时被视作潜在的展览空间,构建一种以景观为核心的体验基础。原本,项目希望最大限度地呈现六香山下部岩体的景观,无论从展厅内外都可清晰感知。然而,在施工过程中发现了新罗时期三陟浦津城遗址,部分建筑功能因此调整,六香池的规模被缩小并以墙体加以分隔,以保护遗址。这也使原先对六香山下部岩体的完整视野被大幅改变,并最终转化为一面纪念性的界墙,成为项目中略带遗憾却同样真实的历史回应。
The outdoor spaces around the building were planned so that the architecture and landscape would harmonise and blend in with the surrounding landscape, rather than becoming too intrusive or imposing a structure. The outdoor spaces were also seen as potential exhibition spaces, with the aim of establishing a foundation for a scenic experience. If originally the main point of attraction was to be the view of the lower section of the bedrock from the outside and inside of the exhibition hall, revealing as much of the lower section of the Yukhyangsan Mountain as possible, then the discovery of part of Samcheokpojin-seong Fortress as Silla era relics on the site meant that part of the building had to be reassigned, and the Yukhyang-ji was reduced in size and partitioned with a wall, so as to protect the relics. It remains regrettable that the former view of the lower section of Yukhyangsan Mountain was largely modified and recast as a wall.
▼户外区域可被视作潜在的展览空间,the outdoor area can be regarded as a potential exhibition space© Kyungsub Shin
▼场地平面图,site plan© Simplex Architecture
▼总平面图,master plan© Simplex Architecture
▼一层平面图,ground floor plan© Simplex Architecture
▼二层平面图,first floor plan© Simplex Architecture
▼立面图,elevations© Simplex Architecture
▼立面图,elevations© Simplex Architecture
▼立面图,elevations© Simplex Architecture
▼剖面图,sections© Simplex Architecture▼剖面图,sections© Simplex Architecture
▼剖面图,sections© Simplex Architecture
▼剖面图,sections© Simplex Architecture
▼剖面图,sections© Simplex Architecture
Major Building Materials: Limestone (Travertine), Low-E Coated Glass
Program: Museum
Floors: 3 floors above grade, 1 floor below grade
Site Area: 955.2 m2
Floor Area: 1,263.05 m2
Project Credits
Architect: Simplex Architecture
Design Principals: Chung Whan Park, Sanghun Song
Project Team: Yukyung Kim, On Sim, Eunseon Jung, Hyunwoo Lee, Seongwook Jeong, Jihee Bang
Competition Team: Gyoung Tak Park, Namjin Lee, Sang Soo Lee
Landscape Architect: DSW Landscape Design & Construction Co., STUDIO201 Landscape Design & Consulting
Structural Engineer: TheKujo Co.
Mechanical Engineer: HANA Consulting Engineers Co., Ltd
Photograph: Kyungsub Shin
客服
消息
收藏
下载
最近
















































